4

MEDICINA - 3 CAM - SPATIOS - GARAJ IN CF - BOXA - CENTRALA PROPRIE/AC - ZONA SUP

204.900 €

Medicină, Timișoara

Nr. cam.:
3
Sup. utilă:
89 mp
Etaj:
2
An constr.:
1940
  • • Locație aproximativă
  • • Vizionare prin apel video

Descriere apartament

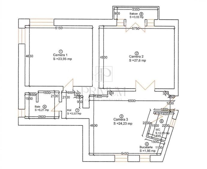
Agentia Imobilia PRIMUM are placerea de a va oferi spre vanzare un apartament spatios, renovat, cu 3 camere,semidecomandat, in zona Medicina, aproape de parcuri, de Universitatea de Medicina, de mijlocele de transport in comun, de magazine, de Institutii de invatamant, de zona Ultracentrala, etc. Apartamentul dispune de 89 mp utili + 1 balcon de 3 mp, si suplimentar o boxa si de un garaj toate trecute in CF, pentru un spatiu de depozitare suplimentar, se pozitioneaza la etajul 2 din 2 al vilei, fiind dotata cu acoperis si pod spatios. Compartimentarea acestuia este urmatoarea: - Sufragerie spatioasa in stil open space cu bucataria; - 2 Dormitoare, dintre care una cu iesire la balcon; - 2 Bai complete; - Hol spatios; - 1 boxa in CF; - 1 garaj in CF. Apartamentul se vinde nemobilat si partial utilat, a fost facuta renovarea acestuia acum ceva timp in urma, inclusiv si baile au fost renovate, iar confortul termic se realizeaza prin centrala proprie, precum si cu ajutorul aparatului de aer conditionat. Amplasamentul imobilului este cu acces facil catre toate punctele de interes ale zonei, inclusiv Facultatile de MEDICINA, de UVT, de POLITEHNICA, aproape de mijloace de trasnport in comun. Nu ezitati sa ne contactati pentru mai multe detalii si pentru o vizionare!
Citește mai mult Citește mai puțin
Confort 1 Semidecomandat Nemobilat 1 Balcon / Terasă / Logie Aer condiționat Termoficare Beci 1 Garaj

Detalii apartament

ID anunț: XCPS10AFA Copiat! 272782492 Copiat!
Actualizat în: 16 Martie 2026
Suprafață utilă totală: 89 mp
Suprafață construită: 92 mp
Nr. bucătării: 1
Nr. băi: 2
Structură rezistență: Cărămidă
Tip imobil: Bloc de apartamente
Regim înălțime: P+2E

Utilități

Destinație
Rezidențial
Pereți
Faianță Vopsea lavabilă
Podele
Parchet Gresie
Ușă intrare
Metal
Uși interior
Celulare
Ferestre cu geam termopan
PVC
Contorizare
Apometre
Bucătărie
Utilată Mobilată
Electrocasnice
Aragaz Hotă Frigider Hotă Mașină de spălat
Alte spații utile
WC Serviciu
Utilități
Apă Curent Gaze Canalizare
Internet
Cablu
Servicii imobil
Menaj Administrare
Amenajare străzi
Asfaltate Pietruite

Puncte de interes

Mijloace transport
bus-station
Filipescu
Stații autobuz aprox. 212 m
trolleybus-station
Statie Politia Jud. Timis T11, T17
Stații troleibuz aprox. 273 m
tram-station
Statie Prefectura Tv1, Tv2, Tv4, Tv5
Stații tramvai aprox. 336 m
train-station
Gara de Est
Stații tren aprox. 962 m
Școală
kindergarten
Gradinita nr. 22 / Cresa nr. 7
Gradinițe aprox. 16 m
kindergarten
Gradinita Program Prelungit Nr. 22
Gradinițe aprox. 41 m
university
U.M.F. Catedra de Farmacologie
Universități aprox. 223 m
school
Scoala Generala nr 16 (Take Ionescu)
Școli aprox. 375 m
Recreere
park
Parc
Parcuri aprox. 156 m
supermarket
Profi City
Supermarket aprox. 261 m
public-square
Piata Corneliu Micloși
Piețe publice aprox. 399 m
mall
Kappa Centrul Comercial
Mall aprox. 1217 m

Detalii despre preț și costuri

Prețul pe piață

Preț cerut: 204.900 €

Preț min. zonă 119.500 €
Preț max. zonă 415.000 €

60% dintre proprietățile similare ca zonă și nr. camere au prețul cerut mai mare. mai multe...

Bine de știut: prețul unei proprietăți este influențat și de alte caracteristici, cum ar fi: vechime, localizare, vecinătăți, suprafață, compartimentare, amenajări, dotări, etc. mai puțin...

Costuri cu achiziția

Fără credit
9.937 RON
Credit ipotecar
11.919 RON
Noua casă
1.184 RON+ taxe notariale

i

Costuri adiționale mai puțin știute la achiziție: taxe notariale, comisioane etc.

Proprietăți recomandate

Detalii de contact

PRIMUM

Tatiana Tatar Consultant Imobiliar

PRIMUM
PRO

Abonează-te la newsletter să fii primul care primește cele mai noi recomandări de proprietăți și sfaturi de la experți.

CONTACT

Creează alertă

Salvează căutarea ca să primești pe email ultimele anunțuri publicate

Apartamente cu 3 camere de vânzare în zona Medicină, Timișoara