MEDICINA - ETAJ 2 - GARAJ+BOXA CF - 3 CAMERE - 2 BAI - CENTRALA PROPRIE - CLIMA

204.800 €

Medicină, Timișoara

Nr. cam.:
3
Sup. utilă:
89 mp
Etaj:
2 / 2
An constr.:
1941 (Finalizată)
  • • Locație aproximativă
  • • Vizionare prin apel video

Descriere apartament

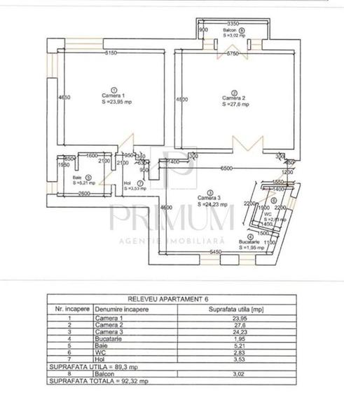
Agentia Primum Imobiliare are placerea de a va oferi spre vanzare, un apartament spatios cu 3 camere, situat in zona MEDICINEI , intr-o locatie frumoasa, linistita si usor accesibila spre centrul orasului. Apartamentul este situat la etajul 2 din 2 etaje, cladire cu acoperis si pod, dispune de centrala proprie, clima, tamplarie PVC , electrocasnice si este semidecomandat. Compartimentare: - 1 hol de acces - 1 bucatarie mobilata si utilata open space cu living spatios - 2 dormitoare mobilate - 2 bai din care una cu geam - debara - 1 garaj + 1 boxa in CF in curtea interioara a blocului Apartamentul a fost renovat (instalatie electrica+sanitara schimbate) si se vinde cum este in poze mobilat si utilat. Se accepta credit bancar! Informatiile cu caracter tehnic ne sunt furnizate de catre proprietar Ne angajam sa va oferim consultanta imobiliara si financiara pe toata durata procesului de tranzactie. Mai multe detalii telefonic!
Citește mai mult Citește mai puțin
Confort 1 Semidecomandat Mobilat Complet 1 Balcon Aer condiționat Centrală proprie 1 Parcare

Detalii apartament

ID anunț: XCPS10A8P Copiat! 271965058 Copiat!
Actualizat în: 10 Februarie 2026
Suprafață utilă totală: 89 mp
Suprafață construită: 92 mp
Nr. bucătării: 1
Nr. băi: 2
Structură rezistență: Altele
Tip imobil: Casă/Vilă
Regim înălțime: P+2E

Utilități

Destinație
Rezidențial
Pereți
Faianță Vopsea lavabilă
Podele
Parchet Gresie
Ușă intrare
Lemn
Uși interior
Lemn
Ferestre cu geam termopan
PVC
Contorizare
Apometre Contor gaz
Bucătărie
Utilată Mobilată
Electrocasnice
Aragaz Hotă Frigider Hotă Mașină de spălat rufe
Utilități
Apă Curent Gaze Canalizare Telefon
Acces internet
Cablu Fibră optică Wireless Dial-up
Servicii imobil
Administrare
Amenajare străzi
Asfaltate

Vecinătăți:

Scoala/gradinita, Centru universitar, Restaurant/pub, Mall, Parc, Central, Hotel, Piata, Benzinarie, Fastfood, Cinema, Supermarket, Banca, Zona comerciala, Autobuz

Puncte de interes

Mijloace transport
bus-station
Prefectura
Stații autobuz aprox. 32 m
tram-station
Statie Prefectura Tv1, Tv2, Tv4, Tv6
Stații tramvai aprox. 109 m
trolleybus-station
Statie Bastion T11, T17
Stații troleibuz aprox. 350 m
train-station
Gara de Est
Stații tren aprox. 1359 m
Școală
kindergarten
Gradinita Program Prelungit Posta
Gradinițe aprox. 75 m
kindergarten
Gradinita Program Prelungit Nr. 19
Gradinițe aprox. 98 m
university
Universitatea Mihai Eminescu
Universități aprox. 108 m
school
Colegiul National Ana Aslan
Școli aprox. 109 m
Recreere
park
Piata Eftimie Murgu
Parcuri aprox. 82 m
sports-ground
Teren sportiv
Terenuri sport aprox. 175 m
supermarket
Bega Shopping Center
Supermarket aprox. 506 m
mall
Kappa Centrul Comercial
Mall aprox. 1462 m

Detalii despre preț și costuri

Prețul pe piață

Preț cerut: 204.800 €

Preț min. zonă 119.500 €
Preț max. zonă 415.000 €

60% dintre proprietățile similare ca zonă și nr. camere au prețul cerut mai mare. mai multe...

Bine de știut: prețul unei proprietăți este influențat și de alte caracteristici, cum ar fi: vechime, localizare, vecinătăți, suprafață, compartimentare, amenajări, dotări, etc. mai puțin...

Costuri cu achiziția

Fără credit
9.931 RON
Credit ipotecar
11.913 RON
Noua casă
1.183 RON+ taxe notariale

i

Costuri adiționale mai puțin știute la achiziție: taxe notariale, comisioane etc.

Proprietăți recomandate

Detalii de contact

PRIMUM

Cristi Tache Consultant Imobiliar

4.23(5 review-uri)

PRIMUM
PRO

Abonează-te la newsletter să fii primul care primește cele mai noi recomandări de proprietăți și sfaturi de la experți.

CONTACT

Creează alertă

Salvează căutarea ca să primești pe email ultimele anunțuri publicate

Apartamente cu 3 camere de vânzare în zona Medicină, Timișoara