145

Apartament 4 camere imobil nou in Timisoara

128.000 €

Plopi, Timișoara

Nr. cam.:
4
Sup. utilă:
105 mp
Etaj:
1 / 2
An constr.:
2026 (În construcție)
  • • Comision 0%
  • • Locație exactă

Descriere apartament

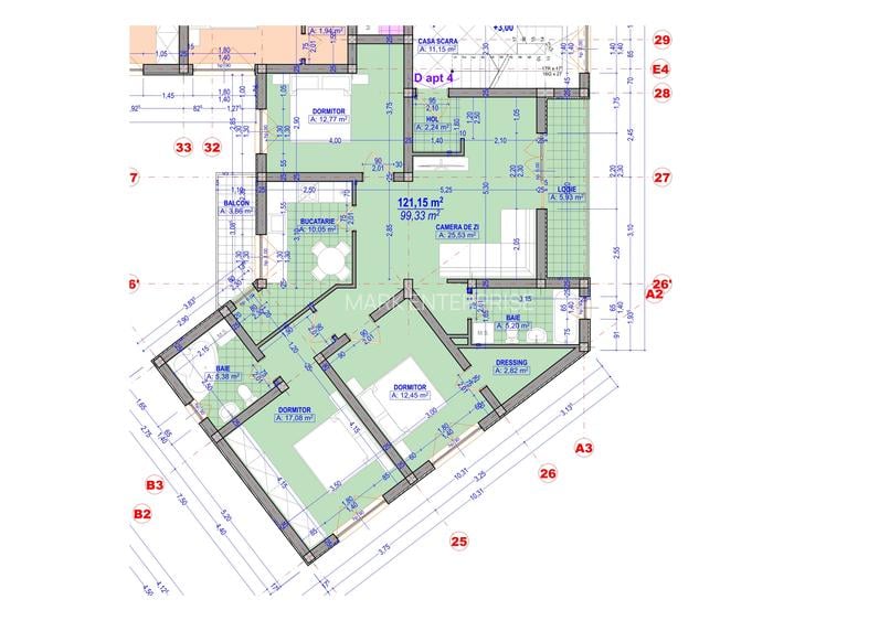
Constructor si vanzator vand apartament patru camere 135mp, in imobil nou construit , situat la etajul 1, compus din trei dormitoare, living, doua bai, bucatarie inchisa , doua dresing, trei balcoane in suprafata de 30 mp si loc de parcare, situat in Timisoara str. General Magheru , avand carte funciara pe Timisoara. Imobilul este construit din fundatii beton ,stalpi si grinzi beton,caramida portanta Porotherm de 25 cm,izolatie exterioara cu polistiren Knauf de 10 cm si densitate 80. Interior pereti si tavane tencuit , incalzire in pardoseala, centrala termica pe gaz in condensatie, gresie italia calitate superioara in hol, bai, bucatarie si terasa, parchet in living si dormitoare, faianta italia bai si bucatarie , baterii Kludi , obiecte sanitare GSG italia , vopsea lavabile Caparol , instalatii electrice Gewis , fibra optica pt intenet si tv,interfon, usi interioare lemn,usa intrare metalica cu inchidere in 12 puncte, geamuri termopan PVC Salamander 5 randuri. Termenul de predare este decembrie 2026. Pretul apartamentului porneste de la 128.000 euro. Pentru mai multe detalii nu ezitati sa ne contactati la nr sau pe pagina
Citește mai mult Citește mai puțin
Confort lux Decomandat 1 Balcon / Terasă / Logie Grădină Piscină Curte comună Aer condiționat Centrală proprie Încălzire prin pardoseală 1 Parcare

Detalii apartament

ID anunț: XFEF00003 Copiat! 242747738 Copiat!
Actualizat în: 27 Aprilie 2026
Suprafață utilă totală: 114 mp
Suprafață construită: 140 mp
Nr. bucătării: 1
Nr. băi: 2
Structură rezistență: Cărămidă
Tip imobil: Bloc de apartamente
Tip tranzacție: De vânzare prin dezvoltator
Regim înălțime: P+2E
Modalitate de plată: Cash sau Credit

Utilități

Destinație
Rezidențial
Pereți
Faianță Vopsea lavabilă
Podele
Parchet
Ușă intrare
Metal
Uși interior
Lemn
Izolații termice
Exterior
Ferestre cu geam termopan
PVC
Contorizare
Contor gaz Apometre
Diverse
Telecomandă poartă acces auto
Alte spații utile
Terasă
Facilități imobil
Spații agrement Piscină exterioară Interfon
Utilități
Curent Apă Canalizare Gaze CATV Telefon Telefon internațional
Internet
Fibră optică
Servicii imobil
Supraveghere video
Amenajare străzi
Asfaltate Iluminat stradal
Comision
0%

Certificat energetic:

Clasa energetică: A

Puncte de interes

Mijloace transport
bus-station
Parcului
Stații autobuz aprox. 274 m
bus-station
Statie Scoala Generala Cartier Plopi A21
Stații autobuz aprox. 377 m
bus-station
Scoala Plopi
Stații autobuz aprox. 380 m
bus-station
Calistrat Hogas
Stații autobuz aprox. 415 m
Școală
school
Scoala Gimnaziala Plopi
Școli aprox. 346 m
school
Scoala Generala nr. 4 - Plopi
Școli aprox. 347 m
kindergarten
Gradinita Program Prelungit Nr. 5
Gradinițe aprox. 1015 m
kindergarten
Gradinita Program Normal Nr. 20
Gradinițe aprox. 1587 m
Recreere
sports-ground
Stadionul Tricoul 1 Iunie
Terenuri sport aprox. 273 m
restaurant
OFICIALS TITANIC
Restaurant aprox. 607 m
park
Parc
Parcuri aprox. 1461 m
sports-ground
Teren Fotbal
Terenuri sport aprox. 1472 m

Istoricul prețurilor

Acces la informații premium după autentificare
Login Gratuit

Detalii despre preț și costuri

Prețul pe piață

Preț cerut: 128.000 €

Preț min. zonă
Preț max. zonă

84% dintre proprietățile similare ca zonă și nr. camere au prețul cerut mai mare. mai multe...

Bine de știut: prețul unei proprietăți este influențat și de alte caracteristici, cum ar fi: vechime, localizare, vecinătăți, suprafață, compartimentare, amenajări, dotări, etc. mai puțin...

Acces la informații premium după autentificare
Login Gratuit

Costuri cu achiziția

Fără credit
Credit ipotecar
Noua casă

i

Costuri adiționale mai puțin știute la achiziție: taxe notariale, comisioane etc.

Acces la informații premium după autentificare
Login Gratuit

Proprietăți similare

Apartament cu 2 camere semidecomandat în Complex Studențesc
130.680 €
Timișoara, Complex Studențesc
2 camere
40 mp
Etaj 8
Apartament cu 3 camere în Plopi
134.990 €
Timișoara, Plopi
3 camere
80 mp
Parter / 2
Apartament cu 3 camere semidecomandat în Plopi
115.990 €
Timișoara, Plopi
3 camere
72 mp
Etaj 2

Detalii de contact

MARK ENTERPRISE

Schwarz Christoph Johannes

MARK ENTERPRISE

Abonează-te la newsletter să fii primul care primește cele mai noi recomandări de proprietăți și sfaturi de la experți.

Feedback apel

CONTACT

Creează alertă

Salvează căutarea ca să primești pe email ultimele anunțuri publicate

Apartamente cu 4+ camere de vânzare în zona Plopi, Timișoara