6

OPORTUNITATE | Apartament la Casa | 160 MP+Pod | Mehala | Comision 0%

150.000 €

Mehala, Timișoara

Nr. cam.:
6
Sup. utilă:
160 mp
Etaj:
1 / 2
An constr.:
1985 (Există)
  • • Comision 0%
  • • Exclusivitate
  • • Locație exactă
  • • Vizionare prin apel video

Descriere apartament

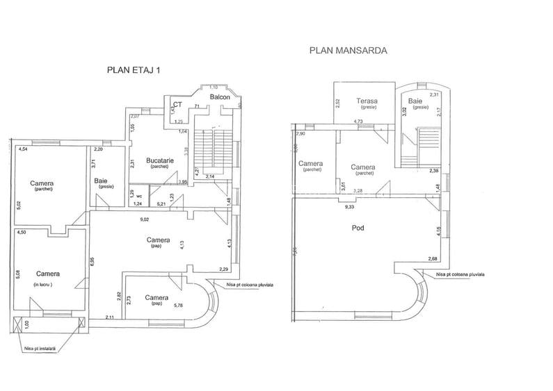
De Vanzare | Apartament la Casa | Etaj + Mansarda + Pod | 160 mp + 64 mp Pod | Zona Mehala | Comision 0% Situat in zona Mehala, pe strada Horia 33, Timisoara, acest imobil ofera mai mult decat o locatie privilegiata. Reprezinta o oportunitate reala de investitie intr-o zona deja bine dezvoltata si cautata, la un pret foarte atractiv care permite un buget generos pentru renovare si personalizare. Apartamentul beneficiaza de acces usor si rapid catre toate punctele de interes, fiind pozitionat intr-o zona linistita de case, plina de spatii verzi si retrasa fata de bulevardele aglomerate, dar cu conectivitate excelenta atat spre centrul orasului, cat si spre iesirea din Timisoara – solutia ideala pentru o familie sau pentru un investitor care doreste sa valorifice potentialul imobilului. Localizare: - Adresa: Strada Horia nr. 33, Mehala, Timisoara - Proximitate: Mijloace de transport in comun, Profi, Gradinita, Scoala Generala 19 si Liceul Tehnologic, Parcul Avram Iancu, Biserica Inaltarea Domnului si Sectia 4 de Politie Caracteristici si Dotare: - Suprafata: 160 mp + pod de aproximativ 64 mp (inaltime ~3.4 m) - Structura: Casa formata din 2 imobile cu acces separat - Semidecomandat - Locuibil, dar necesita renovare atat interior cat si fatada - An constructie: 1985, finisat la inceputul anilor 2000 - Se preda semi-mobilat - Termen de predare: aproximativ 3 luni de la semnare Compartimentare: - Parter: Acces la scara interioara + spatiu de depozitare - Etaj 1: Hol de acces, Living, Bucatarie inchisa, 3 Dormitoare (dintre care unul cu balcon – la stadiul de rosu/caramida), Baie, WC serviciu - Mansarda: Camera cu terasa, Camera, Baie cu cabina de dus - Pod spatios, usor accesibil prin scara interioara, cu potential mare de transformare in spatiu locuibil suplimentar Date financiare: - Pret: €150 000, negociabil - Se accepta plata doar din surse proprii - COMISION 0% Pentru detalii suplimentare sau programarea unei vizionari, va stam la dispozitie cu drag! Realtor Membru APAIR: Ibrahim Shiblak 📸Cosmopolitan Media #Timisoara #Ocazie #Oportunitate #Mehala #RealEstate #Apartament #devanzare #Imobiliare #cosmopolitanproperties #cosmopolitanmedia #Comision0
Citește mai mult Citește mai puțin
Confort 1 Semidecomandat Parțial mobilat 1 Balcon / Terasă / Logie Aer condiționat Calorifere Centrală proprie Sobă/teracotă Necesită renovare

Detalii apartament

ID anunț: XFEO00018 Copiat! 275438130 Copiat!
Actualizat în: 30 Mai 2026
Suprafață construită: 250 mp
Nr. bucătării: 1
Nr. băi: 3
Structură rezistență: Cărămidă
Tip imobil: Casă/Vilă
Tip tranzacție: De vânzare prin agent
Regim înălțime: P+2E+M
Nr. terase: 1
Modalitate de plată: Cash sau Credit

Utilități

Pereți
Vopsea lavabilă
Podele
Gresie Parchet
Ușă intrare
PVC
Uși interior
Lemn
Izolații termice
Exterior
Ferestre cu geam termopan
PVC
Contorizare
Apometre Contor gaz
Bucătărie
Parțial mobilată Parțial utilată
Electrocasnice
Aragaz Frigider Hotă
Diverse
Scară interioară Șemineu
Alte spații utile
WC Serviciu Terasă
Facilități imobil
Acoperiș
Utilități
Curent Apă Canalizare CATV Gaze Telefon
Internet
Cablu
Amenajare străzi
Iluminat stradal Mijloace de transport în comun Asfaltate
Comision
0%

Vecinătăți:

Piata Avram Iancu, Biserica Avram Iancu, Profi, Statie de autobuz, Sectia 4 Politie, Clinica Medicala,

Disponibilitate proprietate:

Aproximativ 3 luni de la semnare

Puncte de interes

Mijloace transport
bus-station
Statie Piata Avram Iancu A13
Stații autobuz aprox. 166 m
tram-station
Cetatii
Stații tramvai aprox. 402 m
trolleybus-station
Statie Miresei E6
Stații troleibuz aprox. 1318 m
train-station
Gara de Nord
Stații tren aprox. 1395 m
Școală
school
SCOALA GIMNAZIALĂ NR.19 "AVRAM IANCU"
Școli aprox. 220 m
kindergarten
Gradinita Cu Program Prelungit Nr. 9 Carla Pelz Mehala
Gradinițe aprox. 246 m
school
LICEU TEHNOLOGIC de Industrie Alimentara
Școli aprox. 428 m
university
Universitatea de Vest, Facultatea de teologie ortodoxa
Universități aprox. 484 m
Recreere
supermarket
Nova Tim
Supermarket aprox. 144 m
park
Avram Iancu Square (en)
Parcuri aprox. 183 m
sports-ground
Teren sintetic pentru fotbal
Terenuri sport aprox. 418 m
public-square
Piata Mircea Eliade
Piețe publice aprox. 1791 m

Detalii despre preț și costuri

Costuri cu achiziția

Fără credit
Credit ipotecar
Noua casă

i

Costuri adiționale mai puțin știute la achiziție: taxe notariale, comisioane etc.

Acces la informații premium după autentificare
Login Gratuit

Proprietăți similare

Apartament cu 2 camere semidecomandat în Mehala
155.782 €
Timișoara, Mehala
2 camere
52 mp
Etaj 3 / 3
Apartament cu 2 camere semidecomandat, mobilat în Mehala
139.900 €
Timișoara, Mehala
2 camere
51 mp
Etaj 1 / 3
Apartament cu 2 camere semidecomandat în Mehala
155.000 €
Timișoara, Mehala
2 camere
56,1 mp
Parter / 1

Detalii de contact

COSMOPOLITAN PROPERTIES

Ibrahim Shiblak Administrator

5.00(7 review-uri)

COSMOPOLITAN PROPERTIES

Abonează-te la newsletter să fii primul care primește cele mai noi recomandări de proprietăți și sfaturi de la experți.

Feedback apel

CONTACT

Creează alertă

Salvează căutarea ca să primești pe email ultimele anunțuri publicate

Apartamente cu 4+ camere de vânzare în zona Mehala, Timișoara