Apartament 4 camere | 99 mp | - Zona Punctele Cardinale

199.000 €

Punctele Cardinale, Timișoara

Nr. cam.:
4
Sup. utilă:
90 mp
Etaj:
Parter / 9
An constr.:
1980 (Finalizată)
  • • Locație aproximativă
  • • Vizionare prin apel video

Descriere apartament

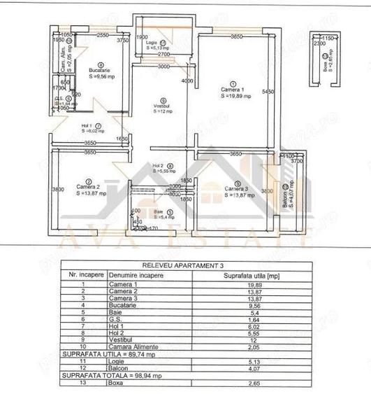
AVA ESTATE vă propune spre vânzare un apartament cu 4 camere, semidecomandat, confort 1, situat la parterul înalt al unui bloc cu 10 etaje, în zona Punctele Cardinale. Blocul se află într-o zonă excelentă, în imediata apropiere de: Piața Unirii, Bastion, Clinica Oro-Maxilo-Facială și Facultatea de Medicină și Farmacie. Apartamentul dispune de o suprafață utilă de 90 mp + 9 mp (reprezentând două balcoane). Compartimentarea este următoarea: - Hol de acces; - Bucătărie cu spațiu pentru depozitare; - Baie de serviciu; - Vestibul + logie; - Living; -Hol secundar; - Dormitor 1; - Dormitor 2 cu balcon; - Baie principală prevăzută cu geam pentru aerisire. Confortul termic se realizeaza prin intermediul centralei proprii pe gaz, iar pentru a mentine un aer racosros dispune de clima. Pretul de vanzare este de 200.000 euro + comision agentie. Va putem ajuta cu achizitionarea imobilului prin credit bancar, avand brokeri de credite ce va stau la dispozitie cu cele mai bune oferte pentru dumneavoastra, acest serviciu fiind complet gratuit. Daca v-am starnit interesul, va asteptam cu drag la o vizionare. ID AVA286
Citește mai mult Citește mai puțin
Semidecomandat 2 Balcoane / Terase / Logii

Detalii apartament

ID anunț: XF9R1008P Copiat! 275202274 Copiat!
Actualizat în: 05 Martie 2026
Suprafață utilă totală: 90 mp
Suprafață construită: 99 mp
Nr. băi: 2
Structură rezistență: Altele
Tip imobil: Bloc de apartamente
Regim înălțime: P+9E

Utilități

Destinație
Rezidențial

Puncte de interes

Mijloace transport
bus-station
Bastion
Stații autobuz aprox. 27 m
trolleybus-station
Statie Bastion T11, T17
Stații troleibuz aprox. 108 m
tram-station
Statie Hotel Continental Tv1, Tv2, Tv4, Tv6
Stații tramvai aprox. 251 m
train-station
Gara de Est
Stații tren aprox. 1255 m
Școală
kindergarten
Gradinita Program Prelungit Nr. 33
Gradinițe aprox. 191 m
university
Universitatea de Medicina si Farmacie Victor Babes
Universități aprox. 200 m
kindergarten
Gradinita Program Prelungit Nr. 6
Gradinițe aprox. 206 m
school
Colegiul Național "Ana Aslana
Școli aprox. 232 m
Recreere
park
Parc
Parcuri aprox. 169 m
public-square
Piata Tepes Voda
Piețe publice aprox. 219 m
supermarket
Bega Shopping Center
Supermarket aprox. 388 m
mall
Kappa Centrul Comercial
Mall aprox. 1166 m

Detalii despre preț și costuri

Prețul pe piață

Preț cerut: 199.000 €

Preț min. zonă 88.800 €
Preț max. zonă 285.000 €

91% dintre proprietățile similare ca zonă și nr. camere au prețul cerut mai mic. mai multe...

Bine de știut: prețul unei proprietăți este influențat și de alte caracteristici, cum ar fi: vechime, localizare, vecinătăți, suprafață, compartimentare, amenajări, dotări, etc. mai puțin...

Costuri cu achiziția

Fără credit
9.734 RON
Credit ipotecar
11.691 RON
Noua casă
1.154 RON+ taxe notariale

i

Costuri adiționale mai puțin știute la achiziție: taxe notariale, comisioane etc.

Proprietăți similare

Apartament cu 4 camere semidecomandat în Punctele Cardinale
199.000 €
Timișoara, Punctele Cardinale
4 camere
89 mp
Etaj 1
Apartament cu 3 camere decomandat în Punctele Cardinale
199.990 €
Timișoara, Punctele Cardinale
3 camere
90 mp
Parter
Apartament cu 3 camere semidecomandat în Central
185.000 €
Timișoara, Central
3 camere
75 mp
Etaj 2

Detalii de contact

AVA REAL ESTATE

Andrasi Valentin Manager

AVA REAL ESTATE
PRO

Abonează-te la newsletter să fii primul care primește cele mai noi recomandări de proprietăți și sfaturi de la experți.

CONTACT

Creează alertă

Salvează căutarea ca să primești pe email ultimele anunțuri publicate

Apartamente cu 4+ camere de vânzare în zona Punctele Cardinale, Timișoara