Va propunem spre vanzare un Spatiu cu Alta Dstinatie in zona Simion Barnutiu -Telegrafului - Lorena, SAD ce este cu destinatia de Cabinet Madicina de Familie.
Cabinetele sunt functionale in acest moment si sunt dotate si compartimentate dupa toate normele in vigoare ceea ce permite potentialului cumparator sa desfasoare acelasi tip de activitate sau chiar unui investitor sa aiaba in chirie acest domeniu de activitate.
Avand in evdere procedurile tot mai complicate si limitarea SAD-urilor pe oras, acest spatiu ofera posibilitatea inceperii activitatii sau chiar continuarea ei in acest domeniu.
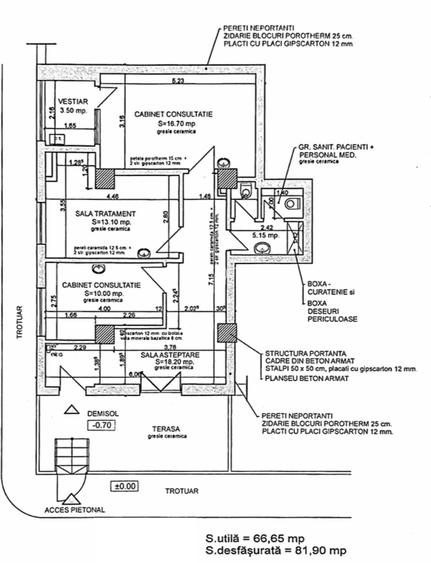
Compartimentarea formata din din 2 |cabinete consultatie, sala de tratament, sala de asteptare, vestiar, grup sanitar pacienti, grup sanitar personal medical, boxa curatenie si deseuri periculoase, hol si tersa, ca si in RLV-ul atasat.
71%dintre proprietățile similare ca zonă și nr. camere au prețul cerutmai mic.
mai multe...
Bine de știut: prețul unei proprietăți este influențat și de alte caracteristici, cum ar fi: vechime, localizare, vecinătăți, suprafață, compartimentare, amenajări, dotări, etc.
mai puțin...
Insight premium disponibil după login
Costuri cu achiziția
Fără credit
€
Credit ipotecar
€
Noua casă
€
i
Costuri adiționale mai puțin știute la achiziție: taxe notariale, comisioane etc.
Sediul central - Timișoara
Bulevardul Victor Babeș nr. 2, 300230, Timișoara, România
Tel: +40.374.40.44.98 / Fax: +40.256.401.179
Email: suport@imobiliare.ro
Luni - Vineri 08:00 - 20:00
Punct de lucru - București: Iride Business Park, Bld. Dimitrie
Pompeiu 9-9A, Clădirea B2B,
020335, Sector 2, București, România
CONTACT
Sediul central - Timișoara
Bulevardul Victor Babeș nr. 2, 300230, Timișoara, România
Tel: +40.374.40.44.98 / Fax: +40.256.401.179
Email: suport@imobiliare.ro
Luni - Vineri 08:00 - 20:00
Punct de lucru - București: Iride Business Park, Bld. Dimitrie
Pompeiu 9-9A, Clădirea B2B,
020335, Sector 2, București, România
Sună acum și cere detalii sau programează o vizionare.
Cere detalii prin email
*
*
*
*
Stații troleibuz
Stații autobuz
Stații tramvai
Stații tren
Școli
Gradinițe
Universități
Supermarket
Mall
Parcări
Terenuri sport
Parcuri
Piețe publice
Farmacie
Spital
Bar
Restaurant
Pub
Cafenea
Bancă
Statie Renasterii T11
aprox.
186 m
Statie Samuil Micu T11
aprox.
378 m
Statie Baader T17
aprox.
852 m
Statie Politia Jud. Timis T11, T17
aprox.
1152 m
Statie Arena Aquasport T11
aprox.
1157 m
Statie Bastion T11, T17
aprox.
1710 m
Statie Oituz T11, T17
aprox.
1941 m
Renasterii
aprox.
211 m
Samuil Micu
aprox.
309 m
Samuil Micu
aprox.
346 m
Statie General V. Economu T11, E4, M30, M35 retur
aprox.
382 m
V. Economu
aprox.
389 m
Statie General V. Economu T11, E4, M30, M35
aprox.
467 m
V. Economu
aprox.
467 m
Piata Badea Cartan
aprox.
583 m
Statie Badea Cartan T11, M35, M30, E4
aprox.
608 m
Statie Lalelelor A28
aprox.
615 m
Telegrafului
aprox.
617 m
Matasarilor
aprox.
622 m
Statie Matasarilor A28
aprox.
626 m
Statie Piata Badea Cartan A46
aprox.
656 m
Statie Uzinei A28
aprox.
688 m
V. Economu
aprox.
437 m
Statie General V. Economu Tv1, Tv2
aprox.
437 m
V. Economu
aprox.
437 m
Lalelelor
aprox.
546 m
Statie Lalelelor Tv1, Tv2
aprox.
564 m
Statie Arena Electrica retur Tv1, Tv2
aprox.
569 m
Statia Spital Victor Babes Tv1, Tv2
aprox.
626 m
Piata Badea Cartan
aprox.
647 m
Statie Badea Cartan Tv1, Tv2
aprox.
665 m
UMT
aprox.
683 m
Statie UMT Tv1, Tv2
aprox.
683 m
UMT
aprox.
709 m
Statie Sarmisegetuza Tv1, Tv2
aprox.
748 m
Statia Meteo
aprox.
778 m
Statia Meteo Tv1, Tv2
aprox.
814 m
Timisoara East Railway station area (en)
aprox.
619 m
Gara de Est
aprox.
840 m
Colegiul Tehnic Regele Ferdinand I
aprox.
161 m
COLEGIUL TEHNIC "REGELE FERDINAND I " - Grup Scolar Energetic
aprox.
217 m
Grup Scolar Tudor Tanasescu
aprox.
302 m
COLEGIUL TEHNIC "REGELE FERDINAND I "
aprox.
312 m
Scoala Gimnaziala nr. 21 Vicentiu Babes
aprox.
537 m
Scoala cu clasele I-VIII nr. 21 "Vincentiu Babes"
aprox.
544 m
Cladire Vest
aprox.
580 m
Scoala Gimnaziala nr. 5
aprox.
849 m
Scoala Generala nr. 5
aprox.
870 m
Liceul Teoretic William Shakespeare
aprox.
1201 m
ȘCOALA GIMNAZIALĂ NR.1
aprox.
1286 m
Scoala Gimnaziala nr. 1
aprox.
1295 m
Scoala Cu Clasele I - VIII Rudolf Walther
aprox.
1321 m
Scoala Generala nr 16 (Take Ionescu)
aprox.
1492 m
Scoala Gimnaziala nr. 16
aprox.
1495 m
SoFi Day Care
aprox.
171 m
Grădinița Program Normal Nr. 16
aprox.
304 m
Gradinita Program Prelungit Nr. 48
aprox.
779 m
Gradinita Program Prelungit Nr. 44
aprox.
783 m
Gradinita cu program prelungit nr. 44
aprox.
783 m
Gradinita Program Prelungit Nr. 16
aprox.
991 m
Gradinita Program Normal Nr. 5
aprox.
1115 m
Gradinita Gimini
aprox.
1121 m
Gradinita particulara Children Care Center
aprox.
1204 m
Gradinita Program Saptamanal Rudolf Walther
aprox.
1267 m
Gradinita Program Prelungit I.M.
aprox.
1329 m
Gradinita nr. 22 / Cresa nr. 7
aprox.
1391 m
Gradinita Program Normal Nr. 9
aprox.
1412 m
Gradinita Program Prelungit Nr. 22
aprox.
1429 m
Gradinita Program Normal Nr. 4
aprox.
1577 m
Facultatea de Economie si de Administrarea a Afacerilor
aprox.
1505 m
Facultatea de Economie și de Administrare a Afacerilor
aprox.
1514 m
U.M.F. Catedra de Farmacologie
aprox.
1613 m
Cladire a UMF Timisoara
aprox.
1619 m
Centrul de Microchirurgie si Chirurgie Laparoscopica 'Pius Branzeu'
aprox.
1638 m
Universitatea Mihai Eminescu
aprox.
1663 m
Universitatea de Medicina si Farmacie Victor Babes
aprox.
1684 m
Universitatea de Medicina
aprox.
1696 m
Universitatea Tibiscus
aprox.
1827 m
Universitatea de Medicina si Farmacie Victor Babes
aprox.
1931 m
U.M.F. Medicină Dentară
aprox.
1938 m
Profi City
aprox.
308 m
Profi City Dorobantilor
aprox.
545 m
Kaufland
aprox.
733 m
Profi
aprox.
782 m
Profi str. Dacilor
aprox.
806 m
Profi
aprox.
918 m
Profi City
aprox.
1233 m
Minimarket Noroc
aprox.
1544 m
Profi City
aprox.
1572 m
Kapa Shopping Center
aprox.
1750 m
Lidl
aprox.
1841 m
Galeria 1
aprox.
1860 m
Profi City
aprox.
1989 m
Kappa Centrul Comercial
aprox.
1750 m
Parcare particulara
aprox.
180 m
Spatiu ideal pentru amenajare parc, parcari, teren fotbal (propunere)
aprox.
420 m
Parcare
aprox.
535 m
Parcare pentru clienti
aprox.
636 m
Parcare
aprox.
642 m
Parcare
aprox.
691 m
Parcare pentru clienti
aprox.
720 m
Parcare
aprox.
742 m
Parcare
aprox.
910 m
Parcare
aprox.
910 m
Parcare
aprox.
930 m
Parcare
aprox.
930 m
Parcare
aprox.
985 m
Parcare Baba Dochia
aprox.
985 m
Parcare
aprox.
1133 m
Teren sportiv
aprox.
263 m
Teren sportiv
aprox.
408 m
Teren sportiv
aprox.
426 m
Teren sportiv
aprox.
450 m
Teren sportiv
aprox.
455 m
Teren sportiv
aprox.
529 m
Teren sportiv
aprox.
564 m
Teren Fotbal
aprox.
1022 m
Teren Baschet
aprox.
1033 m
Tennis Club Millenium
aprox.
1366 m
Teren de Tenis
aprox.
1488 m
Teren sportiv
aprox.
1497 m
Teren de Tenis
aprox.
1504 m
Teren de Tenis
aprox.
1536 m
Teren Fotbal
aprox.
1613 m
Parc
aprox.
375 m
Parc
aprox.
384 m
Park (en)
aprox.
385 m
Parc
aprox.
529 m
Parc
aprox.
565 m
Parc pentru copii sub 14 ani
aprox.
596 m
Parcul Uzinei
aprox.
857 m
Parcul Uzinei
aprox.
861 m
Parc
aprox.
915 m
Parc
aprox.
929 m
Parc
aprox.
931 m
Parcul Fratii Constantin
aprox.
1001 m
Parc
aprox.
1007 m
Piata Romanilor
aprox.
1061 m
Parc
aprox.
1124 m
Piata General Virgil Economu
aprox.
399 m
Piata Sarmisegetuza
aprox.
706 m
Piata Traian
aprox.
938 m
Piata Romanilor
aprox.
1097 m
Piata Aurel Vlaicu
aprox.
1194 m
Piata Corneliu Micloși
aprox.
1225 m
Farmacie
aprox.
214 m
Farmacia Dona 140
aprox.
413 m
Sensiblu
aprox.
555 m
Farmacie
aprox.
565 m
Farmacia Dona
aprox.
677 m
Farmacia Catena
aprox.
678 m
Kovacs
aprox.
793 m
Farmacia Dona
aprox.
997 m
Farmacie
aprox.
1254 m
Farmacie
aprox.
1363 m
Remedio
aprox.
1573 m
Clinica analize medicale
aprox.
319 m
Spitalul Clinic de Boli Infectioase si Pneumoftiziologie Dr. Victor Babes
aprox.
434 m
Spitalul Victor Babeș
aprox.
449 m
Spitalul de cardiologie
aprox.
502 m
Institutul de Boli Cardiovasculare
aprox.
520 m
Cabinet Dr. Iana Elena Cristina
aprox.
874 m
Cabinet Radiografie Dentara
aprox.
904 m
Medici's
aprox.
1536 m
Centrul Medical DALMED
aprox.
1586 m
Policlinica Sanatatea
aprox.
1599 m
Clinica First Medical
aprox.
1757 m
Ambulatoriu Integrat Policlinica 3
aprox.
1823 m
Clinica de Chirurgie Orala si Maxilo-Faciala
aprox.
1826 m
Medcom CBS Hospital
aprox.
1833 m
Clinica de Oto-Rino-Laringologie
aprox.
1875 m
Bar Davinci
aprox.
217 m
Orizont Club
aprox.
1197 m
MGM Bastion
aprox.
1984 m
Boca Junior
aprox.
240 m
Strelitia
aprox.
248 m
Marele Restaurant Chinezesc
aprox.
398 m
Pensiunea "La Mitica"
aprox.
481 m
Cofetaria Codrina
aprox.
540 m
Restaurant UMT
aprox.
552 m
Cercul de Foc
aprox.
593 m
Lepa Brena
aprox.
850 m
Restaurant Burgund
aprox.
912 m
Restaurant Camping
aprox.
984 m
Pizza Nuova Mamma Mia
aprox.
985 m
Pizzeria Mamma Mia
aprox.
1009 m
Camping International
aprox.
1025 m
Leonardo da Vinci
aprox.
1035 m
Ramina
aprox.
1084 m
Factory Pub
aprox.
1278 m
Wake Up
aprox.
1740 m
Porky's
aprox.
1910 m
Oxford Pub & Restaurant
aprox.
1931 m
Millenium Cafe
aprox.
1588 m
ING
aprox.
237 m
BCR
aprox.
238 m
OTP Bank
aprox.
244 m
BRD
aprox.
266 m
Raiffeisen Bank
aprox.
285 m
Alpha Bank
aprox.
327 m
Bancpost
aprox.
340 m
EximBank
aprox.
346 m
Banca Romaneasca
aprox.
354 m
Banca Transilvania
aprox.
381 m
CEC Bank
aprox.
1188 m
BRD
aprox.
1428 m
Intesa San Paolo
aprox.
1439 m
ING
aprox.
1519 m
Ing Bank
aprox.
1589 m
La capitolul mijloace de transport în comun, de menționat ar fi autobuzul 46, care circulă pe Strada Mihail Kogălniceanu, troleul 11, care merge pe Strada Simion Bărnuțiu, dar și tramvaiele 1 și 5, care circulă pe Calea Dorobanților, la marginea estică a cartierului, la limita cu zona Crișan-Modern. Deși nu au la dispoziție o rețea unitară de piste de bicicletă, iubitorii de ciclism au totuși acces la o astfel de amenajare pe Strada Simion Bărnuțiu (ca și pe Bulevardul Take Ionescu).
În ceea ce privește oportunitățile de educație, zona Simion Bărnuțiu-Dorobanților nu este, în sine, foarte bine reprezentată. Dintre instituțiile de învățământ din cartier, demne de menționat ar fi Liceul de Arte Plastice (de pe Strada Lorena, nr. 35), dar și Colegiul Tehnic "Regele Ferdinand I" (de pe Strada Renașterii, nr. 24A). Ca și Tipografilor, cartierul beneficiază, însă, de proximitatea zonei centrale, unde pot fi găsite atât licee de prestigiu (printre care Colegiul Tehnic "Emaniul Ungureanu", Colegiul Pedagogic "Carmen Sylva", Colegiul Național "Constantin Diaconovici Loga"), cât și o importantă instituție de învățământ superior, anume Universitatea de Medicină și Farmacie "Victor Babeș" (amplasată pe Strada Eftimie Murgu, nr. 2). Mai jos poți vedea în detaliu ce unități de învățământ există în Simion Bărnuțiu-Dorobanților:
La capitolul retail, Simion Bărnuțiu-Dorobanților oferă destule opțiuni locuitorilor săi; nevoile acestora sunt deservite, astfel, atât de o serie de magazine de dimensiuni mai mici, cât și de un hipermarket din rețeaua Kaufland, amplasat aproape de "granița" cu Tipografilor (pe Strada Mihail Kogălniceanu, nr. 11-15). Pe Strada Simion Bărnuțiu, nr. 28, se găsește și un Lidl. De menționat este, desigur, și faptul că acest cartier beneficiază și de oportunitățile de shopping oferite de zona Cetate. Nu în ultimul rând, timișorenii din Simion Bărnuțiu-Dorobanților pot ajunge și în Lipovei, unde, foarte aproape de limita cu centrul, se găsește o adevărată zonă comercială, în care este inclus și Iulius Mall.
În Simion Bărnuțiu-Dorobanților, principala arteră de circulație este cea care dă (cel puțin în parte) și numele cartierului, anume Strada Simion Bărnuțiu; aceasta continuă Bulevardul Take Ionescu, făcând, astfel, legătura atât cu zona Cetate, cât și cu Tipografilor. De menționat este și Strada Aristide Demetriade, aflată la limita cu Lipovei, dar și Strada Mihail Kogălniceanu, care străbate cartierul de la nord la sud. La fel ca locuitorii celorlalte cartiere timișorene, cei din Simion Bărnuțiu-Dorobanților se pot interesa cu privire la închirierea unui loc de parcare de la autoritățile locale la sediul Primăriei (care se găsește chiar în zona Cetate, pe Bulevardul Constantin Diaconovici Loga, nr. 1).
La fel ca cei din Tipografilor, locuitorii zonei Simion Bărnuțiu-Dorobanților beneficiază de toate facilitățile de recreere oferite de centrul orașului, atât parcuri (Parcul Botanic, Parcul Catedralei, Parcul Civic, Parcul "I.C. Brătianu", Parcul "Regina Maria", Parcul Rozelor, Parcul Copiilor "Ion Creangă"), cât și obiective de interes cultural și turistic (Bastionul Maria Theresia, Palatul Dicasterial, Muzeul de Artă, Casa Ormos, Casa Prenner, Casa Solderer sau Casa Krautwaschl). Pe lângă acestea, însă, cartierul dispune și de două importante puncte de interes pentru iubitorii de sport "“ este vorba despre Stadionul Electrică (de pe Strada Renașterii, nr. 41), dar și despre Baza Sportivă UMT, care include și un ștrand (pe Strada Avram Imbroane, nr. 56). În cazul în care ești iubitor de artă, vei avea parte de o serie de evenimente culturale organizate la Casa Isho, de pe Bulevardul Take Ionescu).
Din punctul de vedere al accesului la servicii medicale, zona Simion Bărnuțiu-Dorobanților stă destul de bine "“ și asta nu doar datorită apropierii de centrul orașului. Asta pentru că între granițele acestui cartier se găsesc două spitale de stat, anume Institutul de Boli Cardiovasculare Timișoara (pe Strada Gheorghe Adam, nr. 13A) și, respectiv, Spitalul Clinic de Boli Infecțioase și Pneumoftiziologie "Dr. Victor Babeș" (pe Strada Gheorghe Adam, nr. 13). La capitolul servicii medicale particulare, de menționat ar fi Centrul Medical Explomed, situat pe Strada Lugojului, nr. 39A. Acesta oferă o varietate de specializări medicale, printre care medicină de familie, medicina muncii, pediatrie, oftalmologie, ORL, psihiatrie, cardiologie și chirurgie generală. De asemenea găsim aici o clinică privată din cadrul Rețelei Regina Maria, amplasată pe Str. Simion Bărnuțiu, nr. 60. Pe harta de mai jos găsești localizarea exactă a spitalelor și clinicilor din zonă:
Printre fast food-urile, bistro-urile și cafenelele de cartier, regăsim aici și câteva pizzerii, între care Pizzeria Sapori, de pe Strada Simion Bărnuțiu, nr. 20. În cazul în care îți place bucătăria chinezească, vei găsi pe strada Simion Bărnuțiu, nr. 22 Restaurantul Marele Zid Chinezesc, unul dintre localurile cu tradiție din oraș. În cazul în care dorești și alte meniuri mai diversificate, ai posibilitatea să ajungi relativ repede în zona Cetății, sau chiar în zona Lipovei, unde se află Iulius Mall și Iulius Town, locații în care, cu siguranță, vei găsi un restaurant pe gustul tău.
Unitățile bancare și bancomatele din această zonă sunt concentrate de-a lungul străzii Simion Bărnuțiu. Astfel, vei găsi aici Agenția OTP Bank, o sucursală ING Bank, ambele situate pe str. Simion Bărnuțiu, nr. 54, și o sucursală Raiffeisen Bank, pe aceeași stradă, la numărul 54. Consultă harta și află unde sunt localizate și alte bănci sau ATM-uri în zona de care ești interesat.
Înainte să pleci...
Ești sigur că ai văzut și aceste proprietăți?
130.000 €
Timișoara, Simion Bărnuțiu
3 camere
70 mp
Etaj 3
129.800 €
Timișoara, Simion Bărnuțiu
3 camere
69 mp
Etaj 3
125.000 €
Timișoara, Simion Bărnuțiu
3 camere
66 mp
Demisol
Creează alertă
Salvează căutarea ca să primești pe email ultimele anunțuri publicate
Apartamente cu 2 camere de vânzare în zona Simion Bărnuțiu, Timișoara
Cere detalii prin email
*
*
*
*
Detaliile tale de contact vor fi partajate cu Red 1