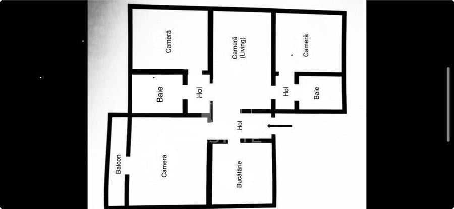
Apostu Estate va propune spre vanzare un apartament cu 4 camere si 2 bai situat in zona Soarelui .
Apartamentul are o suprafata generoasa de 86 mp si este compartimentat astfel :
-Hol de acces
-Bucatarie separata
-Dormitor cu balcon
-Baia principala
-2 Dormitoare
-Living
- Baie de servici
Pe nivel sunt 2 apartamente, vederea apartamentului este pe trei parti si confortul termic este asigurat de centrala proprie pe gaz.
– constructie solida, din placi de beton prefabricate, an de punere in folosinta 1982
– proprietatea dispune de ferestre cu geam termopan si rulouri metalice
– exista locuri de parcare amenajate in imprejurul blocului .
Vecinatati:
– Carefour Market ,Pizza Thalia , Petrom , Zone Cafe , Pub Lido .
– statie BUS E2 , 16 .Tramvai 9.
– Spitalul Judetean , Casa Austria , Maternitatea Bega
– Scoala generala nr 30 , Liceul Waldorf , Gradinita Waldorf , Gradinita pp11 .
–Parcul Padurice , Parcul Sudului
-Ideal pentru familii cu copii. In spatele blocului este un parc de joaca .
Va asteptam cu drag la o vizionare chiar astazi.
51%dintre proprietățile similare ca zonă și nr. camere au prețul cerutmai mic.
mai multe...
Bine de știut: prețul unei proprietăți este influențat și de alte caracteristici, cum ar fi: vechime, localizare, vecinătăți, suprafață, compartimentare, amenajări, dotări, etc.
mai puțin...
Costuri cu achiziția
Fără credit
7.708 RON
Credit ipotecar
9.415 RON
Noua casă
853 RON+ taxe notariale
i
Costuri adiționale mai puțin știute la achiziție: taxe notariale, comisioane etc.
Calculul ipotecarului
Proprietăți recomandate
Pornind de la căutarea ta îți recomandăm următoarele anunțuri
139.900 €
Timișoara, Soarelui
4 camere
79 mp
Etaj 3 / 4
129.900 €
Timișoara, Girocului
3 camere
75 mp
Parter
139.900 €
Timișoara, Steaua
4 camere
92 mp
Etaj 4
149.000 €
Timișoara, Soarelui
4 camere
86 mp
Etaj 2 / 4
125.000 €
Timișoara, Girocului
5 camere
105 mp
Etaj 4 / 4
127.800 €
Timișoara, Soarelui
3 camere
65 mp
Etaj 3 / 4
135.000 €
Timișoara, Girocului
4 camere
78 mp
Etaj 3 / 4
199.000 €
Timișoara, Spitalul Județean
4 camere
92 mp
Etaj 1
127.990 €
Timișoara, Soarelui
3 camere
65 mp
Etaj 3 / 4
Detalii de contact
Acestă agenție te poate ajuta să obții o soluție de finanțare potrivită nevoilor tale. Solicită-i informații suplimentare.
Sediul central - Timișoara
Bulevardul Victor Babeș nr. 2, 300230, Timișoara, România
Tel: +40.374.40.44.98 / Fax: +40.256.401.179
Email: suport@imobiliare.ro
Luni - Vineri 08:00 - 20:00
Punct de lucru - București: Iride Business Park, Bld. Dimitrie
Pompeiu 9-9A, Clădirea B2B,
020335, Sector 2, București, România
CONTACT
Sediul central - Timișoara
Bulevardul Victor Babeș nr. 2, 300230, Timișoara, România
Tel: +40.374.40.44.98 / Fax: +40.256.401.179
Email: suport@imobiliare.ro
Luni - Vineri 08:00 - 20:00
Punct de lucru - București: Iride Business Park, Bld. Dimitrie
Pompeiu 9-9A, Clădirea B2B,
020335, Sector 2, București, România
Sună acum și cere detalii sau programează o vizionare.
Cere detalii prin email
*
*
*
*
Stații autobuz
Stații troleibuz
Stații tramvai
Gradinițe
Școli
Universități
Supermarket
Parcări
Parcuri
Terenuri sport
Piețe publice
Farmacie
Spital
Bar
Restaurant
Pub
Bancă
Bulevardul Sudului
aprox.
6 m
Bulevardul Sudului
aprox.
72 m
Statie Cvartal Sudului T16, E2
aprox.
338 m
Bucla Versului
aprox.
494 m
Hotel Lido
aprox.
527 m
Venus
aprox.
688 m
Spitalul Judetean
aprox.
811 m
Statie Spitalul judetean T16, E2
aprox.
815 m
Statie Martir Ioan Stanciu T15, T19, E3
aprox.
834 m
Mures
aprox.
842 m
Statie Mures E3
aprox.
849 m
Piata Gheorghe Domasnean
aprox.
861 m
Statie Piata Gheorghe Domasneanu E2
aprox.
861 m
Mures
aprox.
903 m
Spitalul Judetean
aprox.
934 m
Statie Sudului bucla T16
aprox.
44 m
Statie Maresal C-tin Prezan bucla T15, T19
aprox.
524 m
Statie B-dul Sudului T16
aprox.
537 m
Statie Maresal C-tin Prezan T15, T19
aprox.
726 m
Bulevardul Sudului
aprox.
648 m
Bulevardul Sudului
aprox.
665 m
Statie B-dul Sudului Tv9
aprox.
672 m
Statie Spitalul judetean Tv9
aprox.
860 m
Statie Piata Gheorghe Domasneanu Tv9
aprox.
860 m
Spitalul Judetean
aprox.
880 m
Spitalul Judetean
aprox.
929 m
Statie Ghe. Domasneanu Tv4, Tv8
aprox.
929 m
Statie Spitalul judetean Tv9
aprox.
943 m
Statie Spumotim Tv4, Tv8
aprox.
980 m
Statie Calea martirilor Tv9
aprox.
1014 m
Statie Grup Scolar Electrotimis Tv4
aprox.
1032 m
Calea Martirilor
aprox.
1034 m
Calea Martirilor
aprox.
1068 m
Statie Mecatim Tv4, Tv8
aprox.
1126 m
Gradinita Program Normal Nr. 19
aprox.
267 m
Gradinita Goghita
aprox.
499 m
Gradinita Broscuta Fermecata
aprox.
553 m
Gradinita Program Prelungit Nr. 11
aprox.
555 m
Gradinita nr. 11
aprox.
662 m
Piticii din Vest
aprox.
705 m
Gradinita Program Prelungit nr.38
aprox.
961 m
Gradinita nr. 32
aprox.
1005 m
Gradinita Program Prelungit Nr. 28
aprox.
1072 m
Gradinita nr. 12
aprox.
1561 m
Gradinita Program Prelungit Nr. 12
aprox.
1584 m
Gradinita Program Normal Nr. 6
aprox.
1742 m
Gradinita Barbie
aprox.
1749 m
Gradinita Program Prelungit Nr. 1
aprox.
1786 m
Gradinita particulara Chip & Dale
aprox.
1816 m
Liceul Waldorf - atelier practic
aprox.
301 m
Scoala generala nr. 30
aprox.
388 m
Scoala Gimnaziala nr. 30
aprox.
414 m
SCOALA GIMNAZIALĂ NR.30
aprox.
420 m
Gradinita lui Larisa
aprox.
656 m
Colegiul Tehnic Azur
aprox.
883 m
COLEGIUL TEHNIC "AZUR"
aprox.
885 m
Campus scolar Colegiul Tehnic Azur
aprox.
900 m
Palatul Copiilor
aprox.
949 m
Cresa Nr.18
aprox.
1010 m
Scoala Generala nr. 25
aprox.
1118 m
Scoala Gimnaziala nr. 25
aprox.
1118 m
Scoala Iris
aprox.
1129 m
Liceul Teoretic Iris
aprox.
1129 m
COLEGIUL TEHNIC "ELECTROTIMIS"
aprox.
1162 m
Institutul de Cercetari pentru Energii Regenerabile
aprox.
1352 m
CENTRU REGIONALDE PREGATIRE PROFESIONALA PENTRU MAGISTRATI, GIROC, tIMISOARA
aprox.
1884 m
Centrul de Igiena U.M.F.
aprox.
1908 m
Laboratorul de gradul I de Gerotehnică și Căi de Comunicație Terestre
aprox.
1995 m
Departamentul de Constructii Metalice si Mecanica Constructiilor
aprox.
1997 m
Profi City
aprox.
325 m
Carrefour Market
aprox.
340 m
Billa
aprox.
559 m
Lidl
aprox.
874 m
Nova Tim
aprox.
945 m
Lidl
aprox.
967 m
Profi
aprox.
990 m
Profi
aprox.
1036 m
Profi
aprox.
1330 m
Profi
aprox.
1347 m
Carrefour Market
aprox.
1689 m
Parcare
aprox.
123 m
Parcare privata
aprox.
171 m
Parcare
aprox.
183 m
Parcare
aprox.
210 m
Parcare
aprox.
211 m
Parcare
aprox.
234 m
Parcare
aprox.
236 m
Parcare
aprox.
271 m
Parcare
aprox.
319 m
Parcare
aprox.
324 m
Parcare
aprox.
338 m
Parcare
aprox.
371 m
Parcare
aprox.
379 m
Parcare
aprox.
446 m
Parcare
aprox.
477 m
Parcul Sudului
aprox.
290 m
Parcul Sudului
aprox.
290 m
Parc
aprox.
334 m
Parcul Padurice
aprox.
361 m
Parcul Lidia
aprox.
370 m
Parc
aprox.
445 m
Parc
aprox.
681 m
Helios Sport Club
aprox.
717 m
Club Lemon
aprox.
741 m
Baza de agrement Davia-Sport
aprox.
746 m
Viitor Parc Braytim
aprox.
761 m
No Name
aprox.
793 m
Baza de agrement ISIM
aprox.
833 m
Parcul Triade
aprox.
834 m
Parcul de Sculptura, Fundatia Interart Triade
aprox.
839 m
Teren sportiv
aprox.
435 m
Teren sportiv
aprox.
468 m
Teren sportiv
aprox.
470 m
Teren sportiv
aprox.
698 m
Teren sportiv
aprox.
706 m
Teren sportiv
aprox.
730 m
Teren sportiv
aprox.
745 m
Teren sportiv
aprox.
759 m
Teren sportiv
aprox.
766 m
Teren sportiv
aprox.
797 m
Teren sportiv
aprox.
814 m
Teren sportiv
aprox.
828 m
Teren sportiv
aprox.
832 m
Teren sportiv
aprox.
832 m
Teren sportiv
aprox.
839 m
Piata Aron Cotrus
aprox.
1211 m
Help Net
aprox.
347 m
Imedas
aprox.
689 m
Farmacia HelpNet
aprox.
791 m
Farmacia Dona
aprox.
816 m
Farmacia Catena
aprox.
837 m
Catena
aprox.
890 m
Apothecaria
aprox.
929 m
Help Net
aprox.
937 m
Farmacia Dona
aprox.
1084 m
Sensiblu
aprox.
1362 m
Farmacia Granathalma
aprox.
1440 m
Dona
aprox.
1563 m
Spitalul Județean (en)
aprox.
707 m
Casa Austria Hospital (en)
aprox.
726 m
Dispensar Giratoriu Buziasului. Centru de permanenta
aprox.
929 m
Telescan
aprox.
1076 m
CLINICA DE ORTODONTIE DR. OGODESCU
aprox.
1194 m
Neuromed
aprox.
1251 m
Centrul Medical Profilaxia
aprox.
1508 m
Profilaxis
aprox.
1751 m
Cabinet Acupunctura - Dr. Claici
aprox.
1841 m
Clinica BEGA Obstetrica Ginecologie
aprox.
1900 m
Clinica Universitara de Obstetrica Ginecologie Bega
aprox.
1948 m
Cafe Saloon
aprox.
48 m
Zone Cafe
aprox.
170 m
Mateo Cafe
aprox.
863 m
Club As
aprox.
1069 m
PAGO
aprox.
1540 m
Restaurant Valery 1
aprox.
166 m
Thalia - Restaurant, blocks nr. 10-14 (en)
aprox.
410 m
Hotel Alexandra Timisoara (en)
aprox.
486 m
Cantina La Dama (en)
aprox.
681 m
Cantina DORNA
aprox.
755 m
Restaurant Dorna
aprox.
769 m
Il Peperoncino
aprox.
812 m
McDonald's
aprox.
949 m
McDonalds Timisoara McDrive (en)
aprox.
953 m
Arizona
aprox.
957 m
Enjoy
aprox.
1094 m
Zet Fast Food
aprox.
1096 m
Beraria Timisoreana
aprox.
1100 m
Al Caminetto
aprox.
1280 m
Hotel Reghina
aprox.
1331 m
Charlie's Pub
aprox.
617 m
The 80's Pub
aprox.
1176 m
BRD
aprox.
389 m
Banca Transilvania
aprox.
819 m
BRD
aprox.
823 m
Piraeus Bank
aprox.
831 m
BCR
aprox.
841 m
BCR
aprox.
945 m
Raiffeisen Bank
aprox.
1024 m
Garanti Bank
aprox.
1046 m
Bancpost
aprox.
1074 m
ING
aprox.
1083 m
Banca Romaneasca
aprox.
1096 m
Alpha Bank
aprox.
1110 m
BRD
aprox.
1137 m
CEC Bank
aprox.
1305 m
Sucursală CEC
aprox.
1309 m
Cele mai importante artere de circulație din această zonă a capitalei Banatului marchează, de fapt, "granița" cu trei dintre cartierele învecinate: este vorba despre Bulevardul Liviu Rebreanu în nord (la limita cu Buziașului și Complex-Stadion) și, respectiv, Strada Mareșal Constantin Prezan în sud (la limita cu Braytim). De menționat este și Bulevardul Sudului, care străbate cartierul de la nord la sud, făcând legătura între cele două străzi deja menționate. La capitolul mijloace de transport în comun, de menționat sunt autobuzele 16 și E2, care ajung pe Bulevardul Sudului, dar și tramvaiul 9, care circulă pe Bulevardul Liviu Rebreanu, făcând legătura cu Girocului și Buziașului. O bună soluție de transport pentru locuitorii cartierului ar fi, desigur, bicicleta "“ chiar dacă aceștia nu au la dispoziție o rețea de piste dedicate pentru aceasta. Dată fiind preponderența blocurilor din cartier, unii posesori de autovehicule pot fi interesați de închirierea unui loc de parcare de la autoritățile locale; aceștia pot afla mai multe despre procedura pe care ar trebui s-o urmeze de la sediul central al Primăriei (situat pe Bulevardul Constantin Diaconovici Loga, nr. 1).
Dintre unitățile de învățământ din cartier, de menționat ar fi Școala Gimnazială Nr. 30 (de pe Strada Aștrilor, nr. 13), dar și Liceul Waldorf Timișoara (de pe Strada Uranus, nr. 10) "“ această din urmă instituție oferind, de fapt, cursuri pentru ciclul preșcolar (grădiniță), primar, gimnazial și liceal. În materie de învățământ superior, timișorenii din Soarelui nu au la dispoziție, strict între granițele cartierului, nicio variantă de educație. Acest fapt nu reprezintă, însă, câtuși de puțin un dezavantaj "“ în condițiile în care în învecinatul Complex-Stadion se găsește Universitatea de Vest, de care aparțin peste zece facultăți reputate (printre care Arte și Design, Litere, Istorie și Teologie, dar și cea de Matematică și Informatică). Mai jos poți vedea în detaliu ce unități de învățământ există în Soarelui:
Având în vedere suprafața redusă a cartierului Soarelui, nu este deloc de mirare că aici nu se găsește niciun centru comercial de mari dimensiuni, cum ar fi un mall sau un hipermarket. Asta nu înseamnă, însă, că locuitorii zonei duc lipsă de opțiuni în materie de cumpărături (cel puțin pentru nevoile de zi cu zi). Astfel, pe lângă magazinele mai mici din cartier, aici se găsesc două supermarketuri din rețeaua Carrefour (unul pe Bulevardul Liviu Rebreanu, nr. 160, iar celălalt pe Strada Uranus, nr. 9), precum și două magazine Profi City (unul pe Strada Aștrilor, iar celălalt pe Strada Mareșal Constantin Prezan). Nu în ultimul rând, de menționat ar fi faptul că în zona Buziașului, foarte aproape de "granița" cu Soarelui, se află și un supermarket din rețeaua Lidl (magazinul fiind amplasat chiar pe Bulevardul Liviu Rebreanu, la nr. 37).
Găsirea unui loc de parcare, fie el și permanent, nu ar trebui să ridice, în general vorbind, prea mari dificultăți. Cu toate acestea, șoferii interesați pot afla mai multe despre procedura de închiriere a unui asemenea spațiu la sediul central al Primăriei.
În ciuda suprafeței sale reduse și numărului (relativ) ridicat de imobile de apartamente, cartierul Soarelui poate fi considerat drept unul dintre cele mai "verzi" din Timișoara. Pe lângă zonele de vegetație existente între blocuri, un important atu al acestuia "“ ce contribuie din plin la popularitatea sa "“ este reprezentat de Parcul Pădurice (fostul "Lidia"). Amplasat în sud-vest, în colțul format de zonele Girocului și Braytim, acesta ocupă o porțiune importantă din suprafața întregii zone. De menționat ar fi, desigur, și Parcului Sudului (amplasat cam în centrul cartierului, pe bulevardul cu același nume). Pentru amatorii de sport, parcurile deja menționate oferă o serie de oportunități pentru a face mișcare în aer liber (fie că e vorba de jogging, mers pe jos, cu rolele sau cu bicicleta). Cei care își doresc, totuși, mai mult decât atât pot apela la serviciile oferite de o sală de fitness din cartier sau se pot orienta spre facilitățile oferite de cartierele învecinate (cum ar fi Complex-Stadion).
La capitolul servicii medicale, Soarelui nu este (cel puțin strict între granițele sale) atât de bine deservit ca în alte privințe. Cu toate acestea, o unitate demnă de menționat din acest cartier ar fi Centrul Medical ABC (de pe Strada Mareșal Constantin Prezan, în apropiere de Parcul Pădurice), ce oferă specializări diverse. Un avantaj important pentru locuitorii zonei Soarelui este reprezentat, totodată, de proximitatea zonei Girocului, unde se găsește Spitalul Clinic Județean de Urgență Timișoara (situat chiar pe Bulevardul Liviu Rebreanu, nr. 156). De asemenea, în apropiere se află Serviciul Județean de Ambulanță Timiș, dar și Clinica de Chirurgie Plastică din Timișoara (secție a Spitalului Clinic Județean de Urgență). Pe harta de mai jos găsești localizarea exactă a spitalelor și clinicilor din zonă:
Găsești aici câteva restaurante, bistro-uri și pizzerii cu tradiție în oraș. Între acestea amintim restaurantul Sabres, cu specific pescăresc, care se află pe strada Craiova nr. 1. Aruncă o privire pe hartă și vezi unde vei găsi cel mai apropiat restaurant de viitoarea ta locuință.
Găsești un bancomat BRD în centrul cartierului și unul de BCR în apropierea sucursalei bancare de pe Calea Buziașului. Găsești mai multe bancomate și sucursale bancare, între care Alpha Bank, Raiffeisen Bank, Garanti Bank, ING Bank, dar și Banca Transilvania, la granița cartierului, de-a lungul străzii Arieș. Consultă harta și află unde sunt localizate și alte bănci sau ATM-uri în zona de care ești interesat.
Înainte să pleci...
Ești sigur că ai văzut și aceste proprietăți?
139.900 €
Timișoara, Soarelui
4 camere
79 mp
Etaj 3 / 4
129.900 €
Timișoara, Girocului
3 camere
75 mp
Parter
139.900 €
Timișoara, Steaua
4 camere
92 mp
Etaj 4
149.000 €
Timișoara, Soarelui
4 camere
86 mp
Etaj 2 / 4
125.000 €
Timișoara, Girocului
5 camere
105 mp
Etaj 4 / 4
127.800 €
Timișoara, Soarelui
3 camere
65 mp
Etaj 3 / 4
Creează alertă
Salvează căutarea ca să primești pe email ultimele anunțuri publicate
Apartamente cu 4+ camere de vânzare în zona Soarelui, Timișoara
Cere detalii prin email
*
*
*
*
Detaliile tale de contact vor fi partajate cu Apostu Estate
Statistici proprietate
Apartamente 4 camere de vânzare
135.000 €
Medie preț cerut la vânzare
1.626 €/mp
Medie preț cerut pe metru pătrat
650 €
Medie chirie lunară
Preț total720.994 RON (141.512 €)
Costuri cu achiziția7.708 RON
Preț de achiziție713.286 RON
Costuri cu achiziția7.708 RON
Comision agenție Întreabă agenţia
Onorariu notarial6.638 RON
Taxă înscriere OCPI1.070 RON
Preț de achiziție713.286 RON
Preț locuință713.286 RON
TVA 0%Inclus în prețul cerut
Cost total118.578 RON (23.273 €)
Avans (15%)106.993 RON
Cost achitat în prima lună2.170 RON
Costuri cu achiziția9.415 RON
Cost achitat în prima lună2.170 RON
Comision analiză dosar
400 RON - 900 RON
Taxă evaluare imobil(până la)
575 RON
Rata lunară (variabilă)3.177 RON
Asigurare anuală imobil713 RON
Arhivă electronică102 RON
Poliță PAD130 RON
Asigurare de viață/lună Costul este variabil. În funcție de banca aleasă, procentul variază între 0.0259% și 0.035% din soldul creditului.
Costuri cu achiziția9.415 RON
Comision agenție Întreabă agenţia
Onorariu notarial6.638 RON
Taxă întabulare OCPI1.070 RON
Autentificare contract credit1.707 RON
Preț de achiziție713.286 RON
Preț locuință713.286 RON
TVA 0%Inclus în prețul cerut
Preț de achiziție713.286 RON
Preț locuință713.286 RON
TVA 0%
Inclus în prețul cerut
Avans minim106.993 RON
Credit pe 30 de ani606.293 RON
Cost achitat în prima lună
Taxa evaluare imobil(până la)
575 RON
Rata lunară (variabilă)4.260 RON
Depozit colateral12.780 RON
Comision de garantare FNGCIMM59 RON
Asigurare anuală imobil713 RON
Poliță PAD130 RON
Tarif arhivă electronică102 RON
Costuri adiționale853 RON + taxe notariale
Asigurare viață și complexă (opțională)Costul este variabil. În funcție de banca aleasă, procentul variază între 0.0259% și 0.035% din soldul creditului
Onorariu notarialconform tarif notarial
Taxă întabulare OCPI853 RON
i
Toate valorile de mai sus sunt estimative și nu reprezintă în mod obligatoriu costurile exacte pe care le veți primi de la companiile/instituțiile prin care veți încheia tranzacția.