5

Penthouse Premium exclusivist pe 2 niveluri

899.000 €

Take Ionescu, Timișoara

Nr. cam.:
5
Sup. utilă:
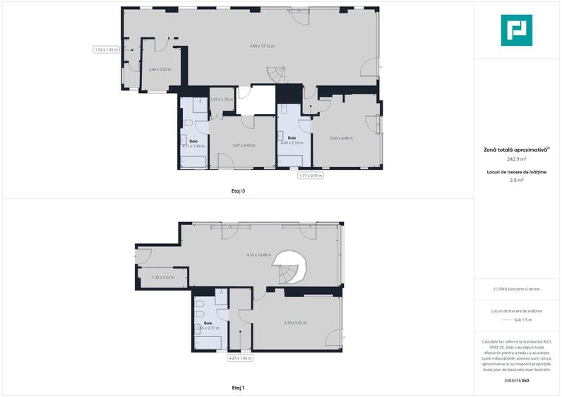
247 mp
Etaj:
5 / 5
An constr.:
2008
  • • Locație exactă

Descriere apartament

Descoperiți un penthouse excepțional, o proprietate unică în peisajul urban al Timișoarei, situată în imediata apropiere a complexului ISHO – o zonă emblematică ce îmbină rafinamentul, confortul și accesul rapid către centrul orașului. Cu o suprafață impresionantă de 247 mp utili, acest penthouse se desfășoară pe două niveluri, oferind o experiență de locuire amplă, luminoasă și perfect proporționată. Suprafețele vitrate generoase lasă lumina naturală să pătrundă din abundență, conturând un ambient elegant și relaxant în fiecare colț al locuinței. Cele 133 mp de terase spectaculoase completează perfect spațiul interior, oferind un cadru ideal pentru amenajarea unor grădini suspendate, zone de dining în aer liber sau chiar un jacuzzi generos – o veritabilă oază privată cu vedere panoramică asupra râului Bega și a orașului. Finisajele interioare sunt de cea mai înaltă calitate, realizate cu grijă pentru detalii și confort: Încălzire în pardoseală cu sistem modern de control individual Geamuri termopan panoramice de ultimă generație, cu izolare fonică și termică superioară Băi moderne, complet utilate cu obiecte sanitare premium Materiale exclusiviste și design contemporan rafinat Proprietatea dispune de două locuri de parcare private, asigurând confort și siguranță într-o zonă de elită. Un spațiu vast, inundat de lumină, cu terase ample ce oferă posibilități nelimitate de amenajare — acest penthouse redefinește conceptul de lux urban în Timișoara. Suprafață utilă: 247 mp Terase: 133 mp Etaje: 2 Parcare: 2 locuri incluse Locație: Zona ISHO, Timișoara Pentru mai multe detalii și vizionări, vă invităm să ne contactați – o proprietate remarcabilă ce îmbină eleganța, luminozitatea și confortul absolut într-o locație exclusivistă. Szekeres Carol-consultant imobiliar Propertylab Tel: email: CP27666357
Citește mai mult Citește mai puțin
3 Parcări

Detalii apartament

ID anunț: X5I1101R7 Copiat! 270829983 Copiat!
Actualizat în: 22 Ianuarie 2026
Nr. bucătării: 1
Nr. băi: 4
Tip imobil: Bloc de apartamente
Regim înălțime: P+5E
Nr. terase: 4

Utilități

Alte spații utile
Terasă
Utilități
Curent Apă Canalizare CATV Gaze Telefon
Internet
Cablu
Amenajare străzi
Iluminat stradal Mijloace de transport în comun Asfaltate
Comision
standard

Disponibilitate proprietate:

Imediat

Puncte de interes

Mijloace transport
bus-station
ILSA
Stații autobuz aprox. 86 m
trolleybus-station
Statie Baader T17
Stații troleibuz aprox. 124 m
tram-station
Statie Badea Cartan Tv1, Tv2
Stații tramvai aprox. 215 m
train-station
Gara de Est
Stații tren aprox. 580 m
Școală
kindergarten
Gradinita Program Prelungit Nr. 48
Gradinițe aprox. 231 m
school
Cladire Vest
Școli aprox. 316 m
kindergarten
Gradinita Program Prelungit Nr. 16
Gradinițe aprox. 319 m
university
U.M.F. Catedra de Farmacologie
Universități aprox. 741 m
Recreere
supermarket
Kaufland
Supermarket aprox. 268 m
sports-ground
Teren sportiv
Terenuri sport aprox. 365 m
park
Parcul Andrei Mocioni
Parcuri aprox. 369 m
mall
Kappa Centrul Comercial
Mall aprox. 1222 m

Detalii despre preț și costuri

Costuri cu achiziția

Fără credit
Credit ipotecar
Noua casă

i

Costuri adiționale mai puțin știute la achiziție: taxe notariale, comisioane etc.

Insight premium disponibil după login

Proprietăți recomandate

Detalii de contact

PROPERTY LAB

Carol Szekeres Real Estate Consultant Arad

PROPERTY LAB

Abonează-te la newsletter să fii primul care primește cele mai noi recomandări de proprietăți și sfaturi de la experți.

Feedback apel

CONTACT

Creează alertă

Salvează căutarea ca să primești pe email ultimele anunțuri publicate

Apartamente cu 4+ camere de vânzare în zona Take Ionescu, Timișoara