Apartament 1,5 camere Take Ionescu – Vivalia Grand V9, aproape de Medicină

121.890 € + TVA

Tipografilor, Timișoara

Nr. cam.:
2
Sup. utilă:
46,61 mp
Etaj:
9 / 11
An constr.:
2028 (În construcție)
  • • Comision 0%
  • • Locație Verificată
  • • Locație exactă

Descriere apartament

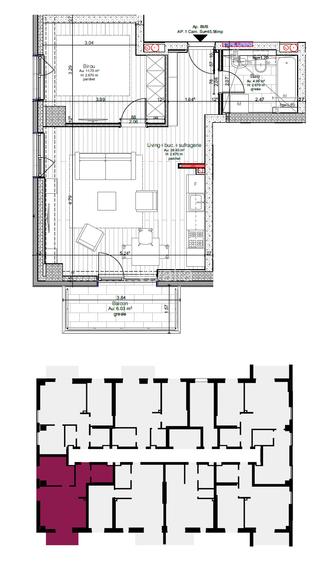
Apartament cu 1,5 camere situat în ansamblul Vivalia Grand V9, în zona Tipografilor, aproape de Iulius Town, Take Ionescu, Universitatea de Medicină și Farmacie „Victor Babeș” și centrul orașului. Este poziționat la etaj superior și are un layout bine gândit: living cu bucătărie deschisă și un spațiu separat care poate fi folosit ca un dormitor mic. Locuința va veni cu finisaje de calitate și dotări actuale: încălzire în pardoseală Purmo cu contorizare individuală, aer condiționat Hyundai cu Wi-Fi, tâmplărie PVC Gealan cu 3 foi de sticlă „4 anotimpuri”, ușă de intrare antiefracție și uși interioare Porta Doors. Baia va fi complet echipată (duș cu rigolă, paravan de sticlă, rezervor încastrat), iar bucătăria este pregătită pentru amenajare, cu toate instalațiile trase. Balconul este finisat cu gresie și are balustradă metalică cu sticlă. Ansamblul oferă parcare subterană și exterioară, spații pentru biciclete, zone verzi amenajate, acces facil pentru persoane cu dizabilități și sisteme de siguranță, fiind o opțiune bună atât pentru locuit, cât și pentru investiție. Imaginile sunt cu titlu de prezentare. Apartamentul este în curs de execuție, iar finisajele și detaliile finale pot suferi modificări.
Citește mai mult Citește mai puțin
Confort 1 Decomandat Nemobilat 1 Balcon / Terasă / Logie Curte Aer condiționat Încălzire prin pardoseală

Detalii apartament

ID anunț: X8VU0004F Copiat! 275491900 Copiat!
Actualizat în: 30 Aprilie 2026
Nr. bucătării: 1
Nr. băi: 1
Tip imobil: Bloc de apartamente
Regim înălțime: S+P+11E
Vizionare cu programare: Da

Utilități

Destinație
Rezidențial
Pereți
Vopsea lavabilă Faianță
Podele
Gresie Parchet
Ușă intrare
Metal
Uși interior
Celulare
Izolații termice
Exterior
Ferestre cu geam termopan
PVC
Contorizare
Contor gaz Apometre Contor căldură
Diverse
Telecomandă poartă acces auto
Facilități imobil
Spații agrement Lift Interfon Videointerfon
Utilități
Gaze Curent Canalizare Apă
Internet
Fibră optică Wireless
Servicii imobil
Administrare Supraveghere video
Amenajare străzi
Iluminat stradal Asfaltate
Comision
0%

Vecinătăți:

Amplasat în zona Take Ionescu, ansamblul Vivalia Grand oferă acces rapid către principalele puncte de interes ale orașului. Iulius Town se află la aproximativ 1.3 km, Universitatea de Medicină și Farmacie „Victor Babeș” este la circa 1 km, iar zona centrală – Piața Unirii, Bastionul și Piața Libertății – poate fi parcursă pe jos în 10–20 de minute.

În imediata apropiere se regăsesc supermarketuri (Mega Image la 100 m, Kaufland și Lidl), Piața Badea Cârțan, școli, licee și grădinițe, precum și stații de autobuz și tramvai, oferind un stil de viață comod și bine conectat.

Puncte de interes

Mijloace transport
trolleybus-station
Statie Baader T17
Stații troleibuz aprox. 182 m
bus-station
Baader
Stații autobuz aprox. 182 m
tram-station
Piata Badea Cartan
Stații tramvai aprox. 375 m
train-station
Gara de Est
Stații tren aprox. 393 m
Școală
kindergarten
Gradinita Program Prelungit Nr. 48
Gradinițe aprox. 203 m
school
Cladire Vest
Școli aprox. 411 m
kindergarten
Gradinita Program Normal Nr. 9
Gradinițe aprox. 455 m
university
U.M.F. Catedra de Farmacologie
Universități aprox. 761 m
Recreere
supermarket
Kaufland
Supermarket aprox. 248 m
park
Parc
Parcuri aprox. 416 m
sports-ground
Teren sportiv
Terenuri sport aprox. 460 m
mall
Kappa Centrul Comercial
Mall aprox. 946 m

Detalii despre preț și costuri

Prețul pe piață

Preț cerut: 121.890 €

Preț min. zonă
Preț max. zonă

92% dintre proprietățile similare ca zonă și nr. camere au prețul cerut mai mic. mai multe...

Bine de știut: prețul unei proprietăți este influențat și de alte caracteristici, cum ar fi: vechime, localizare, vecinătăți, suprafață, compartimentare, amenajări, dotări, etc. mai puțin...

Insight premium disponibil după login

Costuri cu achiziția

Fără credit
Credit ipotecar
Noua casă

i

Costuri adiționale mai puțin știute la achiziție: taxe notariale, comisioane etc.

Insight premium disponibil după login

Vivalia Grand

Vivalia Grand

Trăiește conectat la viața orașului. Vivalia Grand, un nou proiect într-o locație centrală, care dă valoare viitorului tău apartament. Dezvoltăm aici un concept inovativ, urban, dedicat noii generații de tineri și familii. Construim nu doar apartamente, ci oferim noi oportunități pentru cei dornici de o viață activă, dinamică, o viață conectată...

Vezi detalii ansamblu

Proprietăți similare

Apartament cu 2 camere semidecomandat în Tipografilor
130.097 €
Timișoara, Tipografilor
2 camere
53 mp
Etaj 9
Apartament cu 2 camere decomandat în Lipovei
125.000 €
Timișoara, Lipovei
2 camere
54 mp
Etaj 7 / 11
Apartament cu 2 camere decomandat în Lipovei
119.726 €
Timișoara, Lipovei
2 camere
51 mp
Etaj 3 / 11

Detalii de contact

Vivalia

Vasile Sichitiu Director Marketing Vanzari

Vivalia

Abonează-te la newsletter să fii primul care primește cele mai noi recomandări de proprietăți și sfaturi de la experți.

Feedback apel

CONTACT

Creează alertă

Salvează căutarea ca să primești pe email ultimele anunțuri publicate

Apartamente cu 2 camere de vânzare în zona Tipografilor, Timișoara