32

-3% Discount aplicat: Ap si Boxă + 2000 € Discount la parcare | Oferta limitata!

137.275 €

Torontalului, Timișoara

Nr. cam.:
2
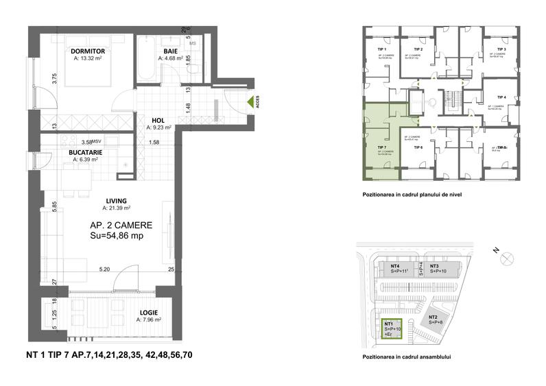
Sup. utilă:
54,9 mp
Etaj:
2 / 11
An constr.:
2026 (În construcție)
  • • Comision 0%
  • • Locație exactă

Descriere apartament

Descoperiți Nord One Torontal- un proiect imobiliar distinctiv amplasat în zona nordica a orașului. Aici, vă așteaptă 74 de unități rezidențiale rafinate, cu opțiuni generoase de 1, 2 și 3 camere. Fiecare detaliu al finisajelor a fost meticulos elaborat, astfel încât să asigure un echilibru perfect între confort și funcționalitate. Beneficiind de o locație privilegiată, într-una dintre cele mai căutate zone ale orașului, Nord One Torontal vă oferă acces facil la facilitățile și serviciile esențiale, precum și la zonele de recreere din vecinătate. Indiferent dacă sunteți în căutarea unei noi case personale sau a unei investiții profitabile în piața imobiliară din Timișoara, Nord One Torontal este alegerea ideală pentru a vă bucura de un stil de viață urban modern și confortabil. Vă invităm să vă alăturați comunității noastre și să experimentați un mod de locuire ce va marca experiența dumneavoastră într-un mod memorabil.
Citește mai mult Citește mai puțin
Confort 1 Decomandat 1 Balcon / Terasă / Logie Aer condiționat Centrală imobil Încălzire prin pardoseală

Detalii apartament

ID anunț: XEVN00008 Copiat! 199217113 Copiat!
Actualizat în: 15 Aprilie 2026
Nr. bucătării: 1
Nr. băi: 1
Structură rezistență: Beton
Tip imobil: Bloc de apartamente
Tip tranzacție: De vânzare prin dezvoltator
Regim înălțime: S+P+11E
Modalitate de plată: Cash sau Credit

Utilități

Destinație
Rezidențial
Pereți
Faianță Vopsea lavabilă
Podele
Gresie Parchet
Ușă intrare
Metal
Uși interior
Celulare
Ferestre cu geam termopan
PVC
Contorizare
Contor căldură Apometre
Utilități
Curent Apă Canalizare
Internet
Fibră optică
Amenajare străzi
Asfaltate Iluminat stradal Mijloace de transport în comun
Comision
0%

Certificat energetic:

Clasa energetică: A

Alte detalii despre preț:

cota de TVA aferenta apartamentului este 21%

Puncte de interes

Mijloace transport
bus-station
Statie Institutul Agronomic E1, T17
Stații autobuz aprox. 580 m
trolleybus-station
Statie Piata Verde/Liege T17
Stații troleibuz aprox. 934 m
tram-station
Statie Torontal Tv4, Tv6
Stații tramvai aprox. 1328 m
airport
Aeroportul Utilitar Cioca
Aeroporturi aprox. 1904 m
Școală
university
Biblioteca
Universități aprox. 353 m
university
Universitatea de Stiinte Agricole si Medicina Veterinara a Banatului
Universități aprox. 411 m
school
Facultatea de Agronomie
Școli aprox. 417 m
kindergarten
Gradinita Program Prelungit Nr. 37
Gradinițe aprox. 1029 m
Recreere
supermarket
Mini-Market
Supermarket aprox. 189 m
park
Parc
Parcuri aprox. 350 m
sports-ground
Teren sportiv
Terenuri sport aprox. 568 m
hypermarket
Decathlon
Hipermarket aprox. 962 m

Istoricul prețurilor

Acces la informații premium după autentificare
Login Gratuit

Detalii despre preț și costuri

Prețul pe piață

Preț cerut: 137.275 €

Preț min. zonă
Preț max. zonă

56% dintre proprietățile similare ca zonă și nr. camere au prețul cerut mai mic. mai multe...

Bine de știut: prețul unei proprietăți este influențat și de alte caracteristici, cum ar fi: vechime, localizare, vecinătăți, suprafață, compartimentare, amenajări, dotări, etc. mai puțin...

Acces la informații premium după autentificare
Login Gratuit

Costuri cu achiziția

Fără credit
Credit ipotecar
Noua casă

i

Costuri adiționale mai puțin știute la achiziție: taxe notariale, comisioane etc.

Acces la informații premium după autentificare
Login Gratuit

Nord One Torontal

Nord One Torontal

Nord One Torontal oferă 74 de unități rezidențiale cu 1, 2 și 3 camere, amplasate în zona de Nord a orașului. Detaliile finisajelor sunt elaborate cu atenție pentru confort și funcționalitate. Cu acces facil spre cele mai importante puncte de interes din oraș, este alegerea perfectă pentru un stil de viață urban, modern și confortabil în Timișoara.

Top proprietăți din ansamblu

Vezi detalii ansamblu

Proprietăți similare

Apartament cu 3 camere decomandat în Torontalului
117.000 €
Timișoara, Torontalului
3 camere
65 mp
Etaj 1 / 3
Apartament cu 2 camere decomandat, mobilat în Torontalului
121.000 €
Timișoara, Torontalului
2 camere
52 mp
Etaj 1 / 5
Apartament cu 2 camere semidecomandat în Torontalului
105.300 €
Timișoara, Torontalului
2 camere
55 mp
Etaj 1

Detalii de contact

NORD ONE TORONTAL

Administrator

NORD ONE TORONTAL

Abonează-te la newsletter să fii primul care primește cele mai noi recomandări de proprietăți și sfaturi de la experți.

Feedback apel

CONTACT

Creează alertă

Salvează căutarea ca să primești pe email ultimele anunțuri publicate

Apartamente cu 2 camere de vânzare în zona Torontalului, Timișoara