3

Comision 0-Dezvoltator vinde 2.5 camere - 112.000 euro, TVA si parcare incluse!

112.000 €

Torontalului, Timișoara

Nr. cam.:
2
Sup. utilă:
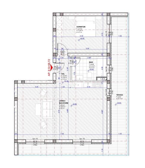
58,72 mp
Etaj:
3 / 3
An constr.:
2026
  • • Comision 0%
  • • Locație exactă

Descriere apartament

Comision 0 - Dezvoltator vinde apartament 2.5 camere in bloc nou cu 10 apartamente, etaj 3, 58.72mp utili + 24.77mp utili balcon, 2 apartamente pe nivel, baie cu fereastra, zona Torontalului, pret 112.000 euro - TVA si loc de parcare incluse. Tel. Posibilitate vizionare si in weekend. Date tehnice: - Caramida porotherm 25cm WIENERBERGER ROBUST - Termosistem polistiren 10cm EPS 80 - Tencuiala decorativa - Tamplarie PVC cu geam termopan tripan(3 foi de sticla) - Centrala termica pe gaz in condensare BOSCH - Incalzire in pardoseala TECE - Prize si intrerupatoare - GEWISS - parchet, gresie, faianta, usi interioare la alegerea clientului, intr-un buget prestabilit
Citește mai mult Citește mai puțin
Confort lux Semidecomandat Nemobilat 1 Balcon / Terasă / Logie Centrală proprie Încălzire prin pardoseală Bine întreținut (Bună)

Detalii apartament

ID anunț: XG5G0000R Copiat! 274195319 Copiat!
Actualizat în: 16 Aprilie 2026
Suprafață utilă totală: 83.49 mp
Nr. bucătării: 1
Nr. băi: 1
Structură rezistență: Beton
Tip imobil: Bloc de apartamente
Regim înălțime: P+3E

Utilități

Destinație
Rezidențial
Pereți
Faianță Vopsea lavabilă
Podele
Gresie Parchet
Ușă intrare
Metal
Uși interior
Lemn
Izolații termice
Exterior
Ferestre cu geam termopan
PVC
Contorizare
Apometre Contor gaz
Alte spații utile
Terasă
Facilități imobil
Interfon
Utilități
Gaze Curent Canalizare Apă
Internet
Fibră optică
Servicii imobil
Administrare
Amenajare străzi
Asfaltate Pietruite
Comision
0%

Certificat energetic:

Clasa energetică: A

Vecinătăți:

Lidl

Puncte de interes

Mijloace transport
bus-station
Scalini
Stații autobuz aprox. 412 m
airport
Aeroportul Utilitar Cioca
Aeroporturi aprox. 996 m
trolleybus-station
Statie Piata Verde/Liege T17
Stații troleibuz aprox. 1829 m
tram-station
Statie Matei Basarab Tv4, Tv6
Stații tramvai aprox. 1962 m
Școală
university
Universitatea de Stiinte Agricole si Medicina Veterinara a Banatului, Timisoara
Universități aprox. 1162 m
university
Biblioteca
Universități aprox. 1293 m
school
Facultatea de Agronomie
Școli aprox. 1295 m
kindergarten
Gradinita Samariteanul Nr. 13
Gradinițe aprox. 1486 m
Recreere
sports-ground
Teren sportiv
Terenuri sport aprox. 849 m
supermarket
Mini-Market
Supermarket aprox. 953 m
park
Parc
Parcuri aprox. 1182 m
hypermarket
Decathlon
Hipermarket aprox. 1656 m

Detalii despre preț și costuri

Prețul pe piață

Preț cerut: 112.000 €

Preț min. zonă
Preț max. zonă

63% dintre proprietățile similare ca zonă și nr. camere au prețul cerut mai mare. mai multe...

Bine de știut: prețul unei proprietăți este influențat și de alte caracteristici, cum ar fi: vechime, localizare, vecinătăți, suprafață, compartimentare, amenajări, dotări, etc. mai puțin...

Insight premium disponibil după login

Costuri cu achiziția

Fără credit
Credit ipotecar
Noua casă

i

Costuri adiționale mai puțin știute la achiziție: taxe notariale, comisioane etc.

Insight premium disponibil după login

Proprietăți recomandate

Detalii de contact

XMO CONCEPT

Mircea Olaru Administrator

XMO CONCEPT
PRO

Abonează-te la newsletter să fii primul care primește cele mai noi recomandări de proprietăți și sfaturi de la experți.

Feedback apel

CONTACT

Creează alertă

Salvează căutarea ca să primești pe email ultimele anunțuri publicate

Apartamente noi cu 2 camere de vânzare în zona Torontalului, Timișoara