Apartament cu 2 camere, terasa 124mp, zona Torontalului

118.000 €

Torontalului, Timișoara

Nr. cam.:
2
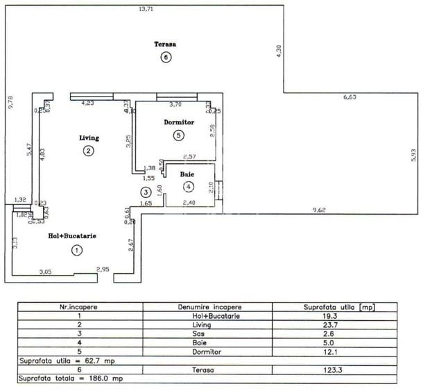
Sup. utilă:
56 mp
Etaj:
Parter
An constr.:
2017
  • • Locație aproximativă
  • • Vizionare prin apel video

Descriere apartament

APOSTU ESTATE va propune spre vanzare un apartament modern cu 2 camere, open space, confort 1 sporit, situat la etajul parter/7, zona Calea Aradului. Imobilul se intinde pe o suprafata utila de 55mp si este compartimentat astfel: - hol de acces - living luminos - dormitor - bucatarie open space - baie cu cada - balcon deschis Confortul termic se realizeaza prin intermediul centralei proprii pe gaz si al aparatului de aer conditionat. Vecinatati: - OMW - Spitalul Premiere - Mega Image, Penny, Auchan, Selgros - Hornbach - Decathlon - Restaurant The Fisher - Cofetaria Andalusia - SmileClinic -ING Bank, Raiffeisen Bank Caracteristici: - Blocul este anvelopat. -Loc de parcare suprateran, inclus in pret (trecut in CF) -Parcare privata cu bariera Oferim consultanta si solutii financiare prin colaboratorii nostri. Va asteptam cu drag la o vizionare! ID intern: CP2370857
Citește mai mult Citește mai puțin
Confort 1 Semidecomandat Parțial mobilat Aer condiționat Calorifere Centrală imobil 1 Parcare

Detalii apartament

ID anunț: XBAF10ITA Copiat! 254537022 Copiat!
Actualizat în: 30 Ianuarie 2026
Nr. bucătării: 1
Nr. băi: 1
Tip imobil: Bloc de apartamente
Regim înălțime: P+6E
Nr. terase: 1

Utilități

Destinație
Birouri Rezidențial
Pereți
Vopsea lavabilă
Podele
Gresie
Ușă intrare
Metal
Uși interior
Lemn
Ferestre cu geam termopan
PVC
Contorizare
Apometre Contor căldură Contor gaz
Bucătărie
Mobilată
Alte spații utile
Terasă
Facilități imobil
Interfon Lift
Utilități
Curent Apă Canalizare CATV Gaze Telefon
Internet
Cablu Wireless
Amenajare străzi
Iluminat stradal Mijloace de transport în comun Asfaltate
Comision
standard

Disponibilitate proprietate:

Imediat

Puncte de interes

Mijloace transport
bus-station
U.T.T.
Stații autobuz aprox. 270 m
bus-station
Statie U.T.T. E1, T17
Stații autobuz aprox. 305 m
trolleybus-station
Statie Piata Verde/Liege T17
Stații troleibuz aprox. 683 m
tram-station
Statie Torontal Tv4, Tv6
Stații tramvai aprox. 1172 m
Școală
university
Biblioteca
Universități aprox. 308 m
university
Universitatea de Stiinte Agricole si Medicina Veterinara a Banatului
Universități aprox. 371 m
school
Facultatea de Agronomie
Școli aprox. 409 m
kindergarten
Kids Club Allegria
Gradinițe aprox. 738 m
Recreere
supermarket
Penny market
Supermarket aprox. 257 m
sports-ground
Teren sportiv
Terenuri sport aprox. 302 m
hypermarket
Decathlon
Hipermarket aprox. 928 m
mall
Kappa Centrul Comercial
Mall aprox. 1752 m

Detalii despre preț și costuri

Prețul pe piață

Preț cerut: 118.000 €

Preț min. zonă
Preț max. zonă

56% dintre proprietățile similare ca zonă și nr. camere au prețul cerut mai mic. mai multe...

Bine de știut: prețul unei proprietăți este influențat și de alte caracteristici, cum ar fi: vechime, localizare, vecinătăți, suprafață, compartimentare, amenajări, dotări, etc. mai puțin...

Insight premium disponibil după login

Costuri cu achiziția

Fără credit
Credit ipotecar
Noua casă

i

Costuri adiționale mai puțin știute la achiziție: taxe notariale, comisioane etc.

Insight premium disponibil după login

Proprietăți recomandate

Detalii de contact

APOSTU ESTATE

Adrian Nelega Senior Broker

APOSTU ESTATE
PRO

Abonează-te la newsletter să fii primul care primește cele mai noi recomandări de proprietăți și sfaturi de la experți.

Feedback apel

CONTACT

Creează alertă

Salvează căutarea ca să primești pe email ultimele anunțuri publicate

Apartamente cu 2 camere de vânzare în zona Torontalului, Timișoara