Spatiu comercial de vanzare Zona E3

140.000 €

E3, Tulcea

Nr. cam.:
5
Sup. utilă:
110 mp
Etaj:
Parter / 3
An constr.:
2008 (Finalizată)
  • • Locație aproximativă
  • • Vizionare prin apel video

Descriere apartament

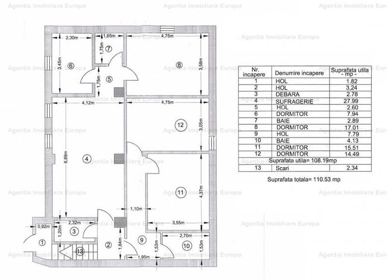
Spatiu comercial transformat in cazare pentru muncitori  (8 persoane) de vanzare in Tulcea prezentat de Europa Imobiliare, avand 5 camere 4 dormitoare sala de mese cu bucatarie masina de spalat TV situat în zona E3 amplasat la demisol din 3 ocupand o suprafata de 110 m.p. Incalzirea este realizata cu  centrala proprie pe gaz . Finisajele interioare sunt moderne : ferestre PVC, gresie, faianta, parchet, etc.  Pretul propus spre vanzare de catre proprietar este de:140.000 Euro . Pentru informatii suplimentare si vizionari nu ezitati sa ne contactati sau va asteptam la sediul agentiei din strada Pacii, numarul 13,vis a vis de Hotel Europolis. Suntem o agentie de consultanta imobiliara profesionista, care lucreaza pentru tine si cu tine pentru a obtine cea mai buna tranzactie in favoarea ta! Nu conteaza ca esti proprietar sau esti un client in cautarea unei proprietati, noi suntem aici pentru a facilita totul, astfel incat lucrurile sa decurga perfect! ID INTERN: 1405
Citește mai mult Citește mai puțin
Confort 1 Decomandat Aer condiționat Centrală proprie

Detalii apartament

ID anunț: 47415477 Copiat!
Actualizat în: 18 Mai 2026
Suprafață utilă totală: 110 mp
Suprafață construită: 130 mp
Nr. bucătării: 1
Nr. băi: 2
Structură rezistență: Altele
Tip imobil: Bloc de apartamente
Tip tranzacție: De vânzare prin agent
Regim înălțime: P+3E
Modalitate de plată: Cash sau Credit

Utilități

Destinație
Rezidențial
Pereți
Faianță Vopsea lavabilă
Podele
Parchet Gresie
Ușă intrare
Metal
Uși interior
PVC
Ferestre cu geam termopan
PVC
Contorizare
Apometre Contor gaz
Bucătărie
Utilată Mobilată
Electrocasnice
Aragaz Frigider Mașină de spălat
Utilități
Apă Curent Gaze Canalizare
Internet
Cablu Wireless
Amenajare străzi
Asfaltate
Comision
12%

Vecinătăți:

Scoala/gradinita, Supermarket

Puncte de interes

Mijloace transport
bus-station
Autogara
Stații autobuz aprox. 1545 m
bus-station
Tulcea Oras
Stații autobuz aprox. 1625 m
bus-station
Tulcea Marfuri
Stații autobuz aprox. 1642 m
bus-station
Hotel Delta
Stații autobuz aprox. 1813 m
Școală
school
Scoala Generala Nr. 8 Constantin Gavenea
Școli aprox. 137 m
school
Liceul Pedagogic
Școli aprox. 514 m
school
Scoala generala nr.4
Școli aprox. 950 m
kindergarten
Gradinita
Gradinițe aprox. 1490 m
Recreere
supermarket
Maket Fraher
Supermarket aprox. 214 m
restaurant
Flamingo
Restaurant aprox. 439 m
park
Parcul Albatros
Parcuri aprox. 505 m
bar
Terasa Boema
Bar aprox. 1410 m

Detalii despre preț și costuri

Costuri cu achiziția

Fără credit
Credit ipotecar
Noua casă

i

Costuri adiționale mai puțin știute la achiziție: taxe notariale, comisioane etc.

Acces la informații premium după autentificare
Login Gratuit

Proprietăți similare

Apartament cu 3 camere în Central
140.000 €
Tulcea, Central
3 camere
90 mp
Etaj 1
Apartament cu 3 camere decomandat, mobilat în Central
139.000 €
Tulcea, Central
3 camere
76,3 mp
Etaj 1 / 4
Apartament cu 3 camere în Babadag
135.000 €
Tulcea, Babadag
3 camere
108 mp
Etaj 4

Detalii de contact

Agentia Europa

Administrator

Agentia Europa

Abonează-te la newsletter să fii primul care primește cele mai noi recomandări de proprietăți și sfaturi de la experți.

CONTACT

Creează alertă

Salvează căutarea ca să primești pe email ultimele anunțuri publicate

Apartamente cu 4+ camere de vânzare în zona E3, Tulcea