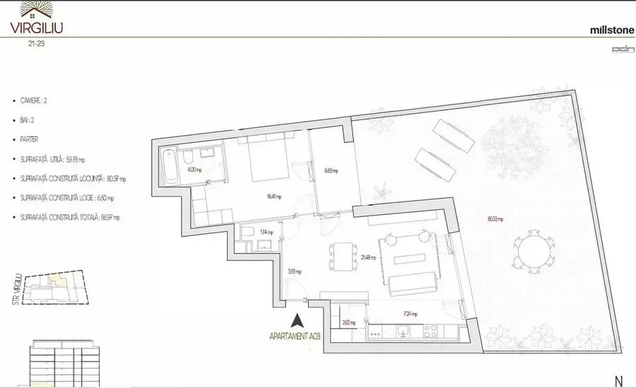
Apartamentul cu 2 camere oferit spre vanzare este disponibil la parterul unui imobil cu regim de inaltime S+P+6. Unitatea are o suprafata utila de 59,4 mp + terasa de 6,6 mp + curte proprie de 80mp.
Apartamentul se vinde cu bucataria mobilata si utilata. In cazul in care se doreste si restul mobilierului se achita suplimentar 10.000 Euro + Tva.
Toate apartamentele cu 2 camere sunt cu cate 2 grupuri sanitare.
Ansamblul rezidențial de lux Millstone oferă spre vânzare apartamente premium într-o zonă exclusivistă a capitalei. Complexul rezidențial este poziționat pe strada Virgiliu, într-o zonă tradițională a Bucureștiului, reînviată acum de arhitectura și dotările moderne. Făcând o plimbare scurtă vei ajunge la Operă, Ateneu sau Grădina Cișmigiu. Calea Victoriei este doar la câțiva pași distanță și te va purta către cele mai frumoase zone ale vechiului oraș.
Virgiliu 21-23 îmbină ce e mai bun din fiecare lume: traiul în centrul Capitalei, proximitatea tuturor zonelor de interes, acces rapid din orice punct al orașului și acel sentiment că ești exact acolo unde trebuie să fii!
Doar 10 minute pe jos până la Ateneu, Operă, Cișmigiu, Muzeul Antipa, Muzeul Militar Central.
Ansamblul rezidențial de lux Millstone are un regim de înălțime S+P+5+6R. La subsolul complexului se regăsesc locurile de parcare.
În total, complexul rezidențial este alcătuit din 30 apartamente de lux, de 2, 3 si 4 camere.
Detalii tehnice:
– structura de rezistență este realizată cu cadre de beton armat,
– izolația este realizată cu vată Bazaltică de 15 cm,
– încălzirea și apa caldă sunt realizate cu ajutorul sistemelor de încălzire în condensație cu boiler (centrală de bloc),
– parchet premium,
– piatră naturală în băi, holuri și bucătărie,
– obiecte sanitare premium,
– tâmplărie de aluminiu Schuko cu sticlă geam tripan.
Pozele sunt reale, dar sunt din mai multe apartamente.
Pentru mai multe detalii si vizionari nu ezitati sa ma contactati .
Pitrop Dumitru
VAUNT ID: 109576
Proprietate cu prețul cerut în afara intervalului mai multe...
Posibile explicații pentru faptul că prețul proprietății este peste cel maxim: imobil nou cu suprafață mare, are dotări și finisaje de lux.
Bine de știut: prețul unei proprietăți este influențat și de alte caracteristici, cum ar fi: vechime, localizare, vecinătăți, suprafață, compartimentare, amenajări, dotări, etc.
Costuri cu achiziția
Fără credit
16.410 RON
Credit ipotecar
19.193 RON
Noua casă
2.145 RON+ taxe notariale
i
Costuri adiționale mai puțin știute la achiziție: taxe notariale, comisioane etc.
Calculul ipotecarului
Proprietăți recomandate
Pornind de la căutarea ta îți recomandăm următoarele anunțuri
310.000 €
București, Herăstrău
2 camere
53 mp
Etaj 7
400.000 € + TVA
București, Ultracentral
3 camere
72 mp
Parter / 6
420.000 € + TVA
București, Floreasca
2 camere
80,3 mp
Etaj 1
350.760 € + TVA
București, Iancu Nicolae
3 camere
91,2 mp
Parter
432.500 € + TVA
București, Pipera
3 camere
153 mp
Etaj 3
530.000 € + TVA
București, Floreasca
3 camere
116,5 mp
Etaj 1 / 7
Detalii de contact
Acestă agenție te poate ajuta să obții o soluție de finanțare potrivită nevoilor tale. Solicită-i informații suplimentare.
Sediul central - Timișoara
Bulevardul Victor Babeș nr. 2, 300230, Timișoara, România
Tel: +40.374.40.44.98 / Fax: +40.256.401.179
Email: suport@imobiliare.ro
Luni - Vineri 08:00 - 20:00
Punct de lucru - București: Iride Business Park, Bld. Dimitrie
Pompeiu 9-9A, Clădirea B2B,
020335, Sector 2, București, România
CONTACT
Sediul central - Timișoara
Bulevardul Victor Babeș nr. 2, 300230, Timișoara, România
Tel: +40.374.40.44.98 / Fax: +40.256.401.179
Email: suport@imobiliare.ro
Luni - Vineri 08:00 - 20:00
Punct de lucru - București: Iride Business Park, Bld. Dimitrie
Pompeiu 9-9A, Clădirea B2B,
020335, Sector 2, București, România
Statia Piata Operei, linia 104,122,137,236,268,336,601
aprox.
593 m
Statia Vasile Parvan, statia 635
aprox.
610 m
Statie Buzesti / Calea Grivitei 133, N117
aprox.
633 m
Stația RATB Facultatea De Drept, linii: 61, 69, 90, 91, 122, 137, 138, 268, 336, 601.
aprox.
650 m
Depou subteran Gara de Nord
aprox.
682 m
Capat Gara de Nord linii:62,71,85,93,96,105,282,654,133,123,178,
aprox.
701 m
Mircea Vulcanescu
aprox.
361 m
Buzesti
aprox.
640 m
Gara de Nord
aprox.
907 m
Piata Buzesti
aprox.
913 m
Doctor Felix
aprox.
992 m
Dr. Felix
aprox.
1315 m
Piata Victoriei
aprox.
1321 m
Pasajul Basarab
aprox.
1364 m
Statie de tramvai (1)
aprox.
1368 m
Statie Pasaj Basarab Tramvai 1
aprox.
1371 m
Piata Victoriei
aprox.
1408 m
Gara Basarab
aprox.
1429 m
Calea Giulesti
aprox.
1441 m
Statia Banu Manta, linia 34,42,46
aprox.
1445 m
Dr. Constantin Caracas
aprox.
1450 m
Statia Stirbei Voda, linia 96
aprox.
581 m
Statia Vasile Parvan 66,70,92
aprox.
623 m
Statia Facultatea de Drept, linia 61,69,90,91
aprox.
687 m
Statia Piata Operei, linia 61,69,90,91
aprox.
692 m
statia RATB Eroilor: 69, 96
aprox.
710 m
Statia Pod Cotroceni, linia 93, 62, 96
aprox.
712 m
Statie Gara Basarab 133, 178, 282, 105, 123, 162, 780
aprox.
1353 m
Statie Soseaua Nicolae Titulescu 65, 97, 86
aprox.
1403 m
Statia Piata Romana linii : 79,86
aprox.
1597 m
Statia Calea Dorobantilor; Liniile:79, 86,
aprox.
1786 m
Acces Stația Eroilor (M3).
aprox.
655 m
Metrorex. Stația Eroilor (M1),(M3)(1979)
aprox.
657 m
Eroilor
aprox.
657 m
Metrorex. Statia de Gara de Nord
aprox.
724 m
Metrorex. Stația Gara de Nord
aprox.
772 m
Gara de Nord 1
aprox.
800 m
Metrorex. Stația Gara de Nord 1 (M1)(1987)
aprox.
817 m
Metrorex. Stația Gara de Nord 2 (M4)(2000)
aprox.
943 m
Metrorex. Statia Izvor (M1) , (M3).
aprox.
1132 m
Metrorex. Stația Izvor (M1),(M3)(1979)
aprox.
1133 m
Izvor
aprox.
1169 m
Metrorex. Statia Izvor (M1) , (M3).
aprox.
1177 m
Basarab m1 m4 station subway
aprox.
1371 m
Metrorex. Stația Basarab
aprox.
1403 m
Piata Victoriei 1
aprox.
1429 m
Vechea "Gara a Targovistei" astazi parte din Gara de Nord
aprox.
788 m
Gara Bucuresti Nord
aprox.
957 m
Gara Basarab
aprox.
1575 m
Fosta Gara Regala Cotroceni (en)
aprox.
1701 m
Scoala de Muzica Nr.3
aprox.
145 m
Liceul "Nicolae Tonitza"
aprox.
457 m
Clubul Sportiv Scolar nr.5
aprox.
510 m
Liceul Cervantes
aprox.
517 m
Club Sportiv nr. 5
aprox.
539 m
Credis - Academia CISCO Credis (en)
aprox.
543 m
Fostul Liceu de Arte Plastice Nicolae Tonitza - Local Cursuri
aprox.
551 m
Scoala Nr. 1 Sfintii Voievozi
aprox.
580 m
Gradinita nr.285
aprox.
631 m
Liceul Bulgar Hristo Botev
aprox.
717 m
Institutul Medico-Militar
aprox.
756 m
Colegiul Tehnic de Arhitectură și Lucrări Publice Ioan N. Socolescu
aprox.
801 m
ȘCOALA CU CLASELE I-VIII NR. 150
aprox.
810 m
Scoala speciala nr. 10
aprox.
867 m
Scoala special nr. 10
aprox.
915 m
Gradinita Smiley
aprox.
267 m
Gradinita MAPN
aprox.
397 m
Gradinita MAPN nr.1
aprox.
600 m
Gradinita nr. 248
aprox.
641 m
Gradinita de copii nr. 285
aprox.
643 m
Gradinita Nr. 78 Miguel de Cervantes
aprox.
648 m
Gradinita Madeleine
aprox.
711 m
Gradinita Olga Gudynn
aprox.
745 m
Gradinita Zum-zum
aprox.
850 m
Gradinita nr. 73
aprox.
879 m
Gradinita Dreams World
aprox.
945 m
Gradinita nr. 271
aprox.
1064 m
Gradinita nr. 206
aprox.
1165 m
Gradinita nr. 112
aprox.
1222 m
Gradinita cu Program Prelungit Nr. 248
aprox.
1411 m
Facultatea de Utilaj Tehnologic (UTCB)
aprox.
472 m
UTCB - Facultatea de Utilaj Tehnologic pentru Constructii
aprox.
473 m
Camin C
aprox.
543 m
Camin B
aprox.
571 m
Rectoratul Universitatii din București și sediul Facultății de Drept
aprox.
606 m
Rectoratul Univ. Bucuresti
aprox.
606 m
Camin A
aprox.
618 m
Facultatea de Medicina Dentara
aprox.
685 m
Institutul Medico-Militar
aprox.
756 m
ANEFS (en)
aprox.
780 m
Universitatea Nationala de Educatie Fizica si Sport
aprox.
780 m
Facultatea de Medicina Veterinara
aprox.
798 m
Facultatea de Inginerie Medicala
aprox.
805 m
FADD Facultatea de Arte Decorative si Design
aprox.
807 m
Corp A
aprox.
808 m
Shop & Go - Mega Image
aprox.
671 m
Ami Non-Stop
aprox.
837 m
Mega Image
aprox.
939 m
Mega Image Elisabeta Non-Stop
aprox.
1015 m
Mega Image
aprox.
1060 m
Economat
aprox.
1069 m
Mega Image Brezoianu
aprox.
1079 m
Kaufland
aprox.
1276 m
Mega Image
aprox.
1302 m
Mega Image Amzei Non-Stop
aprox.
1323 m
Mega Image
aprox.
1340 m
Nik Non-Stop
aprox.
1393 m
Carrefour Orhideea
aprox.
1403 m
Mega Image Titulescu 2
aprox.
1418 m
Best Market 1
aprox.
1462 m
Intrarea in caminele C si D din grozavesti
aprox.
1288 m
"METROPLIS CENTER"
aprox.
1952 m
Parcare
aprox.
409 m
Parcare
aprox.
414 m
Parcare
aprox.
453 m
Parcare
aprox.
507 m
Parcare
aprox.
532 m
Parcare
aprox.
646 m
Parcare
aprox.
660 m
Parcare
aprox.
668 m
Parcare
aprox.
684 m
Parcare
aprox.
684 m
Parcare
aprox.
757 m
Parcare Gara de Nord
aprox.
776 m
Parcare
aprox.
783 m
Parcare
aprox.
828 m
Parcare
aprox.
895 m
Piata Emil Cioran (Vergilius) (en)
aprox.
158 m
Piața Eroilor
aprox.
1375 m
Piata Revolutiei
aprox.
1452 m
Piața Romană
aprox.
1564 m
Piața Drapelului (Tricolorului)
aprox.
1576 m
Piata Arsenalului
aprox.
1661 m
Intersectia Leu
aprox.
1713 m
Piața Constituției
aprox.
1740 m
Piata Natiunilor Unite
aprox.
1773 m
Piata Universitatii
aprox.
1903 m
Jose Rizal Square (en)
aprox.
1950 m
Parc
aprox.
298 m
Parc
aprox.
410 m
Parc
aprox.
425 m
Loc de joaca
aprox.
425 m
Parcul Venus
aprox.
500 m
Parcul Operei
aprox.
500 m
Parc
aprox.
558 m
Parculet
aprox.
565 m
Parc
aprox.
565 m
Parc
aprox.
571 m
Parcul Garii de Nord
aprox.
602 m
Parcul Garii de Nord
aprox.
615 m
Parcul Luigi Cazzavillan
aprox.
623 m
Luigi Cazzavillan
aprox.
623 m
Parc
aprox.
669 m
teren tenis
aprox.
497 m
Baza sportiva Universitatea Bucuresti
aprox.
565 m
Teren sportiv
aprox.
640 m
Teren sportiv
aprox.
657 m
Teren sportiv
aprox.
703 m
Teren sportiv
aprox.
736 m
Teren sportiv
aprox.
748 m
Teren sportiv
aprox.
768 m
Teren sportiv
aprox.
1063 m
Teren sportiv
aprox.
1068 m
Teren sportiv
aprox.
1070 m
Teren sportiv
aprox.
1071 m
Teren sportiv
aprox.
1078 m
Teren sportiv
aprox.
1095 m
Teren sportiv
aprox.
1116 m
Farmacia Help Net
aprox.
120 m
Farmaplus
aprox.
146 m
BellaDonna
aprox.
150 m
Sensiblu
aprox.
181 m
Farmaplus
aprox.
502 m
Farmacia Apoteca 1
aprox.
505 m
Farmacia Catena
aprox.
524 m
Farmalex Total
aprox.
552 m
Rondfarm
aprox.
612 m
Help Net Farma
aprox.
634 m
Arta Farm Impex
aprox.
640 m
Farmacia Sfanta Ecaterina
aprox.
698 m
Sensiblu
aprox.
725 m
Apoteca Farmacie
aprox.
741 m
Farmacia Fulbog
aprox.
743 m
Sectia de Dermatovenerologie (en)
aprox.
457 m
Cabinet Medical
aprox.
470 m
oncologie, medicala III, endocrine
aprox.
472 m
Clinica Universitara de Medicina Interna si Gastroenterologie (en)
aprox.
486 m
Institutul national de medicina aeronautica si spatiala - INMAS
aprox.
508 m
Institutul National de Medicina Aeronautica si Spatiala
aprox.
516 m
cardio, pneumo
aprox.
524 m
"Carol Davila"Military Hospital (en)
aprox.
571 m
Clinica ORL Dr. Mocanu
aprox.
581 m
Spitalul CFR 1 (Witing)
aprox.
635 m
Witting Hospital (Spitalul CFR) (en)
aprox.
643 m
Spitalul Clinic nr.1 CF Witing
aprox.
643 m
Munposan 94
aprox.
650 m
Munor Cris Medica
aprox.
661 m
Spitalul Munposan '94
aprox.
665 m
Codrul Cosminului
aprox.
13 m
BALKAN
aprox.
139 m
Restaurant CAREDY
aprox.
410 m
La Matache
aprox.
563 m
Fast food
aprox.
565 m
Tasty Fish
aprox.
568 m
Bodega Espaniola Alioli
aprox.
572 m
Tasty Fish
aprox.
576 m
Pizza
aprox.
577 m
Cantina Drept (en)
aprox.
582 m
Cantina Mihail Kogalniceanu
aprox.
582 m
Restaurant Libanez Tulin (en)
aprox.
589 m
Tulin
aprox.
598 m
Maxim
aprox.
603 m
Bistro the Wok
aprox.
657 m
Stuf Vama Veche
aprox.
233 m
Letters Bar
aprox.
623 m
Marvin bar&more
aprox.
738 m
Caffe No. 35
aprox.
810 m
A1
aprox.
1157 m
El Bistro
aprox.
1245 m
LondonPhone
aprox.
1324 m
Gambrinus
aprox.
1367 m
Energiea
aprox.
1456 m
Fratelli Espresso Bar
aprox.
1479 m
Control Club
aprox.
1492 m
Interbelic Victoria
aprox.
1583 m
Clubul Taranului
aprox.
1585 m
Frame
aprox.
1602 m
Yellow Bar
aprox.
1660 m
Ramayana Cafe
aprox.
280 m
Bouche Bee
aprox.
565 m
Dante Cafe
aprox.
687 m
Caffeine & Latte
aprox.
688 m
J'ai Bistrot
aprox.
714 m
Roland 1811 cafe
aprox.
733 m
Sufrageria cu Jocuri
aprox.
897 m
Kafeterya Cafe
aprox.
1068 m
Dolce Baccio
aprox.
1086 m
Ceainaria Cotroceni
aprox.
1194 m
Venchi 1878
aprox.
1268 m
Gloria Jean's
aprox.
1302 m
Meron Coffee
aprox.
1326 m
Admiral Cafe
aprox.
1330 m
Starbucks
aprox.
1372 m
Le Cafe Inmedio
aprox.
1085 m
Taverna Bradet
aprox.
1099 m
James Joyce's Pub & Restaurant
aprox.
1153 m
Filos Pub
aprox.
1210 m
Lucky Poin
aprox.
1267 m
The Dubliner
aprox.
1346 m
Nexus Gamers Pub
aprox.
1413 m
Club Expirat and Other Side
aprox.
1449 m
Question Mark Social Club
aprox.
1567 m
Quantic Pub
aprox.
1592 m
Coloseum
aprox.
1628 m
Edgar`s Pub
aprox.
1661 m
Charlatans Irish Pub
aprox.
1709 m
D`eight Pub
aprox.
1764 m
OLD NICK PUB
aprox.
1782 m
Banca BRD
aprox.
78 m
BRD Stirbei Voda
aprox.
84 m
Banca Raiffaisen
aprox.
96 m
CEC BANK
aprox.
99 m
CEC Bank
aprox.
99 m
Raiffeisen Bank
aprox.
120 m
Banca Transilvania - Ag. Stirbei Voda
aprox.
132 m
ING Stirbei Voda
aprox.
141 m
Banca Transilvania
aprox.
142 m
Intesa Sanpaolo Bank
aprox.
149 m
Agentia ING Stirbei Voda
aprox.
160 m
Banca Intensa Sanpaulo
aprox.
167 m
Piraeus Bank
aprox.
214 m
Alpha bank
aprox.
220 m
Piraeus Bank
aprox.
220 m
Fiind o zonă ultracentrală, aceasta oferă numeroase opțiuni de călătorie cu mijloacele de transport în comun, și este bine conectată cu restul orașului. Ai, în primul rând, la dispoziție stațiile de metrou Piața Victoriei, Piața Romană și Universitate. Astfel, te vei putea deplasa rapid prin oraș, evitând aglomerația de la suprafață. Toate acestea sunt situate pe magistrala 2 care traversează Bucureștiul de la nord la sud. În plus, de la Piața Victoriei vei putea lua metroul și pe magistrala 1 pentru a ajunge, de exemplu, în cartierul Pantelimon sau în zona Eroilor. Prin Piața Universității urmează să treacă și magistrala 5 care va lega cartierele Drumul Taberei și Pantelimon. Până acum, s-au deschis însă doar stațiile de metrou aflate în zona Drumul Taberei. Alte mijloace de transport în comun care ar putea să-ți fie de ajutor atunci când te vei muta în această zonă sunt autobuzele 300 și 381. Primul face legătura dintre Piața Romană și Piața Victoriei continuându-și apoi traseul de-a lungul Bulevardului Ion Mihalache, iar cel de-al doilea conectează Piața Victoriei cu zona Tineretului și cu cartierul Berceni. De pe Bulevardul Regina Elisabeta vei putea lua troleibuzul 90 pentru a ajunge în Drumul Taberei sau în zona Arenei Naționale, iar în fața Spitalului Colțea vei găsi stația autobuzului 381 care merge în cartierul Berceni. Iar dacă preferi să te deplasezi pe două roți, vei avea la dispoziție una dintre pistele speciale destinate bicicliștilor pe Calea Victoriei. Aceasta îți va oferi, în plus, oportunitatea ideală de a admira arhitectura deosebită a clădirilor aflate de o parte și de alta a uneia dintre cele mai frumoase străzi din București. Consultă harta pentru a afla unde sunt localizate stațiile mijloacelor de transport în comun.
În această zonă găsim sediul central al Universității din București și cel al Academiei de Studii Economice din București (ASE), unele dintre cele mai prestigioase instituții de învățământ superior din România. Tot aici se află și sediile mai multor facultăți. Ai și alte instituții de învățământ cu renume la doi pași de casă, precum precum Colegiul Național "Sfântul Sava", Colegiul Național "Gheorghe Lazăr", Liceul Teoretic Bulgar "Hristo Botev" și Universitatea Națională de Muzică. De menționat este și Căminul Moxa, aflat în zona Calea Victoriei, în care sunt cazați unii dintre studenții ASE. Consultă harta de mai jos pentru a vedea și celelalte unități de învățământ din zonă.
În această parte a orașului vei găsi numeroase reprezentanțe ale unor branduri de lux. Cele mai multe magazine alimentare din zonă au dimensiuni reduse. Pentru cumpărături îți recomandăm Piața Amzei, aflată la doi pași de Romană și modernizată recent. Aici găsești, pe lângă comercianți de unde poți cumpăra legume și fructe și câteva magazine cu preparate proaspete de la burgeri, la pâine artizanală sau înghețată. Centrul Vechi găzduiește, totodată, reprezentanțe ale unor retaileri de modă. Tot aici găsești și librăria Cărturești Carusel, una dintre cele mai frumoase din oraș. O librărie Cărturești deschisă într-o altă clădire deosebită poate fi găsită și în apropiere de Piața Romană. Un spațiu comercial cu renume este Magazinul Victoria, un monument istoric al orașului. Magazinul București, amplasat la intersecția străzilor I.C. Brătianu și Lipscani a fost reconstruit recent cu o investiție substanțială. Ai în apropiere magazinul Cocor, centrul comercial Unirea Shopping City și un hipermarket Carrefour. Cu mașina sau metroul poți să ajungi destul de repede la mall-ul AFI Cotroceni. Consultă harta și vezi ce magazine vei avea în apropierea noii tale case.
Aceasta este una dintre cele mai aglomerate zone din București la orele de vârf. Aici găsești însă și unele dintre puținele parcări subterane din Capitală. Chiar vis-a-vis de Universitatea București ai intrarea într-o astfel de parcare cu peste 400 de locuri. O parcare destul de încăpătoare poate fi găsită și în Piața Victoriei. Atenție, însă, această zonă se poate aglomera nu doar din cauza traficului, ci și din cauza diverselor manifestări sau proteste care se organizează, de obicei, în fața Palatului Victoria, sediul Guvernului României. Dacă te hotărăști să te muți în zonă, atunci îți recomandăm să te interesezi de posibilitatea închirierii unui loc de parcare pentru mașina ta. Poți face acest lucru apelând la Serviciul Parcaje al ADP Sector 1. Consultă harta pentru a afla unde găsești și alte parcări în zona Victoriei-Romană-Universitate.
Zona Victoriei - Romană - Universitate este un epicentru cultural al Capitalei și oferă numeroase opțiuni de petrecere a timpului liber. Aici vei găsi numeroase muzee impresionante pe care le poți vizita în timpul liber (Muzeul Național de Istorie Naturală "Grigore Antipa", Muzeul Țăranului Român, Muzeul Național George Enescu, etc), vei putea participa la evenimentele în aer liber desfășurate pe Calea Victoriei sau în Piața George Enescu sau vei putea merge la un spectacol organizat pe scena Ateneului Român sau pe cea a Teatrului Notarra. Nu rata nici o vizită la Teatrul Național "I.L. Caragiale" și la Muzeul Național de Artă al României. Observatorul Astronomic Amiral Vasile Urseanu te așteaptă cu o experiență extrem de educativă care va fi, cu siguranță, apreciată de micuțul tău. Dacă îți place să ieși la o cafea în timpul liber alături de prietenii tăi, atunci în această zonă vei putea alege dintr-o multitudine de restaurante, terase și pub-uri. Nu lipsesc nici skybar-urile, care îți oferă priveliști de excepție de la înălțime. Cele câteva parcuri din zona Victorieim - Romană - Universitate au dimensiuni destul de reduse, dar sunt frumos îngrijite. Printre acestea amintim Parcul Ateneului și Parcul Nicolae Iorga. Dacă preferi plimbările lungi în weekend, atunci vei avea la dispoziție în apropiere parcurile Kiseleff și Cișmigiu. Nu uita, de asemenea, că te vei afla la doi pași de Centrul Vechi al Capitalei, dar și că vei putea să faci o plimbare cu bicicleta pe Calea Victoriei. În condiții normale, se organizează periodic evenimente în centrul orașului, atât în cadrul Sălii Palatului, cât și în aer liber în Piața Revoluției. În Piața Universității sunt organizate, totodată, diferite târguri și concerte. Vezi pe hartă mai multe puncte de interes din zona Victoriei-Romană-Universitate.
Chiar la Piața Universității se află principala unitate sanitară din zonă. Este vorba despre Spitalul Clinic Colțea, primul înființat în București. În zona Victoriei - Romană - Universitate vei întâlni mai multe clinici private, precum Policlinica Enescu din cadrul rețelei de sănătate Regina Maria și Spitalul Clinic Sanador. La doi pași de Piața Romană se află Spitalul Clinic de Urgențe Oftalmologice, cel mai mare din România cu o astfel de specializare. Consultă harta pentru a afla ce clinici private ai în apropierea casei, dacă te muți în această parte a orașului.
Găsești numeroase restaurante, terase și cafenele potrivite pentru toate gusturile în Centrul Vechi al orașului, pe Calea Victoriei sau în zona din spatele Ateneului Român. Câteva fast food-uri ai la dispoziție în Unirea Shopping Center. Nu foarte departe, în zona Romană, ai și alte opțiuni. Află de pe hartă unde găsești cel mai apropiat restaurant de noua ta casă.
Sucursale ale diferitelor bănci sunt dispuse de-a lungul principalelor artere de circulație sau în marile intersecții din zonă. Un BRD, spre exemplu, găsești chiar lângă Cercul Militar Național. Pe Bulevardul Nicolae Bălcescu o sucursală Banca Transilvania și ING Bank. La doi pași de Piața Universității se află și Palatul Băncii Naționale a României. Consultă harta pentru mai multe detalii.
Înainte să pleci...
Ești sigur că ai văzut și aceste proprietăți?
310.000 €
București, Herăstrău
2 camere
53 mp
Etaj 7
400.000 € + TVA
București, Ultracentral
3 camere
72 mp
Parter / 6
420.000 € + TVA
București, Floreasca
2 camere
80,3 mp
Etaj 1
350.760 € + TVA
București, Iancu Nicolae
3 camere
91,2 mp
Parter
432.500 € + TVA
București, Pipera
3 camere
153 mp
Etaj 3
530.000 € + TVA
București, Floreasca
3 camere
116,5 mp
Etaj 1 / 7
Creează alertă
Salvează căutarea ca să primești pe email ultimele anunțuri publicate
Apartamente noi cu 2 camere de vânzare în Ultracentral, București
Cere detalii prin email
*
*
*
*
Detaliile tale de contact vor fi partajate cu R&d Advisers
Asigurare de viață/lună Costul este variabil. În funcție de banca aleasă, procentul variază între 0.0259% și 0.035% din soldul creditului.
Costuri cu achiziția19.193 RON
Comision agenție Întreabă agenţia
Onorariu notarial13.402 RON
Taxă întabulare OCPI3.008 RON
Autentificare contract credit2.783 RON
Preț de achiziție2.005.103 RON
Preț locuință1.657.110 RON
TVA 21%347.993 RON
Preț de achiziție2.005.103 RON
Preț locuință1.657.110 RON
TVA 21%
347.993 RON
Avans minim1.398.346 RON
Credit pe 30 de ani606.757 RON
Cost achitat în prima lună
Taxa evaluare imobil(până la)
575 RON
Rata lunară (variabilă)4.263 RON
Depozit colateral12.789 RON
Comision de garantare FNGCIMM167 RON
Asigurare anuală imobil2.005 RON
Poliță PAD130 RON
Tarif arhivă electronică102 RON
Costuri adiționale2.145 RON + taxe notariale
Asigurare viață și complexă (opțională)Costul este variabil. În funcție de banca aleasă, procentul variază între 0.0259% și 0.035% din soldul creditului
Onorariu notarialconform tarif notarial
Taxă întabulare OCPI2.145 RON
i
Toate valorile de mai sus sunt estimative și nu reprezintă în mod obligatoriu costurile exacte pe care le veți primi de la companiile/instituțiile prin care veți încheia tranzacția.
Căutarea a returnat prea multe rezultate, ce pot reduce relevanța alertelor pe care le vei primi.
Îți recomandăm să aplici mai multe criterii de filtrare (ex: nr. camere, preț, zonă).