5

Apartament 3 camere de vanzare | zona premium | 13 Septembrie- Marriott |

310.534 €

Central, București

Nr. cam.:
3
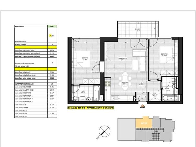
Sup. utilă:
80 mp
Etaj:
3 / 11
An constr.:
2024 (Finalizată)
  • • Locație aproximativă
  • • Vizionare prin apel video

Descriere apartament

Apartament 3 camere – 80 mp utili – zona 13 Septembrie – Marriott Va propunem spre vanzare un apartament spatios cu 3 camere, avand o suprafata utila de 80 mp, situat in zona 13 Septembrie – Marriott, intr-un bloc nou, construit la standarde superioare de calitate si confort. Proprietatea se distinge printr-un design modern, compartimentare eficienta si finisaje de top, fiind potrivita atat pentru locuire proprie, cat si pentru investitie sigura intr-una dintre cele mai cautate zone din centrul Bucurestiului. Detalii tehnice si finisaje: Pereți din caramida Porotherm Izolatie exterioara cu vata bazaltica de 10 cm Fatada ventilata – design contemporan si eficienta energetica superioara Incalzire in pardoseala Usi interioare de tip FILOMURO Parchet premium Aer conditionat multisplit cu convectoare incastrate Obiecte sanitare, gresie si faianta de cea mai buna calitate Tamplarie exterioara din aluminiu cu geam termopan Pret: 310.534 Euro (TVA inclus) Avantaje si potential, acest apartament este ideal pentru: locuinta de familie, datorita spatiului generos si compartimentarii inteligente; rezidenta premium pentru expati sau profesionisti din zona central-sudica a Capitalei; investitie pentru inchiriere pe termen lung (cerere constanta in zona Marriott – Izvor – Cotroceni); birou de reprezentanta, cabinet de consultanta, agentie de design sau arhitectura, datorita zonei si imaginii de ansamblu elegante; achizitie pentru revanzare ulterioara, intrucat zona are un potential de apreciere ridicat in urmatorii ani. Amplasarea in zona 13 Septembrie – Marriott asigura acces rapid catre centrul orasului, Piata Unirii, Cotroceni si principalele puncte de interes, precum scoli, gradinite, centre comerciale si zone verzi. Acest apartament imbina perfect calitatea constructiei, confortul modern si pozitia premium, fiind o alegere excelenta atat pentru o familie care isi doreste stabilitate, cat si pentru un investitor care urmareste randament sigur si valoare in timp.
Citește mai mult Citește mai puțin
Decomandat 1 Balcon / Terasă / Logie Încălzire prin pardoseală

Detalii apartament

ID anunț: XFOV1001N Copiat! 274771733 Copiat!
Actualizat în: 21 Aprilie 2026
Suprafață utilă totală: 80 mp
Suprafață construită: 94 mp
Nr. bucătării: 1
Nr. băi: 2
Structură rezistență: Altele
Tip imobil: Bloc de apartamente
Regim înălțime: P+11E

Utilități

Destinație
Birouri
Pereți
Faianță Vopsea lavabilă
Podele
Parchet Gresie
Ușă intrare
Metal
Uși interior
Celulare
Izolații termice
Exterior Interior
Ferestre cu geam termopan
Aluminiu
Facilități imobil
Lift
Servicii imobil
Pază

Vecinătăți:

Scoala/gradinita, Centru universitar, Mall, Hotel, Benzinarie, Trafic Pietonal, Supermarket, Banca, Zona comerciala, Autobuz

Puncte de interes

Mijloace transport
bus-station
statia Piata Arsenalului, linia 385, 136, N121, N122
Stații autobuz aprox. 195 m
tram-station
Statie RATB
Stații tramvai aprox. 478 m
trolleybus-station
Statia Piata Operei, linia 61,69,90,91
Stații troleibuz aprox. 1098 m
metro-station
Metrorex. Stația Eroilor (M1),(M3)(1979)
Stații metrou aprox. 1160 m
Școală
kindergarten
Gradinita Cuibusorul Zanelor
Gradinițe aprox. 476 m
kindergarten
Gradinita nr. 268
Gradinițe aprox. 500 m
school
Scoala Nr. 115
Școli aprox. 529 m
university
Facultatea de medicina veterinara
Universități aprox. 754 m
Recreere
supermarket
Carrefour express
Supermarket aprox. 119 m
park
Parc
Parcuri aprox. 138 m
public-square
Piata Arsenalului
Piețe publice aprox. 210 m
sports-ground
Teren sportiv
Terenuri sport aprox. 323 m

Detalii despre preț și costuri

Prețul pe piață

Preț cerut: 310.534 €

Preț min. zonă
Preț max. zonă

89% dintre proprietățile similare ca zonă și nr. camere au prețul cerut mai mic. mai multe...

Bine de știut: prețul unei proprietăți este influențat și de alte caracteristici, cum ar fi: vechime, localizare, vecinătăți, suprafață, compartimentare, amenajări, dotări, etc. mai puțin...

Insight premium disponibil după login

Costuri cu achiziția

Fără credit
Credit ipotecar
Noua casă

i

Costuri adiționale mai puțin știute la achiziție: taxe notariale, comisioane etc.

Insight premium disponibil după login

Proprietăți similare

Apartament cu 2 camere decomandat în Central
325.066 €
București, Central
2 camere
45 mp
Parter / 3
Apartament cu 3 camere decomandat în Central
332.000 €
București, Central
3 camere
78 mp
Etaj 3
Apartament cu 4 camere semidecomandat, mobilat în Central
287.000 €
București, Central
4 camere
98 mp
Etaj 1

Detalii de contact

PALACE REAL ESTATE

Tatiana Tudor Consultant Imobiliar - Partener

PALACE REAL ESTATE
PRO

Abonează-te la newsletter să fii primul care primește cele mai noi recomandări de proprietăți și sfaturi de la experți.

CONTACT

Creează alertă

Salvează căutarea ca să primești pe email ultimele anunțuri publicate

Apartamente noi cu 3 camere de vânzare în zona Central, Ultracentral