2

Vanzare apartament 3 camere | Piata Iancului metrou | centrala proprie | etaj 3/

158.900 €

Central, București

Nr. cam.:
3
Sup. utilă:
61 mp
Etaj:
3 / 10
An constr.:
1964 (Finalizată)
  • • Locație aproximativă
  • • Vizionare prin apel video

Descriere apartament

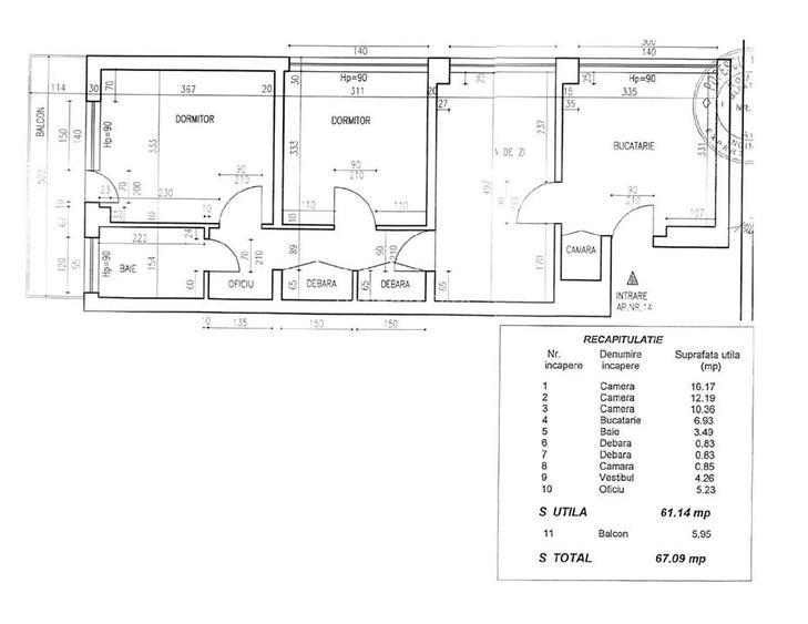
Agentia REfinder va propune spre vanzare un apartament de 3 camere in zona Piata Iancului, situat intr-un bloc de 10 etaje, construit in anul 1964, este situat la etajul 3, are 3 camere, 1 bai(e) , 1 balcon(oane). Compartimentarea este de tip semidecomandat si are o suprafata utila de 67 mp. Situat la 3 minute pietonal de metrou Piata Iancului, bloc anvelopat, solid, ingrijit. Apartwmentul renovat, mobilat si utilat complet, cu bucatarie inchisa, mărită, baie cu geam de aerisire, hol cu dressing mare, foarte luminos, ferestre mari. Centrala proprie , 3 aparate de aer conditionat, usa securizată, un cămin cald si extrem de plăcut. Ca si localizare, apartamentul oferit spre vanzare este situat in zona Piata Iancului, in apropiere de Metrou. Pretul de vanzare este: 158900 EURO. Id intern: REF . !!Pentru serviciile de intermediere imobiliara, Agentia percepe un comision standard din pretul de vanzare!! !!Vizionarile se fac doar în baza semnarii în prealabil a Fisei de Vizionare.!!
Citește mai mult Citește mai puțin
Confort 1 Semidecomandat Mobilat 1 Balcon / Terasă / Logie Aer condiționat Centrală proprie

Detalii apartament

ID anunț: X54H1080Q Copiat! 274946211 Copiat!
Actualizat în: 03 Aprilie 2026
Suprafață utilă totală: 61 mp
Suprafață construită: 67 mp
Nr. băi: 1
Structură rezistență: Altele
Tip imobil: Bloc de apartamente
Regim înălțime: P+10E

Utilități

Destinație
Rezidențial
Izolații termice
Exterior
Bucătărie
Utilată Mobilată
Electrocasnice
Aragaz Hotă Frigider Hotă Mașină de spălat
Facilități imobil
Lift Interfon
Comision
3%

Vecinătăți:

Scoala/gradinita, Parc, Central, Hotel, Piata, Benzinarie, Supermarket, Banca, Zona comerciala, Autobuz, Metrou

Puncte de interes

Mijloace transport
bus-station
Statia Agricultorilor linia 90, 86
Stații autobuz aprox. 166 m
tram-station
Statia Piata Iancului, linia 31
Stații tramvai aprox. 212 m
trolleybus-station
Statia Piata Iancului, linia 55
Stații troleibuz aprox. 282 m
metro-station
Statia Soseaua Mihai Bravu, linia 14
Stații metrou aprox. 668 m
Școală
school
Scoala Nr. 85 Vasile Bunescu (en)
Școli aprox. 106 m
school
Asociatia Culturala Bravissimo
Școli aprox. 170 m
kindergarten
Gradinita Schritt fuer Schritt
Gradinițe aprox. 188 m
university
Universitatea Nationala de Arta Teatrala si Cinematografica
Universități aprox. 263 m
Recreere
sports-ground
Teren sportiv
Terenuri sport aprox. 180 m
supermarket
White Jaguar
Supermarket aprox. 250 m
public-square
Piata Iancului
Piețe publice aprox. 273 m
park
Parc
Parcuri aprox. 327 m

Detalii despre preț și costuri

Prețul pe piață

Preț cerut: 158.900 €

Preț min. zonă 84.000 €
Preț max. zonă 277.000 €

77% dintre proprietățile similare ca zonă și nr. camere au prețul cerut mai mic. mai multe...

Bine de știut: prețul unei proprietăți este influențat și de alte caracteristici, cum ar fi: vechime, localizare, vecinătăți, suprafață, compartimentare, amenajări, dotări, etc. mai puțin...

Costuri cu achiziția

Fără credit
32.661 RON
Credit ipotecar
34.448 RON
Noua casă
950 RON+ taxe notariale

i

Costuri adiționale mai puțin știute la achiziție: taxe notariale, comisioane etc.

Proprietăți recomandate

Detalii de contact

Refinder Elite

Ioana Manea Broker imobiliar

4.00(5 review-uri)

Refinder Elite
PRO

Abonează-te la newsletter să fii primul care primește cele mai noi recomandări de proprietăți și sfaturi de la experți.

CONTACT

Creează alertă

Salvează căutarea ca să primești pe email ultimele anunțuri publicate

Apartamente cu 3 camere de vânzare în zona Central, Ultracentral