VANZARE
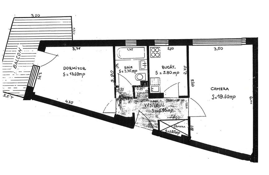
Apartamentul cu doua camere plus dependințe, este situat într-un imobil solid, construit între anii 1973-1976, localizat în imediata apropiere a Parcului Grădina Cișmigiu.
Situat la etajul 4/8, este vorba despre un apartament intim, aerisit și foarte bine compartimentat.
Atât prin poziția imobilului, cât și prin orientarea ferestrelor acestuia, acest apartament beneficiază de vedere libera și de multa lumina naturala.
Oferta un balcon spatios, la rândul lui prezentat în fotografii.
Este vorba despre un apartament renovat de la "0", de la tencuieli și instalații, pana la finisajele de buna calitate și se vinde complet mobilat și utilat, exact așa cum este prezentat în fotografii.
Dispune de parchet din lemn masiv de stejar, recondiționat.
Atât pentru mai multe informații, detalii tehnice, etc. cât și pentru stabilirea unei vizionari, așteptăm sa ne contactați, fiind pregătiți sa va oferim asistenta necesară în tot procesul de cumpărare.
95%dintre proprietățile similare ca zonă și nr. camere au prețul cerutmai mic.
mai multe...
Bine de știut: prețul unei proprietăți este influențat și de alte caracteristici, cum ar fi: vechime, localizare, vecinătăți, suprafață, compartimentare, amenajări, dotări, etc.
mai puțin...
Costuri cu achiziția
Fără credit
9.735 RON
Credit ipotecar
11.692 RON
Noua casă
1.154 RON+ taxe notariale
i
Costuri adiționale mai puțin știute la achiziție: taxe notariale, comisioane etc.
Sediul central - Timișoara
Bulevardul Victor Babeș nr. 2, 300230, Timișoara, România
Tel: +40.374.40.44.98 / Fax: +40.256.401.179
Email: suport@imobiliare.ro
Luni - Vineri 08:00 - 20:00
Punct de lucru - București: Iride Business Park, Bld. Dimitrie
Pompeiu 9-9A, Clădirea B2B,
020335, Sector 2, București, România
CONTACT
Sediul central - Timișoara
Bulevardul Victor Babeș nr. 2, 300230, Timișoara, România
Tel: +40.374.40.44.98 / Fax: +40.256.401.179
Email: suport@imobiliare.ro
Luni - Vineri 08:00 - 20:00
Punct de lucru - București: Iride Business Park, Bld. Dimitrie
Pompeiu 9-9A, Clădirea B2B,
020335, Sector 2, București, România
Vechea "Gara a Targovistei" astazi parte din Gara de Nord
aprox.
1972 m
Institutul Cervantes
aprox.
275 m
Ateneul roman, Bucuresti
aprox.
473 m
Scoala Nr. 118 Vasile Alecsandri
aprox.
508 m
Colegiul National Sfantul Sava
aprox.
576 m
Scoala Generala Nr. 5 Corneliu M. Popescu
aprox.
632 m
ASLS (en)
aprox.
637 m
Schiller Institut
aprox.
639 m
Scoala Nr. 19 Tudor Arghezi
aprox.
653 m
Scoala speciala nr. 10
aprox.
676 m
Fostul Liceu de Arte Plastice Nicolae Tonitza - Sediul
aprox.
681 m
Amfiteatrul Sahia
aprox.
708 m
Scoala special nr. 10
aprox.
717 m
Goethe Institut (en)
aprox.
728 m
SNSPA - Cladirea CIC
aprox.
835 m
Grup Școlar "Dragomir Hurmuzescu"
aprox.
898 m
Palatul Fundației Universitare "Carol I"
aprox.
312 m
Facultatea de Matematica-Informatica
aprox.
361 m
UAUIM -Universitatea de Arhitectura si Urbanism Ion Mincu
aprox.
383 m
Facultatea de Stiinte
aprox.
399 m
Facultatea de Limbi si Literaturi Straine
aprox.
424 m
Facultatea de Istorie
aprox.
425 m
Facultatea de litere (en)
aprox.
440 m
Universitatea Nationala de Muzica Conservator
aprox.
450 m
Universitatea Nationala de Muzica Bucuresti
aprox.
450 m
Facultatea de Chimie
aprox.
500 m
Facultatea de Farmacie/Pharmacy Faculty
aprox.
531 m
Facultatea de Farmacie
aprox.
539 m
Facultatea de Stiinte Politice
aprox.
560 m
Facultatea de Sociologie si Asistenta Sociala
aprox.
576 m
Facultatea de Sociologie și Asistență Socială
aprox.
579 m
Gradinita nr.4 "Lizuca"
aprox.
699 m
Gradinita nr.203 (fosta Clementa)
aprox.
703 m
Gradinita nr. 203 program prelungit
aprox.
704 m
Gradinita nr. 248
aprox.
807 m
Gradinita Nr. 78 Miguel de Cervantes
aprox.
808 m
Gradinita nr. 116
aprox.
836 m
Gradinita nr. 73
aprox.
874 m
Gradinita MAPN
aprox.
953 m
Gradinita Ioanid
aprox.
1124 m
Ioanid
aprox.
1124 m
Gradinita Smiley
aprox.
1207 m
Gradinita numarul 257
aprox.
1247 m
Gradinita Prikindel
aprox.
1260 m
Gradinita numarul 133
aprox.
1277 m
Gradinita nr. 85
aprox.
1316 m
Mega Image Brezoianu
aprox.
287 m
Pravalia Maestrului
aprox.
451 m
Mag.Victoria
aprox.
477 m
Mega Image Rosetti Non-Stop
aprox.
527 m
Mega Image Elisabeta Non-Stop
aprox.
580 m
ilanplant
aprox.
583 m
Mega Image Magheru
aprox.
677 m
Mega Image Amzei Non-Stop
aprox.
702 m
Nik Non-Stop
aprox.
735 m
Bacania Coco
aprox.
890 m
OK Non-stop Supermarket (en)
aprox.
988 m
OK Non-Stop
aprox.
988 m
dm
aprox.
990 m
Cocor
aprox.
1039 m
BILLA - Cocor
aprox.
1053 m
"METROPLIS CENTER"
aprox.
1683 m
Parcare
aprox.
24 m
Parcare
aprox.
85 m
Parcare
aprox.
99 m
Parcare
aprox.
160 m
Parcare
aprox.
192 m
Parcare cu plata
aprox.
201 m
Parcare
aprox.
218 m
Parcare
aprox.
220 m
Parcare
aprox.
290 m
Parcare
aprox.
331 m
Parcare
aprox.
346 m
Parcare
aprox.
346 m
Parcare
aprox.
350 m
Parcare
aprox.
354 m
Parcare
aprox.
376 m
Parc
aprox.
90 m
Parc
aprox.
175 m
Parc
aprox.
193 m
Parc
aprox.
200 m
Piata Walter Maracineanu
aprox.
209 m
Parc
aprox.
210 m
Entrace
aprox.
248 m
Parc
aprox.
290 m
Parc
aprox.
382 m
Parc
aprox.
417 m
Park (en)
aprox.
418 m
Piata George Enescu
aprox.
418 m
Parcul Cismigiu
aprox.
431 m
Parcul Cismigiu
aprox.
439 m
Piata Universitatii
aprox.
463 m
Piata Revolutiei
aprox.
245 m
Piața Drapelului (Tricolorului)
aprox.
300 m
Piata Universitatii
aprox.
557 m
Piata Natiunilor Unite
aprox.
834 m
Piata Roma
aprox.
854 m
Piata Rosetti
aprox.
856 m
Piața Sfântul Anton
aprox.
983 m
Piata Timpului
aprox.
985 m
Piața Romană
aprox.
1081 m
Piața Constituției
aprox.
1161 m
Piata Emil Cioran (Vergilius) (en)
aprox.
1214 m
Piata Bibescu
aprox.
1364 m
Piata Latina
aprox.
1476 m
Piața Regina Maria
aprox.
1811 m
Piata Arsenalului
aprox.
1955 m
Teren sportiv
aprox.
662 m
Teren sportiv
aprox.
717 m
Teren sportiv
aprox.
760 m
Baza sportiva Universitatea Bucuresti
aprox.
1013 m
teren tenis
aprox.
1046 m
Teren sportiv
aprox.
1289 m
Teren sportiv
aprox.
1460 m
Teren sportiv
aprox.
1463 m
Teren sportiv
aprox.
1545 m
Teren sportiv
aprox.
1552 m
Teren sportiv
aprox.
1573 m
Teren sportiv
aprox.
1573 m
Teren sportiv
aprox.
1587 m
Teren sportiv
aprox.
1597 m
Teren sportiv
aprox.
1603 m
Farmacia Academia
aprox.
181 m
Sibpharmed
aprox.
287 m
Farmacia Reteta
aprox.
300 m
SensiBlu
aprox.
304 m
Royal Blu Pharmacy
aprox.
332 m
Farmacia Nr. 1
aprox.
340 m
Catena
aprox.
390 m
Farmacia Dona 6
aprox.
426 m
Sensiblu
aprox.
435 m
belladona
aprox.
453 m
Gema Farm Impex
aprox.
453 m
Farmnicol
aprox.
503 m
Sensiblu
aprox.
591 m
Farmacia Coltea
aprox.
634 m
Urgent Farm
aprox.
654 m
Policlinica Ministerului de Interne
aprox.
578 m
Centrul Medical Unirea sediul Enescu
aprox.
616 m
Centrul Medical Unirea Enescu
aprox.
631 m
Policlinica (en)
aprox.
663 m
Centrul Medical Batistei
aprox.
668 m
Spitalul Colțea
aprox.
710 m
Spitalul Clinic Prof. Dr. Doc Ovidiu Marina
aprox.
715 m
Institutul National de Recuperare
aprox.
723 m
Centru medical MEDSANA
aprox.
774 m
Centrul Medical Academica
aprox.
784 m
Clinica ORL Dr. Mocanu
aprox.
789 m
Spitalul Clinic de Chirurgie Oro-Maxilo-Faciala
aprox.
849 m
Clinica Reumatologie "Dr. Ion Stoia"
aprox.
864 m
Spitalul Carol Davila de urologie
aprox.
933 m
Spitalul Clinic de Nefrologie Dr. Carol Davila
aprox.
933 m
Burger Van Bistro
aprox.
92 m
Hotel Carpati *
aprox.
102 m
Hotel Opera (en)
aprox.
137 m
Grand Hotel Continental ****
aprox.
191 m
Excalibur
aprox.
193 m
Restaurant Berlin
aprox.
210 m
BOUTIQUE DU PAIN
aprox.
212 m
Crama cu bere
aprox.
222 m
Hotel Capitol
aprox.
236 m
Vatra
aprox.
243 m
Cercul Militar National
aprox.
254 m
Restaurant Capitol
aprox.
258 m
Stadio
aprox.
260 m
Pizza Cafe Colosseum
aprox.
263 m
Restaurant
aprox.
278 m
Nana
aprox.
93 m
Demmers Teahouse
aprox.
328 m
Cafeneaua Arhitectilor
aprox.
335 m
Zvon Caffe
aprox.
409 m
Origo
aprox.
457 m
Mi-nut
aprox.
482 m
Blues Cafe
aprox.
492 m
Mara Mura
aprox.
493 m
Aida Caffe
aprox.
493 m
INDIEpendent
aprox.
496 m
Vol Cafe
aprox.
500 m
Nirvana
aprox.
503 m
Valea Regilor
aprox.
506 m
Carada
aprox.
524 m
Dolce Baccio
aprox.
531 m
James Joyce's Pub & Restaurant
aprox.
201 m
Question Mark Social Club
aprox.
223 m
Coloseum
aprox.
282 m
Nexus Gamers Pub
aprox.
303 m
Edgar`s Pub
aprox.
328 m
Charlatans Irish Pub
aprox.
403 m
Club Expirat and Other Side
aprox.
452 m
Clock`s
aprox.
600 m
Vault
aprox.
670 m
The Gin Factory
aprox.
678 m
Iron City
aprox.
692 m
Bastards
aprox.
693 m
Charme
aprox.
694 m
S.A.L.T.
aprox.
697 m
Beraria Smardan
aprox.
701 m
Control Club
aprox.
210 m
LondonPhone
aprox.
269 m
Gambrinus
aprox.
289 m
Yellow Bar
aprox.
334 m
Fratelli Espresso Bar
aprox.
436 m
Energiea
aprox.
450 m
Interbelic Victoria
aprox.
471 m
Opium Stage Club
aprox.
483 m
Beer o'clock
aprox.
489 m
The Drunken Lords
aprox.
682 m
Expat
aprox.
683 m
Laboratorul de Cocktailuri
aprox.
688 m
Que Pasa
aprox.
690 m
Tiki
aprox.
691 m
Colorteca
aprox.
696 m
BCR
aprox.
125 m
Banca Carpatica
aprox.
157 m
Banca Carpatica
aprox.
157 m
ING Victoriei
aprox.
158 m
Volksbank
aprox.
220 m
Banca Romaneasca
aprox.
260 m
UniCredit Bank - Ag. Millenium
aprox.
302 m
Unicredit Țiriac Bank (en)
aprox.
312 m
Romanian Development Bank (BRD) (en)
aprox.
329 m
BRD Academiei
aprox.
332 m
Banca Transilvania - Ag. Universitate
aprox.
357 m
PIRAEUS BANK
aprox.
389 m
Sucursala Raiffeisen Bank (en)
aprox.
390 m
Bancpost
aprox.
392 m
Raiffeisen Bank
aprox.
395 m
Fiind o zonă ultracentrală, aceasta oferă numeroase opțiuni de călătorie cu mijloacele de transport în comun, și este bine conectată cu restul orașului. Ai, în primul rând, la dispoziție stațiile de metrou Piața Victoriei, Piața Romană și Universitate. Astfel, te vei putea deplasa rapid prin oraș, evitând aglomerația de la suprafață. Toate acestea sunt situate pe magistrala 2 care traversează Bucureștiul de la nord la sud. În plus, de la Piața Victoriei vei putea lua metroul și pe magistrala 1 pentru a ajunge, de exemplu, în cartierul Pantelimon sau în zona Eroilor. Prin Piața Universității urmează să treacă și magistrala 5 care va lega cartierele Drumul Taberei și Pantelimon. Până acum, s-au deschis însă doar stațiile de metrou aflate în zona Drumul Taberei. Alte mijloace de transport în comun care ar putea să-ți fie de ajutor atunci când te vei muta în această zonă sunt autobuzele 300 și 381. Primul face legătura dintre Piața Romană și Piața Victoriei continuându-și apoi traseul de-a lungul Bulevardului Ion Mihalache, iar cel de-al doilea conectează Piața Victoriei cu zona Tineretului și cu cartierul Berceni. De pe Bulevardul Regina Elisabeta vei putea lua troleibuzul 90 pentru a ajunge în Drumul Taberei sau în zona Arenei Naționale, iar în fața Spitalului Colțea vei găsi stația autobuzului 381 care merge în cartierul Berceni. Iar dacă preferi să te deplasezi pe două roți, vei avea la dispoziție una dintre pistele speciale destinate bicicliștilor pe Calea Victoriei. Aceasta îți va oferi, în plus, oportunitatea ideală de a admira arhitectura deosebită a clădirilor aflate de o parte și de alta a uneia dintre cele mai frumoase străzi din București. Consultă harta pentru a afla unde sunt localizate stațiile mijloacelor de transport în comun.
În această zonă găsim sediul central al Universității din București și cel al Academiei de Studii Economice din București (ASE), unele dintre cele mai prestigioase instituții de învățământ superior din România. Tot aici se află și sediile mai multor facultăți. Ai și alte instituții de învățământ cu renume la doi pași de casă, precum precum Colegiul Național "Sfântul Sava", Colegiul Național "Gheorghe Lazăr", Liceul Teoretic Bulgar "Hristo Botev" și Universitatea Națională de Muzică. De menționat este și Căminul Moxa, aflat în zona Calea Victoriei, în care sunt cazați unii dintre studenții ASE. Consultă harta de mai jos pentru a vedea și celelalte unități de învățământ din zonă.
În această parte a orașului vei găsi numeroase reprezentanțe ale unor branduri de lux. Cele mai multe magazine alimentare din zonă au dimensiuni reduse. Pentru cumpărături îți recomandăm Piața Amzei, aflată la doi pași de Romană și modernizată recent. Aici găsești, pe lângă comercianți de unde poți cumpăra legume și fructe și câteva magazine cu preparate proaspete de la burgeri, la pâine artizanală sau înghețată. Centrul Vechi găzduiește, totodată, reprezentanțe ale unor retaileri de modă. Tot aici găsești și librăria Cărturești Carusel, una dintre cele mai frumoase din oraș. O librărie Cărturești deschisă într-o altă clădire deosebită poate fi găsită și în apropiere de Piața Romană. Un spațiu comercial cu renume este Magazinul Victoria, un monument istoric al orașului. Magazinul București, amplasat la intersecția străzilor I.C. Brătianu și Lipscani a fost reconstruit recent cu o investiție substanțială. Ai în apropiere magazinul Cocor, centrul comercial Unirea Shopping City și un hipermarket Carrefour. Cu mașina sau metroul poți să ajungi destul de repede la mall-ul AFI Cotroceni. Consultă harta și vezi ce magazine vei avea în apropierea noii tale case.
Aceasta este una dintre cele mai aglomerate zone din București la orele de vârf. Aici găsești însă și unele dintre puținele parcări subterane din Capitală. Chiar vis-a-vis de Universitatea București ai intrarea într-o astfel de parcare cu peste 400 de locuri. O parcare destul de încăpătoare poate fi găsită și în Piața Victoriei. Atenție, însă, această zonă se poate aglomera nu doar din cauza traficului, ci și din cauza diverselor manifestări sau proteste care se organizează, de obicei, în fața Palatului Victoria, sediul Guvernului României. Dacă te hotărăști să te muți în zonă, atunci îți recomandăm să te interesezi de posibilitatea închirierii unui loc de parcare pentru mașina ta. Poți face acest lucru apelând la Serviciul Parcaje al ADP Sector 1. Consultă harta pentru a afla unde găsești și alte parcări în zona Victoriei-Romană-Universitate.
Zona Victoriei - Romană - Universitate este un epicentru cultural al Capitalei și oferă numeroase opțiuni de petrecere a timpului liber. Aici vei găsi numeroase muzee impresionante pe care le poți vizita în timpul liber (Muzeul Național de Istorie Naturală "Grigore Antipa", Muzeul Țăranului Român, Muzeul Național George Enescu, etc), vei putea participa la evenimentele în aer liber desfășurate pe Calea Victoriei sau în Piața George Enescu sau vei putea merge la un spectacol organizat pe scena Ateneului Român sau pe cea a Teatrului Notarra. Nu rata nici o vizită la Teatrul Național "I.L. Caragiale" și la Muzeul Național de Artă al României. Observatorul Astronomic Amiral Vasile Urseanu te așteaptă cu o experiență extrem de educativă care va fi, cu siguranță, apreciată de micuțul tău. Dacă îți place să ieși la o cafea în timpul liber alături de prietenii tăi, atunci în această zonă vei putea alege dintr-o multitudine de restaurante, terase și pub-uri. Nu lipsesc nici skybar-urile, care îți oferă priveliști de excepție de la înălțime. Cele câteva parcuri din zona Victorieim - Romană - Universitate au dimensiuni destul de reduse, dar sunt frumos îngrijite. Printre acestea amintim Parcul Ateneului și Parcul Nicolae Iorga. Dacă preferi plimbările lungi în weekend, atunci vei avea la dispoziție în apropiere parcurile Kiseleff și Cișmigiu. Nu uita, de asemenea, că te vei afla la doi pași de Centrul Vechi al Capitalei, dar și că vei putea să faci o plimbare cu bicicleta pe Calea Victoriei. În condiții normale, se organizează periodic evenimente în centrul orașului, atât în cadrul Sălii Palatului, cât și în aer liber în Piața Revoluției. În Piața Universității sunt organizate, totodată, diferite târguri și concerte. Vezi pe hartă mai multe puncte de interes din zona Victoriei-Romană-Universitate.
Chiar la Piața Universității se află principala unitate sanitară din zonă. Este vorba despre Spitalul Clinic Colțea, primul înființat în București. În zona Victoriei - Romană - Universitate vei întâlni mai multe clinici private, precum Policlinica Enescu din cadrul rețelei de sănătate Regina Maria și Spitalul Clinic Sanador. La doi pași de Piața Romană se află Spitalul Clinic de Urgențe Oftalmologice, cel mai mare din România cu o astfel de specializare. Consultă harta pentru a afla ce clinici private ai în apropierea casei, dacă te muți în această parte a orașului.
Găsești numeroase restaurante, terase și cafenele potrivite pentru toate gusturile în Centrul Vechi al orașului, pe Calea Victoriei sau în zona din spatele Ateneului Român. Câteva fast food-uri ai la dispoziție în Unirea Shopping Center. Nu foarte departe, în zona Romană, ai și alte opțiuni. Află de pe hartă unde găsești cel mai apropiat restaurant de noua ta casă.
Sucursale ale diferitelor bănci sunt dispuse de-a lungul principalelor artere de circulație sau în marile intersecții din zonă. Un BRD, spre exemplu, găsești chiar lângă Cercul Militar Național. Pe Bulevardul Nicolae Bălcescu o sucursală Banca Transilvania și ING Bank. La doi pași de Piața Universității se află și Palatul Băncii Naționale a României. Consultă harta pentru mai multe detalii.
Înainte să pleci...
Ești sigur că ai văzut și aceste proprietăți?
205.000 €
București, Cișmigiu
3 camere
102 mp
Etaj 1
210.000 €
București, Cișmigiu
3 camere
102 mp
Etaj 1
198.500 €
București, Cișmigiu
2 camere
50 mp
Etaj 4 / 8
Creează alertă
Salvează căutarea ca să primești pe email ultimele anunțuri publicate
Apartamente cu 2 camere de vânzare în zona Cișmigiu, Ultracentral
Cere detalii prin email
*
*
*
*
Detaliile tale de contact vor fi partajate cu Green Alley Real Estate
Statistici proprietate
Apartamente 2 camere de vânzare
- București
- Zona Cișmigiu
Asigurare de viață/lună Costul este variabil. În funcție de banca aleasă, procentul variază între 0.0259% și 0.035% din soldul creditului.
Costuri cu achiziția11.692 RON
Comision agenție Întreabă agenţia
Onorariu notarial8.214 RON
Taxă întabulare OCPI1.521 RON
Autentificare contract credit1.957 RON
Preț de achiziție1.014.143 RON
Preț locuință1.014.143 RON
TVA 0%Inclus în prețul cerut
Preț de achiziție1.014.143 RON
Preț locuință1.014.143 RON
TVA 0%
Inclus în prețul cerut
Avans minim407.696 RON
Credit pe 30 de ani606.448 RON
Cost achitat în prima lună
Taxa evaluare imobil(până la)
575 RON
Rata lunară (variabilă)4.261 RON
Depozit colateral12.783 RON
Comision de garantare FNGCIMM85 RON
Asigurare anuală imobil1.014 RON
Poliță PAD130 RON
Tarif arhivă electronică102 RON
Costuri adiționale1.154 RON + taxe notariale
Asigurare viață și complexă (opțională)Costul este variabil. În funcție de banca aleasă, procentul variază între 0.0259% și 0.035% din soldul creditului
Onorariu notarialconform tarif notarial
Taxă întabulare OCPI1.154 RON
i
Toate valorile de mai sus sunt estimative și nu reprezintă în mod obligatoriu costurile exacte pe care le veți primi de la companiile/instituțiile prin care veți încheia tranzacția.