Va propunem un apartament de trei camere in Cismigiu, in apropiere de mijloacele de transport in comun, parc si alte facilitati.
Apartamentul este situat la etajul 1 al unui imobil finalizat in anul 1964.
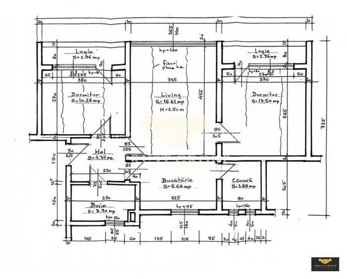
Dispune de o suprafata totala de 67mp, este semidecomandat si compartimentat astfel: living, bucatarie, doua dormitoare, o baie, hol, spatiii de depozitare si un balcon.
Apartamentul dispune de centrala proprie montata in februarie 2024, geamuri termopan, instalatie electrica si sanitara schimbata.
Apartamentul se preteaza ca si locuinta de familie sau investitie si se vinde mobilat si utilat.
*Proprietatea a fost verificata si este valabila, confirmarea fiind facuta, atat timp cat este la promovare.
*Pentru mai multe detalii si pentru programarea unei vizionari, sunati in orice zi intre orele 09:00 si 21:00 inclusiv in week-end incepand cu ora 10:00 pana la 22:00.
77%dintre proprietățile similare ca zonă și nr. camere au prețul cerutmai mic.
mai multe...
Bine de știut: prețul unei proprietăți este influențat și de alte caracteristici, cum ar fi: vechime, localizare, vecinătăți, suprafață, compartimentare, amenajări, dotări, etc.
mai puțin...
Insight premium disponibil după login
Costuri cu achiziția
Fără credit
€
Credit ipotecar
€
Noua casă
€
i
Costuri adiționale mai puțin știute la achiziție: taxe notariale, comisioane etc.
Sediul central - Timișoara
Bulevardul Victor Babeș nr. 2, 300230, Timișoara, România
Tel: +40.374.40.44.98 / Fax: +40.256.401.179
Email: suport@imobiliare.ro
Luni - Vineri 08:00 - 20:00
Punct de lucru - București: Iride Business Park, Bld. Dimitrie
Pompeiu 9-9A, Clădirea B2B,
020335, Sector 2, București, România
CONTACT
Sediul central - Timișoara
Bulevardul Victor Babeș nr. 2, 300230, Timișoara, România
Tel: +40.374.40.44.98 / Fax: +40.256.401.179
Email: suport@imobiliare.ro
Luni - Vineri 08:00 - 20:00
Punct de lucru - București: Iride Business Park, Bld. Dimitrie
Pompeiu 9-9A, Clădirea B2B,
020335, Sector 2, București, România
Vechea "Gara a Targovistei" astazi parte din Gara de Nord
aprox.
1622 m
Gara Bucuresti Nord
aprox.
1799 m
Clinica de Protetica si Ocluzologie si Clinica de Pedodontie
aprox.
107 m
Facultatea de Sociologie și Asistență Socială
aprox.
165 m
Facultatea de Medicina Dentara
aprox.
170 m
Facultatea de Sociologie si Asistenta Sociala
aprox.
171 m
Universitatea din Bucuresti
aprox.
212 m
Rectoratul Universitatii din București și sediul Facultății de Drept
aprox.
396 m
Rectoratul Univ. Bucuresti
aprox.
396 m
UTCB - Facultatea de Utilaj Tehnologic pentru Constructii
aprox.
431 m
Facultatea de Utilaj Tehnologic (UTCB)
aprox.
475 m
Camin C
aprox.
510 m
Camin A
aprox.
514 m
Facultatea de Medicina Veterinara
aprox.
527 m
Camin B
aprox.
539 m
Universitatea Nationala de Muzica Conservator
aprox.
571 m
Universitatea Nationala de Muzica Bucuresti
aprox.
571 m
Gradinita nr. 73
aprox.
149 m
Gradinita Nr. 78 Miguel de Cervantes
aprox.
214 m
Gradinita nr. 248
aprox.
223 m
Gradinita MAPN
aprox.
519 m
Gradinita Smiley
aprox.
862 m
Gradinita Olga Gudynn
aprox.
900 m
Gradinita nr. 116
aprox.
1322 m
Gradinita Prikindel
aprox.
1328 m
Gradinita nr.192, "Pisicile Aristocrate"
aprox.
1340 m
Gradinita nr. 192 (Pisicile aristocrate)
aprox.
1345 m
Gradinita nr. 268
aprox.
1361 m
Gradinita MAPN nr.1
aprox.
1380 m
Gradinita nr. 271
aprox.
1415 m
Gradinita nr. 203 program prelungit
aprox.
1427 m
Gradinita nr.203 (fosta Clementa)
aprox.
1430 m
Liceul Cervantes
aprox.
334 m
Credis - Academia CISCO Credis (en)
aprox.
510 m
Institutul Cervantes
aprox.
629 m
Scoala Nr. 118 Vasile Alecsandri
aprox.
672 m
Scoala de Muzica Nr.3
aprox.
710 m
Liceul "Nicolae Tonitza"
aprox.
714 m
Colegiul National Sfantul Sava
aprox.
748 m
Scoala speciala nr. 10
aprox.
799 m
Scoala special nr. 10
aprox.
883 m
Fostul Liceu de Arte Plastice Nicolae Tonitza - Sediul
aprox.
940 m
ȘCOALA CU CLASELE I-VIII NR. 150
aprox.
1005 m
Scoala Generala Nr. 5 Corneliu M. Popescu
aprox.
1063 m
Ateneul roman, Bucuresti
aprox.
1089 m
Liceul Bulgar Hristo Botev
aprox.
1216 m
Clubul Sportiv Scolar nr.5
aprox.
1321 m
Mega Image Elisabeta Non-Stop
aprox.
194 m
Mega Image Brezoianu
aprox.
617 m
Mag.Victoria
aprox.
822 m
Mega Image
aprox.
1008 m
Carrefour Express
aprox.
1160 m
Mega Image Amzei Non-Stop
aprox.
1167 m
Pravalia Maestrului
aprox.
1190 m
Nik Non-Stop
aprox.
1231 m
Mega Image Rosetti Non-Stop
aprox.
1235 m
Economat
aprox.
1240 m
Mega Image
aprox.
1247 m
Mega Image
aprox.
1251 m
ilanplant
aprox.
1253 m
Mega Image Magheru
aprox.
1257 m
dm
aprox.
1308 m
Parcare
aprox.
296 m
Parcare
aprox.
548 m
Parcare
aprox.
551 m
Parcare cu plata
aprox.
564 m
Parcare
aprox.
625 m
Parcare
aprox.
629 m
Parcare
aprox.
647 m
Parcare
aprox.
653 m
Parcare
aprox.
666 m
Parcare
aprox.
685 m
Parcare
aprox.
690 m
Parcare
aprox.
691 m
Parcare
aprox.
691 m
Parcare
aprox.
692 m
Parcare
aprox.
716 m
Loc de joaca
aprox.
56 m
Parc
aprox.
226 m
Parcul Tosca
aprox.
284 m
Miniparc
aprox.
292 m
Parculet
aprox.
300 m
Parc
aprox.
300 m
Parcul Izvor
aprox.
353 m
Parcul Izvor
aprox.
353 m
Parcul Cismigiu
aprox.
358 m
Parcul Cismigiu
aprox.
364 m
Parc
aprox.
417 m
Loc de Joaca
aprox.
447 m
Parc de joaca
aprox.
450 m
Parc
aprox.
454 m
Parc
aprox.
489 m
Teren sportiv
aprox.
254 m
Baza sportiva Universitatea Bucuresti
aprox.
329 m
teren tenis
aprox.
388 m
Teren sportiv
aprox.
408 m
Teren sportiv
aprox.
518 m
Teren sportiv
aprox.
822 m
Teren sportiv
aprox.
842 m
Teren sportiv
aprox.
855 m
Teren sportiv
aprox.
869 m
Teren sportiv
aprox.
879 m
Teren sportiv
aprox.
880 m
Teren sportiv
aprox.
900 m
Teren sportiv
aprox.
915 m
Teren sportiv
aprox.
933 m
Teren sportiv
aprox.
951 m
Piata Emil Cioran (Vergilius) (en)
aprox.
787 m
Piața Drapelului (Tricolorului)
aprox.
851 m
Piața Constituției
aprox.
923 m
Piata Natiunilor Unite
aprox.
923 m
Piata Revolutiei
aprox.
955 m
Piata Universitatii
aprox.
1238 m
Piata Arsenalului
aprox.
1297 m
Piata Roma
aprox.
1330 m
Piața Sfântul Anton
aprox.
1354 m
Piata Timpului
aprox.
1432 m
Piața Regina Maria
aprox.
1517 m
Piata Bibescu
aprox.
1518 m
Piața Romană
aprox.
1543 m
Piata Rosetti
aprox.
1548 m
Piața Eroilor
aprox.
1589 m
Spitalul Clinic de Chirurgie Oro-Maxilo-Faciala
aprox.
152 m
Institutul Victor Babes
aprox.
426 m
Clinica ORL Dr. Mocanu
aprox.
574 m
Policlinica Ministerului de Interne
aprox.
657 m
Regina Maria - clinica pentru copii
aprox.
689 m
Institutul National de Recuperare
aprox.
1010 m
Spitalul Clinic Prof. Dr. Doc Ovidiu Marina
aprox.
1013 m
Spitalul Carol Davila de urologie
aprox.
1084 m
Spitalul Clinic de Nefrologie Dr. Carol Davila
aprox.
1084 m
Spitalul clinic de nefrologie "Dr. Carol Davila"
aprox.
1126 m
Policlinica Cotroceni
aprox.
1129 m
Medsana Cotroceni
aprox.
1156 m
Centrul Medical Unirea sediul Enescu
aprox.
1160 m
Clinica Medsana
aprox.
1166 m
Centru medical MEDSANA
aprox.
1174 m
Plafar
aprox.
205 m
Urgent Farm
aprox.
212 m
Farmaciile 2NA
aprox.
250 m
Farmacia Sfanta Ecaterina
aprox.
273 m
Farmacia Reteta
aprox.
582 m
Sibpharmed
aprox.
621 m
SensiBlu
aprox.
646 m
Catena
aprox.
718 m
Farmaplus
aprox.
718 m
BellaDonna
aprox.
722 m
Farmacia Help Net
aprox.
780 m
Sensiblu
aprox.
796 m
Farmnicol
aprox.
879 m
Sensiblu
aprox.
879 m
Farmacia Dona 6
aprox.
899 m
Restaurant Excalibur - Locul Cavalerilor
aprox.
61 m
Shaorma
aprox.
74 m
KEBAB MANIA
aprox.
109 m
Fast Food La izvor
aprox.
201 m
Hotel Epoque *****
aprox.
206 m
Shaorma
aprox.
230 m
Hotel *** TRIANON
aprox.
262 m
Bistro de la Joie
aprox.
273 m
Fast food
aprox.
306 m
Caffe & Latte (restaurant,bar,cafe)
aprox.
362 m
Classic
aprox.
364 m
Restaurant Monte Carlo (en)
aprox.
377 m
Restaurant Monte Carlo
aprox.
377 m
Restaurant CAREDY
aprox.
461 m
Tulin
aprox.
484 m
Letters Bar
aprox.
235 m
LondonPhone
aprox.
582 m
Gambrinus
aprox.
614 m
Stuf Vama Veche
aprox.
626 m
Energiea
aprox.
648 m
Interbelic Victoria
aprox.
784 m
Control Club
aprox.
791 m
Marvin bar&more
aprox.
816 m
Opium Stage Club
aprox.
902 m
Beer o'clock
aprox.
918 m
Yellow Bar
aprox.
965 m
La Comedie
aprox.
1049 m
Caffe No. 35
aprox.
1057 m
A1
aprox.
1062 m
Laboratorul de Cocktailuri
aprox.
1069 m
Kafeterya Cafe
aprox.
236 m
Dolce Baccio
aprox.
269 m
Caffeine & Latte
aprox.
375 m
Dante Cafe
aprox.
408 m
Bouche Bee
aprox.
575 m
Origo
aprox.
681 m
Roland 1811 cafe
aprox.
747 m
Nana
aprox.
830 m
Vol Cafe
aprox.
899 m
Aida Caffe
aprox.
904 m
INDIEpendent
aprox.
912 m
Blues Cafe
aprox.
925 m
Nirvana
aprox.
928 m
Valea Regilor
aprox.
935 m
Demmers Teahouse
aprox.
974 m
James Joyce's Pub & Restaurant
aprox.
559 m
Club Expirat and Other Side
aprox.
640 m
Nexus Gamers Pub
aprox.
654 m
Question Mark Social Club
aprox.
916 m
D`eight Pub
aprox.
928 m
Edgar`s Pub
aprox.
974 m
Coloseum
aprox.
978 m
Charlatans Irish Pub
aprox.
987 m
Oktoberfest 3
aprox.
1063 m
Charme
aprox.
1065 m
Old City
aprox.
1075 m
Beraria Smardan
aprox.
1080 m
Vault
aprox.
1082 m
Explorer's Irish Pub
aprox.
1082 m
Queen and Clown Pub
aprox.
1093 m
BRD Piata Mihail Kogalniceanu
aprox.
97 m
Piraeus Bank Romania - Agentia Kogalniceanu
aprox.
106 m
Bank Piraeus
aprox.
109 m
Banca Pireusbank
aprox.
109 m
BRD AGENTIA PIATA MIHAIL KOGALNICEANU
aprox.
110 m
Bancomat BRD
aprox.
152 m
Alpha Bank
aprox.
262 m
Emporki Bank
aprox.
496 m
BCR Izvor
aprox.
559 m
Alpha Bank
aprox.
561 m
Banc Post
aprox.
572 m
Banca Carpatica
aprox.
591 m
Banca Carpatica
aprox.
591 m
CEC Bank
aprox.
610 m
BancPost
aprox.
621 m
Fiind o zonă ultracentrală, aceasta oferă numeroase opțiuni de călătorie cu mijloacele de transport în comun, și este bine conectată cu restul orașului. Ai, în primul rând, la dispoziție stațiile de metrou Piața Victoriei, Piața Romană și Universitate. Astfel, te vei putea deplasa rapid prin oraș, evitând aglomerația de la suprafață. Toate acestea sunt situate pe magistrala 2 care traversează Bucureștiul de la nord la sud. În plus, de la Piața Victoriei vei putea lua metroul și pe magistrala 1 pentru a ajunge, de exemplu, în cartierul Pantelimon sau în zona Eroilor. Prin Piața Universității urmează să treacă și magistrala 5 care va lega cartierele Drumul Taberei și Pantelimon. Până acum, s-au deschis însă doar stațiile de metrou aflate în zona Drumul Taberei. Alte mijloace de transport în comun care ar putea să-ți fie de ajutor atunci când te vei muta în această zonă sunt autobuzele 300 și 381. Primul face legătura dintre Piața Romană și Piața Victoriei continuându-și apoi traseul de-a lungul Bulevardului Ion Mihalache, iar cel de-al doilea conectează Piața Victoriei cu zona Tineretului și cu cartierul Berceni. De pe Bulevardul Regina Elisabeta vei putea lua troleibuzul 90 pentru a ajunge în Drumul Taberei sau în zona Arenei Naționale, iar în fața Spitalului Colțea vei găsi stația autobuzului 381 care merge în cartierul Berceni. Iar dacă preferi să te deplasezi pe două roți, vei avea la dispoziție una dintre pistele speciale destinate bicicliștilor pe Calea Victoriei. Aceasta îți va oferi, în plus, oportunitatea ideală de a admira arhitectura deosebită a clădirilor aflate de o parte și de alta a uneia dintre cele mai frumoase străzi din București. Consultă harta pentru a afla unde sunt localizate stațiile mijloacelor de transport în comun.
În această zonă găsim sediul central al Universității din București și cel al Academiei de Studii Economice din București (ASE), unele dintre cele mai prestigioase instituții de învățământ superior din România. Tot aici se află și sediile mai multor facultăți. Ai și alte instituții de învățământ cu renume la doi pași de casă, precum precum Colegiul Național "Sfântul Sava", Colegiul Național "Gheorghe Lazăr", Liceul Teoretic Bulgar "Hristo Botev" și Universitatea Națională de Muzică. De menționat este și Căminul Moxa, aflat în zona Calea Victoriei, în care sunt cazați unii dintre studenții ASE. Consultă harta de mai jos pentru a vedea și celelalte unități de învățământ din zonă.
În această parte a orașului vei găsi numeroase reprezentanțe ale unor branduri de lux. Cele mai multe magazine alimentare din zonă au dimensiuni reduse. Pentru cumpărături îți recomandăm Piața Amzei, aflată la doi pași de Romană și modernizată recent. Aici găsești, pe lângă comercianți de unde poți cumpăra legume și fructe și câteva magazine cu preparate proaspete de la burgeri, la pâine artizanală sau înghețată. Centrul Vechi găzduiește, totodată, reprezentanțe ale unor retaileri de modă. Tot aici găsești și librăria Cărturești Carusel, una dintre cele mai frumoase din oraș. O librărie Cărturești deschisă într-o altă clădire deosebită poate fi găsită și în apropiere de Piața Romană. Un spațiu comercial cu renume este Magazinul Victoria, un monument istoric al orașului. Magazinul București, amplasat la intersecția străzilor I.C. Brătianu și Lipscani a fost reconstruit recent cu o investiție substanțială. Ai în apropiere magazinul Cocor, centrul comercial Unirea Shopping City și un hipermarket Carrefour. Cu mașina sau metroul poți să ajungi destul de repede la mall-ul AFI Cotroceni. Consultă harta și vezi ce magazine vei avea în apropierea noii tale case.
Aceasta este una dintre cele mai aglomerate zone din București la orele de vârf. Aici găsești însă și unele dintre puținele parcări subterane din Capitală. Chiar vis-a-vis de Universitatea București ai intrarea într-o astfel de parcare cu peste 400 de locuri. O parcare destul de încăpătoare poate fi găsită și în Piața Victoriei. Atenție, însă, această zonă se poate aglomera nu doar din cauza traficului, ci și din cauza diverselor manifestări sau proteste care se organizează, de obicei, în fața Palatului Victoria, sediul Guvernului României. Dacă te hotărăști să te muți în zonă, atunci îți recomandăm să te interesezi de posibilitatea închirierii unui loc de parcare pentru mașina ta. Poți face acest lucru apelând la Serviciul Parcaje al ADP Sector 1. Consultă harta pentru a afla unde găsești și alte parcări în zona Victoriei-Romană-Universitate.
Zona Victoriei - Romană - Universitate este un epicentru cultural al Capitalei și oferă numeroase opțiuni de petrecere a timpului liber. Aici vei găsi numeroase muzee impresionante pe care le poți vizita în timpul liber (Muzeul Național de Istorie Naturală "Grigore Antipa", Muzeul Țăranului Român, Muzeul Național George Enescu, etc), vei putea participa la evenimentele în aer liber desfășurate pe Calea Victoriei sau în Piața George Enescu sau vei putea merge la un spectacol organizat pe scena Ateneului Român sau pe cea a Teatrului Notarra. Nu rata nici o vizită la Teatrul Național "I.L. Caragiale" și la Muzeul Național de Artă al României. Observatorul Astronomic Amiral Vasile Urseanu te așteaptă cu o experiență extrem de educativă care va fi, cu siguranță, apreciată de micuțul tău. Dacă îți place să ieși la o cafea în timpul liber alături de prietenii tăi, atunci în această zonă vei putea alege dintr-o multitudine de restaurante, terase și pub-uri. Nu lipsesc nici skybar-urile, care îți oferă priveliști de excepție de la înălțime. Cele câteva parcuri din zona Victorieim - Romană - Universitate au dimensiuni destul de reduse, dar sunt frumos îngrijite. Printre acestea amintim Parcul Ateneului și Parcul Nicolae Iorga. Dacă preferi plimbările lungi în weekend, atunci vei avea la dispoziție în apropiere parcurile Kiseleff și Cișmigiu. Nu uita, de asemenea, că te vei afla la doi pași de Centrul Vechi al Capitalei, dar și că vei putea să faci o plimbare cu bicicleta pe Calea Victoriei. În condiții normale, se organizează periodic evenimente în centrul orașului, atât în cadrul Sălii Palatului, cât și în aer liber în Piața Revoluției. În Piața Universității sunt organizate, totodată, diferite târguri și concerte. Vezi pe hartă mai multe puncte de interes din zona Victoriei-Romană-Universitate.
Chiar la Piața Universității se află principala unitate sanitară din zonă. Este vorba despre Spitalul Clinic Colțea, primul înființat în București. În zona Victoriei - Romană - Universitate vei întâlni mai multe clinici private, precum Policlinica Enescu din cadrul rețelei de sănătate Regina Maria și Spitalul Clinic Sanador. La doi pași de Piața Romană se află Spitalul Clinic de Urgențe Oftalmologice, cel mai mare din România cu o astfel de specializare. Consultă harta pentru a afla ce clinici private ai în apropierea casei, dacă te muți în această parte a orașului.
Găsești numeroase restaurante, terase și cafenele potrivite pentru toate gusturile în Centrul Vechi al orașului, pe Calea Victoriei sau în zona din spatele Ateneului Român. Câteva fast food-uri ai la dispoziție în Unirea Shopping Center. Nu foarte departe, în zona Romană, ai și alte opțiuni. Află de pe hartă unde găsești cel mai apropiat restaurant de noua ta casă.
Sucursale ale diferitelor bănci sunt dispuse de-a lungul principalelor artere de circulație sau în marile intersecții din zonă. Un BRD, spre exemplu, găsești chiar lângă Cercul Militar Național. Pe Bulevardul Nicolae Bălcescu o sucursală Banca Transilvania și ING Bank. La doi pași de Piața Universității se află și Palatul Băncii Naționale a României. Consultă harta pentru mai multe detalii.
Înainte să pleci...
Ești sigur că ai văzut și aceste proprietăți?
241.900 €
București, Cișmigiu
3 camere
70 mp
Etaj 2 / 3
205.000 €
București, Cișmigiu
2 camere
50 mp
Etaj 6
225.000 €
București, Cișmigiu
3 camere
81 mp
Etaj 1
Creează alertă
Salvează căutarea ca să primești pe email ultimele anunțuri publicate
Apartamente cu 3 camere de vânzare în zona Cișmigiu, Ultracentral
Cere detalii prin email
*
*
*
*
Detaliile tale de contact vor fi partajate cu Trust Group Real Estate