Va prezint spre vanzare un apartament semidecomandat cu 3 camere, situat la etajul 5 al unui imobil amplasat la kilometrul 0 al capitalei, pe Bd. Nicolae Balcescu, langa Biserica Italiana.
Aflandu-se intre Universitate si Piata Romana, proprietatea reprezinta o extraordinara oportunitate pentru investitie, fiind la doar cateva minute de mers pe jos de principalele puncte de interes ale orasului, dar si de Universitatea Bucuresti, Facultatea de Arhitectura si Urbanism Ion Mincu, Academia de Studii Economice (ASE).
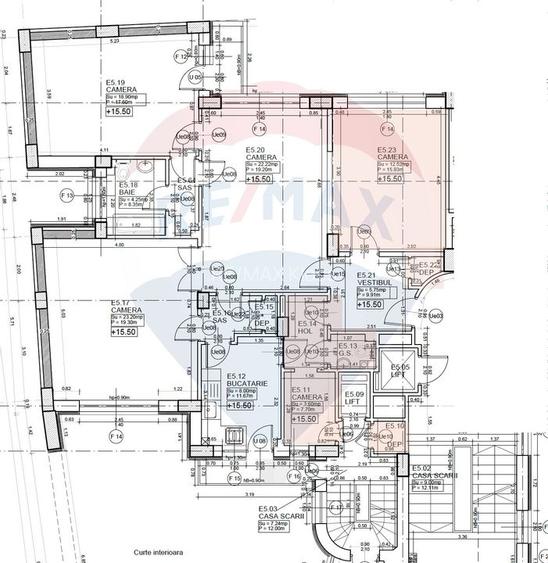
Proprietatea este compusa din 3 camere, o baie, bucatarie, vestibul si spatii pentru depozitare, toate insumand 86mp utili. La acestea se adauga doua logii a cate 2.05mp, respectiv 2.85mp, impreuna cu o boxa de 4.33mp la subsol si o debara de 4mp la mansarda, ajungand la un total de 99.21mp utili cu tot cu anexe. Apartamentul are un vestibul comun cu un vecin.
Blocul este in prezent încadrat la categoria risc seismic I, însă AMCCRS a pus deja sigiliu pe majoritatea apartamentelor, fiind evacuate și urmând a se începe lucrările de reconsolidare și renovare totala, cel mai probabil in decursul acestui an sau începutul celui următor.
Se vor executa 11 puncte de consolidare, readucerea compartimentărilor interioare ale apartamentelor (in cazul de fata nu este nevoie) la forma lor initiala, schimbarea integrala a instalațiilor electrica și sanitara (atat coloanele comune cât și instalatiile din apartamente) și renovarea integrala a apartamentelor (gresie, faianta, parchet, lavabila, usi interioare, usa intrare, ferestre).
Durata estimativa a lucrarilor ar fi de 3 ani de zile. Dupa finalizarea acestora si darea în folosinta a imobilului, timp de 5 ani de zile proprietarii nu au voie sa vanda.
Pentru mai multe detalii, nu ezitati sa ma contactati.
51%dintre proprietățile similare ca zonă și nr. camere au prețul cerutmai mare.
mai multe...
Bine de știut: prețul unei proprietăți este influențat și de alte caracteristici, cum ar fi: vechime, localizare, vecinătăți, suprafață, compartimentare, amenajări, dotări, etc.
mai puțin...
Costuri cu achiziția
Fără credit
10.802 RON
Credit ipotecar
12.891 RON
Noua casă
1.312 RON+ taxe notariale
i
Costuri adiționale mai puțin știute la achiziție: taxe notariale, comisioane etc.
Sediul central - Timișoara
Bulevardul Victor Babeș nr. 2, 300230, Timișoara, România
Tel: +40.374.40.44.98 / Fax: +40.256.401.179
Email: suport@imobiliare.ro
Luni - Vineri 08:00 - 20:00
Punct de lucru - București: Iride Business Park, Bld. Dimitrie
Pompeiu 9-9A, Clădirea B2B,
020335, Sector 2, București, România
CONTACT
Sediul central - Timișoara
Bulevardul Victor Babeș nr. 2, 300230, Timișoara, România
Tel: +40.374.40.44.98 / Fax: +40.256.401.179
Email: suport@imobiliare.ro
Luni - Vineri 08:00 - 20:00
Punct de lucru - București: Iride Business Park, Bld. Dimitrie
Pompeiu 9-9A, Clădirea B2B,
020335, Sector 2, București, România
University of Bucharest - Faculty of Foreign Languages and Literatures (en)
aprox.
208 m
Palatul Fundației Universitare "Carol I"
aprox.
221 m
Facultatea de Farmacie/Pharmacy Faculty
aprox.
221 m
Facultatea de Farmacie
aprox.
227 m
Rectoratul UMF "Carol Davila"
aprox.
273 m
UAUIM -Universitatea de Arhitectura si Urbanism Ion Mincu
aprox.
416 m
Facultatea de Limbi si Literaturi Straine
aprox.
450 m
Facultatea de litere (en)
aprox.
473 m
Facultatea de Matematica-Informatica
aprox.
485 m
Facultatea de Chimie
aprox.
503 m
Facultatea de Istorie
aprox.
516 m
Facultatea de Stiinte
aprox.
528 m
Universitatea Nationala de Muzica Conservator
aprox.
755 m
Universitatea Nationala de Muzica Bucuresti
aprox.
755 m
Gradinita nr.203 (fosta Clementa)
aprox.
239 m
Gradinita nr. 203 program prelungit
aprox.
239 m
Gradinita nr.4 "Lizuca"
aprox.
370 m
Gradinita nr. 116
aprox.
626 m
Gradinita Ioanid
aprox.
689 m
Ioanid
aprox.
693 m
Gradinita numarul 257
aprox.
787 m
Gradinita numarul 133
aprox.
819 m
Gradinita nr. 85
aprox.
987 m
Gradinita nr. 248
aprox.
1219 m
Gradinita Nr. 78 Miguel de Cervantes
aprox.
1223 m
Gradinita nr. 252 cu program prelungit
aprox.
1233 m
Gradinita MAPN
aprox.
1295 m
Gradinita nr. 73
aprox.
1331 m
Gradinita nr. 138 cu program prelungit
aprox.
1345 m
Mega Image Rosetti Non-Stop
aprox.
96 m
ilanplant
aprox.
216 m
Pravalia Maestrului
aprox.
220 m
Mega Image Magheru
aprox.
412 m
Bacania Coco
aprox.
499 m
OK Non-stop Supermarket (en)
aprox.
528 m
OK Non-Stop
aprox.
528 m
Nik Non-Stop
aprox.
551 m
Mega Image Amzei Non-Stop
aprox.
567 m
Mega Image Brezoianu
aprox.
617 m
Mega Image - Icoanei
aprox.
646 m
Mag.Victoria
aprox.
804 m
Mega Image Paleologu
aprox.
919 m
BILLA - Dorobanti
aprox.
949 m
Bila Supermarket
aprox.
954 m
"METROPLIS CENTER"
aprox.
1408 m
Parcare
aprox.
201 m
Parcare
aprox.
247 m
Parcare
aprox.
274 m
Parcare
aprox.
288 m
Parcare
aprox.
320 m
Parcare cu plata
aprox.
326 m
Parcare
aprox.
345 m
Parcare cu plata
aprox.
353 m
Parcare
aprox.
356 m
Parcare
aprox.
379 m
Parcare
aprox.
418 m
Parcare
aprox.
441 m
Parcare
aprox.
443 m
Parcare
aprox.
443 m
Parcare
aprox.
449 m
Parc
aprox.
159 m
Parc
aprox.
164 m
Small park (en)
aprox.
188 m
Parc
aprox.
188 m
Parc
aprox.
260 m
Parc
aprox.
273 m
Parc
aprox.
273 m
Parc
aprox.
291 m
Park (en)
aprox.
314 m
Piata George Enescu
aprox.
314 m
Parc
aprox.
403 m
Small park (en)
aprox.
454 m
Parc
aprox.
454 m
60 Minutes
aprox.
467 m
Parcul "Grădina Icoanei"
aprox.
476 m
Piata Revolutiei
aprox.
239 m
Piata Universitatii
aprox.
472 m
Piața Drapelului (Tricolorului)
aprox.
586 m
Piata Rosetti
aprox.
640 m
Piața Romană
aprox.
838 m
Piata Roma
aprox.
943 m
Piata Timpului
aprox.
1069 m
Piața Sfântul Anton
aprox.
1130 m
Piata Latina
aprox.
1137 m
Piata Natiunilor Unite
aprox.
1175 m
Piata Emil Cioran (Vergilius) (en)
aprox.
1517 m
Piața Constituției
aprox.
1569 m
Piata Bibescu
aprox.
1595 m
Teren sportiv
aprox.
1031 m
Teren sportiv
aprox.
1118 m
Teren sportiv
aprox.
1225 m
Teren sportiv
aprox.
1377 m
Teren sportiv
aprox.
1397 m
Baza sportiva Universitatea Bucuresti
aprox.
1432 m
teren tenis
aprox.
1454 m
Teren sportiv
aprox.
1549 m
Teren sportiv
aprox.
1571 m
Stadionul Dinamo
aprox.
1682 m
Teren sportiv
aprox.
1803 m
Teren sportiv
aprox.
1863 m
Teren sportiv
aprox.
1868 m
Teren sportiv
aprox.
1939 m
Teren sportiv
aprox.
1948 m
Farmacia Apifarm
aprox.
254 m
belladona
aprox.
265 m
Royal Blu Pharmacy
aprox.
273 m
Sensiblu
aprox.
324 m
Farmacia Academia
aprox.
335 m
Farmacia Tarsis Impex
aprox.
378 m
Farmacia Artafarm
aprox.
384 m
Sensiblu
aprox.
452 m
Farmacia Nr. 1
aprox.
501 m
Catena Farmacie
aprox.
501 m
Farmacia Stefania
aprox.
519 m
Help Net Farma
aprox.
540 m
Farmacia Arta
aprox.
544 m
Reteta
aprox.
561 m
HelpNet
aprox.
577 m
Policlinica (en)
aprox.
274 m
Centrul Medical Batistei
aprox.
299 m
Centrul Medical Academica
aprox.
377 m
Clinica Reumatologie "Dr. Ion Stoia"
aprox.
416 m
Centrul Medical Unirea Enescu
aprox.
419 m
Centrul Medical Unirea sediul Enescu
aprox.
432 m
Clinica de 10
aprox.
549 m
Spitalul de Oftalmologie
aprox.
652 m
Spitalul Clinic de Urgente Oftalmologice
aprox.
652 m
Spitalul Colțea
aprox.
673 m
Bioderm Eminescu (en)
aprox.
797 m
Institutul de Diabet NCPaulescu (en)
aprox.
923 m
Dacia Medical Center
aprox.
936 m
Spitalul Cantacuzino
aprox.
944 m
Centru medical MEDSANA
aprox.
951 m
Super Falafel
aprox.
18 m
Crilis
aprox.
115 m
Trattoria Buongiorno Lido
aprox.
134 m
Jerry's Pizza (en)
aprox.
138 m
Gourmet
aprox.
145 m
Jerry's Pizza - Magheru
aprox.
149 m
Bistro Phillipe (en)
aprox.
158 m
La Rosetti
aprox.
175 m
Tratoria Il Calcio
aprox.
240 m
Trattoria Il Calcio
aprox.
252 m
Toan's
aprox.
265 m
Excalibur
aprox.
276 m
BOUTIQUE DU PAIN
aprox.
285 m
Casa Universitarilor (en)
aprox.
290 m
Byblos
aprox.
296 m
Mi-nut
aprox.
42 m
Cafeneaua Arhitectilor
aprox.
141 m
Zvon Caffe
aprox.
150 m
Lente Praporgescu
aprox.
259 m
Mara Mura
aprox.
268 m
Gradina OAR
aprox.
318 m
Newton Caffe
aprox.
360 m
Vesuvio Cafe
aprox.
360 m
Hobby Caffe & Shop
aprox.
361 m
Gradina Verona
aprox.
365 m
Nana
aprox.
397 m
Demmers Teahouse
aprox.
479 m
Hathor Cafe
aprox.
524 m
Nescafe Milano
aprox.
554 m
Camera din Fata
aprox.
561 m
Fratelli Espresso Bar
aprox.
217 m
Que Pasa
aprox.
283 m
Piua Book Bar
aprox.
499 m
Yellow Bar
aprox.
502 m
Control Club
aprox.
552 m
Dianei Patru
aprox.
581 m
Frame
aprox.
666 m
A1
aprox.
681 m
LondonPhone
aprox.
717 m
Gambrinus
aprox.
723 m
Underworld
aprox.
749 m
Trei Betivi
aprox.
751 m
Beer o'clock
aprox.
755 m
Opium Stage Club
aprox.
758 m
Epic
aprox.
759 m
Coloseum
aprox.
394 m
Question Mark Social Club
aprox.
413 m
Edgar`s Pub
aprox.
479 m
Have a Cigar
aprox.
503 m
OLD NICK PUB
aprox.
575 m
Charlatans Irish Pub
aprox.
576 m
Clock`s
aprox.
633 m
James Joyce's Pub & Restaurant
aprox.
634 m
Nexus Gamers Pub
aprox.
717 m
Smart's Pub & Bistro
aprox.
794 m
Waldo's
aprox.
815 m
Club A
aprox.
824 m
Panik & Pub
aprox.
833 m
Dharma
aprox.
834 m
Iron City
aprox.
841 m
Credit Europe Bank
aprox.
30 m
Piraeus Bank
aprox.
46 m
Credit Europe Bank
aprox.
67 m
Garanti Bank
aprox.
79 m
Raiffeisen Bank
aprox.
105 m
Sucursala Raiffeisen Bank (en)
aprox.
116 m
Libra Internet Bank
aprox.
118 m
Sucursala ING Bank (en)
aprox.
149 m
ING Balcescu
aprox.
149 m
Unicredit Țiriac Bank (en)
aprox.
221 m
UniCredit Bank - Ag. Millenium
aprox.
244 m
Banca Transilvania - Ag. Magheru
aprox.
267 m
Alpha Bank
aprox.
296 m
Banca Romaneasca
aprox.
310 m
Ion Tiriac Banc (en)
aprox.
319 m
Fiind o zonă ultracentrală, aceasta oferă numeroase opțiuni de călătorie cu mijloacele de transport în comun, și este bine conectată cu restul orașului. Ai, în primul rând, la dispoziție stațiile de metrou Piața Victoriei, Piața Romană și Universitate. Astfel, te vei putea deplasa rapid prin oraș, evitând aglomerația de la suprafață. Toate acestea sunt situate pe magistrala 2 care traversează Bucureștiul de la nord la sud. În plus, de la Piața Victoriei vei putea lua metroul și pe magistrala 1 pentru a ajunge, de exemplu, în cartierul Pantelimon sau în zona Eroilor. Prin Piața Universității urmează să treacă și magistrala 5 care va lega cartierele Drumul Taberei și Pantelimon. Până acum, s-au deschis însă doar stațiile de metrou aflate în zona Drumul Taberei. Alte mijloace de transport în comun care ar putea să-ți fie de ajutor atunci când te vei muta în această zonă sunt autobuzele 300 și 381. Primul face legătura dintre Piața Romană și Piața Victoriei continuându-și apoi traseul de-a lungul Bulevardului Ion Mihalache, iar cel de-al doilea conectează Piața Victoriei cu zona Tineretului și cu cartierul Berceni. De pe Bulevardul Regina Elisabeta vei putea lua troleibuzul 90 pentru a ajunge în Drumul Taberei sau în zona Arenei Naționale, iar în fața Spitalului Colțea vei găsi stația autobuzului 381 care merge în cartierul Berceni. Iar dacă preferi să te deplasezi pe două roți, vei avea la dispoziție una dintre pistele speciale destinate bicicliștilor pe Calea Victoriei. Aceasta îți va oferi, în plus, oportunitatea ideală de a admira arhitectura deosebită a clădirilor aflate de o parte și de alta a uneia dintre cele mai frumoase străzi din București. Consultă harta pentru a afla unde sunt localizate stațiile mijloacelor de transport în comun.
În această zonă găsim sediul central al Universității din București și cel al Academiei de Studii Economice din București (ASE), unele dintre cele mai prestigioase instituții de învățământ superior din România. Tot aici se află și sediile mai multor facultăți. Ai și alte instituții de învățământ cu renume la doi pași de casă, precum precum Colegiul Național "Sfântul Sava", Colegiul Național "Gheorghe Lazăr", Liceul Teoretic Bulgar "Hristo Botev" și Universitatea Națională de Muzică. De menționat este și Căminul Moxa, aflat în zona Calea Victoriei, în care sunt cazați unii dintre studenții ASE. Consultă harta de mai jos pentru a vedea și celelalte unități de învățământ din zonă.
În această parte a orașului vei găsi numeroase reprezentanțe ale unor branduri de lux. Cele mai multe magazine alimentare din zonă au dimensiuni reduse. Pentru cumpărături îți recomandăm Piața Amzei, aflată la doi pași de Romană și modernizată recent. Aici găsești, pe lângă comercianți de unde poți cumpăra legume și fructe și câteva magazine cu preparate proaspete de la burgeri, la pâine artizanală sau înghețată. Centrul Vechi găzduiește, totodată, reprezentanțe ale unor retaileri de modă. Tot aici găsești și librăria Cărturești Carusel, una dintre cele mai frumoase din oraș. O librărie Cărturești deschisă într-o altă clădire deosebită poate fi găsită și în apropiere de Piața Romană. Un spațiu comercial cu renume este Magazinul Victoria, un monument istoric al orașului. Magazinul București, amplasat la intersecția străzilor I.C. Brătianu și Lipscani a fost reconstruit recent cu o investiție substanțială. Ai în apropiere magazinul Cocor, centrul comercial Unirea Shopping City și un hipermarket Carrefour. Cu mașina sau metroul poți să ajungi destul de repede la mall-ul AFI Cotroceni. Consultă harta și vezi ce magazine vei avea în apropierea noii tale case.
Aceasta este una dintre cele mai aglomerate zone din București la orele de vârf. Aici găsești însă și unele dintre puținele parcări subterane din Capitală. Chiar vis-a-vis de Universitatea București ai intrarea într-o astfel de parcare cu peste 400 de locuri. O parcare destul de încăpătoare poate fi găsită și în Piața Victoriei. Atenție, însă, această zonă se poate aglomera nu doar din cauza traficului, ci și din cauza diverselor manifestări sau proteste care se organizează, de obicei, în fața Palatului Victoria, sediul Guvernului României. Dacă te hotărăști să te muți în zonă, atunci îți recomandăm să te interesezi de posibilitatea închirierii unui loc de parcare pentru mașina ta. Poți face acest lucru apelând la Serviciul Parcaje al ADP Sector 1. Consultă harta pentru a afla unde găsești și alte parcări în zona Victoriei-Romană-Universitate.
Zona Victoriei - Romană - Universitate este un epicentru cultural al Capitalei și oferă numeroase opțiuni de petrecere a timpului liber. Aici vei găsi numeroase muzee impresionante pe care le poți vizita în timpul liber (Muzeul Național de Istorie Naturală "Grigore Antipa", Muzeul Țăranului Român, Muzeul Național George Enescu, etc), vei putea participa la evenimentele în aer liber desfășurate pe Calea Victoriei sau în Piața George Enescu sau vei putea merge la un spectacol organizat pe scena Ateneului Român sau pe cea a Teatrului Notarra. Nu rata nici o vizită la Teatrul Național "I.L. Caragiale" și la Muzeul Național de Artă al României. Observatorul Astronomic Amiral Vasile Urseanu te așteaptă cu o experiență extrem de educativă care va fi, cu siguranță, apreciată de micuțul tău. Dacă îți place să ieși la o cafea în timpul liber alături de prietenii tăi, atunci în această zonă vei putea alege dintr-o multitudine de restaurante, terase și pub-uri. Nu lipsesc nici skybar-urile, care îți oferă priveliști de excepție de la înălțime. Cele câteva parcuri din zona Victorieim - Romană - Universitate au dimensiuni destul de reduse, dar sunt frumos îngrijite. Printre acestea amintim Parcul Ateneului și Parcul Nicolae Iorga. Dacă preferi plimbările lungi în weekend, atunci vei avea la dispoziție în apropiere parcurile Kiseleff și Cișmigiu. Nu uita, de asemenea, că te vei afla la doi pași de Centrul Vechi al Capitalei, dar și că vei putea să faci o plimbare cu bicicleta pe Calea Victoriei. În condiții normale, se organizează periodic evenimente în centrul orașului, atât în cadrul Sălii Palatului, cât și în aer liber în Piața Revoluției. În Piața Universității sunt organizate, totodată, diferite târguri și concerte. Vezi pe hartă mai multe puncte de interes din zona Victoriei-Romană-Universitate.
Chiar la Piața Universității se află principala unitate sanitară din zonă. Este vorba despre Spitalul Clinic Colțea, primul înființat în București. În zona Victoriei - Romană - Universitate vei întâlni mai multe clinici private, precum Policlinica Enescu din cadrul rețelei de sănătate Regina Maria și Spitalul Clinic Sanador. La doi pași de Piața Romană se află Spitalul Clinic de Urgențe Oftalmologice, cel mai mare din România cu o astfel de specializare. Consultă harta pentru a afla ce clinici private ai în apropierea casei, dacă te muți în această parte a orașului.
Găsești numeroase restaurante, terase și cafenele potrivite pentru toate gusturile în Centrul Vechi al orașului, pe Calea Victoriei sau în zona din spatele Ateneului Român. Câteva fast food-uri ai la dispoziție în Unirea Shopping Center. Nu foarte departe, în zona Romană, ai și alte opțiuni. Află de pe hartă unde găsești cel mai apropiat restaurant de noua ta casă.
Sucursale ale diferitelor bănci sunt dispuse de-a lungul principalelor artere de circulație sau în marile intersecții din zonă. Un BRD, spre exemplu, găsești chiar lângă Cercul Militar Național. Pe Bulevardul Nicolae Bălcescu o sucursală Banca Transilvania și ING Bank. La doi pași de Piața Universității se află și Palatul Băncii Naționale a României. Consultă harta pentru mai multe detalii.
Înainte să pleci...
Ești sigur că ai văzut și aceste proprietăți?
215.000 €
București, Magheru
3 camere
67 mp
Etaj 1 / 4
250.000 €
București, Magheru
5 camere
100 mp
Etaj 2
235.000 €
București, Magheru
3 camere
72 mp
Etaj 7 / 10
Creează alertă
Salvează căutarea ca să primești pe email ultimele anunțuri publicate
Apartamente cu 3 camere de vânzare în zona Magheru, Ultracentral
Cere detalii prin email
*
*
*
*
Detaliile tale de contact vor fi partajate cu Re/max Klass
Statistici proprietate
Apartamente 3 camere de vânzare
- București
- Zona Magheru
Asigurare de viață/lună Costul este variabil. În funcție de banca aleasă, procentul variază între 0.0259% și 0.035% din soldul creditului.
Costuri cu achiziția12.891 RON
Comision agenție Întreabă agenţia
Onorariu notarial9.043 RON
Taxă întabulare OCPI1.759 RON
Autentificare contract credit2.089 RON
Preț de achiziție1.172.494 RON
Preț locuință1.172.494 RON
TVA 0%Inclus în prețul cerut
Preț de achiziție1.172.494 RON
Preț locuință1.172.494 RON
TVA 0%
Inclus în prețul cerut
Avans minim565.856 RON
Credit pe 30 de ani606.638 RON
Cost achitat în prima lună
Taxa evaluare imobil(până la)
575 RON
Rata lunară (variabilă)4.262 RON
Depozit colateral12.786 RON
Comision de garantare FNGCIMM98 RON
Asigurare anuală imobil1.172 RON
Poliță PAD130 RON
Tarif arhivă electronică102 RON
Costuri adiționale1.312 RON + taxe notariale
Asigurare viață și complexă (opțională)Costul este variabil. În funcție de banca aleasă, procentul variază între 0.0259% și 0.035% din soldul creditului
Onorariu notarialconform tarif notarial
Taxă întabulare OCPI1.312 RON
i
Toate valorile de mai sus sunt estimative și nu reprezintă în mod obligatoriu costurile exacte pe care le veți primi de la companiile/instituțiile prin care veți încheia tranzacția.