2 camere Ultracentral la 8 min Metrou Piata Muncii

180.000 € + TVA

Matei Voievod, București

Nr. cam.:
2
Sup. utilă:
48,02 mp
Etaj:
2 / 3
An constr.:
2025 (În construcție)
  • • Comision 0%
  • • Locație exactă

Descriere apartament

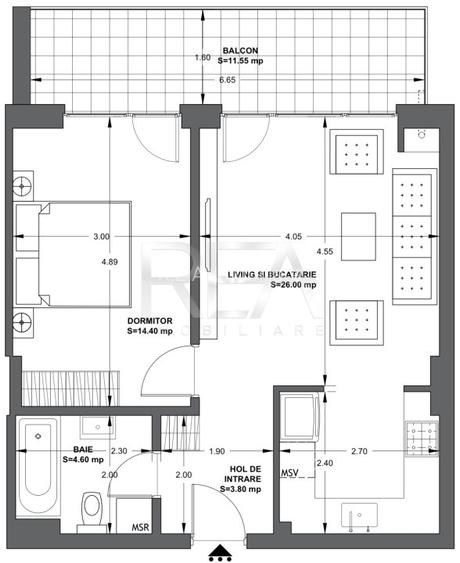
R.E.A. Imobiliare Apartament 2 camere, semidecomandat, orientat EST, la etajul 2 din 3, in Tepes Voda 152 - proiect 2025, la doar cativa pasi de Parcul National si Vatra Luminoasa, cu acces rapid atat catre Piata Victoriei, cat si catre Universitate. Pretul afisat este + TVA, cu optiunea de taxare inversa la achizitie. - Finisaje la alegere, complete, necesita doar mobilare si utilare. - Suprafata totala de 59,57 mp: 48,02 mp utili+ 11,55 mp balcon. - Configuratie: dormitor, living, bucatarie, hol, baie si balcon. - Incalzire prin pardoseala, centrala proprie. - Un loc de parcare subteran disponibil la 25.000 EUR + TVA. Acces rapid la transport public: 3 minute pana la statiile STB, 8 minute pana la metrou Piata Iancului sau metrou Piata Muncii. Contacteaza-ne pentru detalii suplimentare si programarea unei vizionari private. Cod proprietate P5006.
Citește mai mult Citește mai puțin
Confort lux Semidecomandat Nemobilat 1 Balcon / Terasă / Logie Curte comună Aer condiționat Centrală proprie Încălzire prin pardoseală 1 Parcare

Detalii apartament

ID anunț: XDKS104LF Copiat! 242711725 Copiat!
Actualizat în: 26 Ianuarie 2026
Suprafață construită: 56.68 mp
Nr. bucătării: 1
Nr. băi: 1
Structură rezistență: Beton
Tip imobil: Bloc de apartamente
Regim înălțime: S+P+3E

Utilități

Pereți
Vopsea lavabilă Faianță
Podele
Parchet Gresie
Ușă intrare
Metal
Uși interior
Lemn
Izolații termice
Exterior Bloc izolat termic
Contorizare
Apometre Contor căldură Contor gaz
Alte spații utile
Terasă
Facilități imobil
Videointerfon Lift Spații agrement
Utilități
Curent Apă Canalizare Gaze CATV Telefon
Amenajare străzi
Asfaltate Iluminat stradal Mijloace de transport în comun

Certificat energetic:

Clasa energetică: A

Vecinătăți:

Universitatea I.L. Caragiale, Colegiul Emil Racovita, Colegiul Mihai Viteazul, PRO TV, Parcul National, Piata Iancului, Piata Muncii

Disponibilitate proprietate:

imediat

Puncte de interes

Mijloace transport
tram-station
Statia Soseaua Mihai Bravu / Vatra Luminoasa linia 1
Stații tramvai aprox. 181 m
bus-station
Statia Soseaua Mihai Bravu / Vatra Luminoasa linia 135, 311, 330, N102, 104, 90, 86
Stații autobuz aprox. 200 m
metro-station
Statia Muncii, metrou M1
Stații metrou aprox. 537 m
trolleybus-station
Statia Piata Iancului, linia 55
Stații troleibuz aprox. 565 m
Școală
school
Asociatia Culturala Bravissimo
Școli aprox. 261 m
school
Scoala nr.93 "EMIL RACOVIȚĂ"
Școli aprox. 328 m
university
Universitatea Nationala de Arta Teatrala si Cinematografica
Universități aprox. 386 m
kindergarten
Gradinita ARLECHINO
Gradinițe aprox. 460 m
Recreere
supermarket
Mega Image
Supermarket aprox. 140 m
sports-ground
Teren sportiv
Terenuri sport aprox. 400 m
park
Parc
Parcuri aprox. 416 m
mall
Bucharest, Calea Vitan nr. 8, Bl V51, near VITAN Mall
Mall aprox. 1822 m

Detalii despre preț și costuri

Prețul pe piață

Preț cerut: 180.000 €

Preț min. zonă 68.000 €
Preț max. zonă 250.000 €

92% dintre proprietățile similare ca zonă și nr. camere au prețul cerut mai mic. mai multe...

Bine de știut: prețul unei proprietăți este influențat și de alte caracteristici, cum ar fi: vechime, localizare, vecinătăți, suprafață, compartimentare, amenajări, dotări, etc. mai puțin...

Costuri cu achiziția

Fără credit
10.382 RON
Credit ipotecar
12.420 RON
Noua casă
1.250 RON+ taxe notariale

i

Costuri adiționale mai puțin știute la achiziție: taxe notariale, comisioane etc.

Proprietăți recomandate

Detalii de contact

R.E.A. Imobiliare

Vladislav Chirev Broker

4.93(5 review-uri)

R.E.A. Imobiliare
PRO

Abonează-te la newsletter să fii primul care primește cele mai noi recomandări de proprietăți și sfaturi de la experți.

CONTACT

Creează alertă

Salvează căutarea ca să primești pe email ultimele anunțuri publicate

Apartamente cu 2 camere de vânzare în zona Matei Voievod, Ultracentral