Rimo va propune spre vânzare un apartament de 4 camere foarte luminos, situat in zona Dorobanti/Lahovari.
Este vorba de un apartament situat la etajul 3 din 10, este decomandat.
Blocul este reabilitat termic si lift modernizat. Construit in 1982. Scară îngrijită și spatioasa.
Vecini civilizati și liniștiți.
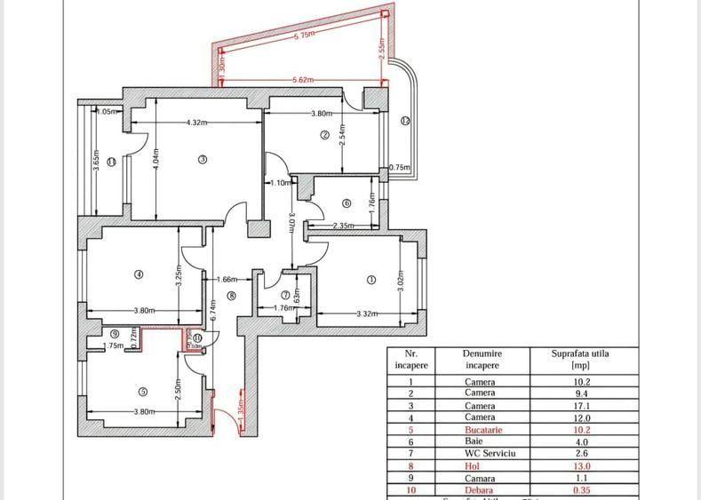
Suprafața utila a apartamentului este de 97 mp.
2 bai (1 cu cada si geam si 1 cu cabina de dus si aerisire), bucatarie mare cu debara si camara, 2 balcoane
Loc de parcare in curtea interioara a blocului (cu acces doar al locatarilor).
Apartamentul necesita reabilitare completa.
Amplasat într-o zonă cu facilități și servicii excelente, apartamentul oferă oportunitatea de a trăi într-un mediu urban dinamic, cu acces ușor la restaurante, magazine, piețe, parcuri, scoli etc.
Un apartament modern, ideal pentru cei care apreciaza confortul, siguranța și o locație centrală, cu acces rapid la toate facilitățile orașului.
Pentru mai multe informații, va invitam cu drag la vizionare!
63%dintre proprietățile similare ca zonă și nr. camere au prețul cerutmai mic.
mai multe...
Bine de știut: prețul unei proprietăți este influențat și de alte caracteristici, cum ar fi: vechime, localizare, vecinătăți, suprafață, compartimentare, amenajări, dotări, etc.
mai puțin...
Costuri cu achiziția
Fără credit
13.196 RON
Credit ipotecar
15.581 RON
Noua casă
1.668 RON+ taxe notariale
i
Costuri adiționale mai puțin știute la achiziție: taxe notariale, comisioane etc.
Calculul ipotecarului
Proprietăți recomandate
Pornind de la căutarea ta îți recomandăm următoarele anunțuri
306.000 €
București, Ultracentral
4 camere
94 mp
Etaj 8
240.000 €
București, Crângași
4 camere
83 mp
Parter / 4
200.000 €
București, Calea Călărașilor
4 camere
96,61 mp
Etaj 1 / 2
349.000 €
București, P-ța Unirii
4 camere
98,62 mp
Etaj 3
99.900 €
București, Doamna Ghica
3 camere
80 mp
Etaj 8 / 9
359.000 € + TVA
București, Iancu Nicolae
4 camere
97,1 mp
Parter
Detalii de contact
Acestă agenție te poate ajuta să obții o soluție de finanțare potrivită nevoilor tale. Solicită-i informații suplimentare.
Sediul central - Timișoara
Bulevardul Victor Babeș nr. 2, 300230, Timișoara, România
Tel: +40.374.40.44.98 / Fax: +40.256.401.179
Email: suport@imobiliare.ro
Luni - Vineri 08:00 - 20:00
Punct de lucru - București: Iride Business Park, Bld. Dimitrie
Pompeiu 9-9A, Clădirea B2B,
020335, Sector 2, București, România
CONTACT
Sediul central - Timișoara
Bulevardul Victor Babeș nr. 2, 300230, Timișoara, România
Tel: +40.374.40.44.98 / Fax: +40.256.401.179
Email: suport@imobiliare.ro
Luni - Vineri 08:00 - 20:00
Punct de lucru - București: Iride Business Park, Bld. Dimitrie
Pompeiu 9-9A, Clădirea B2B,
020335, Sector 2, București, România
Statia Nicolae Balcescu; Liniile:168, 300, 368, 226, 126
aprox.
1014 m
Sfintii Voievozi
aprox.
1022 m
Statia Vasile Lascar, linia 330, 335, 1, 46
aprox.
1044 m
Maria Rosetti
aprox.
1047 m
Statia Liceul Ion Luca Caragiale, linia 131, 182, 330, 331, 335, N113, 301
aprox.
1066 m
Mihai Eminescu
aprox.
1097 m
Statie tramvai 1, 46 - Calea Dorobantilor
aprox.
532 m
Calea Dorobantilor
aprox.
532 m
Calea Dorobantilor
aprox.
546 m
Teatrul Metropolis
aprox.
622 m
Statie tramvai 34,46 - Roma
aprox.
644 m
Soseaua Stefan cel Mare
aprox.
645 m
Stadion Dinamo
aprox.
651 m
Roma
aprox.
659 m
Teatrul Metropolis
aprox.
686 m
Soseaua Stefan cel Mare
aprox.
728 m
Stadion Dinamo
aprox.
748 m
Pasaj Victoria
aprox.
805 m
Statia Piata Gemeni; Linia:5, 16
aprox.
997 m
Maria Rosetti
aprox.
1031 m
Vasile Lascar
aprox.
1046 m
Vechea "Gara a Targovistei" astazi parte din Gara de Nord
aprox.
1992 m
ASE - Cibernetica
aprox.
60 m
ASE Cibernetica (en)
aprox.
96 m
ASE - Facultatea de Comert
aprox.
125 m
ASE - Cladirea Cihoschi
aprox.
176 m
ASE - Sala de sport
aprox.
181 m
Amfiteatrele ASE
aprox.
186 m
Academia de Studii Economice
aprox.
212 m
ASE Cladirea Veche 1916 - 1926 (en)
aprox.
217 m
CROS - Universitatea Alternativa
aprox.
350 m
Scoala Nationala de Studii Politice si Administrative (SNSPA)
aprox.
480 m
Scoala Nationala de Studii Politice si Administrative
aprox.
480 m
SNSPA
aprox.
516 m
Rectoratul UMF "Carol Davila"
aprox.
690 m
Centrul de Limbi Straine Ariel
aprox.
718 m
University of Bucharest - Faculty of Foreign Languages and Literatures (en)
aprox.
719 m
Gradinita nr. 85
aprox.
65 m
Gradinita nr. 252 cu program prelungit
aprox.
310 m
Ioanid
aprox.
431 m
Gradinita Ioanid
aprox.
450 m
Gradinita nr. 116
aprox.
456 m
Gradinita nr. 138 cu program prelungit
aprox.
628 m
Gradinita numarul 133
aprox.
639 m
Gradinita nr. 203 program prelungit
aprox.
809 m
Gradinita nr.203 (fosta Clementa)
aprox.
835 m
Gradinita numarul 257
aprox.
933 m
Gradinita cu program normal si prelungit Happy Kids
aprox.
1122 m
Gradinita nr.4 "Lizuca"
aprox.
1160 m
Gradinita de copii nr.251
aprox.
1364 m
Grădinița nr. 252
aprox.
1372 m
Gradinita numarul 8
aprox.
1416 m
Cladirea Virgil Madgearu
aprox.
71 m
Cambridge School
aprox.
102 m
Cambridge School Of Bucharest (en)
aprox.
103 m
Scoala Americana
aprox.
120 m
Scoala 186
aprox.
184 m
Scoala Generala Elena Vacarescu
aprox.
188 m
Colegiul Economic Virgil Madgearu
aprox.
211 m
Lexis scoli de limbi straine
aprox.
296 m
Scoala de teatru
aprox.
328 m
French School of Bucharest (en)
aprox.
447 m
Colegiul German Goethe
aprox.
454 m
Scoala nr. 24
aprox.
643 m
Scoala generala nr. 24
aprox.
656 m
Gradinita de copii nr.50
aprox.
658 m
Scoala Centrala
aprox.
664 m
BILLA - Dorobanti
aprox.
64 m
Bila Supermarket
aprox.
95 m
Bacania Coco
aprox.
440 m
Mega Image - IANCU DE HUNEDOARA
aprox.
501 m
Nik Non-Stop
aprox.
550 m
Mega Image Magheru
aprox.
574 m
Mega Image Amzei Non-Stop
aprox.
611 m
ilanplant
aprox.
714 m
Mega Image - Icoanei
aprox.
778 m
Mega Image Rosetti Non-Stop
aprox.
827 m
OK Non-stop Supermarket (en)
aprox.
865 m
OK Non-Stop
aprox.
865 m
Mega Image Concept Store
aprox.
1017 m
Pravalia Maestrului
aprox.
1135 m
Mega Image Brezoianu
aprox.
1187 m
"METROPLIS CENTER"
aprox.
501 m
Parcare cu plata
aprox.
42 m
Parcare
aprox.
167 m
Parcare
aprox.
281 m
Parcare
aprox.
337 m
Parcare
aprox.
476 m
Parcare
aprox.
488 m
Parcare Subterana Metropolis Center
aprox.
514 m
Parcare
aprox.
547 m
Parcare
aprox.
606 m
Parcare
aprox.
625 m
Parcare
aprox.
648 m
Parcare privata
aprox.
704 m
Parcare
aprox.
725 m
Parcare spital
aprox.
751 m
Parcare
aprox.
751 m
Parcul Piata Romana
aprox.
251 m
Parc
aprox.
466 m
Small park (en)
aprox.
481 m
Parc
aprox.
481 m
Parcul "Ioanid"
aprox.
494 m
Parcul Ion Voicu
aprox.
501 m
Parc
aprox.
576 m
Perla park
aprox.
576 m
Parcul Ion C. Bratianu
aprox.
598 m
Statuia lui Ion (Ionel) I.C. Bratianu
aprox.
606 m
Parcul Ion I. C. Bratianu
aprox.
611 m
Parcul "Grădina Icoanei"
aprox.
619 m
Gradina Icoanei
aprox.
623 m
Parc
aprox.
717 m
Parcul Nicolae Iorga
aprox.
725 m
Piața Romană
aprox.
265 m
Piata Revolutiei
aprox.
1026 m
Piata Universitatii
aprox.
1380 m
Piata Rosetti
aprox.
1445 m
Piața Drapelului (Tricolorului)
aprox.
1477 m
Piata Latina
aprox.
1644 m
Piața Aviatorilor
aprox.
1674 m
Piata Emil Cioran (Vergilius) (en)
aprox.
1674 m
Piata Roma
aprox.
1859 m
Piata Timpului
aprox.
1981 m
Stadionul Dinamo
aprox.
787 m
Teren sportiv
aprox.
962 m
Teren sportiv
aprox.
966 m
Teren sportiv
aprox.
976 m
Teren sportiv
aprox.
1045 m
Teren sportiv
aprox.
1053 m
Teren sportiv
aprox.
1178 m
Teren sportiv
aprox.
1203 m
Teren sportiv
aprox.
1326 m
Teren sportiv
aprox.
1361 m
teren tenis
aprox.
1869 m
Teren sportiv
aprox.
1879 m
Baza sportiva Universitatea Bucuresti
aprox.
1880 m
Respawn B
aprox.
1890 m
Teren sportiv
aprox.
1907 m
Farmacia Terapia
aprox.
36 m
Farmaplus
aprox.
76 m
Farmacie Dorobanti
aprox.
127 m
Sensiblu
aprox.
196 m
Farmacia Centrofarm 85
aprox.
219 m
Catena
aprox.
312 m
Prindcom
aprox.
337 m
Farmacia Dona
aprox.
358 m
Farmacia Arta
aprox.
396 m
Help Net Farma
aprox.
488 m
Sensiblu
aprox.
498 m
Farmacia HelpNet
aprox.
504 m
Farmacia Punkt
aprox.
506 m
Farmacia Dona 152
aprox.
509 m
SC. Farmed SRL
aprox.
513 m
Centrul de diagnostic si tratament
aprox.
79 m
policlinica centrul de diagnostic si tratament (CDT)
aprox.
85 m
Bioderm Eminescu (en)
aprox.
163 m
Spitalul Clinic de Urgente Oftalmologice
aprox.
274 m
policlinica de copii Grigore Alexandrescu
aprox.
276 m
Spitalul de Oftalmologie
aprox.
277 m
INFOSAN Clinica Oftalmologica
aprox.
287 m
Ambulatoriul de specialitate al Spitalului de copii Grigore Alexandrescu
aprox.
344 m
Laurus Medical
aprox.
480 m
Doctor Carmen Sturza
aprox.
536 m
Centrul Medical Academica
aprox.
559 m
Puls
aprox.
570 m
Camera de Garda - Spitalul de Urgenta Floreasca
aprox.
620 m
Centrul Medical Unirea Enescu
aprox.
623 m
Centrul Medical Unirea sediul Enescu
aprox.
644 m
Tucano Coffee - Dorobanti
aprox.
15 m
Tucano Coffee
aprox.
36 m
Mon Amour
aprox.
125 m
Music Rooms Cafe
aprox.
170 m
Cafe Boheme
aprox.
260 m
Cafe 3
aprox.
320 m
5 To Go Lahovari
aprox.
365 m
Nescafe Milano
aprox.
404 m
Smart Change
aprox.
477 m
Hathor Cafe
aprox.
484 m
Reader's Cafe
aprox.
505 m
Camera din Fata
aprox.
505 m
Shiva
aprox.
526 m
Gradina Verona
aprox.
559 m
Gradina OAR
aprox.
605 m
Zappa Rock & More
aprox.
30 m
ACAB Pub
aprox.
156 m
Happy Pub
aprox.
281 m
Frame
aprox.
304 m
Lokal
aprox.
361 m
Piua Book Bar
aprox.
442 m
Alan Dala
aprox.
521 m
A1
aprox.
732 m
Fratelli Espresso Bar
aprox.
823 m
El Bistro
aprox.
889 m
MIM Bistro
aprox.
1004 m
Que Pasa
aprox.
1018 m
Sky Bar
aprox.
1051 m
Trei Betivi
aprox.
1071 m
Cup & Cake
aprox.
1103 m
Crazy Kitchen
aprox.
125 m
Pizza Hut
aprox.
177 m
Centro
aprox.
183 m
Jiuan Express
aprox.
194 m
Diva Express
aprox.
203 m
Benihana, Avalon
aprox.
228 m
El Puerto Iberico
aprox.
252 m
Casa Oamenilor de Stiinta
aprox.
269 m
Restaurant Casa Oamenilor de Stiinta
aprox.
272 m
Noel
aprox.
276 m
Acuarela
aprox.
282 m
Restaurant "Casa Bucur"
aprox.
284 m
The Embassy
aprox.
302 m
LoVegan
aprox.
312 m
Teatrelli
aprox.
314 m
Panik & Pub
aprox.
165 m
OLD NICK PUB
aprox.
360 m
Waldo's
aprox.
536 m
Studio Martin
aprox.
568 m
Open Pub
aprox.
595 m
Smart's Pub & Bistro
aprox.
1005 m
Le Cafe Inmedio
aprox.
1219 m
Have a Cigar
aprox.
1249 m
Coloseum
aprox.
1304 m
Question Mark Social Club
aprox.
1307 m
James Joyce's Pub & Restaurant
aprox.
1312 m
Doncafe Brasserie
aprox.
1358 m
Edgar`s Pub
aprox.
1392 m
Charlatans Irish Pub
aprox.
1492 m
Restaurant-pizzerie BONA DA ELENA
aprox.
1550 m
Alpha Bank
aprox.
175 m
BRD Dacia
aprox.
182 m
Raiffeisen Bank - Agentia Piata Romana
aprox.
263 m
ING Romana
aprox.
274 m
BRD Piata Romana
aprox.
342 m
Banca Transilvania - Ag. Piata Romana
aprox.
394 m
Banca Transilvania
aprox.
411 m
UniCredit Bank - Ag. Magheru
aprox.
446 m
Banca Transilvania
aprox.
477 m
Banca Romaneasca
aprox.
504 m
Raiffeisen Bank - Agentia Piata Amzei
aprox.
506 m
Volksbank
aprox.
510 m
Alpha Bank
aprox.
511 m
CEC Bank
aprox.
513 m
Raiffeisen Bank
aprox.
518 m
Fiind o zonă ultracentrală, aceasta oferă numeroase opțiuni de călătorie cu mijloacele de transport în comun, și este bine conectată cu restul orașului. Ai, în primul rând, la dispoziție stațiile de metrou Piața Victoriei, Piața Romană și Universitate. Astfel, te vei putea deplasa rapid prin oraș, evitând aglomerația de la suprafață. Toate acestea sunt situate pe magistrala 2 care traversează Bucureștiul de la nord la sud. În plus, de la Piața Victoriei vei putea lua metroul și pe magistrala 1 pentru a ajunge, de exemplu, în cartierul Pantelimon sau în zona Eroilor. Prin Piața Universității urmează să treacă și magistrala 5 care va lega cartierele Drumul Taberei și Pantelimon. Până acum, s-au deschis însă doar stațiile de metrou aflate în zona Drumul Taberei. Alte mijloace de transport în comun care ar putea să-ți fie de ajutor atunci când te vei muta în această zonă sunt autobuzele 300 și 381. Primul face legătura dintre Piața Romană și Piața Victoriei continuându-și apoi traseul de-a lungul Bulevardului Ion Mihalache, iar cel de-al doilea conectează Piața Victoriei cu zona Tineretului și cu cartierul Berceni. De pe Bulevardul Regina Elisabeta vei putea lua troleibuzul 90 pentru a ajunge în Drumul Taberei sau în zona Arenei Naționale, iar în fața Spitalului Colțea vei găsi stația autobuzului 381 care merge în cartierul Berceni. Iar dacă preferi să te deplasezi pe două roți, vei avea la dispoziție una dintre pistele speciale destinate bicicliștilor pe Calea Victoriei. Aceasta îți va oferi, în plus, oportunitatea ideală de a admira arhitectura deosebită a clădirilor aflate de o parte și de alta a uneia dintre cele mai frumoase străzi din București. Consultă harta pentru a afla unde sunt localizate stațiile mijloacelor de transport în comun.
În această zonă găsim sediul central al Universității din București și cel al Academiei de Studii Economice din București (ASE), unele dintre cele mai prestigioase instituții de învățământ superior din România. Tot aici se află și sediile mai multor facultăți. Ai și alte instituții de învățământ cu renume la doi pași de casă, precum precum Colegiul Național "Sfântul Sava", Colegiul Național "Gheorghe Lazăr", Liceul Teoretic Bulgar "Hristo Botev" și Universitatea Națională de Muzică. De menționat este și Căminul Moxa, aflat în zona Calea Victoriei, în care sunt cazați unii dintre studenții ASE. Consultă harta de mai jos pentru a vedea și celelalte unități de învățământ din zonă.
În această parte a orașului vei găsi numeroase reprezentanțe ale unor branduri de lux. Cele mai multe magazine alimentare din zonă au dimensiuni reduse. Pentru cumpărături îți recomandăm Piața Amzei, aflată la doi pași de Romană și modernizată recent. Aici găsești, pe lângă comercianți de unde poți cumpăra legume și fructe și câteva magazine cu preparate proaspete de la burgeri, la pâine artizanală sau înghețată. Centrul Vechi găzduiește, totodată, reprezentanțe ale unor retaileri de modă. Tot aici găsești și librăria Cărturești Carusel, una dintre cele mai frumoase din oraș. O librărie Cărturești deschisă într-o altă clădire deosebită poate fi găsită și în apropiere de Piața Romană. Un spațiu comercial cu renume este Magazinul Victoria, un monument istoric al orașului. Magazinul București, amplasat la intersecția străzilor I.C. Brătianu și Lipscani a fost reconstruit recent cu o investiție substanțială. Ai în apropiere magazinul Cocor, centrul comercial Unirea Shopping City și un hipermarket Carrefour. Cu mașina sau metroul poți să ajungi destul de repede la mall-ul AFI Cotroceni. Consultă harta și vezi ce magazine vei avea în apropierea noii tale case.
Aceasta este una dintre cele mai aglomerate zone din București la orele de vârf. Aici găsești însă și unele dintre puținele parcări subterane din Capitală. Chiar vis-a-vis de Universitatea București ai intrarea într-o astfel de parcare cu peste 400 de locuri. O parcare destul de încăpătoare poate fi găsită și în Piața Victoriei. Atenție, însă, această zonă se poate aglomera nu doar din cauza traficului, ci și din cauza diverselor manifestări sau proteste care se organizează, de obicei, în fața Palatului Victoria, sediul Guvernului României. Dacă te hotărăști să te muți în zonă, atunci îți recomandăm să te interesezi de posibilitatea închirierii unui loc de parcare pentru mașina ta. Poți face acest lucru apelând la Serviciul Parcaje al ADP Sector 1. Consultă harta pentru a afla unde găsești și alte parcări în zona Victoriei-Romană-Universitate.
Zona Victoriei - Romană - Universitate este un epicentru cultural al Capitalei și oferă numeroase opțiuni de petrecere a timpului liber. Aici vei găsi numeroase muzee impresionante pe care le poți vizita în timpul liber (Muzeul Național de Istorie Naturală "Grigore Antipa", Muzeul Țăranului Român, Muzeul Național George Enescu, etc), vei putea participa la evenimentele în aer liber desfășurate pe Calea Victoriei sau în Piața George Enescu sau vei putea merge la un spectacol organizat pe scena Ateneului Român sau pe cea a Teatrului Notarra. Nu rata nici o vizită la Teatrul Național "I.L. Caragiale" și la Muzeul Național de Artă al României. Observatorul Astronomic Amiral Vasile Urseanu te așteaptă cu o experiență extrem de educativă care va fi, cu siguranță, apreciată de micuțul tău. Dacă îți place să ieși la o cafea în timpul liber alături de prietenii tăi, atunci în această zonă vei putea alege dintr-o multitudine de restaurante, terase și pub-uri. Nu lipsesc nici skybar-urile, care îți oferă priveliști de excepție de la înălțime. Cele câteva parcuri din zona Victorieim - Romană - Universitate au dimensiuni destul de reduse, dar sunt frumos îngrijite. Printre acestea amintim Parcul Ateneului și Parcul Nicolae Iorga. Dacă preferi plimbările lungi în weekend, atunci vei avea la dispoziție în apropiere parcurile Kiseleff și Cișmigiu. Nu uita, de asemenea, că te vei afla la doi pași de Centrul Vechi al Capitalei, dar și că vei putea să faci o plimbare cu bicicleta pe Calea Victoriei. În condiții normale, se organizează periodic evenimente în centrul orașului, atât în cadrul Sălii Palatului, cât și în aer liber în Piața Revoluției. În Piața Universității sunt organizate, totodată, diferite târguri și concerte. Vezi pe hartă mai multe puncte de interes din zona Victoriei-Romană-Universitate.
Chiar la Piața Universității se află principala unitate sanitară din zonă. Este vorba despre Spitalul Clinic Colțea, primul înființat în București. În zona Victoriei - Romană - Universitate vei întâlni mai multe clinici private, precum Policlinica Enescu din cadrul rețelei de sănătate Regina Maria și Spitalul Clinic Sanador. La doi pași de Piața Romană se află Spitalul Clinic de Urgențe Oftalmologice, cel mai mare din România cu o astfel de specializare. Consultă harta pentru a afla ce clinici private ai în apropierea casei, dacă te muți în această parte a orașului.
Găsești numeroase restaurante, terase și cafenele potrivite pentru toate gusturile în Centrul Vechi al orașului, pe Calea Victoriei sau în zona din spatele Ateneului Român. Câteva fast food-uri ai la dispoziție în Unirea Shopping Center. Nu foarte departe, în zona Romană, ai și alte opțiuni. Află de pe hartă unde găsești cel mai apropiat restaurant de noua ta casă.
Sucursale ale diferitelor bănci sunt dispuse de-a lungul principalelor artere de circulație sau în marile intersecții din zonă. Un BRD, spre exemplu, găsești chiar lângă Cercul Militar Național. Pe Bulevardul Nicolae Bălcescu o sucursală Banca Transilvania și ING Bank. La doi pași de Piața Universității se află și Palatul Băncii Naționale a României. Consultă harta pentru mai multe detalii.
Înainte să pleci...
Ești sigur că ai văzut și aceste proprietăți?
306.000 €
București, Ultracentral
4 camere
94 mp
Etaj 8
240.000 €
București, Crângași
4 camere
83 mp
Parter / 4
200.000 €
București, Calea Călărașilor
4 camere
96,61 mp
Etaj 1 / 2
349.000 €
București, P-ța Unirii
4 camere
98,62 mp
Etaj 3
99.900 €
București, Doamna Ghica
3 camere
80 mp
Etaj 8 / 9
359.000 € + TVA
București, Iancu Nicolae
4 camere
97,1 mp
Parter
Creează alertă
Salvează căutarea ca să primești pe email ultimele anunțuri publicate
Apartamente cu 4+ camere de vânzare în zona P-ța Romană, Ultracentral
Cere detalii prin email
*
*
*
*
Detaliile tale de contact vor fi partajate cu Rimo
Statistici proprietate
Apartamente 4 camere de vânzare
- București
- Zona P-ța Romană
Asigurare de viață/lună Costul este variabil. În funcție de banca aleasă, procentul variază între 0.0259% și 0.035% din soldul creditului.
Costuri cu achiziția15.581 RON
Comision agenție Întreabă agenţia
Onorariu notarial10.904 RON
Taxă întabulare OCPI2.292 RON
Autentificare contract credit2.385 RON
Preț de achiziție1.527.900 RON
Preț locuință1.527.900 RON
TVA 0%Inclus în prețul cerut
Preț de achiziție1.527.900 RON
Preț locuință1.527.900 RON
TVA 0%
Inclus în prețul cerut
Avans minim921.631 RON
Credit pe 30 de ani606.269 RON
Cost achitat în prima lună
Taxa evaluare imobil(până la)
575 RON
Rata lunară (variabilă)4.260 RON
Depozit colateral12.780 RON
Comision de garantare FNGCIMM127 RON
Asigurare anuală imobil1.528 RON
Poliță PAD130 RON
Tarif arhivă electronică102 RON
Costuri adiționale1.668 RON + taxe notariale
Asigurare viață și complexă (opțională)Costul este variabil. În funcție de banca aleasă, procentul variază între 0.0259% și 0.035% din soldul creditului
Onorariu notarialconform tarif notarial
Taxă întabulare OCPI1.668 RON
i
Toate valorile de mai sus sunt estimative și nu reprezintă în mod obligatoriu costurile exacte pe care le veți primi de la companiile/instituțiile prin care veți încheia tranzacția.