Apartament 2 cam dec, 57 mp etaj intermediar zona Bucium - Visan

86.213 €

Vișan, Județul Iași

Nr. cam.:
2
Sup. utilă:
57 mp
Etaj:
1 / 4
An constr.:
2025 (În construcție)
  • • Locație aproximativă
  • • Vizionare prin apel video

Descriere apartament

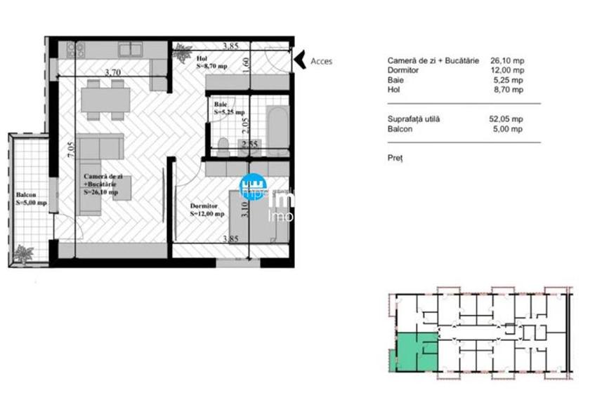
Apartament 2 camere, modelul decomandat, 57 mp, pret 86216 euro cu TVA INCLUS. Start vanzari in cel mai nou proiect imobiliar Sofia Concept, situat in Visan, alcatuit din imobile de 2 si 3 camere, cu suprafete ce variaza intre 43-67 mp. Sofia Concept dispune de 4 blocuri cu un regim de inaltime D+P+4E, constructie din caramida si cadre de beton, fiecare bloc va fi prevazut cu lift, iar ca si materiale ca vor fi folosite la interior regasim: - tamplarie cu suprafata vitrata mare 7 camere SALAMANDER tripan, CLASA A - termosistem grafitat - inclazire in pardosela - usi interior MDF - centrala termica prin condensare prevazuta cu panou de diatribuitori - gresie, faianta parchet la alegere - bai utilate complet - lift modern - zidărie integrală din cărămidă, interior – exterior – siguranță și durabilitate. - gresie și faianță premium, format 60x120 cm – finisaje elegante și moderne. - archet trafic intens – rezistent și estetic. - uși interioare din MDF – aspect premium. - ușă de intrare anti-efracție – siguranță sporită pentru locuința ta. Cele 4 blocuri vor dispune de spatii verzi, spatii comerciale pentru diferite activitati ( cafenele, farmacie, etc. ), locuri de parcare, acces securizat in complex prevazut cu bariera si supraveghere video pentru un plus de siguranta. Pentru mai multe detalii si informatii,il puteti contacta pe agentul nostru Andrei Radulescu,la numarul de telefon
Citește mai mult Citește mai puțin
Confort 1 Decomandat Nemobilat 1 Balcon / Terasă / Logie Centrală proprie Încălzire prin pardoseală 1 Parcare

Detalii apartament

ID anunț: X3V4104B3 Copiat! 273002364 Copiat!
Actualizat în: 19 Februarie 2026
Suprafață utilă totală: 57 mp
Suprafață construită: 57 mp
Nr. bucătării: 1
Nr. băi: 1
Structură rezistență: Altele
Tip imobil: Bloc de apartamente
Regim înălțime: P+4E

Utilități

Destinație
Rezidențial
Pereți
Faianță Vopsea lavabilă
Podele
Parchet Gresie
Ușă intrare
Metal
Uși interior
Lemn
Izolații termice
Exterior
Ferestre cu geam termopan
PVC
Contorizare
Apometre Contor gaz
Facilități imobil
Lift Interfon
Utilități
Apă Curent Gaze Canalizare
Internet
Fibră optică
Servicii imobil
Menaj Administrare
Amenajare străzi
Asfaltate

Vecinătăți:

Scoala/gradinita, Restaurant/pub, Parc, Trafic Pietonal, Fastfood, Supermarket, Zona comerciala, Autobuz

Puncte de interes

Mijloace transport
bus-station
Statia "Centrofarm", linia 30,30b,46
Stații autobuz aprox. 1654 m
bus-station
Statia "han Trei Sarmale", linia 30,30b,46
Stații autobuz aprox. 1674 m
bus-station
Han Trei Sarmale
Stații autobuz aprox. 1674 m
train-station
Statia abandonata CUG Iasi
Stații tren aprox. 1923 m
Școală
school
Scoala Primara Visan
Școli aprox. 377 m
kindergarten
Gradinita PP Surorile Providentei
Gradinițe aprox. 1476 m
kindergarten
Scoala Veronica Micle
Gradinițe aprox. 1728 m
school
Scoala Generala nr. 2 Veronica Micle
Școli aprox. 1776 m
Recreere
sports-ground
Teren sportiv
Terenuri sport aprox. 1224 m
sports-ground
Teren sportiv
Terenuri sport aprox. 1376 m
restaurant
Hanul Trei Sarmale
Restaurant aprox. 1644 m
pub
La Matale
Pub aprox. 1693 m

Detalii despre preț și costuri

Prețul pe piață

Preț cerut: 86.213 €

Preț min. zonă
Preț max. zonă

55% dintre proprietățile similare ca zonă și nr. camere au prețul cerut mai mare. mai multe...

Bine de știut: prețul unei proprietăți este influențat și de alte caracteristici, cum ar fi: vechime, localizare, vecinătăți, suprafață, compartimentare, amenajări, dotări, etc. mai puțin...

Insight premium disponibil după login

Costuri cu achiziția

Fără credit
Credit ipotecar
Noua casă

i

Costuri adiționale mai puțin știute la achiziție: taxe notariale, comisioane etc.

Insight premium disponibil după login

Proprietăți recomandate

Detalii de contact

Imperia Imobiliare

Andrei RADULESCU CONSULTANT IMOBILIAR BLOCURI NOI

5.00(3 review-uri)

Imperia Imobiliare
PRO

Abonează-te la newsletter să fii primul care primește cele mai noi recomandări de proprietăți și sfaturi de la experți.

CONTACT

Creează alertă

Salvează căutarea ca să primești pe email ultimele anunțuri publicate

Apartamente cu 2 camere de vânzare în Vișan, Județul Iași