REA1027085 Studio Dublu IResidence Pipera Plaza I Cesiune

149.000 €

Voluntari, Județul Ilfov

Nr. cam.:
2
Sup. utilă:
46 mp
Etaj:
1 / 7
An constr.:
2026 (În construcție)
  • • Locație aproximativă
  • • Vizionare prin apel video

Descriere apartament

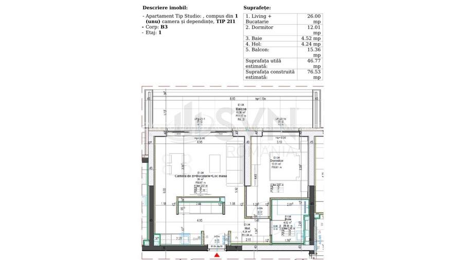
SVN Residentialist va prezinta spre cesiune un studio dublu in complexul iResidence, zona Pipera Plaza - Voluntari. Studio dublu tip 2I situat in Corpul B3 (Faza 1) - primul bloc programat pentru finalizare (aproximativ dec. 2026) .In prezent structura este ridicata si tamplaria montata. Detalii cheie: Etaj 1, orientare Nord (lumina constanta, ideal pentru eficienta termica vara); Suprafata utila totala: 62,13 mp (include terasa superba de 15,36 mp); Randament estimat: 25%/an (Pret estimat finalizare: 165.000 EUR). Sistem plata: Cesiune persoana fizica. Avans 40% acum, restul de 60% la predare.Pretul afisat include TVA. Finisaje Premium: Fatada ventilata, tamplarie aluminiu Reynaers (tripan); Incalzire in pardoseala Rehau, climatizare centralizata (tavan); Usi Filomuro, dus walk-in Geberit, baterii Daniel Rubinetterie. Pozitionare excelenta langa Pipera Plaza, cu acces rapid la zona de birouri. Pentru mai multe detalii va stam la dispozitie!
Citește mai mult Citește mai puțin
Confort 1 Decomandat 1 Balcon / Terasă / Logie Centrală proprie Încălzire prin pardoseală

Detalii apartament

ID anunț: X6580081A Copiat! 275427002 Copiat!
Actualizat în: 10 Aprilie 2026
Suprafață utilă totală: 61 mp
Suprafață construită: 76 mp
Nr. bucătării: 1
Nr. băi: 1
Structură rezistență: Beton
Tip imobil: Bloc de apartamente
Regim înălțime: P+7E

Utilități

Destinație
Rezidențial
Pereți
Faianță
Podele
Gresie Parchet
Ferestre cu geam termopan
PVC
Contorizare
Apometre
Diverse
Sistem de alarmă
Facilități imobil
Interfon Lift
Utilități
Curent
Servicii imobil
Supraveghere video Pază
Comision
Standard

Vicii:

Fără vicii.

Disponibilitate proprietate:

Disponibil din 23/01/2026.

Puncte de interes

Mijloace transport
tram-station
Statia Gelcap, linia 16, 36
Stații tramvai aprox. 960 m
tram-station
Gelcap
Stații tramvai aprox. 1010 m
bus-station
Pipera Drumul Bisericii
Stații autobuz aprox. 1093 m
metro-station
Pipera (M2)
Stații metrou aprox. 1573 m
Școală
kindergarten
Echilibria 1
Gradinițe aprox. 1001 m
school
Gradinita Happy Univers
Școli aprox. 1008 m
school
Scoala Nr.3 Voluntari
Școli aprox. 1038 m
kindergarten
Gradinita Zece
Gradinițe aprox. 1221 m
Recreere
supermarket
Kaufland
Supermarket aprox. 232 m
restaurant
Q's inn
Restaurant aprox. 331 m
park
spatiu verde
Parcuri aprox. 526 m
sports-ground
Teren sportiv
Terenuri sport aprox. 1459 m

Detalii despre preț și costuri

Prețul pe piață

Preț cerut: 149.000 €

Preț min. zonă
Preț max. zonă

83% dintre proprietățile similare ca zonă și nr. camere au prețul cerut mai mic. mai multe...

Bine de știut: prețul unei proprietăți este influențat și de alte caracteristici, cum ar fi: vechime, localizare, vecinătăți, suprafață, compartimentare, amenajări, dotări, etc. mai puțin...

Insight premium disponibil după login

Costuri cu achiziția

Fără credit
Credit ipotecar
Noua casă

i

Costuri adiționale mai puțin știute la achiziție: taxe notariale, comisioane etc.

Insight premium disponibil după login

Proprietăți similare

Apartament cu 2 camere decomandat în Central
150.000 €
Județul Ilfov, Voluntari
2 camere
52 mp
Etaj 8
Apartament cu 2 camere decomandat, mobilat în Central
144.500 €
Județul Ilfov, Voluntari
2 camere
55 mp
Etaj 1
Apartament cu 2 camere semidecomandat în Central
154.000 €
Județul Ilfov, Voluntari
2 camere
60 mp
Etaj 2

Detalii de contact

SVN Romania | Residentialist | Victoriei

Nicusor Gavrila Associated Advisor

4.43(3 review-uri)

SVN Romania | Residentialist | Victoriei
PRO

Abonează-te la newsletter să fii primul care primește cele mai noi recomandări de proprietăți și sfaturi de la experți.

CONTACT

Creează alertă

Salvează căutarea ca să primești pe email ultimele anunțuri publicate

Apartamente cu 2 camere de vânzare în Voluntari, Județul Ilfov