Duplex de exceptie, 3 Camere, Comision 0%, Erou Iancu Nicolae

326.142 € + TVA

Voluntari, Județul Ilfov

Nr. cam.:
3
Sup. utilă:
85,76 mp
Etaj:
3 / 3
An constr.:
2025 (În construcție)
  • • Comision 0%
  • • Locație exactă

Descriere apartament

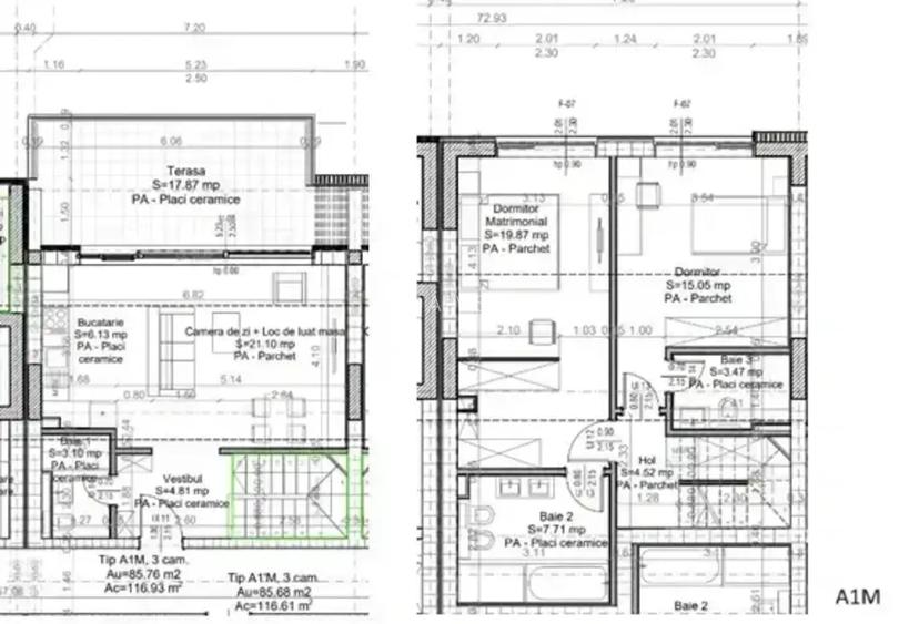
Va propun spre achizitie un Apartament tip duplex Exclusivist situat la Padure, in Centrul Zonei Erou Iancu Nicolae, Vecinatatea Jolie Ville Galleria si a unora dintre cele mai prestigioase scoli din Bucuresti, Cambridge School si Mark Twain, Baneasa Shopping Center, Gradina Zoologica, intr-un proiect tip Boutique avand 2 imobile de apartamente si regim de inaltime P+3. Ansamblul compus din 2 imobile cu parcare subterana are urmatoarele Avantaje: - Apartamentele sunt construite cu inaltime de 3.0m, (dormitoarele 2.8m) se desfasoara pe cate 2 etaje, astfel: parter+etaj 1 sau etaj 2+etaj3 cu acces in apartamente prin parter sau etajul 3. - Structura planseelor este fara grinzi, cu sistem modern de cabluri pretensionate, astfel ca in cazul in care iti doresti in viitor o alta compartimentare, nu vei avea grinzi care sa-ti conditioneze designul. - Camere foarte spatioase, - Terase si balcoane largi cu mare potential, - Spatii verzi si de agrement, unele apartamente avand acces la padure, - Lobby zone, - Parcare subterana foarte inalta, pe un loc putandu-se instala sistem de tip klaus si rampa de acces degivrata, - Acces securizat si supravegherea ansamblului 24/7. - Lifturi Schindler. Sistemul constructiv al ansamblului prezinta urmatoarele Elemente de Calitate Premium: - Fatade ventilate cu vata minerala bazaltica placate cu panouri decorative cu textura lemn si zone decorative - Zidarie exterioara tip Porotherm 30cm, intre apartamente 25cm si la peretii de compartimentare 11.5cm, - Finisaje Premium, zugraveli lavabile de calitate, - Smart Home integrat, - Ceramica de calitate Premium Italia, - Obiecte sanitare Premium, - Usi grecia cu inaltime extinsa - Pompe de caldura Hitachi, ventiloconvectoare dedicate fiecarei camere si termostate digitatale pentru controlul incalzirii prin pardosela controlate prin smartphone, - Tamplarie cu profil de aluminiu Belgia tripan lowE. - Aparataj electric de top, controlat prin smartphone. Detalii apartament: Suprafata construita:116.93mp, Suprafata utila: 85.76mp, Terasa: 19.45mp. Suprafata utila totala:105.21mp Scara interioara si acces in apartament prin etajul 3. Pret 326.142 Euro+TVA. Locurile de parcare cu inaltime mare permitand instalarea sistemului klaus sunt vandute separat la pretul de 25.000 Euro+TVA Comision 0%, Locatie de exceptie, Zona exclusivista, pentru Locuinta Ta Ideala. Pentru detalii, oferte si stabilirea unei vizionari, nu ezitati sa ne contactati. VAUNT ID: 94819
Citește mai mult Citește mai puțin
1 Balcon / Terasă / Logie Curte comună Aer condiționat Ventiloconvectoare Încălzire prin pardoseală

Detalii apartament

ID anunț: X7QH10S1D Copiat! 260442440 Copiat!
Actualizat în: 22 Ianuarie 2026
Suprafață utilă totală: 85.76 mp
Suprafață construită: 116.93 mp
Nr. bucătării: 1
Nr. băi: 2
Structură rezistență: Beton
Tip imobil: Bloc de apartamente
Regim înălțime: P+3E

Utilități

Destinație
Rezidențial
Pereți
Vopsea lavabilă Faianță
Podele
Gresie Marmură
Ușă intrare
Parchet Metal
Izolații termice
Exterior
Ferestre cu geam termopan
Aluminiu Lemn
Contorizare
Apometre
Diverse
Telecomandă poartă garaj Telecomandă poartă acces auto
Facilități imobil
Interfon Lift
Utilități
CATV Curent Apă Canalizare
Internet
Cablu Wireless Dial-up
Servicii imobil
Administrare Pază Supraveghere video
Amenajare străzi
Iluminat stradal Mijloace de transport în comun Asfaltate

Certificat energetic:

Clasa energetică: A

Disponibilitate proprietate:

Disponibil

Puncte de interes

Mijloace transport
bus-station
Jolie Ville Baneasa
Stații autobuz aprox. 476 m
Școală
school
Mark Twain International School
Școli aprox. 388 m
school
British School of Bucharest
Școli aprox. 1116 m
kindergarten
Kindergarden
Gradinițe aprox. 1672 m
kindergarten
Echilibria 1
Gradinițe aprox. 1733 m
Recreere
supermarket
Tia Supermarket Non-Stop
Supermarket aprox. 333 m
restaurant
Restaurant Tecadra
Restaurant aprox. 637 m
park
Loc de joaca
Parcuri aprox. 933 m
cafe
Doncafe Brasserie
Cafenea aprox. 1033 m

Detalii despre preț și costuri

Prețul pe piață

Preț cerut: 326.142 €

Preț min. zonă 140.000 €
Preț max. zonă 351.000 €

95% dintre proprietățile similare ca zonă și nr. camere au prețul cerut mai mic. mai multe...

Bine de știut: prețul unei proprietăți este influențat și de alte caracteristici, cum ar fi: vechime, localizare, vecinătăți, suprafață, compartimentare, amenajări, dotări, etc. mai puțin...

Costuri cu achiziția

Fără credit
16.444 RON
Credit ipotecar
19.231 RON
Noua casă
2.150 RON+ taxe notariale

i

Costuri adiționale mai puțin știute la achiziție: taxe notariale, comisioane etc.

Proprietăți recomandate

Detalii de contact

R&D ADVISERS

Iulian Zabava Project Manager

4.50(5 review-uri)

R&D ADVISERS
PRO

Abonează-te la newsletter să fii primul care primește cele mai noi recomandări de proprietăți și sfaturi de la experți.

CONTACT

Creează alertă

Salvează căutarea ca să primești pe email ultimele anunțuri publicate

Apartamente cu 3 camere de vânzare în Voluntari, Județul Ilfov