2

Spatii OFFFICE la cheie

12 € / lună
0.30 € / mp / lună

Ultracentral, Bacău

Sup. utilă / mp. utili:
40 mp
Tip prop.:
Clădire de birouri
An constr.:
2010 (În construcție)
  • • Locație aproximativă
  • • Vizionare prin apel video

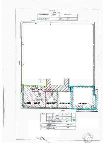
Descriere spațiu comercial

IXIMO Agentie Imobiliara va propune spre inchiriere un spatiu comercial ULTRAmodern "la cheie" situat central ,40 mp utili [cu posibilitate inchiriere separata a inca 120 mp ] avand o vitrare deosebit de generoasa[multa lumina naturala] si acces imediat la parcare( chiar langa imobil !)Spatiile sunt in cladire cu Autorizatie ISU ! Fiecare incapere are acces individual si contorizare independenta pe curent.Daca se utilizeaza in comun cele 2 incaperi- holul de intrare se adauga ca suprafata in utilizare exclusiva. Locatia-LA ETAJ- se preteaza unei activitati de consultanta ,cabinet medical,kinetoterapie,servicii infrumusetare,scoala de soferi,birouri de orice tip,distributie,dispecerat sau oricarei activitati specializate ! Fara nicio investitie noul beneficiar se poate muta imediat ! Pret 12,5 eur mp util TVA Inclus !!!
Citește mai mult Citește mai puțin

Detalii spațiu comercial

ID anunț: X5EC14039 Copiat! 253766147 Copiat!
Actualizat în: 17 Februarie 2026
Clasă birouri: A
Regim înălțime: P
Înălțime spațiu (m): 3
Stadiu construcție: În construcție

Utilități

Utilități
Apă Curent Canalizare

Certificat energetic:

Clasa energetică: B

Subspații disponibile

Chirie / u.m. / lună:
0.3 EUR/mp (total: 12 EUR/lună)
Suprafață disponibilă:
40
Disponibilitate spațiu:
imediat

Puncte de interes

Mijloace transport
bus-station
Statia Piata Centrala
Stații autobuz aprox. 34 m
bus-station
Statia Arena Mall
Stații autobuz aprox. 1195 m
bus-station
Statia Gara
Stații autobuz aprox. 1573 m
bus-station
Gara Bacau
Stații autobuz aprox. 1662 m
Școală
school
Scoala Gimnaziala Platon
Școli aprox. 54 m
university
Universitatea George Bacovia
Universități aprox. 947 m
university
block B
Universități aprox. 1517 m
school
Scoala Gimnaziala Nr.10
Școli aprox. 1926 m
Recreere
sports-ground
Teren sportiv
Terenuri sport aprox. 57 m
park
Parcul Catedralei
Parcuri aprox. 356 m
supermarket
Kaufland
Supermarket aprox. 401 m
restaurant
Viking's
Restaurant aprox. 528 m

Proprietăți recomandate

Detalii de contact

IXIMO Real Estate

Constantin Cristescu Broker Owner

IXIMO Real Estate
PRO

Abonează-te la newsletter să fii primul care primește cele mai noi recomandări de proprietăți și sfaturi de la experți.

CONTACT

Creează alertă

Salvează căutarea ca să primești pe email ultimele anunțuri publicate

Birouri cu o cameră de închiriat în zona Ultracentral, Bacău