3

Pozitionare Centrala - Hub Office + Comercial

1.441 € + TVA / lună
11 € + TVA / mp / lună

Centrul Civic, Brașov

Sup. utilă / mp. utili:
131 mp
Tip prop.:
Clădire de birouri
Niv.:
2
An constr.:
1970 (Există)
  • • Locație aproximativă

Descriere spațiu comercial

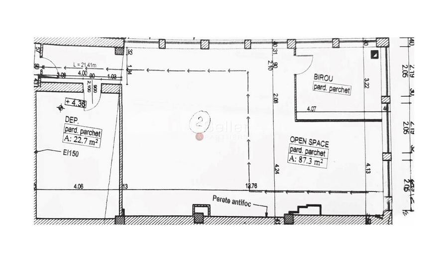
Spatiul accesat este situat in zona CENTRU CIVIC. LOCALIZARE: Proprietatea este pozitionata in imediata apropiere a Mall AFI. PARTITIONARE: Spatiul este dispus pe 3 incaperi, COMPARTIMENTARE: - structura usoara : rigips; DESTINATIE: - Sediu firma; - Call Center; DOTARI: - sistem climatizare ; - centrala termica Cladire; - aer conditionat - grup sanitar; - plafon casetat; - infrastructura curenti slabi; PARCARE PROPRIE | NUMAR LOCURI: - DA - se achizitioneaza separat pentru numarul dorit de locuri direct de la administratia complexului SERVICE CHARGE: - 1 Euro| / mp - inclus in pretul promovat Pentru informatii suplimentare, broker-ul care administreaza aceasta oferta, va sta la dispozitie. NOTA: Informatiile prezentate reflecta situatia reala a proprietatii, fara a constitui o oferta contractuala. Aceste date au fost obtinute verbal, de la titularul de drept al imobilului. Structura acestei prezentari nu poate fi reprodusa, fara acordul scris al The Seller and Partners.
Citește mai mult Citește mai puțin

Detalii spațiu comercial

ID anunț: X3I014J3M Copiat! 270633481 Copiat!
Actualizat în: 12 Ianuarie 2026
Suprafață utilă: 131 mp
Etaj: Etaj 1 / 2
Clasă birouri: B
Regim înălțime: P+2E
Stadiu construcție: Există

Utilități

Utilități
Curent Apă Canalizare
Comision
standard

Disponibilitate proprietate:

Imediat

Subspații disponibile

Chirie / u.m. / lună:
11 EUR/mp (total: 1441 EUR/lună) + TVA, Comision: standard
Suprafață disponibilă:
131
Disponibilitate spațiu:
imediat
Etaj:
Etaj 1 / 2

Puncte de interes

Mijloace transport
bus-station
Star
Stații autobuz aprox. 426 m
bus-station
Statia Star , linia 50, 50barat, 51,52
Stații autobuz aprox. 431 m
bus-station
Statia "Teatrul Dramatic", linia 2,17,31,36,5,6,16,1,4,34,37
Stații autobuz aprox. 488 m
bus-station
Teatrul Dramatic
Stații autobuz aprox. 489 m
Școală
kindergarten
Gradinita 12A
Gradinițe aprox. 371 m
kindergarten
Gradinita 12
Gradinițe aprox. 476 m
university
Universitatea Transilvania. Corp "R"
Universități aprox. 488 m
school
FasTracKids
Școli aprox. 592 m
Recreere
supermarket
STAR
Supermarket aprox. 452 m
mall
Magazinul Star
Mall aprox. 467 m
park
Parcul de la Teatrul Dramatic
Parcuri aprox. 526 m
sports-ground
Teren sportiv
Terenuri sport aprox. 684 m

Proprietăți recomandate

Detalii de contact

The Seller & Partners

Daniel Aioanei Senior Advisor

The Seller & Partners
PRO

Abonează-te la newsletter să fii primul care primește cele mai noi recomandări de proprietăți și sfaturi de la experți.

CONTACT

Creează alertă

Salvează căutarea ca să primești pe email ultimele anunțuri publicate

Birouri cu 3 camere de închiriat în zona Centrul Civic, Brașov