Spatiu birouri zona Centru Civic

3.208 € + TVA / lună
10.03 € + TVA / mp / lună

Centrul Civic, Brașov

Sup. utilă / mp. utili:
320,74 mp
Tip prop.:
Clădire de birouri
Niv.:
11
An constr.:
1990 (Există)
  • • Comision 0%
  • • Exclusivitate
  • • Locație exactă

Descriere spațiu comercial

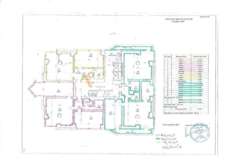
STARTIMOB va proprune spre închiriere in exclusivitate un spațiu de birouri situat in Centrul Civic, zona administrativ-financiara a Brașovului, intr-o clădire de birouri dotata cu doua lifturi. Spațiul se afla la etajul 7/11 are o suprafața totala de 406 mp si o arie utila de 320,74 mp si este compus din noua birouri cu suprafete mari cuprinse intre 25 si 32 mp , 3 grupuri sanitare, oficiu tip kitchineta, vestibul si 2 balcoane de 6,10 mp . Spatiul este integral renovat si zugravit in lavabil, beneficiaza de incalzire prin centrala termica de imobil, sistem de aer conditionat, sistem de supraveghere video, finisaje de buna calitate ( parchet, gresie, faianta, geamuri termopan). Prin poziționare, mod de organizare, si calitatea finisajelor , spatiul ofera conditii foarte bune pentru activitate de birouri/ notariat, birou executor judecătoresc, cabinete de avocatura sau consultanta, birouri IT, de contabilitate, etc . Preț închiriere : 10 Euro mp /luna +TVA . Conditii de inchiriere si Modalitati de plata : Se solicita contract pe termen lung, minim 3 ani , chiria in avans pe prima luna si o garantie in cuantumul a doua chirii lunare. Detalii si vizionare la nr. de telefon : , persoana de contact -Aura Popa .
Citește mai mult Citește mai puțin

Detalii spațiu comercial

ID anunț: X6NM1402U Copiat! 275286382 Copiat!
Actualizat în: 01 Aprilie 2026
Suprafață utilă: 320.74 mp
Etaj: Etaj 7 / 11
Clasă birouri: B
Regim înălțime: P+11E
Stadiu construcție: Există

Utilități

Destinație
Birouri
Utilități
Curent Apă Canalizare
Comision
0%

Vecinătăți:

PRIMARIA BRASOV, CASA DE ASIGURARI DE SANATATE, SERGIANA, OMNIASIG, LICEUL MESOTA, REGISTRUL COMERTULUI

Disponibilitate proprietate:

Imediat

Puncte de interes

Mijloace transport
bus-station
Liceul Mesota
Stații autobuz aprox. 115 m
bus-station
Statia "Liceul Mesota", linia 32,6,10,3,7,5barat,30
Stații autobuz aprox. 128 m
train-station
Gara Brasov Călători CFR
Stații tren aprox. 1001 m
train-station
Statia CFR Brasov
Stații tren aprox. 1030 m
Școală
school
Colegiul National "Dr Ioan Mesota"
Școli aprox. 146 m
school
Liceul Dr. Ioan Mesota
Școli aprox. 147 m
kindergarten
Gradinita cu program normal nr. 14 A (fosta nr. 26)
Gradinițe aprox. 203 m
university
Universitatea Europeana Dragan
Universități aprox. 347 m
Recreere
park
Parc
Parcuri aprox. 116 m
supermarket
Carrefour Market
Supermarket aprox. 465 m
sports-ground
Teren sportiv
Terenuri sport aprox. 690 m
mall
Magazinul Star
Mall aprox. 1348 m

Proprietăți similare

Birou, de 386 mp, în Centrul Civic
3.000 € / lună
Brașov, Centrul Civic
386 mp utili
Clădire de birouri
10E
Birou, de 316 mp, în Centrul Civic
3.502 € / lună
Brașov, Centrul Civic
316 mp utili
Clădire de birouri
1995 (Există)
Birou, 179 mp în Centrul Civic
3.043 € / lună
Brașov, Centrul Civic
179 mp utili
Bloc de apartamente
6E

Detalii de contact

STARTIMOB  Romania

AURA POPA Asociat Vanzari

4.33(3 review-uri)

STARTIMOB Romania
PRO

Abonează-te la newsletter să fii primul care primește cele mai noi recomandări de proprietăți și sfaturi de la experți.

CONTACT

Creează alertă

Salvează căutarea ca să primești pe email ultimele anunțuri publicate

Birouri cu 4+ camere de închiriat în zona Centrul Civic, Brașov