Spatiu cu Multiple Functionalitati

6.787 € / lună
11 € / mp / lună

Centrul Civic, Brașov

Sup. utilă / mp. utili:
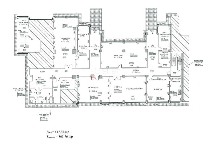
617 mp
Tip prop.:
Clădire de birouri
Niv.:
1
An constr.:
1995 (Există)
  • • Locație aproximativă

Descriere spațiu comercial

Imobilul accesat este situat in zona Centrul Civic in imediata apropiere a Electrica Brasov. LAYOUT: Acesta este compartimentat in 8 incaperi. - acces din strada cu 2 intrari; - grup sanitar dublu. DOTARI: - Tamplarie PVC; - Grup sanitar dublu. AVANTAJE: - Suprafata generoasa; - Zona cu vad comercial; - Suprafata vitrata ampla. DESTINAȚIE COMERCIALA: - show room; - sediu firmă; - cabinet medical; - centru infrumusetare. FACILITATI SI SERVICII: - Transport public, la 100m; - Receptie. IMPREJURIMI: - Spatiul este situat intr-o zona comerciala cu vad comercial, cu acces pietonal si auto. DEZVOLTARE ZONA: - Zona rezidentiala, NOTA: Perioada Minima Inchiriere Acceptata: 24 luni.
Citește mai mult Citește mai puțin

Detalii spațiu comercial

ID anunț: X3I014J3T Copiat! 274062937 Copiat!
Actualizat în: 12 Ianuarie 2026
Tip tranzacție: De închiriat prin agent
Suprafață utilă: 617 mp
Etaj: Parter / 1
Regim înălțime: S+P+1E
Stadiu construcție: Există

Utilități

Utilități
Curent Apă Canalizare

Disponibilitate proprietate:

Imediat

Puncte de interes

Mijloace transport
bus-station
Statia "Dacia", linia 32,37,40,51
Stații autobuz aprox. 96 m
bus-station
Dacia
Stații autobuz aprox. 107 m
train-station
Gara Brasov Călători CFR
Stații tren aprox. 353 m
train-station
Statia CFR Brasov
Stații tren aprox. 380 m
Școală
school
Sala Sport Scoala Generala Nr. 19
Școli aprox. 294 m
school
Liceul Dr. Ioan Mesota
Școli aprox. 508 m
kindergarten
Gradinita cu program prelungit nr. 10 (fosta nr. 49)
Gradinițe aprox. 510 m
university
Facultatea de Constructii - Universitatea Transilvania - Corpul J
Universități aprox. 783 m
Recreere
supermarket
Carrefour
Supermarket aprox. 97 m
public-square
Square & Monument (en)
Piețe publice aprox. 259 m
park
Loc de joaca pentru copii
Parcuri aprox. 261 m
mall
Magazinul Star
Mall aprox. 1963 m

Proprietăți similare

Birou, 263 mp în Centrul Civic
6.364 € / lună
Brașov, Centrul Civic
263 mp utili
Bloc de apartamente
1E
Birou, de 645.00 mp, în Făgăraș
6.300 € / lună
Județul Brașov, Făgăraș
645 mp utili
Clădire de birouri
2E
Birou, 200 mp în Bartolomeu
3.000 € / lună
Brașov, Bartolomeu
420 mp utili
Clădire de birouri
2005 (Există)

Detalii de contact

The Seller & Partners

Ciprian Coman Senior Advisor

The Seller & Partners
PRO

Abonează-te la newsletter să fii primul care primește cele mai noi recomandări de proprietăți și sfaturi de la experți.

CONTACT

Creează alertă

Salvează căutarea ca să primești pe email ultimele anunțuri publicate

Birouri cu 4+ camere de închiriat în zona Centrul Civic, Brașov