Spațiu de birouri premium 1074 mp – Centrul Istoric Brașov

20.407 € + TVA / lună
19 € + TVA / mp / lună

Ultracentral, Brașov

Sup. utilă / mp. utili:
1.074 mp
Tip prop.:
Bloc de apartamente
Niv.:
6
An constr.:
2025 (Finalizată)
  • • Locație aproximativă

Descriere spațiu comercial

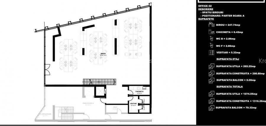
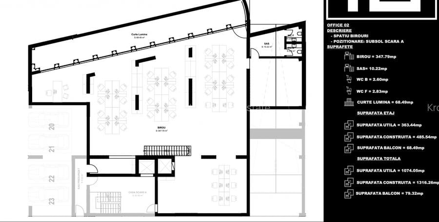
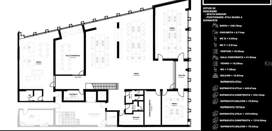
O oportunitate rară de a poziționa afacerea într-una dintre cele mai prestigioase zone din centrul vechi al Brașovului. Proprietatea dispune de o suprafață totală generoasă de 1.074 mp, distribuită pe 3 nivele, oferind un spațiu versatil și eficient pentru diverse activități de business (birouri, sediu companie, clinică, hub creativ etc.). 🔹 Compartimentare & facilități: Spațiu desfășurat pe 3 niveluri Scară interioară pentru acces facil între etaje Lift – accesibilitate completă Grupuri sanitare pe fiecare nivel Chicinete funcționale Compartimentare flexibilă 🌿 Exterior: Grădină proprie de 79 mp, ideală pentru relaxare, networking sau zonă de pauză pentru angajați 📍 Localizare excelentă: Situat în centrul istoric al Brașovului Acces rapid către puncte de interes, instituții, restaurante și mijloace de transport Vizibilitate și prestigiu pentru orice tip de activitate 💼 Ideal pentru: Sediu firmă Birouri corporate Clinică / centru medical Firmă IT / agenție Activități comerciale premium Conditii de inchiriere: * Utilitatile se platesc separat *Comision agentie: 50% + TVA din contravaloarea chiriei pe o luna Acces facil la principalele puncte de interes ale orașului. Contactează-ne pentru mai multe detalii sau pentru a programa o vizionare.
Citește mai mult Citește mai puțin

Detalii spațiu comercial

ID anunț: X7B114032 Copiat! 275418446 Copiat!
Actualizat în: 08 Aprilie 2026
Suprafață utilă: 1074 mp
Regim înălțime: P+6E
Structură rezistență: Beton
Stadiu construcție: Finalizată

Utilități

Utilități
Curent Apă Canalizare

Puncte de interes

Mijloace transport
bus-station
Statia "Spitalul Marzescu", linia 12,22
Stații autobuz aprox. 95 m
bus-station
Statia "Iuliu Maniu", linia 12,22
Stații autobuz aprox. 127 m
train-station
Gara Brasov Călători CFR
Stații tren aprox. 1776 m
train-station
Statia CFR Brasov
Stații tren aprox. 1795 m
Școală
kindergarten
Gradinita cu program prelungit Nr. 8
Gradinițe aprox. 80 m
school
Scoala generala nr.5
Școli aprox. 194 m
kindergarten
Gradinita 13
Gradinițe aprox. 284 m
university
Facultatea de Matematica si Informatica. Corp "P"
Universități aprox. 324 m
Recreere
park
Parc
Parcuri aprox. 148 m
sports-ground
Teren sportiv
Terenuri sport aprox. 337 m
supermarket
API Biomania
Supermarket aprox. 410 m
mall
Magazinul Star
Mall aprox. 703 m

Proprietăți similare

Birou, de 1,300 mp, în Centrul Civic
21.359 € / lună
Brașov, Centrul Civic
1.300 mp utili
Clădire de birouri
1980

Detalii de contact

Kronhouse Real Estate

Oliviu Bordea Agent imobiliar

Kronhouse Real Estate
PRO

Abonează-te la newsletter să fii primul care primește cele mai noi recomandări de proprietăți și sfaturi de la experți.

CONTACT

Creează alertă

Salvează căutarea ca să primești pe email ultimele anunțuri publicate

Birouri de închiriat în zona Ultracentral, Brașov