BLING Imobiliare vă propune spre închiriere un spațiu versatil, ideal pentru activități precum after school, sediu de firmă, birouri, ateliere sau galerii de artă.
Imobilul este situat în zona Regionalei CFR, o locație centrală, cu trafic intens atât pietonal, cât și auto, oferind vizibilitate și acces facil.
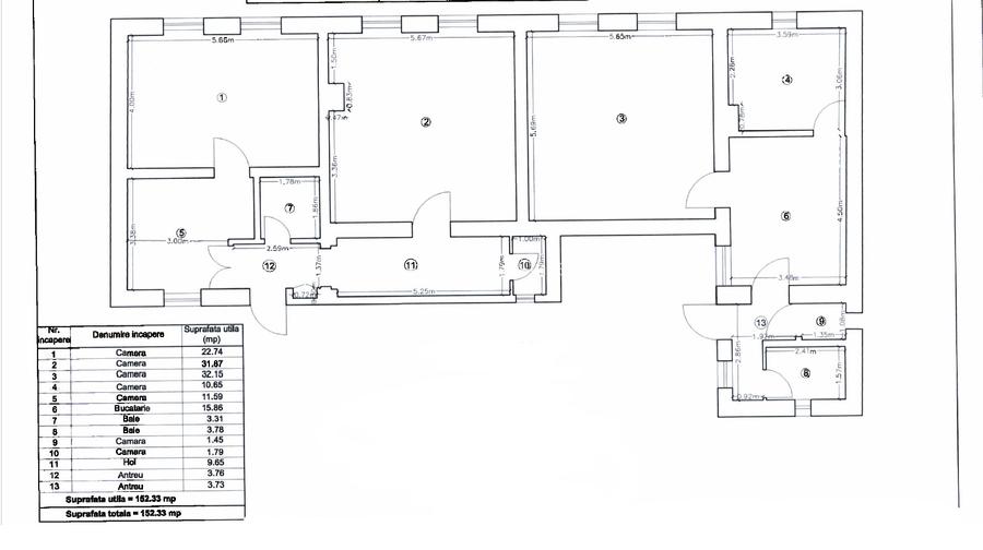
Spațiul dispune de o suprafață utilă de 152,33 mp și este compartimentat eficient în 7 camere separate, 2 băi, 1 bucătărie, 2 spații de depozitare și 3 antreuri, ceea ce permite organizarea optimă a activităților în funcție de necesități.
Este amplasat la parterul unei case/vile, cu acces din curtea interioară, beneficiind totodată de geamuri orientate spre stradă. Clădirea este poziționată la front stradal, iar în curte există o parcare privată cu barieră (cu plată pe ora sau abonament lunar), având o capacitate generoasă de 34 de locuri – un avantaj important pentru angajați și clienți.
Proprietatea este racordată la toate utilitățile necesare (apă, gaz, curent, canalizare), iar încălzirea se realizează prin centrală termică proprie, cu calorifere.
Spațiul se află în curs de renovare totală și va fi predat la stadiul de semifinisat, cu șapă autonivelantă și pereți gletuiți, oferind astfel viitorului chiriaș posibilitatea de a-l amenaja și personaliza în funcție de specificul activității desfășurate.
În prezent, imobilul are destinație locativă în acte, însă proprietarii sunt deschiși la schimbarea destinației în spațiu comercial, în funcție de activitatea viitorului chiriaș.
O alegere excelentă pentru cei care își doresc un spațiu adaptabil, într-o zonă centrală, cu acces facil și multiple posibilități de utilizare.
Vă așteptăm la vizionare!
ID: P13825
Sediul central - Timișoara
Bulevardul Victor Babeș nr. 2, 300230, Timișoara, România
Tel: +40.374.40.44.98 / Fax: +40.256.401.179
Email: suport@imobiliare.ro
Luni - Vineri 08:00 - 20:00
Punct de lucru - București: Iride Business Park, Bld. Dimitrie
Pompeiu 9-9A, Clădirea B2B,
020335, Sector 2, București, România
CONTACT
Sediul central - Timișoara
Bulevardul Victor Babeș nr. 2, 300230, Timișoara, România
Tel: +40.374.40.44.98 / Fax: +40.256.401.179
Email: suport@imobiliare.ro
Luni - Vineri 08:00 - 20:00
Punct de lucru - București: Iride Business Park, Bld. Dimitrie
Pompeiu 9-9A, Clădirea B2B,
020335, Sector 2, București, România
Facultatea de Stiinte Politice si Administrative (UBB)
aprox.
626 m
UBB Facultatea de Stiinte Politice
aprox.
640 m
Universitatea Tehnica din Cluj
aprox.
670 m
Universitatea Babes-Bolyai, Fac. de Teologie Rom.-Cat.
aprox.
675 m
UT Facultatea de Instalatii
aprox.
694 m
Facultatea de Teologie Romano-Catolica
aprox.
718 m
Academia de Muzică "Gheorghe Dima"
aprox.
722 m
Academia de Muzica Gheorghe Dima
aprox.
733 m
Sapientia
aprox.
740 m
Centrul de Cooperare Internationala
aprox.
749 m
Liceul Teoretic Mihai Eminescu
aprox.
160 m
Liceul Teologic Unitarian Janos Zsigmond
aprox.
222 m
Arhiepiscopia Ortodoxa, Facultatea de Teologie Ortodoxa, Seminarul Teologic Ortodox
aprox.
258 m
Liceul Teoretic "Nicolae Balcescu"
aprox.
259 m
Liceul Teoretic Nicolae Balcescu
aprox.
259 m
Liceul Nicolae Balcescu
aprox.
262 m
Grădinița Reformată nr. 1. "Csemete"
aprox.
287 m
Facultatea de Teologie Reformată
aprox.
301 m
Scoala de muzica populara
aprox.
326 m
Liceul pentru Deficienți de Vedere
aprox.
338 m
Colegiul Național George Coșbuc
aprox.
342 m
Liceul special pentru Deficienti de Vedere
aprox.
363 m
Liceul de Muzică Sigismund Toduță
aprox.
365 m
Facultatea de matematica
aprox.
449 m
Liceul Teoretic Avram Iancu
aprox.
477 m
Grăd.Mămăruța
aprox.
257 m
Centru international de educatie - Paideea
aprox.
293 m
Grăd.Albă ca Zăpada str. 1 corp A+B
aprox.
486 m
Alba ca zapada
aprox.
495 m
Gradinita Unitariana
aprox.
543 m
Grăd.Bambi str.2
aprox.
584 m
Grăd.Albă ca Zăpada str.1 corp C
aprox.
625 m
Grăd.Dumbrăvioara, corp B, Locația Năsăud
aprox.
642 m
Grăd.Universității Babeș< Bolyai
aprox.
666 m
Grăd.Bambi
aprox.
761 m
Grăd.Mămăruța str. 1
aprox.
787 m
Grăd.Universității Babeș< Bolyai corp B
aprox.
805 m
Grăd.Universității Babeș Bolyai
aprox.
869 m
Grăd Lumea copiilor corp A+B
aprox.
880 m
Gradinita Tanadarica
aprox.
947 m
Carrefour Market
aprox.
391 m
Unicarm
aprox.
639 m
Sora Shopping Center
aprox.
654 m
Minimarket
aprox.
674 m
Carrefour Express
aprox.
697 m
Billa
aprox.
714 m
Central
aprox.
730 m
Lidl
aprox.
811 m
Profi
aprox.
898 m
Carrefour
aprox.
998 m
Magazin alimentar
aprox.
1002 m
Carrefour Market
aprox.
1043 m
Carrefour
aprox.
1044 m
Koncert
aprox.
1051 m
Profi - Adina
aprox.
1057 m
Parcare cu plata
aprox.
392 m
Parcare pentru clienti cu plata
aprox.
403 m
Parcare
aprox.
508 m
Parcare
aprox.
574 m
Parcare pentru clienti
aprox.
603 m
Parcare
aprox.
614 m
Parcare cu plata
aprox.
614 m
Parcare
aprox.
617 m
Parcare
aprox.
653 m
Parcare pentru clienti
aprox.
660 m
Parcare
aprox.
672 m
Parcare
aprox.
674 m
Parcare
aprox.
701 m
Parcare privata
aprox.
704 m
Parcare
aprox.
705 m
Teren sportiv
aprox.
227 m
Teren sportiv
aprox.
318 m
Teren sportiv
aprox.
338 m
Teren sportiv
aprox.
546 m
Teren sportiv
aprox.
599 m
Teren sportiv
aprox.
605 m
Teren sportiv
aprox.
658 m
Teren sportiv
aprox.
722 m
Teren sportiv
aprox.
733 m
Teren sportiv
aprox.
1015 m
Teren sportiv
aprox.
1026 m
Teren sportiv
aprox.
1067 m
Palatul Copiilor - Tennis court
aprox.
1260 m
Teren sportiv
aprox.
1328 m
Teren sportiv
aprox.
1421 m
Piata "Avram Iancu"
aprox.
299 m
Parc
aprox.
392 m
Parc
aprox.
430 m
Parc
aprox.
477 m
Piata Stefan cel Mare
aprox.
486 m
Parc
aprox.
518 m
Parc
aprox.
709 m
Parc
aprox.
716 m
Parc
aprox.
744 m
Piata Mihai Viteazu
aprox.
752 m
Parc
aprox.
753 m
Parc
aprox.
767 m
Parc
aprox.
911 m
Parc
aprox.
912 m
Parc
aprox.
951 m
Piata Mihai Viteazul
aprox.
670 m
Piata 1848
aprox.
1190 m
Piața "Lucian Blaga" (fosta Păcii)
aprox.
1227 m
Piata Garii-RailwayStation Square (en)
aprox.
1485 m
Spitalul Ginecologic Stanca
aprox.
102 m
Centrul medical CosMedica
aprox.
237 m
Institutul de Hematologie
aprox.
250 m
Institutul Regional de gastroenterologie si hepatologie
aprox.
315 m
Radusan
aprox.
334 m
Spitalul de Hematologie
aprox.
357 m
Spitalul de Ortopedie
aprox.
528 m
Spitalul Clinic de Ortopedie
aprox.
540 m
Clinica Medicala si Chirurgie 3
aprox.
543 m
STOMA HD - Cabinet Stomatologic - Dr. Doru Hadarean (en)
aprox.
544 m
Centrul medical gastroenterologie si hepatologie
aprox.
549 m
Centrul Medical de Gastroenterologie, Hepatologie și Endoscopie Digestivă (en)
aprox.
553 m
Clinica Medicala III
aprox.
590 m
Policlinica de Ginecologie Gynia
aprox.
630 m
Policlinica pentru Sportivi
aprox.
753 m
Infofarm
aprox.
110 m
Aqua Farm
aprox.
162 m
Farmacia Remedium
aprox.
228 m
Farmacia Remedium
aprox.
355 m
Farmacia Ducfarm
aprox.
382 m
Farmacia Dona
aprox.
437 m
Farmacia
aprox.
442 m
Farmacie
aprox.
476 m
Via Farm
aprox.
495 m
Farmadex
aprox.
506 m
Nutricare
aprox.
507 m
Farmacia Napofarm
aprox.
518 m
Catena
aprox.
528 m
Farmacia Richter
aprox.
530 m
Farmacia Tesa
aprox.
541 m
Casa Maramureseana
aprox.
17 m
Restaurant La Cina (en)
aprox.
108 m
La Cina
aprox.
127 m
Napoli Centrale
aprox.
135 m
Napoli Centrale (en)
aprox.
135 m
Cantina CFR (en)
aprox.
169 m
Cantina Rituala
aprox.
171 m
La Casa
aprox.
258 m
Salad Box
aprox.
311 m
Wok'n Roll
aprox.
328 m
Avocado
aprox.
346 m
Restaurant Hotel Victoria
aprox.
368 m
Twelve
aprox.
404 m
Restaurant View
aprox.
405 m
Cercul Militar, Cinema Victoria
aprox.
406 m
Cluj Hub
aprox.
50 m
LC Learning & Consulting
aprox.
53 m
Grotta
aprox.
92 m
Snack & Coffe
aprox.
245 m
Phil's
aprox.
261 m
Big Ben Caffe
aprox.
268 m
Opera Food & Cafe
aprox.
431 m
Koffer Books & Coffee
aprox.
434 m
Narcoffee
aprox.
437 m
Bistro 23
aprox.
484 m
Crazy Cafe
aprox.
492 m
Sanko Cafe
aprox.
495 m
Zetta Caffe
aprox.
519 m
Wake up
aprox.
523 m
CHOCODOR
aprox.
565 m
Club Litoral
aprox.
253 m
The Office Wine Bar
aprox.
464 m
Cafe bar jocuri electronice
aprox.
527 m
Milenium Bar
aprox.
534 m
Ancuta Comimpex
aprox.
569 m
Ciao Ciao
aprox.
641 m
La Movida
aprox.
696 m
Junkyard
aprox.
700 m
Revolution
aprox.
762 m
Cafee-Bar Stone
aprox.
816 m
Joben Bistro
aprox.
845 m
Hemingway
aprox.
848 m
Crush
aprox.
899 m
Casa Tauffer
aprox.
909 m
Shadow
aprox.
911 m
O'Beer Irish Pub
aprox.
339 m
Crama Borissza
aprox.
433 m
Bistro
aprox.
568 m
Old School
aprox.
756 m
Submarine
aprox.
817 m
Post Office
aprox.
833 m
Old Schepherd
aprox.
902 m
Che Guevara
aprox.
913 m
Irish & Music Pub
aprox.
926 m
Ce?
aprox.
930 m
Rooster Pub
aprox.
930 m
Social Club P. Howard
aprox.
935 m
Klausen
aprox.
963 m
Bermuda's Pub
aprox.
994 m
Spatiu
aprox.
1003 m
Intesa Sanpaolo Bank
aprox.
200 m
Banca Cooperatista Alianta
aprox.
214 m
Bancpost
aprox.
228 m
Banca Transilvania
aprox.
246 m
Banca Transilvania
aprox.
257 m
CEC Bank
aprox.
344 m
BRD
aprox.
415 m
ProCredit Bank
aprox.
419 m
Raiffeisen Bank
aprox.
426 m
BCR
aprox.
435 m
Easy Credit
aprox.
475 m
Alpha Bank
aprox.
489 m
Raiffeisen Bank
aprox.
497 m
TBI Credit
aprox.
503 m
Banca Transilvania
aprox.
504 m
În mod firesc, datorită localizării și importanței sale, Centrul Clujului este una dintre zonele cel mai bine deservite la capitolul mijloace de transport în comun, acestea având menirea de a ușura accesul către celelalte cartiere ale orașului (nu doar cele învecinate). În plus, aici a fost inaugurată, în ultimii ani, o bandă specială pentru transportul în comun: aceasta începe pe Strada Memorandumului, în apropiere de sediul central al Primăriei Cluj-Napoca, și se continuă pe Bulevardul 21 Decembrie 1918, legând astfel zona Centru de cartierul Mărăști. Și pasionații de bicicletă au de câștigat de pe urma acestui proiect, noua bandă putând fi folosită și pentru acest mijloc de locomoție.
Dacă vei decide să te muți în Centru, unul dintre beneficiile importante de care vei avea parte va fi reprezentat tocmai de multiplele opțiuni de educație pentru copiii tăi "“ atât în ceea ce privește ciclul preșcolar, cât și cel gimnazial și liceal. Printre instituțiile de prestigiu din acest cartier se numără, spre exemplu, Școala Gimnazială "Ioan Bob", cea mai veche școală românească din Cluj-Napoca. La capitolul învățământ superior, această zonă oferă, de departe, cele mai numeroase oportunități dintre toate cartierele orașului de pe Someș. Astfel, aici se găsesc sediul central al Universității "Babeș-Bolyai", Facultatea de Geografie, Facultatea de Chimie și Inginerie Chimică, Facultatea de Automatică și Calculatoare, Facultatea de Matematică și Informatică (din cadrul Universității "Babeș-Bolyai"), Facultatea de Studii Europene, precum și Institutul Teologic Protestant.
Multiple opțiuni există și pentru pasionații centrelor comerciale moderne, Central Shopping Center fiind un punct de referință pentru mulți clujeni. În apropiere se află și Sora Shopping Center, precum și Ferdinand Galeria. Pentru cumpărăturile de alimente și alte produse de bază, clujenii care locuiesc în Centru nu au la dispoziție un hipermarket "“ deși pot ajunge, în caz de nevoie, la Kauflandul din Mărăști sau la cel din Mănăștur. Nevoile zilnice pot fi satisfăcute, însă, fără prea mari probleme, de magazinele de mai mici dimensiuni existente în cartier.
Pentru cei care au mașină proprie, găsirea unui loc de parcare permanent poate reprezenta, cel puțin în anumite situații, o problemă. Pentru a evita orice probleme în această privință, șoferii se pot interesa cu privire la procedura de închiriere a unui loc de parcare la sediul central al Primăriei Clujului, de pe Strada Moților, nr. 3.
Astfel, pe lângă spațiile verzi și locurile de joacă amenajate pe alocuri, aceștia pot alege, pentru relaxare, între mai multe parcuri, cum ar fi Parcul Central "Simion Bărnuțiu" (amplasat aproape de granița cu Plopilor), Grădina Miko (aproape de Zorilor) sau Parcul Operei. De menționat este, desigur, și Grădina Botanică "Alexandru Borza", situată în sudul cartierului, care reprezintă o destinație perfectă pentru relaxare pe timp de weekend (dar nu numai). Față de alte zone ale orașului de pe Someș, Centrul se distinge și printr-o multitudine de obiective de interes turistic și cultural.
Dintre toate cartierele Clujului, Centrul este cel mai bine reprezentat și la capitolul servicii medicale de stat, aici găsindu-se cele mai multe spitale și clinici de acest tip. În cartier se găsesc, bineînțeles, și o serie de cabinete și clinici medicale particulare, dintre care de menționat ar fi centrele medicale Synevo, Affidea, Cardiomed, dar și clinica de oftalmologie Optinis.
Comparativ cu alte cartiere ale orașului de pe Someș, zona Centrală este, în mod firesc, mult mai ofertantă la capitolul oportunități gastronomice. Astfel, printre opțiunile demne de luat în seamă de aici se numără restaurantele "Casa Boema" (de pe Strada Iuliu Maniu, nr. 34), "Semplice Gourmet" (de pe Strada Calea Dorobanților, nr. 18-20), "Da Pino" (de pe Strada Universității, nr. 8), "Insomnia" (de pe Strada Universității, nr. 2), dar și altele. Dacă ești interesat de o ieșire în oraș cu prietenii, în zona Centrală ai la dispoziție, desigur, și o serie de cafenele, precum "Doamna T", "Papillon Cafe" sau "Meron Opera".
Dacă ai nevoie să efectuezi o operațiune bancară, te vei bucura să afli că zona Centru este foarte bine deservită la acest capitol. Spre exemplu, aici pot fi găsite, într-un areal destul de restrâns, două sedii Banca Transilvania (unul pe Bulevardul Eroilor, nr. 36, iar celălalt, pe Calea Dorobanților, nr. 3), o sucursală ING Bank (pe Bulevardul Eroilor, nr. 9), dar și una CEC Bank (pe Bulevardul 21 Decembrie 1989). De asemenea, la granița dintre Gruia și zona Centrală (reprezentată de Strada Horea), se găsesc alte trei sucursale bancare: una din rețeaua BCR, o Banca Transilvania, alături de un sediu Raiffeisen Bank. Consultă harta și află unde sunt localizate și alte bănci sau ATM-uri în zona Centru:
Înainte să pleci...
Ești sigur că ai văzut și aceste proprietăți?
1.998 € / lună
Cluj-Napoca, Central
154 mp utili
Casă/Vilă
1.850 € / lună
Cluj-Napoca, Central
150 mp utili
Bloc de apartamente
P+2E
1.900 € / lună
Cluj-Napoca, Central
230 mp utili
Casă/Vilă
2E
Creează alertă
Salvează căutarea ca să primești pe email ultimele anunțuri publicate
Birouri cu 4+ camere de închiriat în zona Central, Cluj-Napoca
Cere detalii prin email
*
*
*
*
Detaliile tale de contact vor fi partajate cu Bling Imobiliare