Spatiu pentru birouri, medical, 152 mp utili, situat in zona Centrala!

2.001 € + TVA / lună
13.16 € + TVA / mp / lună

Central, Cluj-Napoca

Sup. utilă / mp. utili:
152 mp
Tip prop.:
Casă/Vilă
An constr.:
1930 (Există)
  • • Locație aproximativă
  • • Vizionare prin apel video

Descriere spațiu comercial

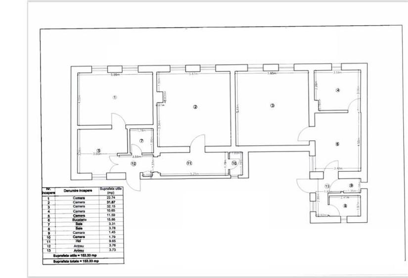
Rower Estate va propune spre inchiriere un spatiu destinat activitatilor de birou, medicale, administrative sau culturale, cu o suprafata utila de 152 mp, situat in zona centrala a orasului, in proximitatea Regionalei CFR. Spatiul este amplasat la parter si se afla in prezent in curs de renovare, oferind viitorului chirias posibilitatea de personalizare. In aceasta etapa, exista posibilitatea configurarii instalatiei electrice si sanitare, precum si a finisajelor interioare, in functie de specificul activitatii desfasurate. Proprietatea nu beneficiaza de acces direct din strada, insa dispune de 2 locuri de parcare exterioare, precum si de posibilitatea inchirierii de locuri suplimentare intr-o parcare privata, pe baza de abonament. Toate utilitatile sunt contorizate separat, iar incalzirea se va realiza prin calorifere. La pret se adauga TVA! h = 2.70 m ID intern: ROW4379
Citește mai mult Citește mai puțin

Detalii spațiu comercial

ID anunț: XBUG140FJ Copiat! 275343409 Copiat!
Actualizat în: 26 Martie 2026
Clasă birouri: B
Stadiu construcție: Există
Suprafață teren: 250 mp

Utilități

Utilități
Apă Curent Gaze Canalizare Căldură
Comision
50%

Vecinătăți:

Scoala/gradinita, Centru universitar, Restaurant/pub, Parc, Central, Hotel, Piata, Benzinarie, Intersectie circulata, Trafic Pietonal, Fastfood, Banca, Zona comerciala, Autobuz

Puncte de interes

Mijloace transport
bus-station
Statia Somesul, liniile 8,24,30,47, 4,6,7,25, 46B
Stații autobuz aprox. 205 m
bus-station
Statia Somesul, Liniile: 8,24,30,46B,47, 4,6,7
Stații autobuz aprox. 230 m
tram-station
Statia G. Baritiu 1, Linia 102
Stații tramvai aprox. 1126 m
train-station
Gara Noua / "Gara de scurt parcurs"
Stații tren aprox. 1509 m
Școală
kindergarten
Grăd.Mămăruța
Gradinițe aprox. 62 m
school
Liceul Teologic Unitarian Janos Zsigmond
Școli aprox. 94 m
kindergarten
Grăd.Bambi str.2
Gradinițe aprox. 299 m
university
Universitatea Spiru Haret
Universități aprox. 330 m
Recreere
sports-ground
Teren sportiv
Terenuri sport aprox. 212 m
park
Parc
Parcuri aprox. 487 m
supermarket
Lidl
Supermarket aprox. 526 m
public-square
Piata Mihai Viteazul
Piețe publice aprox. 907 m

Proprietăți similare

Birou, 230 mp în Central
1.900 € / lună
Cluj-Napoca, Central
230 mp utili
Bloc de apartamente
P+2E
Birou, 140 mp în Central
2.100 € / lună
Cluj-Napoca, Central
140 mp utili
Clădire de birouri
P+8E
Birou, 242 mp în Central
2.178 € / lună
Cluj-Napoca, Central
242 mp utili
Clădire de birouri
P+6E

Detalii de contact

Abonează-te la newsletter să fii primul care primește cele mai noi recomandări de proprietăți și sfaturi de la experți.

CONTACT

Creează alertă

Salvează căutarea ca să primești pe email ultimele anunțuri publicate

Birouri cu 4+ camere de închiriat în zona Central, Cluj-Napoca