GDN Imobiliare vă propune spre închiriere un spațiu de birouri, amplasat ultracentral, chiar în inima Clujului, la parterul unei clădiri istorice emblematice, lângă Piața Mihai Viteazul, str. Regele Ferdinand.
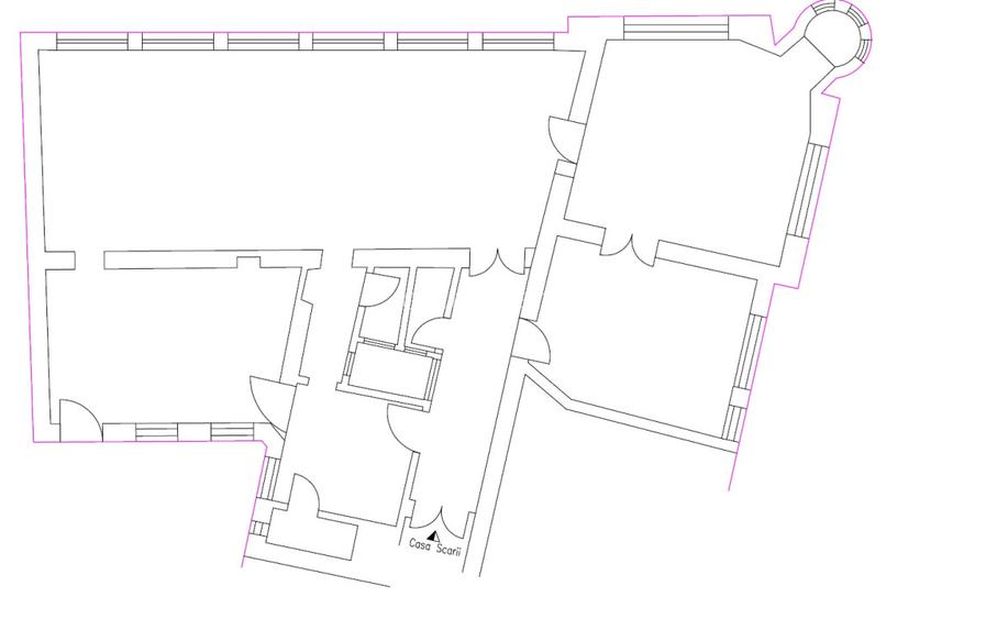
Spațiul are o suprafață utilă totală de 230 mp, compus din 5 încăperi, fiind împărțit astfel:
- 4 birouri, bucătărie, 2 băi
Amplasarea ultracentrală a spațiului recomandă locația ca fiind excelentă pentru sediu firmă, birouri. Compartimentarea excelentă conferă spațiului versatilitate și flexibilitate în utilizare, fiind împărțit în zonă pentru birouri open space, sală ședințe, birou manager, etc.
Acesta este dotat cu geamuri termopan,, încălzire centrală pe gaz, instalație de curent slab, senzor si alarmă de incendiu, sistem antiefracție.
Spațiul va fi disponibil începând din ianuarie 2026.
Preț de închiriere: 2300 EUR +TVA.
Pentru detalii suplimentare și programări la vizionări, vă stăm cu plăcere la dispoziție!
GDN Imobiliare – prietenii și consultanții voștri imobiliari, de la idee până la cheie!
Sediul central - Timișoara
Bulevardul Victor Babeș nr. 2, 300230, Timișoara, România
Tel: +40.374.40.44.98 / Fax: +40.256.401.179
Email: suport@imobiliare.ro
Luni - Vineri 08:00 - 20:00
Punct de lucru - București: Iride Business Park, Bld. Dimitrie
Pompeiu 9-9A, Clădirea B2B,
020335, Sector 2, București, România
CONTACT
Sediul central - Timișoara
Bulevardul Victor Babeș nr. 2, 300230, Timișoara, România
Tel: +40.374.40.44.98 / Fax: +40.256.401.179
Email: suport@imobiliare.ro
Luni - Vineri 08:00 - 20:00
Punct de lucru - București: Iride Business Park, Bld. Dimitrie
Pompeiu 9-9A, Clădirea B2B,
020335, Sector 2, București, România
În mod firesc, datorită localizării și importanței sale, Centrul Clujului este una dintre zonele cel mai bine deservite la capitolul mijloace de transport în comun, acestea având menirea de a ușura accesul către celelalte cartiere ale orașului (nu doar cele învecinate). În plus, aici a fost inaugurată, în ultimii ani, o bandă specială pentru transportul în comun: aceasta începe pe Strada Memorandumului, în apropiere de sediul central al Primăriei Cluj-Napoca, și se continuă pe Bulevardul 21 Decembrie 1918, legând astfel zona Centru de cartierul Mărăști. Și pasionații de bicicletă au de câștigat de pe urma acestui proiect, noua bandă putând fi folosită și pentru acest mijloc de locomoție.
Dacă vei decide să te muți în Centru, unul dintre beneficiile importante de care vei avea parte va fi reprezentat tocmai de multiplele opțiuni de educație pentru copiii tăi "“ atât în ceea ce privește ciclul preșcolar, cât și cel gimnazial și liceal. Printre instituțiile de prestigiu din acest cartier se numără, spre exemplu, Școala Gimnazială "Ioan Bob", cea mai veche școală românească din Cluj-Napoca. La capitolul învățământ superior, această zonă oferă, de departe, cele mai numeroase oportunități dintre toate cartierele orașului de pe Someș. Astfel, aici se găsesc sediul central al Universității "Babeș-Bolyai", Facultatea de Geografie, Facultatea de Chimie și Inginerie Chimică, Facultatea de Automatică și Calculatoare, Facultatea de Matematică și Informatică (din cadrul Universității "Babeș-Bolyai"), Facultatea de Studii Europene, precum și Institutul Teologic Protestant.
Multiple opțiuni există și pentru pasionații centrelor comerciale moderne, Central Shopping Center fiind un punct de referință pentru mulți clujeni. În apropiere se află și Sora Shopping Center, precum și Ferdinand Galeria. Pentru cumpărăturile de alimente și alte produse de bază, clujenii care locuiesc în Centru nu au la dispoziție un hipermarket "“ deși pot ajunge, în caz de nevoie, la Kauflandul din Mărăști sau la cel din Mănăștur. Nevoile zilnice pot fi satisfăcute, însă, fără prea mari probleme, de magazinele de mai mici dimensiuni existente în cartier.
Pentru cei care au mașină proprie, găsirea unui loc de parcare permanent poate reprezenta, cel puțin în anumite situații, o problemă. Pentru a evita orice probleme în această privință, șoferii se pot interesa cu privire la procedura de închiriere a unui loc de parcare la sediul central al Primăriei Clujului, de pe Strada Moților, nr. 3.
Astfel, pe lângă spațiile verzi și locurile de joacă amenajate pe alocuri, aceștia pot alege, pentru relaxare, între mai multe parcuri, cum ar fi Parcul Central "Simion Bărnuțiu" (amplasat aproape de granița cu Plopilor), Grădina Miko (aproape de Zorilor) sau Parcul Operei. De menționat este, desigur, și Grădina Botanică "Alexandru Borza", situată în sudul cartierului, care reprezintă o destinație perfectă pentru relaxare pe timp de weekend (dar nu numai). Față de alte zone ale orașului de pe Someș, Centrul se distinge și printr-o multitudine de obiective de interes turistic și cultural.
Dintre toate cartierele Clujului, Centrul este cel mai bine reprezentat și la capitolul servicii medicale de stat, aici găsindu-se cele mai multe spitale și clinici de acest tip. În cartier se găsesc, bineînțeles, și o serie de cabinete și clinici medicale particulare, dintre care de menționat ar fi centrele medicale Synevo, Affidea, Cardiomed, dar și clinica de oftalmologie Optinis.
Comparativ cu alte cartiere ale orașului de pe Someș, zona Centrală este, în mod firesc, mult mai ofertantă la capitolul oportunități gastronomice. Astfel, printre opțiunile demne de luat în seamă de aici se numără restaurantele "Casa Boema" (de pe Strada Iuliu Maniu, nr. 34), "Semplice Gourmet" (de pe Strada Calea Dorobanților, nr. 18-20), "Da Pino" (de pe Strada Universității, nr. 8), "Insomnia" (de pe Strada Universității, nr. 2), dar și altele. Dacă ești interesat de o ieșire în oraș cu prietenii, în zona Centrală ai la dispoziție, desigur, și o serie de cafenele, precum "Doamna T", "Papillon Cafe" sau "Meron Opera".
Dacă ai nevoie să efectuezi o operațiune bancară, te vei bucura să afli că zona Centru este foarte bine deservită la acest capitol. Spre exemplu, aici pot fi găsite, într-un areal destul de restrâns, două sedii Banca Transilvania (unul pe Bulevardul Eroilor, nr. 36, iar celălalt, pe Calea Dorobanților, nr. 3), o sucursală ING Bank (pe Bulevardul Eroilor, nr. 9), dar și una CEC Bank (pe Bulevardul 21 Decembrie 1989). De asemenea, la granița dintre Gruia și zona Centrală (reprezentată de Strada Horea), se găsesc alte trei sucursale bancare: una din rețeaua BCR, o Banca Transilvania, alături de un sediu Raiffeisen Bank. Consultă harta și află unde sunt localizate și alte bănci sau ATM-uri în zona Centru:
Înainte să pleci...
Ești sigur că ai văzut și aceste proprietăți?
1.900 € / lună
Cluj-Napoca, Central
230 mp utili
Bloc de apartamente
2E
2.000 € / lună
Cluj-Napoca, Central
133 mp utili
Casă/Vilă
1E
1.848 € / lună
Cluj-Napoca, Central
2.000 mp utili
Clădire de birouri
P+5E
Creează alertă
Salvează căutarea ca să primești pe email ultimele anunțuri publicate
Birouri cu 4+ camere de închiriat în zona Central, Cluj-Napoca
Cere detalii prin email
*
*
*
*
Detaliile tale de contact vor fi partajate cu Gdn Real Estate