Birou Modern 250 și 500 mp – Locație Centrală Strada Ploiești nr. 9

4.250 € / lună
17 € / mp / lună

Central, Cluj-Napoca

Sup. utilă / mp. utili:
500 mp
Tip prop.:
Clădire de birouri
  • • Comision 0%
  • • Locație exactă

Descriere spațiu comercial

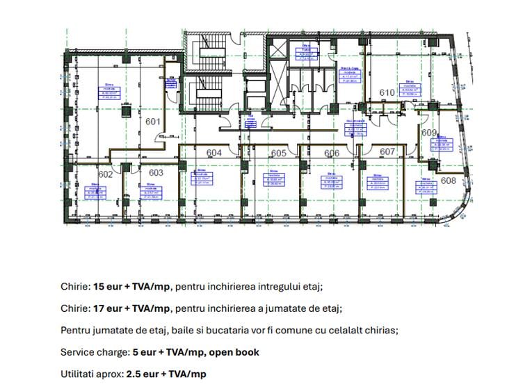
• Spațiu: Etaj 6 exclusiv, suprafață de 250 și 500 mp, configurat modern • Facilități Private: Bucătărie complet echipată și grupuri sanitare proprii, dedicate exclusiv echipei tale. • Plug & Play: Spațiul se predă complet mobilat cu mobilier ergonomic de înaltă calitate și infrastructură IT pregătită. • Locație: Strada Ploiești nr. 9, ultracentral, cu acces facil la transport și facilități urbane. Se poate oferi opțiunea închirierii a 250 mp, pentru 17 euro + TVA mp sau 500 mp pentru 15 euro + TVA mp. Contact:
Citește mai mult Citește mai puțin

Detalii spațiu comercial

ID anunț: XV10041BR Copiat! 275361730 Copiat!
Actualizat în: 30 Martie 2026
Suprafață utilă: 250 mp

Utilități

Comision
0%

Subspații disponibile

Chirie / u.m. / lună:
17 EUR/mp (total: 4250 EUR/lună), Comision 0% cumpărător
Suprafață disponibilă:
250
Disponibilitate spațiu:
imediat

Puncte de interes

Mijloace transport
bus-station
Statia Piata Mihai Viteazu, Linia 29, 31, 37, 50
Stații autobuz aprox. 179 m
bus-station
Piata Mihai Viteazul Est
Stații autobuz aprox. 181 m
tram-station
Statia G. Baritiu 1, Linia 102
Stații tramvai aprox. 528 m
train-station
Gara Noua / "Gara de scurt parcurs"
Stații tren aprox. 1091 m
Școală
university
Facultatea de Istorie si Filozofie
Universități aprox. 122 m
university
Matematicum (green building) (en)
Universități aprox. 130 m
school
Facultatea de matematica
Școli aprox. 141 m
kindergarten
Centru international de educatie - Paideea
Gradinițe aprox. 275 m
Recreere
supermarket
Carrefour Market
Supermarket aprox. 171 m
sports-ground
Teren sportiv
Terenuri sport aprox. 215 m
public-square
Piata Mihai Viteazul
Piețe publice aprox. 275 m
park
Piata Mihai Viteazu
Parcuri aprox. 379 m

Proprietăți similare

Birou, 412 mp în Central
4.532 € / lună
Cluj-Napoca, Central
412 mp utili
Clădire de birouri
2009 (Există)
Birou, de 300 mp, în Central
4.287 € / lună
Cluj-Napoca, Central
300 mp utili
Clădire mixtă
Birou, 370 mp în Central
4.400 € / lună
Cluj-Napoca, Central
370 mp utili
Clădire de birouri
P+8E

Detalii de contact

Radu Popescu

Radu Popescu

Abonează-te la newsletter să fii primul care primește cele mai noi recomandări de proprietăți și sfaturi de la experți.

CONTACT

Creează alertă

Salvează căutarea ca să primești pe email ultimele anunțuri publicate

Birouri de închiriat în zona Central, Cluj-Napoca