0% COMISION!
Spatiu de birouri modern 220 mp | Zona Calea Turzii – OMV | 3 parcari incluse
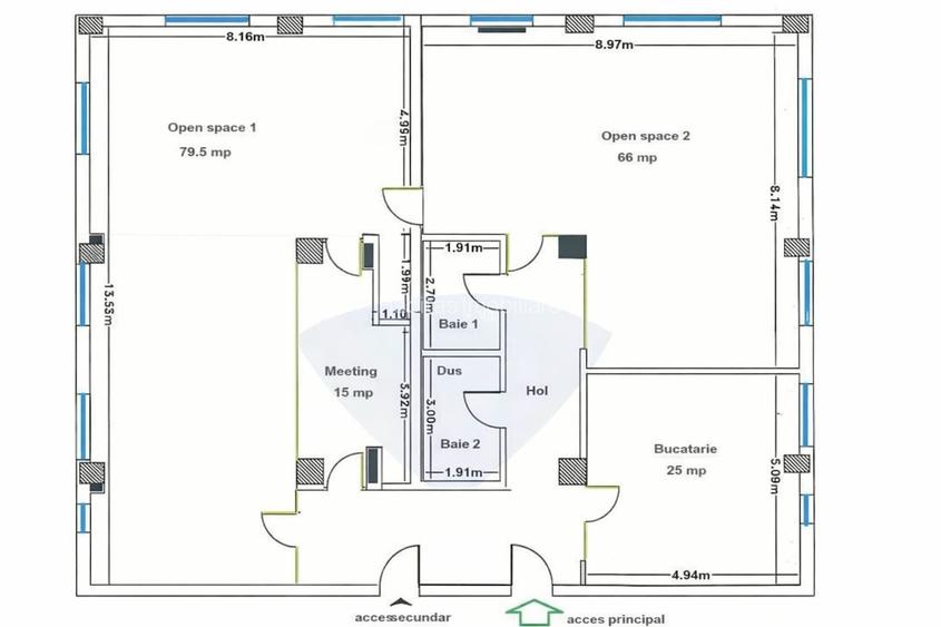
Va propunem spre inchiriere un spatiu de birouri modern, cu suprafata utila de 220 mp, situat la parterul unei cladiri construite in 2019, in zona Europa – Calea Turzii (reper OMV), Cluj-Napoca.
Spatiul este ideal pentru firme de IT, contabilitate, arhitectura, consultanta sau alte activitati de birou care necesita un mediu profesional, luminos si eficient compartimentat.
Compartimentare
2 birouri open space generoase
1 meeting room
2 bai complet amenajate
zona de relaxare
bucatarie complet utilata
2 holuri de acces
Dotari si beneficii
Bucatarie mobilata si utilata (frigider incorporat, espressor, cuptor microunde, fierbator)
Birouri mobilate (birouri, scaune, dulap depozitare, ecran proiectie, flipchart)
Meeting room mobilat (masa si scaune)
2 centrale Ariston in condensatie
Consum redus pentru incalzire
Ferestre tripan cu rulouri
Aer conditionat
Pardoseala mocheta
Acces facil inclusiv cu rampa
3 locuri de parcare private incluse
Localizare si acces
Zona ofera acces rapid catre mijloace de transport in comun (liniile 21, 43B, 45), magazine (Carrefour, Mega Image, Profi, Moldovan, Remedium), sala de fitness 18Gym, restaurant in cladirea Hexagon si statie OMV.
Spatiul este disponibil imediat.
Sediul central - Timișoara
Bulevardul Victor Babeș nr. 2, 300230, Timișoara, România
Tel: +40.374.40.44.98 / Fax: +40.256.401.179
Email: suport@imobiliare.ro
Luni - Vineri 08:00 - 20:00
Punct de lucru - București: Iride Business Park, Bld. Dimitrie
Pompeiu 9-9A, Clădirea B2B,
020335, Sector 2, București, România
CONTACT
Sediul central - Timișoara
Bulevardul Victor Babeș nr. 2, 300230, Timișoara, România
Tel: +40.374.40.44.98 / Fax: +40.256.401.179
Email: suport@imobiliare.ro
Luni - Vineri 08:00 - 20:00
Punct de lucru - București: Iride Business Park, Bld. Dimitrie
Pompeiu 9-9A, Clădirea B2B,
020335, Sector 2, București, România
Sună acum și cere detalii sau programează o vizionare.
Cere detalii prin email
*
*
*
*
Stații autobuz
Gradinițe
Școli
Universități
Supermarket
Parcări
Parcuri
Terenuri sport
Spital
Farmacie
Bar
Cafenea
Pub
Restaurant
Bancă
L. Matis
aprox.
155 m
N. Steinhardt
aprox.
208 m
L.Matis
aprox.
213 m
N. Steinhardt
aprox.
239 m
V. Stoica
aprox.
489 m
E. Ionesco
aprox.
545 m
Luminii
aprox.
599 m
Statia Alsifcom, Linia 40
aprox.
729 m
Alsifcom
aprox.
733 m
Centrul Medical
aprox.
767 m
Dacia Service
aprox.
773 m
Statia Dacia Service, Linia 40
aprox.
789 m
Compexit
aprox.
802 m
Drum Faget
aprox.
806 m
Grigore Antipa Est
aprox.
892 m
Gradinita Liceului Waldorf
aprox.
729 m
Helen
aprox.
932 m
Gradinita "Zana Zorilor" (nr. 58)
aprox.
1494 m
Grăd.Universul copiilor str.1
aprox.
1521 m
Grăd.Zâna Zorilor
aprox.
1593 m
Grăd.Buburuzastr.1
aprox.
1708 m
Grăd.Universul copiilor
aprox.
1781 m
Gradinita Buburuza
aprox.
1860 m
Grăd.Buburuza
aprox.
1866 m
Gradinita Speciala
aprox.
1919 m
Liceul Waldorf
aprox.
758 m
Scoala Generala nr. 10 / Școala Radu Stanca
aprox.
1365 m
Liceul de informatica Tiberiu Popovici
aprox.
1365 m
Liceul de Informatica Tiberiu Popoviciu
aprox.
1399 m
Liceul de Informatica "Tiberiu Popoviciu"
aprox.
1411 m
Liceul Edmond Nicolau
aprox.
1545 m
Facultatea de Arhitectura si Urbanism
aprox.
1608 m
Liceul Teologic Adventist
aprox.
1619 m
Cladirea C.I.A
aprox.
1714 m
Colegiul Tehnic Edmond Nicolau
aprox.
1889 m
Școala Liviu Rebreanu / Liceul Liviu Rebreanu
aprox.
1897 m
Scoala Liviu Rebreanu
aprox.
1897 m
UT Facultatea de Constructii si Facultatea de Arhitectura si Urbanism
aprox.
1294 m
CFDP si Facultatea de Arhitectura si Urbanism
aprox.
1334 m
Facultatea Arte Plastice, Sectia Foto-Video
aprox.
1561 m
Facultatea de Arhitectura si Urbanism
aprox.
1595 m
Cladirea Observator a Universitatii Tehnice din Cluj-Napoca
aprox.
1813 m
USAMV Cluj-Napoca
aprox.
1932 m
UMF- catedra de biologie celulara
aprox.
1957 m
UMF- Catedra de biochimie
aprox.
1958 m
UMF- Catedra de Informatica Medicala
aprox.
1970 m
UMf- catedra de genetica
aprox.
1991 m
Baumax
aprox.
677 m
Lidl
aprox.
794 m
Profi
aprox.
989 m
Carrefour Express
aprox.
1100 m
Billa
aprox.
1243 m
Oncos
aprox.
1312 m
Profi
aprox.
1323 m
Sigma Shopping Center
aprox.
1674 m
Lidl
aprox.
1696 m
Olimpia
aprox.
1727 m
Profi
aprox.
1739 m
NONstop
aprox.
1932 m
Lidl
aprox.
1933 m
La doi Pasi
aprox.
1978 m
Parcare Baumax
aprox.
563 m
Parcare Baumax
aprox.
717 m
Parcare
aprox.
762 m
Parcare
aprox.
788 m
Parcare
aprox.
828 m
Parcare privata
aprox.
866 m
Parcare privata
aprox.
867 m
Parcare privata
aprox.
872 m
Parcare privata
aprox.
876 m
Parcare privata
aprox.
901 m
Parcare privata
aprox.
904 m
Parcare
aprox.
906 m
Parcare
aprox.
908 m
Parcare
aprox.
910 m
Parcare
aprox.
926 m
Parc
aprox.
846 m
Parc
aprox.
1077 m
Parc
aprox.
1101 m
Parc
aprox.
1172 m
Parc
aprox.
1291 m
Parc
aprox.
1295 m
Parc
aprox.
1298 m
Parc
aprox.
1301 m
Parc
aprox.
1320 m
Parc
aprox.
1410 m
Parc
aprox.
1520 m
Parc
aprox.
1524 m
Parc
aprox.
1559 m
Parc
aprox.
1600 m
Parc
aprox.
1612 m
Teren sportiv
aprox.
979 m
Teren sportiv
aprox.
1021 m
Teren sportiv
aprox.
1374 m
Teren sportiv
aprox.
1417 m
Teren sportiv
aprox.
1517 m
Teren sportiv
aprox.
1550 m
Teren sportiv
aprox.
1900 m
Teren sportiv
aprox.
1911 m
Cabinet de nefrologie si centru de dializa Fresenius
aprox.
562 m
Centrul Medical Transilvania
aprox.
1169 m
Spitalul de Recuperare
aprox.
1188 m
Clinica Bendis
aprox.
1195 m
Centrul Medical de Balneofizioterapie si Recuperare Edelweiss
aprox.
1247 m
Smile Dental Clinic
aprox.
1328 m
Medical Cor
aprox.
1333 m
Cabinetul Medical Zormed
aprox.
1343 m
Novogyn - Spital Privat de Obstetrica-Ginecologie
aprox.
1463 m
Ronda Medical
aprox.
1527 m
Spitalul Clinic de Boli Infecțioase
aprox.
1846 m
Spitalul Clinic de Boli Infectioase
aprox.
1846 m
Medicover Cluj
aprox.
1910 m
Spitalul Clinic Județean de Urgență: Clinica de Endocrinologie, Clinica de Medicina Muncii
aprox.
1914 m
Farmacie
aprox.
1992 m
Farmacia Infofarm
aprox.
999 m
Farmacia Balanis
aprox.
1001 m
Ortoprofil
aprox.
1143 m
Bendis Pharma
aprox.
1183 m
Farmacie
aprox.
1219 m
Farmacia Veroli
aprox.
1253 m
Catena
aprox.
1267 m
Dona
aprox.
1273 m
Farmacia Zorilor
aprox.
1303 m
Farmacia Observator
aprox.
1566 m
G94
aprox.
877 m
The Gentlemen's Club
aprox.
1130 m
Caminul Zero
aprox.
1665 m
Cafe Bar
aprox.
1800 m
Apartament 1
aprox.
992 m
Mates Pub
aprox.
1126 m
Phi 18
aprox.
1667 m
Hard Club
aprox.
1686 m
Old Pub
aprox.
1730 m
Restaurant Rod
aprox.
1170 m
Greenbox Pizza
aprox.
1207 m
Pizzeria Azzuro
aprox.
1230 m
Restaurant Perla
aprox.
1311 m
Crama Haiducilor
aprox.
1317 m
Zucca
aprox.
1329 m
Cantina Observator
aprox.
1575 m
Cantina UTCN Observator
aprox.
1578 m
Athena
aprox.
1594 m
Athena
aprox.
1599 m
Good Food
aprox.
1632 m
Marty Sports&Grill
aprox.
1652 m
Salad Box
aprox.
1678 m
Le Buffet
aprox.
1680 m
Subway
aprox.
1682 m
EximBank
aprox.
1142 m
ING
aprox.
1144 m
BRD - Groupe Societe Generale
aprox.
1154 m
BRD
aprox.
1163 m
Raiffaisen Bank
aprox.
1241 m
Banca Transilvania
aprox.
1268 m
Alpha Bank
aprox.
1273 m
BCR
aprox.
1314 m
CEC Bank
aprox.
1323 m
Intesa Sanpaolo Bank
aprox.
1325 m
BRD
aprox.
1343 m
Banca Transilvania
aprox.
1611 m
BRD
aprox.
1635 m
OTP Bank
aprox.
1638 m
BRD - Groupe Societe Generale
aprox.
1639 m
Fiind un cartier aflat încă în dezvoltare, Europa nu dispune de o rețea foarte amplă de mijloace de transport în comun, principala linie care deservește clujenii din zonă fiind cea a autobuzului 46, care merge pe Strada Eugen Ionesco (alte linii de transport în comun mai pot fi găsite pe Strada Calea Turzii).
Având în vedere că Europa este, încă, un cartier aflat în plină dezvoltare, dacă vei locui aici poți întâmpina probleme în ceea ce privește găsirea unei grădinițe sau unei școli "“ de stat sau particulare. Pentru aceasta, ai putea fi nevoit să te îndrepți spre unul dintre cartierele învecinate, anume Mănăștur sau Zorilor. La capitolul licee, o instituție medicală de menționat este Liceul "Waldorf", amplasat aproape de granița cu Mănășturul (pe Strada Sergiu Celibidache). În ceea ce privește învățământul superior, Europa are mult de câștigat de pe urma faptului că se învecinează cu Zorilor, unde se găsesc câteva dintre cele mai prestigioase instituții de profil "“ precum Universitatea de Medicină și Farmacie "Iuliu Hațieganu", Facultatea de Inginerie Civilă (din cadrul Universității Tehnice din Cluj-Napoca), dar și Facultatea de Arhitectură și Urbanism.
La fel ca în Zorilor (dar și în alte cartiere clujene), în Europa nu există, deocamdată, nici mall, nici hipermarket. Pentru cumpărăturile de zi cu zi, locuitorii acestui cartier trebuie să se bazeze pe supermarketurile care există totuși aici (dintre care face parte și Profi). Cei care doresc să aibă, totuși, mai multe opțiuni la acest capitol se pot îndrepta, cel puțin pe timp de weekend, către hipermarketul Kaufland din Mănăștur. O oportunitate interesantă pentru locuitorii din Europa este reprezentată de faptul că în vestul cartierului, aproape de Strada Calea Turzii, se găsește magazinul de bricolaj Leroy Merlin. Pentru cei interesați, de menționat este că în zonă se găsesc și o serie de unități comerciale cu profil auto (printre care se numără și un centru autorizat Mercedes Benz).
Dat fiind faptul că Europa este un cartier aflat în curs de dezvoltare "“ și, deci, nu aglomerat "“, cei care au mașină nu ar trebui să întâmpine probleme în găsirea unui loc de parcare, fie el și permanent. Dacă vor, totuși, să închirieze un astfel de spațiu de la autoritățile locale, aceștia se pot interesa la sediul central al Primăriei.
Deși poate fi considerată o zonă destul de "verde", Europa nu dispune, deocamdată, de niciun parc amenajat pentru locuitorii săi. Aceasta nu este, însă, o problemă fără soluții: cei care vor să se bucure de o plimbare în aer liber "“ sau, de ce nu, de un timp de jogging "“ se pot orienta către una dintre străzile mai puțin aglomerate ale zonei. Un avantaj important pentru locuitorii acestui cartier încă tânăr al Clujului este însă că, pe timp de weekend, aceștia se pot bucura de o ieșire în natură în pădurea Făget, situată în cartierul învecinat. Această rezervație naturală este potrivită atât pentru un picnic cu familia sau prietenii, cât și pentru activități sportive precum jogging, mers cu bicicleta sau, pur și simplu, o drumeție.
La capitolul servicii medicale, în Europa poți găsi atât câteva cabinete particulare, cât și centre medicale de dimensiuni mai mari, ce oferă servicii pentru o multitudine de specializări. De menționat este, astfel, atât centrul medical Psihomedica (amplasat aproape de granița cu Mănăștur, cât și centrul medical Cridipa. Pe Strada Ana Aslan se află, de asemenea, Centrul de Dializă "Fresenius" Cluj. Un avantaj important este reprezentat, iarăși, de vecinătatea cu zona Zorilor, unde se găsesc mai multe unități medicale de stat, precum Clinica de Pediatrie IV, Spitalul Clinic de Boli Infecțioase, Clinica de Neurochirugie Cluj, Clinica de Endocrinologie, dar și Spitalul Clinic de Recuperare.
Dezvoltându-se mai degrabă ca un cartier de tip "dormitor", Europa nu oferă, practic, oportunitți pentru a lua masa în oraș. Pentru aceasta te poți baza pe opțiunile disponibile în Zorilor, printre care se numără restaurantele "Rod", "London Brothers", "Bistro Napoca", dar și "Gentlemen"™s "“ Bistro & Sports Bar".
Cei care au nevoie să efectueze o operațiune bancară se pot baza pe multiplele oportunități oferite la acest capitol de zona Zorilor. Astfel, în acest cartier învecinat pot fi găsite o sucursală ING Bank, una Exim Bank, una Alpha Bank, alături de câte un sediu CEC Bank, BCR și Banca Transilvania. Consultă harta și află unde sunt localizate și alte bănci sau ATM-uri în zona Europa:
Înainte să pleci...
Ești sigur că ai văzut și aceste proprietăți?
4.800 € / lună
Cluj-Napoca, Grigorescu
600 mp utili
Clădire de birouri
2000 (Există)
2.240 € / lună
Cluj-Napoca, Central
160 mp utili
Clădire de birouri
P+4E
500 - 1.092 € / lună
Cluj-Napoca, Semicentral
75 mp utili
Casă/Vilă
1E
1.101 € / lună
Cluj-Napoca, Gruia
167 mp utili
Clădire de birouri
7E
1.900 € / lună
Cluj-Napoca, Central
230 mp utili
Casă/Vilă
P+2E
2.500 € / lună
Cluj-Napoca, Bulgaria
550 mp utili
Clădire de birouri
P+3E
Creează alertă
Salvează căutarea ca să primești pe email ultimele anunțuri publicate
Birouri cu 3 camere de închiriat în zona Europa, Cluj-Napoca
Cere detalii prin email
*
*
*
*
Detaliile tale de contact vor fi partajate cu Habitas Imobiliare