Capitoliu Imobiliare va ofera spre inchiriere un spatiu comercial pregatit pentru orice activitate economica, medicala sau de invatamant.
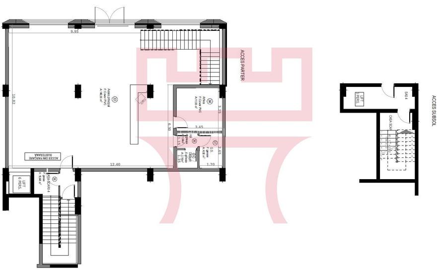
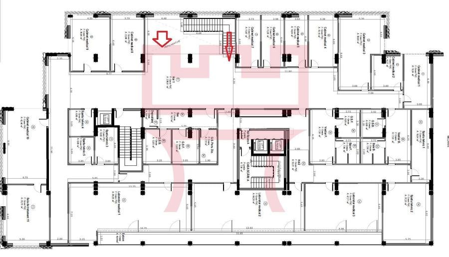
Spatiul masoara o suprafata totala de 1.200mp si este dispus pe 2 nivele parter si mezanin, compartimentat dupa cum se poate observa in schita atasata.
In momentul de fata acesta se alfa la stadiul de semifinisat, proprietarul fiind dispus sa-l aduca la nivelul de semifinisat, adica sistemul de incalzire si racire solicitat de chirias, sapa, tencuiala si glet. Exista si posibilitatea finisarii complete, dupa nevoile si exigentele cerute de viitorul chirias, aspect care ulterior se regaseste in pretul final de inchiriere.
In vecintatea imobilului se regasesc Iulius Mall, Baza Sportiva Gheorgheni, Parcu Mercur, magazinele Lidl si Kaufland, Iulius Business Centre, United Business Center Tower, Porsche Engineering, FSEGA si Facultatea Dimitrie Cantemir.
Pozele atasate sunt cu titlu informativ, doar schitele sunt ale spatiului.
Sediul central - Timișoara
Bulevardul Victor Babeș nr. 2, 300230, Timișoara, România
Tel: +40.374.40.44.98 / Fax: +40.256.401.179
Email: suport@imobiliare.ro
Luni - Vineri 08:00 - 20:00
Punct de lucru - București: Iride Business Park, Bld. Dimitrie
Pompeiu 9-9A, Clădirea B2B,
020335, Sector 2, București, România
CONTACT
Sediul central - Timișoara
Bulevardul Victor Babeș nr. 2, 300230, Timișoara, România
Tel: +40.374.40.44.98 / Fax: +40.256.401.179
Email: suport@imobiliare.ro
Luni - Vineri 08:00 - 20:00
Punct de lucru - București: Iride Business Park, Bld. Dimitrie
Pompeiu 9-9A, Clădirea B2B,
020335, Sector 2, București, România
Colegiul Tehnic de Industrie Alimentara Raluca Ripan
aprox.
1358 m
UBB Stiinte Economice si Gestiunea Afacerilor
aprox.
1236 m
Facultatea de Stiinte Economice si Gestiunea Afacerilor (en)
aprox.
1251 m
FSEGA
aprox.
1251 m
Universitatea Crestina Dimitrie Cantemir
aprox.
1384 m
Universitatea Crestina "Dimitrie Cantemir"
aprox.
1389 m
Casa Agronomului (en)
aprox.
1638 m
Profi
aprox.
610 m
puiul de gaesti
aprox.
662 m
Iulius Mall
aprox.
834 m
Auchan
aprox.
878 m
Profi
aprox.
1221 m
Profi
aprox.
1359 m
Complex Comercial Hermes
aprox.
1471 m
Carrefour
aprox.
1578 m
Lidl
aprox.
1662 m
Selgros
aprox.
1777 m
Profi Marasti
aprox.
1842 m
Profi
aprox.
1842 m
Profi
aprox.
1848 m
Profi
aprox.
1890 m
Carrefour
aprox.
1960 m
Parcare
aprox.
132 m
Parcare
aprox.
301 m
Parcare
aprox.
311 m
Parcare
aprox.
329 m
Parcare
aprox.
384 m
Parcare
aprox.
563 m
Parcare
aprox.
576 m
parcare
aprox.
603 m
Parcare
aprox.
605 m
parcare
aprox.
637 m
Parcare
aprox.
644 m
Parcare
aprox.
644 m
Parcare
aprox.
651 m
Parcare
aprox.
676 m
Parcare
aprox.
686 m
Teren sportiv
aprox.
249 m
Teren sportiv
aprox.
261 m
Teren sportiv
aprox.
328 m
Teren sportiv
aprox.
374 m
Teren sportiv
aprox.
387 m
Teren sportiv
aprox.
403 m
Teren sportiv
aprox.
431 m
Teren sportiv
aprox.
442 m
Teren sportiv
aprox.
442 m
Teren sportiv
aprox.
444 m
Teren sportiv
aprox.
481 m
Teren sportiv
aprox.
489 m
Teren sportiv
aprox.
494 m
Teren sportiv
aprox.
499 m
Teren sportiv
aprox.
499 m
Loc de joaca pentru copii
aprox.
352 m
Parcul Detunata
aprox.
421 m
Parc
aprox.
437 m
Parc
aprox.
451 m
Parc
aprox.
466 m
Parc
aprox.
646 m
Parc
aprox.
656 m
Parc
aprox.
687 m
Parc
aprox.
730 m
Parc
aprox.
737 m
Parc
aprox.
750 m
Parc
aprox.
800 m
Parc
aprox.
829 m
Parc
aprox.
835 m
Parc
aprox.
847 m
Piata Ira
aprox.
1967 m
Farmacia Catena
aprox.
617 m
Farmacia Mercur
aprox.
665 m
Farmacia Quercia
aprox.
999 m
Clinica Interservisan
aprox.
1194 m
Farmacia Mihon
aprox.
1228 m
Farmacia Remedium
aprox.
1286 m
Omnia
aprox.
1344 m
Remedia Beauty
aprox.
1457 m
Asmedica
aprox.
1495 m
Catena
aprox.
1505 m
Ducfarm
aprox.
1520 m
Farmacia Viva
aprox.
1584 m
Coral
aprox.
1832 m
Helpnet
aprox.
1855 m
Richter
aprox.
1858 m
Dispensar Gheorghieni
aprox.
676 m
Clinica Interservisan (en)
aprox.
1196 m
Novia Cosmetic Harmony Clinic
aprox.
1197 m
QClinic
aprox.
1703 m
SmartDental (en)
aprox.
1944 m
Med Center
aprox.
1967 m
Alimentatie publica
aprox.
420 m
Cantinna
aprox.
828 m
Subway
aprox.
849 m
Rebreanu
aprox.
1101 m
Pizzeria "La Luca"
aprox.
1109 m
Darius Pizza
aprox.
1242 m
Cantina si Restaurantul studentesc FSEGA
aprox.
1246 m
PocoLoco
aprox.
1429 m
Restaurantul Hermes
aprox.
1478 m
Pizza Party
aprox.
1560 m
Pizzeria Piccola
aprox.
1565 m
Pizza Party
aprox.
1592 m
Impact Restaurant & Events
aprox.
1647 m
Placintarie
aprox.
1709 m
Siret Bistro
aprox.
1716 m
Infinity Games
aprox.
639 m
Blue Galaxy
aprox.
1000 m
Terasa Miraj
aprox.
1191 m
Pisti Bar
aprox.
1279 m
Ares
aprox.
1593 m
Bar
aprox.
1847 m
Sc Rampera SRL
aprox.
1866 m
Starbucks
aprox.
880 m
Graffiti
aprox.
1177 m
Charlie Bar
aprox.
1422 m
Il Caffe dell' angolo
aprox.
1912 m
Ancuta
aprox.
1577 m
BRD
aprox.
638 m
Banca Transilvania
aprox.
847 m
BRD
aprox.
1221 m
Banca Transilvania
aprox.
1224 m
BRD
aprox.
1265 m
Bancpost
aprox.
1290 m
Banca Romaneasca
aprox.
1305 m
Banca Transilvania
aprox.
1334 m
CEC Bank - Sucursala Albac
aprox.
1480 m
Banca Transilvania
aprox.
1509 m
Toyota; Raiffeisen bank
aprox.
1560 m
Raiffeisen Bank
aprox.
1560 m
BRD
aprox.
1628 m
Raiffeisen Bank
aprox.
1716 m
Raiffeisen Bank
aprox.
1830 m
Dată fiind apropierea de centru, cartierul este deservit de mai multe linii de transport în comun, în special autobuze, printre se numără: liniile 3 și 33 care circulă pe Bulevardul Nicolae Titulescu, autobuzele 34 și 48 care merg pe Strada Unirii și ajung la Iulius Mall (alături de liniile 24 și 24B), dar și liniile 20, 32, 32B și M13 care circulă pe Strada Constantin Brâncuși, la limita cu Andrei Mureșanu.
Dacă vei decide să te muți în Gheorgheni, probabil că nu vei avea de ce să-ți faci griji în ceea ce privește oportunitățile de educație. Aici vei găsi atât grădinițe ("Lumea Copiilor", "Paradisul Prichindeilor"), cât și școli (Școala Primară și Grădinița "Kinderland", Școala Gimnazială "Constantin Brâncuși") și licee (Liceul Teoretic "Lucian Blaga", Colegiul Național Pedagogic "Gheorghe Lazăr"). Aici se află și o importantă de învățământ superior, anume Facultatea de Științe Economice și Gestiunea Afacerilor (amplasată în apropiere de Iulius Mall). Aproape de granița cu Mărăștiul, se află și una dintre cele două clădiri ale Facultății de Științe Politice, Administrative și ale Comunicării, parte a Universității "Babeș-Bolyai".
Și în materie de shoppping locuitorii acestui cartier sunt avantajați, aceștia având acces la unul dintre cel mai bine reputate malluri din capitala Transilvaniei "“ este vorba despre Iulius Mall Cluj-Napoca, amplasat în imediata apropiere a lacului Gheorgheni. Având o vechime de peste zece ani, complexul comercial a devenit, în acest răstimp, una dintre destinațiile predilecte de cumpărături pentru clujenii din cartier (și nu numai). Pe lângă magazinele de îmbrăcăminte, încălțăminte, electrocasnice etc., în Iulius Mall se găsește și un hipermarket Auchan, ce completează oferta magazinelor de mai mici dimensiuni din cartier. Deloc de neglijat sunt, desigur, și facilitățile de petrecere a timpului liber oferite de centrul comercial, prin componenta de restaurante și cafenele, dar și prin cinema și locurile de joacă pentru copii (inclusiv în parcul exterior).
În ceea ce privește locurile de parcare, locuitorii Gheorgheniului beneficiază de un avantaj important, anume parcarea supraetajată, cu o capacitate pentru circa 350 de mașini, deschisă de către autorități pe Aleea Băișoara. Cei interesați de închirierea unui astfel de spațiu (aici, dar nu numai) se pot adresa funcționarilor de la Primăria de cartier.
La capitolul recreere, acest cartier al capitalei Transilvaniei beneficiază de multiple oportunități. Una dintre acestea este dată, bineînțeles, de accesul la Lacul Gheorgheni, unde clujenii pot ieși la plimbare, iar pasionații pot pescui. Potrivit pentru un timp de relaxare în aer liber este și parcul Mercur "“ amplasat la sud, în continuarea zonei de blocuri din centru, acesta este unul dintre cele mai liniștite și bine întreținute parcuri din Cluj-Napoca. Gheorgheniul oferă beneficii și pasionaților de sport: pe lângă sălile de fitness ce pot fi găsite în cartier, aceștia au acces și la două baze sportive. Cea dintâi este Baza Sportivă Napoca , dotată cu terenuri de fotbal cu teren sintetic și nocturnă, dar și teren multifuncțional. Cea de-a doua este Baza Sportivă Gheorgheni, ce se întinde pe o suprafață de peste nouă hectare și dispune, printre altele, de terenuri de minifotbal, badminton, tenis, beach-volei și baschet.
La capitolul sănătate, locuitorii acestui cartier al Clujului beneficiază de accesul rapid către centru, unde se găsesc cele mai multe instituții medicale de stat (precum Spitalul Clinic Județean de Urgență Cluj-Napoca, Spitalul Universitar CF Cluj, Institutul Oncologic "Prof. Dr. Ion Chiricuță" etc.). De asemenea, la marginea vestică a Gheorgheniului, aproape de granița cu Centrul, se găsește Spitalul Militar de Urgență "Doctor Constantin Papilian". Paleta de servicii medicale de stat din zonă este completată, desigur, de o serie de cabinete medicale particulare cu diverse specializări. De menționat la acest capitol ar fi Clinica Gynia, de pe Strada General Traian Moșoiu, nr. 60, ce oferă servicii în domeniul obstetrică și ginecologie.
Dacă ești un pasionat al ieșirilor în oraș, te vei bucura să afli că zona Gheorgheni oferă destule oportunități locuitorilor săi. La acest capitol, de menționat ar fi restaurantele "International Ballroom", "Rebreanu 3", dar și "Uzina de Mici". Alte variante interesante pentru o ieșire în oraș cu prietenii sunt disponibile, desigur, în zona Centrală a orașului de pe Someș, populară atât printre localnici, cât și printre turiști.
Dacă ai nevoie să efectuezi o operațiune bancară, în zona Gheorgheni poate fi găsit un sediu Banca Transilvania, dar și două sucursale BCR "“ una pe Strada Nicolae Titulescu, nr. 163, iar cealaltă, pe Bulevardul Nicolae Titulescu, nr. 4 (aproape de granița cu zona Andrei Mureșanu). Consultă harta și află unde sunt localizate și alte bănci sau ATM-uri în zona Gheorgheni:
Înainte să pleci...
Ești sigur că ai văzut și aceste proprietăți?
13.000 € / lună
Cluj-Napoca, Zorilor
1.300 mp utili
Clădire de birouri
P+8E
12.400 € / lună
Cluj-Napoca, Central
800 mp utili
Clădire de birouri
4E
12.600 € / lună
Cluj-Napoca, Mănăștur
1.050 mp utili
Clădire de birouri
P+5E
Creează alertă
Salvează căutarea ca să primești pe email ultimele anunțuri publicate
Birouri cu 4+ camere de închiriat în zona Gheorgheni, Cluj-Napoca
Cere detalii prin email
*
*
*
*
Detaliile tale de contact vor fi partajate cu Capitoliu Imobiliare