1

Olimpia Business Center

Preț necomunicat

Mărăști, Cluj-Napoca

Sup. utilă / mp. utili:
4.800 mp
Tip prop.:
Clădire de birouri
Niv.:
8
An constr.:
2006 (Există)
  • • Comision 0%
  • • Locație exactă

Descriere spațiu comercial

Olimpia Business Center este amplasată în zona semi-centrală a municipiului Cluj-Napoca, pe Calea Dorobanților, în imediata proximitate a Pieței Mărăsti. Locația beneficiază de o accesibilitate foarte bună, cu conexiune directă din zona centrală realizată pe Calea Dorobanților, artera majoră cu sens unic și 3 benzi de circulație pe sens. Facilitățile de transport public includ numeroase linii de autobuz, cu stație amplasată în fața clădirii și în distanță pietonală (Piata Mărăsti). Olimpia Business Center pune la dispoziție spații de birouri moderne, cu un add-on factor de 8% și certificare verde BREEAM.
Citește mai mult Citește mai puțin
47 Parcări

Detalii spațiu comercial

ID anunț: X5F804079 Copiat! 1136071 Copiat!
Actualizat în: 29 Mai 2024
Nume proprietate: Olimpia Business Center
Regim înălțime: 1S+P+8E
Stadiu construcție: Există

Alte detalii:

Olimpia Business Center este amplasată în zona semi-centrală a municipiului Cluj-Napoca, pe Calea Dorobanților, în imediata proximitate a Pieței Mărăsti.

Locația beneficiază de o accesibilitate foarte bună, cu conexiune directă din zona centrală realizată pe Calea Dorobanților, artera majoră cu sens unic și 3 benzi de circulație pe sens.

Facilitățile de transport public includ numeroase linii de autobuz, cu stație amplasată în fața clădirii și în distanță pietonală (Piata Mărăsti).

Olimpia Business Center pune la dispoziție spații de birouri moderne, cu un add-on factor de 8% și certificare verde BREEAM.

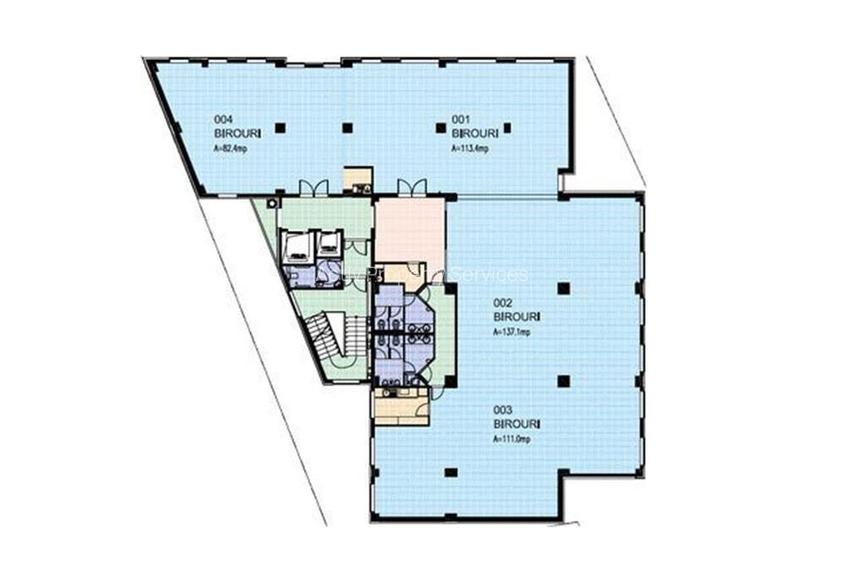
Subspații disponibile

Minim disponibil spre inchiriere

Mai multe detalii despre aceasta oferta in link-ul de mai jos: spatii-de-birouri.ro/inchiriere-vanzare/cluj-napoca-olimpia-business-center

Chirie / u.m. / lună:
Preț necomunicat
Suprafață disponibilă:
382
Disponibilitate spațiu:
imediat
Etaj:
Etaj 1 / 8
Posibilitate parcare:
Da

Maxim disponibil spre inchiriere

Mai multe detalii despre aceasta oferta in link-ul de mai jos: spatii-de-birouri.ro/inchiriere-vanzare/cluj-napoca-olimpia-business-center

Chirie / u.m. / lună:
Preț necomunicat
Suprafață disponibilă:
2100
Disponibilitate spațiu:
imediat
Posibilitate parcare:
Da

Puncte de interes

Mijloace transport
bus-station
Biblioteca Judeteana
Stații autobuz aprox. 23 m
bus-station
Statia Maresal Constantin Prezan, Liniile: 8,24,30,46B,47, 4,6,7,25,34, 48
Stații autobuz aprox. 216 m
tram-station
Libertatea Vest
Stații tramvai aprox. 1814 m
tram-station
Libertatea 2 TRV, Linia 100, 102, 26
Stații tramvai aprox. 1827 m
Școală
kindergarten
Grăd.Degețicastr.1
Gradinițe aprox. 347 m
school
Colegiul Tehnic de Transporturi Transilvania
Școli aprox. 369 m
kindergarten
Grădinita Așchiuță str. 2
Gradinițe aprox. 433 m
university
Facultatea de Psihologie si Stiinte ale Educatiei
Universități aprox. 440 m
Recreere
park
Parc
Parcuri aprox. 141 m
sports-ground
Teren sportiv
Terenuri sport aprox. 152 m
supermarket
Carrefour
Supermarket aprox. 160 m
public-square
Piata 1848
Piețe publice aprox. 1257 m

Proprietăți recomandate

Detalii de contact

Abonează-te la newsletter să fii primul care primește cele mai noi recomandări de proprietăți și sfaturi de la experți.

CONTACT

Creează alertă

Salvează căutarea ca să primești pe email ultimele anunțuri publicate

Birouri de închiriat în zona Mărăști, Cluj-Napoca