Spațiu de birouri central de 338 mp etaj 1, Bd. Mamaia - Constanța

3.378 € / lună
10.02 € / mp / lună

Central, Constanța

Sup. utilă / mp. utili:
337,74 mp
Tip prop.:
Clădire de birouri
Niv.:
6
An constr.:
1989
  • • Exclusivitate
  • • Locație exactă

Descriere spațiu comercial

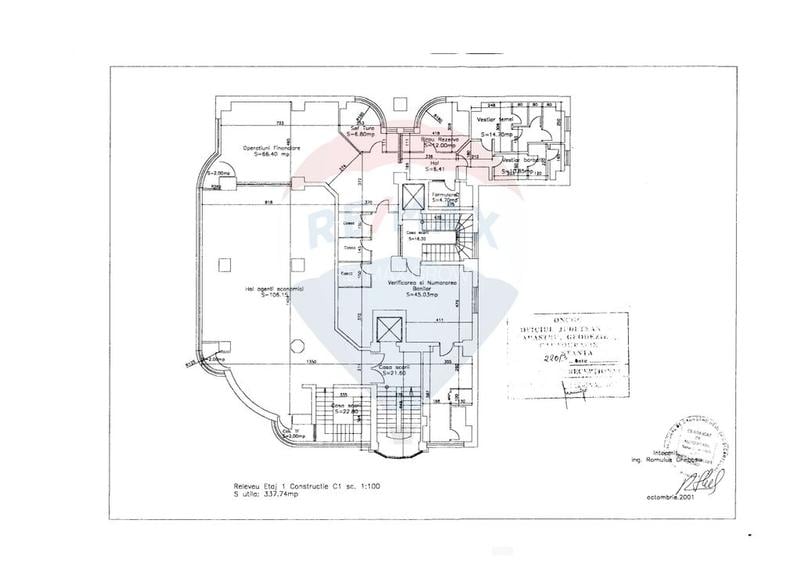
Spațiu de închiriat – 338 mp utili, ultracentral, Constanța Vă oferim spre închiriere un spațiu generos și modern, cu o suprafață utilă de 338 mp, situat în zona ultracentrală a orașului Constanța, pe strada Bogdan Vodă. Proprietatea este amplasată la etajul 1 al unei clădiri cu regim de înălțime D+P+6E, având acces facil direct din strada principală. • Caracteristici principale: Compartimentare funcțională: spațiul este organizat în mai multe încăperi, inclusiv birouri, grupuri sanitare, vestiare, holuri, oferind flexibilitate în configurarea mediului de lucru. Utilități complete: toate dotările necesare sunt disponibile, inclusiv un tablou electric separat, pentru a asigura un mediu de lucru eficient și sigur. Suprafață generoasă: cele 338 mp permit organizarea eficientă a zonelor de lucru, fiind ideal pentru activități diverse precum: - Consultanță financiară; - IT & software development; - Activități comerciale sau servicii profesionale; - Vânzări și suport clienți. • Facilități suplimentare: Pentru nevoi logistice, există posibilitatea închirierii demisolului, cu o suprafață utilă de 286 mp, perfect pentru arhivare, depozitare sau alte utilizări. Accesul la subsol este asigurat atât prin lift, cât și pe scări. • Avantaje: Localizare premium: poziționarea ultracentrală oferă acces facil și vizibilitate excelentă. Flexibilitate: spațiul poate fi personalizat în funcție de cerințele activității dumneavoastră. Confort și funcționalitate: proiectat pentru a satisface nevoile unui mediu profesional de lucru. Pentru detalii suplimentare sau pentru a programa o vizionare, vă rugăm să ne contactați. Acest spațiu reprezintă o oportunitate excelentă pentru companiile care doresc să se dezvolte într-un mediu profesional de top.
Citește mai mult Citește mai puțin
Zonă de litoral

Detalii spațiu comercial

ID anunț: XBS5140A5 Copiat! 250652274 Copiat!
Actualizat în: 05 Martie 2026
Suprafață utilă: 337.74 mp
Etaj: Etaj 1 / 6
Regim înălțime: P+6E

Utilități

Diverse
Sistem de alarmă
Comision
standard

Puncte de interes

Mijloace transport
bus-station
Statia Bulevardul Mamaia, Linia 40, 40C
Stații autobuz aprox. 282 m
bus-station
Spitalul Judetean [2-43
Stații autobuz aprox. 314 m
bus-station
Spitalul Militar [5-40
Stații autobuz aprox. 320 m
bus-station
Statia Spitalul Militar, Linia 40, 40C
Stații autobuz aprox. 328 m
Școală
school
Școala cu Clasele I-VIII "Nicolae Iorga"
Școli aprox. 105 m
school
Gimnaziul Colegiului National Mircea cel Batrân
Școli aprox. 146 m
kindergarten
Gradinita cu Program Prelungit Nr. 8
Gradinițe aprox. 217 m
university
Ovidius University, the Medicine Faculty (en)
Universități aprox. 578 m
Recreere
supermarket
Profi
Supermarket aprox. 340 m
park
Parcul Tomis
Parcuri aprox. 460 m
public-square
Piața Chiliei
Piețe publice aprox. 602 m
sports-ground
Teren sportiv
Terenuri sport aprox. 615 m

Proprietăți recomandate

Detalii de contact

RE/MAX GROW

Catalin Cheta Sales Associate

5.00(3 review-uri)

RE/MAX GROW
PRO

Abonează-te la newsletter să fii primul care primește cele mai noi recomandări de proprietăți și sfaturi de la experți.

CONTACT

Creează alertă

Salvează căutarea ca să primești pe email ultimele anunțuri publicate

Birouri cu 4+ camere de închiriat în zona Central, Constanța