Spațiu cu intrare stradală , 87 mp., terasa proprie, loc parcare, cladire 2026

1.200 € / lună
13.79 € / mp / lună

Km 5, Constanța

Sup. utilă / mp. utili:
87 mp
Tip prop.:
Spațiu stradal
An constr.:
2025 (Finalizată)
  • • Locație aproximativă

Descriere spațiu comercial

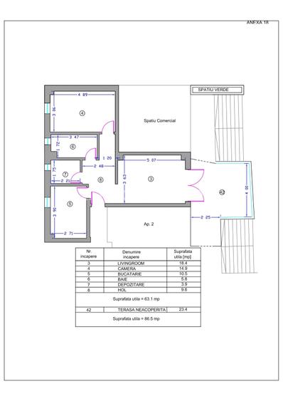
Agentia Zig-Zag va oferă spre închiriere spațiu modern amplasat la parter, într-o clădire nouă (2025), ideal pentru activități de birouri sau servicii profesionale. Spațiul beneficiază de intrare separată din stradă, prin intermediul unei terase generoase, oferind independență și acces facil pentru clienți. Imobilul beneficiaza de o suprafață totală de 87 mp. compartimentata astfel: - suprafață utilă - 63 mp. - 3 camere decomandate (10 mp., 11 mp. și 18 mp.), spațiu tehnic / arhivă / depozitare – aproximativ 4 mp.,grup sanitar ; - terasă generoasă – 21 mp., cu acces direct din stradă ; - LOC DE PARCARE propriu, subteran/suprateran. Caracteristici și avantaje : amplasament la parter , intrare separată, independentă de restul clădirii , terasă proprie , toate utilitatile necesare desfasurarii activitatii, refacturabile, spațiu luminos și eficient compartimentat , clădire nouă (2025), parcare proprie, acces facil . Spațiul oferă vizibilitate, acces direct și un cadru modern pentru desfășurarea activităților profesionale : cabinet, birou servicii, firmă consultanță / contabilitate, salon / activități profesionale etc. Proprietar persoana juridica (chirie nepurtatoare de TVA). Utilitati refacturabile. Pentru informații suplimentare și programarea unei vizionări, vă rugăm să ne contactați.
Citește mai mult Citește mai puțin
1 Parcare 1 Garaj Zonă de litoral

Detalii spațiu comercial

ID anunț: XECR140GK Copiat! 275416102 Copiat!
Actualizat în: 08 Aprilie 2026
Suprafață utilă: 87 mp
Etaj: Parter
Structură rezistență: data_properties.building_structure.BCA
Stadiu construcție: Finalizată

Utilități

Utilități
Curent Apă Canalizare
Comision
50%

Puncte de interes

Mijloace transport
bus-station
Statia Doraly Mall; Linia 5
Stații autobuz aprox. 244 m
bus-station
Statia Pandurului; Linia 5
Stații autobuz aprox. 266 m
bus-station
Pandurului [5-40]
Stații autobuz aprox. 270 m
bus-station
Doraly Mall [101C
Stații autobuz aprox. 336 m
Școală
school
Școala cu Clasele I-VIII Nr.16
Școli aprox. 193 m
kindergarten
Gradinita nr. 38 Constanta
Gradinițe aprox. 198 m
school
Liceul Teoretic "Lucian Blaga" Constanța
Școli aprox. 413 m
kindergarten
Gradinita nr. 19 Constanta
Gradinițe aprox. 587 m
Recreere
park
Parc Km 4-5
Parcuri aprox. 234 m
supermarket
Dorally Mall
Supermarket aprox. 354 m
sports-ground
Teren sportiv
Terenuri sport aprox. 552 m
restaurant
Complex Rovas
Restaurant aprox. 1274 m

Proprietăți similare

Birou, de 103.00 mp, în Delfinariu
1.100 € / lună
Constanța, Delfinariu
103 mp utili
Clădire de birouri
2016 (Finalizată)
Birou, de 120.00 mp, în Tomis Mall
1.300 € / lună
Constanța, Tomis Mall
120 mp utili
Clădire de birouri
1E
Birou, 212 mp în Central
1.272 € / lună
Constanța, Central
212 mp utili
Clădire de birouri
2E

Detalii de contact

ZIG ZAG INTERMED

Oana Barbieru

4.80(5 review-uri)

ZIG ZAG INTERMED
PRO

Abonează-te la newsletter să fii primul care primește cele mai noi recomandări de proprietăți și sfaturi de la experți.

CONTACT

Creează alertă

Salvează căutarea ca să primești pe email ultimele anunțuri publicate

Birouri cu 3 camere de închiriat în zona Km 5, Constanța