Tomis III , spatii IDEAL BIROURI, 2 camere, curte, constructie 2023

700 € / lună
9.72 € / mp / lună

Tomis III, Constanța

Sup. utilă / mp. utili:
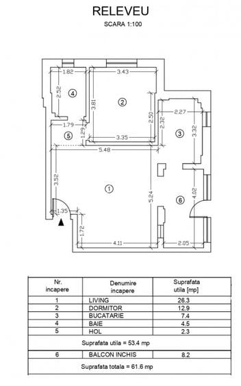
72 mp
An constr.:
2023 (Finalizată)
  • • Locație aproximativă
  • • Vizionare prin apel video

Descriere spațiu comercial

Agentia Zig-Zag va ofera sper inchiriere spatii de birouri pozitionate in zona DACIA-TOMIS III , amplasate in imobil constructie 2023 cu destinatie mixta (biroui/rezidential) ce reprezintă confort, design și inovație, po Imobilul cuprinde spatii de birouri cu comparitmentări generoase, camere înalte și suprafețe vitrate mari. Alegerea unui spatiu implică un grad sporit de confort și siguranță. Datorită amplasării oferă acces facil către: City Park Mall, Parcul Tăbăcăriei, Piața Tomis III, instituții bancare, mijloace de transport în comun, magazine, etc. Spatiile disponibile variaza intre 2 - 4 camere si suprafete intre 67 - 150 mp. Spatiul in cauza are o suprafata utila de 62 mp. , dispune de curte proprie de 15 mp. accesibila din spatiu , bucatarie/oficiu mobilata si 1 LOC DE PARCARE SUPRATERAN. Deasemeni , spatiile beneficiaza de contorizare proprie (apa, curent gaz ) pentru eficientizarea costurilor utilitatilor. Fiind finalizat in 2023, dispune de e dotări și finisaje noi si de calitate: tâmplărie PVC Salamander Bluevolution 82, geam tripan Low-E, culoare gri antracit, ușă metalică antiefracție, bine antifonată, tocuri îmbrăcate în lemn, centrală Vaillant 28KW, încălzire în pardoseală cu distribuitoare pentru fiecare cameră, baie și hol, distribuitoare pentru apă caldă și rece, separat pentru fiecare baie și bucătărie, parchet Egger – special pentru încălzire în pardoseală, gresie, faianță – Marazzi, uși de interior din MDF vopsit – Pinum / Porta Doors, băi hidroizolate cu bandă Mapei, dotate cu obiecte sanitare: bazin incastrat Grohe, cadă, set WC și obiecte sanitare Roca, rigolă de duș din aluminiu, instalația electrică cu doze modulare Gewiss, terase cu parapeți din alubond și sticlă securizată, casa scării dotată cu: marmură (plăci mari), balustradă din lemn și fier, sistem de iluminat, lift Schindler, spațiu de recreere în aer liber, dotat cu elemente de peisagistică. Proprietar persoana juridica (pret +TVA).
Citește mai mult Citește mai puțin
1 Parcare Zonă de litoral

Detalii spațiu comercial

ID anunț: XECR140FP Copiat! 275268887 Copiat!
Actualizat în: 13 Martie 2026
Suprafață utilă: 72 mp
Etaj: Parter
Structură rezistență: data_properties.building_structure.BCA
Stadiu construcție: Finalizată

Utilități

Utilități
Curent Apă Canalizare

Puncte de interes

Mijloace transport
bus-station
Statia Dacia; Linia 42
Stații autobuz aprox. 106 m
bus-station
Dacia [100
Stații autobuz aprox. 140 m
bus-station
Dacia [100
Stații autobuz aprox. 141 m
bus-station
Statia Tomis 3; Linia 42
Stații autobuz aprox. 302 m
Școală
kindergarten
Gradinita Guliver
Gradinițe aprox. 162 m
school
Școala cu Clasele I-VIII "B.P. Hașdeu" Nr. 12
Școli aprox. 168 m
kindergarten
Gradinita Nr.58
Gradinițe aprox. 245 m
university
Ovidius University, the Medicine Faculty (en)
Universități aprox. 1194 m
Recreere
park
Dacia Fountain (en)
Parcuri aprox. 95 m
supermarket
Carrefour Market
Supermarket aprox. 147 m
sports-ground
Stadionul de Rugby Farul Constanta
Terenuri sport aprox. 524 m
public-square
Piața Chiliei
Piețe publice aprox. 1173 m

Proprietăți similare

Birou, de 75.00 mp, în Tomis Nord
750 € / lună
Constanța, Tomis Nord
75 mp utili
Clădire de birouri
2022 (Finalizată)
Birou, 100 mp în Ultracentral
750 € / lună
Constanța, Ultracentral
100 mp utili
Clădire de birouri
3E
Birou, 80 mp în Central
640 € / lună
Constanța, Central
80 mp utili
Casă/Vilă
2E

Detalii de contact

ZIG ZAG INTERMED

Oana Barbieru

4.80(5 review-uri)

ZIG ZAG INTERMED
PRO

Abonează-te la newsletter să fii primul care primește cele mai noi recomandări de proprietăți și sfaturi de la experți.

CONTACT

Creează alertă

Salvează căutarea ca să primești pe email ultimele anunțuri publicate

Birouri cu 2 camere de închiriat în zona Tomis III, Constanța