Birou, Spatiu | 210 mp

1.738 € / lună
8.28 € / mp / lună

Central, Drobeta-Turnu Severin

Sup. utilă / mp. utili:
210 mp
Tip prop.:
Casă/Vilă
Niv.:
2
An constr.:
2002 (Există)
  • • Comision 0%
  • • Locație aproximativă

Descriere spațiu comercial

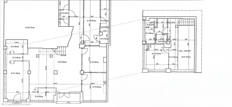
Capital Imobiliare vă propune spre închiriere, cu comision 0% pentru chiriaș, un spațiu comercial ideal pentru birouri sau activități comerciale, cu o suprafata utila de 210 mp, situat în zona Aluniș – Drobeta Turnu-Severin, pe B-dul Tudor Vladimirescu, arteră principală a orașului, cu deschidere directă la Bulevardul Tudor Vladimirescu dar și catre strada Vasile Alecsandri. Spațiul a funcționat anterior ca sediu de bancă, fiind amenajat la standarde ridicate de siguranță și funcționalitate. Caracteristici principale: Suprafață utilă totala disponibilă: 210 mp din care 37 mp la mezanin compartimentat in: birou, grup sanitar, spațiu chicinetă și cameră server. Parter open-space generos cu 2 birouri amenajate. Vizibilitate foarte bună pe două străzi intens circulate Dotări și facilități: Centrală proprie pe gaz Sistem de aer condiționat Racordat la toate utilitățile (apă, canalizare, gaz, electricitate) Spațiu configurat pentru activitate profesională Spatiul se preteaza pentru diverse activitati; Instituții financiare, Clinica medicala, Birouri, Sediu firmă, Companii de servicii, Showroom-uri. 💰 Preț de închiriere: 7,9 € / mp (negociabil în funcție de perioada contractuală) Suprafata construita: 252 mp Nr incaperi: 6 Pret negociabil Utilitati - Sistem incalzire (Centrala proprie); Utilitati generale (Curent,Apa,Canalizare,Gaz) Finisaje - Izolatii termice (Exterior); Podele (Mocheta); Stare interior (Renovat); Iluminat (Spoturi,Aplice,Lumina naturala); Ferestre cu geam termopan (PVC) Dotari - Contorizare (Apometre,Contor gaz) pret vanzare: 1738 moneda vanzare: EUR pret inchiriere: 1738 moneda inchiriere: EUR moneda inchiriere unitar: EUR
Citește mai mult Citește mai puțin
Centrală proprie Renovat

Detalii spațiu comercial

ID anunț: XEUS1403M Copiat! 275195085 Copiat!
Actualizat în: 21 Martie 2026
Suprafață utilă: 210 mp
Etaj: Parter / 2
Regim înălțime: P+2E
Structură rezistență: Cărămidă
Stadiu construcție: Există

Utilități

Contorizare
Apometre Contor gaz
Utilități
Curent Apă Canalizare Gaze
Podele
Mochetă
Izolații termice
Exterior
Ferestre cu geam termopan
PVC

Subspații disponibile

Chirie / u.m. / lună:
8.28 EUR/mp (total: 1738 EUR/lună), Comision 0% cumpărător
Înălțime spațiu (m):
2
Suprafață disponibilă:
210
Disponibilitate spațiu:
închiriat
Etaj:
Parter / 2

Puncte de interes

Mijloace transport
bus-station
Drobeta Turnu Severin
Stații autobuz aprox. 1552 m
Școală
kindergarten
Gradinita nr. 3
Gradinițe aprox. 199 m
university
Colegiul Universitar
Universități aprox. 352 m
school
Liceul de Arta I. St. Paulian
Școli aprox. 355 m
kindergarten
Gradinita Nr. 22
Gradinițe aprox. 740 m
Recreere
park
Parc
Parcuri aprox. 77 m
restaurant
Cantina sociala - Sala de pomeniri
Restaurant aprox. 90 m
sports-ground
Teren sportiv
Terenuri sport aprox. 386 m
supermarket
Decebal Shopping Center
Supermarket aprox. 596 m

Detalii de contact

Capital Imobiliare

Secretariat dedicat

5.00(4 review-uri)

Capital Imobiliare
PRO

Abonează-te la newsletter să fii primul care primește cele mai noi recomandări de proprietăți și sfaturi de la experți.

CONTACT

Creează alertă

Salvează căutarea ca să primești pe email ultimele anunțuri publicate

Birouri de închiriat în zona Central, Drobeta-Turnu Severin