Clădire de birouri de închiriat în Dumbrăvița

3.501 € + TVA / lună
7.45 € + TVA / mp / lună

Dumbrăvița, Județul Timiș

Sup. utilă / mp. utili:
470 mp
Tip prop.:
Clădire de birouri
Niv.:
1
An constr.:
2007 (Există)
  • • Exclusivitate
  • • Locație exactă
  • • Vizionare prin apel video

Descriere spațiu comercial

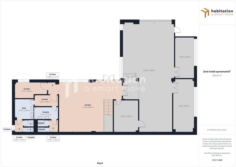
Clădirea de birouri, cu un regim de înălțime P+1, oferă un mediu de lucru eficient și confortabil, ideal pentru companii în căutarea unui sediu propriu. Dispune de o curte proprie, asigurând intimitatea și siguranța angajaților. Printre facilități se numără 15 locuri de parcare, suficient spațiu de depozitare și multiple spații pentru birouri ce pot fi personalizate în funcție de necesitățile viitorului chiriaș. În plus, sunt disponibile 4 grupuri sanitare și vestiar, pentru confortul întregii echipe. Acest imobil este soluția perfectă pentru o afacere în expansiune care necesită un spațiu versatil, bine poziționat și cu acces facil către centrul orașului sau către autostrada.
Citește mai mult Citește mai puțin
15 Parcări

Detalii spațiu comercial

ID anunț: XCP81401I Copiat! 255743181 Copiat!
Actualizat în: 21 Ianuarie 2026
Suprafață utilă: 470 mp
Clasă birouri: B
Regim înălțime: P+1E
Stadiu construcție: Există

Utilități

Utilități
Curent Apă Canalizare
Comision
standard

Disponibilitate proprietate:

Imediat

Subspații disponibile

Chirie / u.m. / lună:
7.45 EUR/mp (total: 3501.5 EUR/lună) + TVA, Comision: standard
Suprafață disponibilă:
470
Disponibilitate spațiu:
imediat

Puncte de interes

Mijloace transport
trolleybus-station
Statie Ion Ionescu de la Brad T14
Stații troleibuz aprox. 957 m
bus-station
Sf. Apostoli Petru si Pavel
Stații autobuz aprox. 1264 m
bus-station
Statie Apostoli Petru si Pavel E2
Stații autobuz aprox. 1327 m
bus-station
Statie Apostoli Petru si Pavel T14, A40
Stații autobuz aprox. 1354 m
Școală
kindergarten
Gradinita Winnie The Pooh
Gradinițe aprox. 462 m
kindergarten
Gradinita Bambi
Gradinițe aprox. 486 m
school
Scoala Generala Nr. 7 "Sfanta Maria"
Școli aprox. 993 m
university
Universitatea de Stiinte Agricole si Medicina Veterinara a Banatului
Universități aprox. 1926 m
Recreere
supermarket
Kaufland
Supermarket aprox. 302 m
sports-ground
Teren Tenis
Terenuri sport aprox. 484 m
park
Parc
Parcuri aprox. 551 m
hypermarket
Decathlon
Hipermarket aprox. 1700 m

Proprietăți recomandate

Detalii de contact

Habitation

Dan Pantel Managing Partner

Habitation
PRO

Abonează-te la newsletter să fii primul care primește cele mai noi recomandări de proprietăți și sfaturi de la experți.

Feedback apel

CONTACT

Creează alertă

Salvează căutarea ca să primești pe email ultimele anunțuri publicate

Birouri cu 4+ camere de închiriat în Dumbrăvița, Județul Timiș