1

Central, spatiu birouri 135mp, amenajat

1.215 € / lună
9 € / mp / lună

Central, Iași

Sup. utilă / mp. utili:
135 mp
Tip prop.:
Clădire de birouri
An constr.:
2000 (Există)
  • • Locație exactă

Descriere spațiu comercial

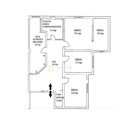
- din 2001 Daca vrei sa iti desfasori activitatea in cea mai vibranta zona a Iasului, aceasta proprietate este pentru tine si afacerea ta! Ideal pentru domeniul medical / beauty / birouri. Agentia Imobiliara Casa Alba iti prezinta spre inchiriere un spatiu de birouri modern, situat chiar in inima orasului, cu o suprafata generoasa si compartimentare functionala. Spatiul are suprafata totala de 135mp, pregatit pentru inchiriere! Acest spatiu reprezinta combinatia perfecta intre confort, eleganta si functionalitate, ideal pentru companiile care doresc sa ofere angajatilor un mediu de lucru placut in centrul orasului. Pretul solicitat este de 9 euro / mp negociabil! Pentru informatii suplimentare, va rugam sa contactati consultantul imobiliar Ciprian Roman, la numarul de telefon sau accesati , ID PROPRIETATE 2496981.
Citește mai mult Citește mai puțin

Detalii spațiu comercial

ID anunț: X0BG1406D Copiat! 259820503 Copiat!
Actualizat în: 23 Decembrie 2025
Suprafață utilă: 135 mp
Etaj: Etaj 1
Regim înălțime: P
Stadiu construcție: Există

Utilități

Utilități
Curent Apă Canalizare
Comision
standard

Disponibilitate proprietate:

Imediat

Subspații disponibile

Chirie / u.m. / lună:
9 EUR/mp (total: 1215 EUR/lună), Comision: standard
Suprafață disponibilă:
135
Disponibilitate spațiu:
imediat
Etaj:
Etaj 1

Puncte de interes

Mijloace transport
tram-station
Statia "Podu Rosu", linia 1,2,5,13
Stații tramvai aprox. 209 m
bus-station
Statia "Podi Rosu", linia 29
Stații autobuz aprox. 215 m
tram-station
Statia "Sala Polivalenta", linia 1,13
Stații tramvai aprox. 363 m
train-station
Gara Internațională Nicolina
Stații tren aprox. 1115 m
Școală
university
Institutul politehnic de cercetare Iasi
Universități aprox. 121 m
kindergarten
Gradinita nr. 1
Gradinițe aprox. 125 m
university
Facultatea de Electrotehnica Iasi
Universități aprox. 177 m
school
Scoala generala nr.11 Otilia Cazimir
Școli aprox. 258 m
Recreere
park
Parc
Parcuri aprox. 166 m
supermarket
Minimarket Cidma
Supermarket aprox. 208 m
public-square
Podul Ros
Piețe publice aprox. 293 m
mall
Shopping Center on Shopping Street(Palas) (en)
Mall aprox. 500 m

Proprietăți recomandate

Detalii de contact

Casa Alba

Ciprian Roman Senior consultant vanzari / inchirieri

5.00(4 review-uri)

Casa Alba
PRO

Abonează-te la newsletter să fii primul care primește cele mai noi recomandări de proprietăți și sfaturi de la experți.

CONTACT

Creează alertă

Salvează căutarea ca să primești pe email ultimele anunțuri publicate

Birouri cu 4+ camere de închiriat în zona Central, Iași