Inchiriere spatiu birouri, 5 camere, zona Vest, Ploiesti

1.199 € / lună
4.61 € / mp / lună

Mărășești, Ploiești

Sup. utilă / mp. utili:
260 mp
Tip prop.:
Clădire de birouri
Niv.:
3
An constr.:
2024
  • • Locație aproximativă

Descriere spațiu comercial

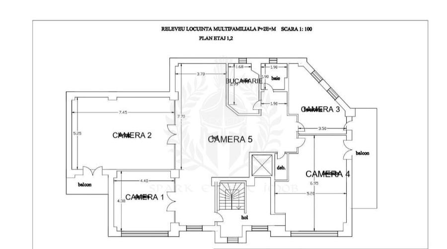
Spațiu de birouri disponibil spre închiriere – 1.200 €/lună Spațiul ocupă în întregime etajul 1 al unui imobil privat cu destinație exclusivă de birouri, fiind ideal pentru activități precum IT, contabilitate, servicii sau alte domenii administrative. Imobilul este situat în zona Vest, în spatele stației OMV Ploiești, pe Bulevardul Mărășești, cu acces rapid către principalele puncte de interes. Se află la doar 3 minute de stațiile de autobuz și tramvai, în apropierea magazinelor Profi, Lidl, Carrefour și West Mall. De asemenea, locația este la 5 minute de Gara de Vest, aproximativ 500 m de centura Ploieștiului și Parcul Municipal Vest, precum și la 10 minute de Parcul Industrial Vest. Spațiul este bine compartimentat și dispune de 5 camere generoase (20 mp, 20 mp, 40 mp, 40 mp și 70 mp), bucătărie, grup sanitar și balcoane. Este dotat cu centrală termică proprie Buderus, utilități contorizate individual, aer condiționat și interfon. În plus, beneficiază de locuri de parcare libere și generoase. Proprietatea se închiriază de către persoană fizică, fără TVA. Pentru detalii suplimentare sau programarea unei vizionări, vă stau la dispoziție.
Citește mai mult Citește mai puțin

Detalii spațiu comercial

ID anunț: XEQM1404C Copiat! 275181354 Copiat!
Actualizat în: 17 Aprilie 2026
Nume proprietate: Inchiriere spatiu birouri, 5 camere, zona Vest, Ploiesti
Regim înălțime: P+3E

Utilități

Comision
50%

Puncte de interes

Mijloace transport
tram-station
Lamaita
Stații tramvai aprox. 322 m
bus-station
Ploiesti Vest
Stații autobuz aprox. 589 m
bus-station
(type name here)
Stații autobuz aprox. 1072 m
tram-station
Ofelia
Stații tramvai aprox. 1535 m
Școală
school
Scoala 29
Școli aprox. 312 m
kindergarten
Gradinita
Gradinițe aprox. 335 m
kindergarten
Gradinita
Gradinițe aprox. 464 m
school
Scoala Nr. 20
Școli aprox. 634 m
Recreere
supermarket
West Mall
Supermarket aprox. 214 m
park
Parc
Parcuri aprox. 317 m
restaurant
Baraolt
Restaurant aprox. 581 m
sports-ground
Teren sportiv
Terenuri sport aprox. 1273 m

Proprietăți similare

Birou, de 121 mp, în Central
1.089 € / lună
Ploiești, Central
121 mp utili
Clădire de birouri
3E
Birou, de 164.16 mp, în Ultracentral
1.201 € / lună
Ploiești, Ultracentral
164,16 mp utili
1928
Birou, 140 mp în Gheorghe Doja
1.199 € / lună
Ploiești, Gheorghe Doja
140 mp utili
Clădire de birouri
1940

Detalii de contact

Abonează-te la newsletter să fii primul care primește cele mai noi recomandări de proprietăți și sfaturi de la experți.

CONTACT

Creează alertă

Salvează căutarea ca să primești pe email ultimele anunțuri publicate

Birouri de închiriat în zona Mărășești, Ploiești