5

EXPO BP. , Aviator Popisteanu 54A - comision 0%, reprezentam proprietarul!

Preț necomunicat

1 Mai, București

Sup. utilă / mp. utili:
38.000 mp
Tip prop.:
Clădire de birouri
Niv.:
8
An constr.:
2019 (Există)
  • • Comision 0%
  • • Locație Verificată
  • • Locație exactă

Descriere spațiu comercial

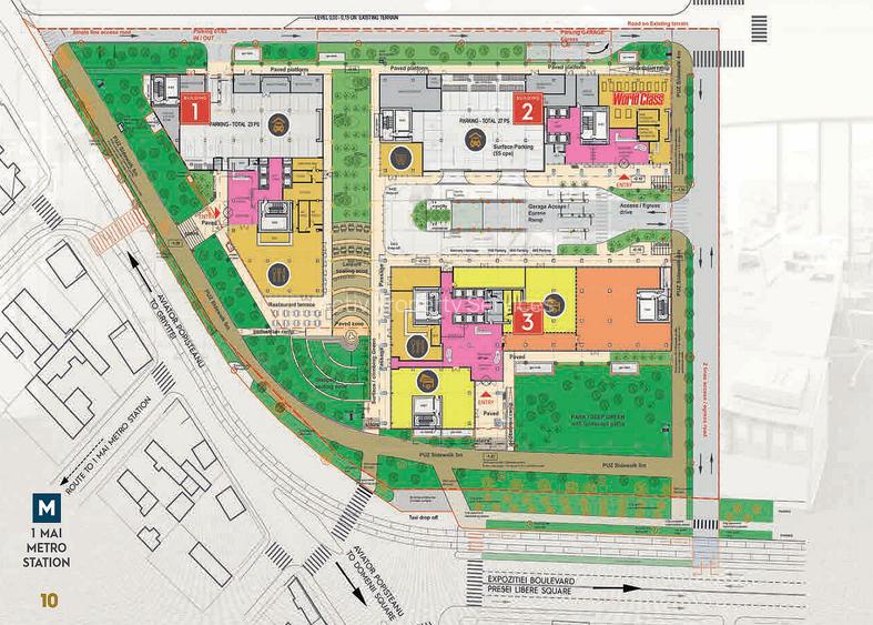
EXPO Business Park este amplasat in nordul Bucurestiului, zona Expozitiei, la intersectia Bulevardului Expozitiei cu Strada Aviator Popisteanu, la 450 de metri de statia de metrou 1 Mai. Amplasamentul se gaseste la 600 de metri de centrul expozitional Romexpo si 1,5 km de Piata Presei Libere. Zona Expozitiei se afla intr-un proces accelerat de redezvoltare care include proiecte majore de birouri, unitati rezidentiale si construirea noii linii de metrou M6 care va asigura conexiune directa cu Aeroportul International Henri Coanda. Amplasamentul asigura un acces rutier facil la bulevarde majore: Bulevardul Expozitiei, Bulevardul 1 Mai si Calea Grivitei, respectiv Soseaua Kiseleff, Bulevardul Marasti, Soseaua Bucuresti-Ploiesti etc. Parcul este situat la 5 minute de statia de metrou 1 Mai, respectiv tot la 5 minute de viitoarea statie de metrou Expozitiei (magistrala M6), beneficiind de statii de autobuz si tramvai amplasate atat in fata cladirilor, dar si la 5 minute de mers pe jos (1 Mai cu Calea Grivitei). EXPO Business Park este un parc nou de afaceri de clasa A, cu certificare BREEAM, deja livrat in partea a doua a anului 2019, incluzand 3 cladiri cu o suprafata inchiriabila totala de 38.000 m2. Cladirile sunt desfasurate pe 2S+P+5/8 si ofera o suprafata inchiriabila pe etaj de pana la 1.750 m2. Principala cladire a parcului este noul sediu al companiei ING Bank.
Citește mai mult Citește mai puțin

Detalii spațiu comercial

ID anunț: X5F8040CT Copiat! 1135924 Copiat!
Actualizat în: 02 Februarie 2026
Nume proprietate: EXPO Business Park
Regim înălțime: 2S+P+8E
Stadiu construcție: Există

Utilități

Comision
0%

Vecinătăți:

1 Mai
Domenii
Chibrit

Alte detalii:

EXPO Business Park este amplasat in nordul Bucurestiului, zona Expozitiei, la intersectia Bulevardului Expozitiei cu Strada Aviator Popisteanu, la 450 de metri de statia de metrou 1 Mai.

Amplasamentul se gaseste la 600 de metri de centrul expozitional Romexpo si 1,5 km de Piata Presei Libere.

Zona Expozitiei se afla intr-un proces accelerat de redezvoltare care include proiecte majore de birouri, unitati rezidentiale si construirea noii linii de metrou M6 care va asigura conexiune directa cu Aeroportul International Henri Coanda.

Amplasamentul asigura un acces rutier facil la bulevarde majore: Bulevardul Expozitiei, Bulevardul 1 Mai si Calea Grivitei, respectiv Soseaua Kiseleff, Bulevardul Marasti, Soseaua Bucuresti-Ploiesti etc.

Parcul este situat la 5 minute de statia de metrou 1 Mai, respectiv tot la 5 minute de viitoarea statie de metrou Expozitiei (magistrala M6), beneficiind de statii de autobuz si tramvai amplasate atat in fata cladirilor, dar si la 5 minute de mers pe jos (1 Mai cu Calea Grivitei).

EXPO Business Park este un parc nou de afaceri de clasa A, cu certificare BREEAM, deja livrat in partea a doua a anului 2019, incluzand 3 cladiri cu o suprafata inchiriabila totala de 38.000 m2. Cladirile sunt desfasurate pe 2S+P+5/8 si ofera o suprafata inchiriabila pe etaj de pana la 1.750 m2.

Principala cladire a parcului este noul sediu al companiei ING Bank.

Subspații disponibile

Spatiu de inchiriat - et. 5

Mai multe detalii despre aceasta oferta in link-ul de mai jos: spatii-de-birouri.ro/inchiriere-vanzare/bucuresti-expo-business-park Pe platforma SPATII-DE-BIROURI.RO gasiti peste 400 de cladiri de birouri din Bucuresti, cu toate informatiile actualizate si comision 0% (reprezentam proprietarii).

Chirie / u.m. / lună:
Preț necomunicat
Suprafață disponibilă:
2314
Disponibilitate spațiu:
imediat
Etaj:
Etaj 5 / 8
Posibilitate parcare:
Da

Spatiu de inchiriat - et. 1

Mai multe detalii despre aceasta oferta in link-ul de mai jos: spatii-de-birouri.ro/inchiriere-vanzare/bucuresti-expo-business-park Pe platforma SPATII-DE-BIROURI.RO gasiti peste 400 de cladiri de birouri din Bucuresti, cu toate informatiile actualizate si comision 0% (reprezentam proprietarii).

Chirie / u.m. / lună:
Preț necomunicat
Suprafață disponibilă:
339
Disponibilitate spațiu:
imediat
Etaj:
Etaj 1 / 8
Posibilitate parcare:
Da

Puncte de interes

Mijloace transport
bus-station
Statie Bd. Expozitiei / Grivita 42, 105
Stații autobuz aprox. 25 m
tram-station
Grivita
Stații tramvai aprox. 25 m
metro-station
Metrorex. Stația 1 Mai (M4)(2000)
Stații metrou aprox. 459 m
train-station
Halta CFR Bucuresti Basarab h
Stații tren aprox. 1327 m
Școală
school
Gradinita Iboo
Școli aprox. 272 m
school
Clubul Sportiv Scolar nr.1 Pajura
Școli aprox. 273 m
university
Facultatea de Biotehnologii
Universități aprox. 699 m
kindergarten
Gradinita nr. 43
Gradinițe aprox. 801 m
Recreere
park
Parc
Parcuri aprox. 233 m
supermarket
Mega Image
Supermarket aprox. 257 m
sports-ground
Teren sportiv
Terenuri sport aprox. 414 m
public-square
Piata Montreal
Piețe publice aprox. 1238 m

Proprietăți recomandate

Detalii de contact

Activ Property Services

Departament Birouri

5.00(3 review-uri)

Activ Property Services
PRO

Abonează-te la newsletter să fii primul care primește cele mai noi recomandări de proprietăți și sfaturi de la experți.

CONTACT

Creează alertă

Salvează căutarea ca să primești pe email ultimele anunțuri publicate

Birouri de închiriat în zona 1 Mai, Sector 1