Top Home Advisors vă propune spre închiriere un spațiu de birouri situat la etajul 2 în imobilul S+P+4E, situat în Szona Ion Mihalache- Ciuperca- Expozitiei
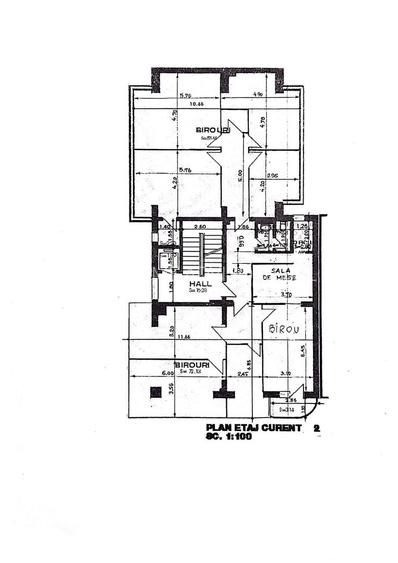
Pot fi inchiriati intre 114-242mp, compartimentati cu 8 birouri, kitchineta, 2 bai si sala de luat masa, precum si 30mp de garaj care poate fi folosit si ca loc de depozitare. Poate fi inchiriat tot etajul in folosinta exclusiva sau la 2 chiriasi, respectiv 114mp si 128mp util brut, zonele de kitchineta, bai si luat masa fiind folosinta comuna.
Clădirea se află într-un cartier liniștit, cu acces facil la mijloacele de transport în comun, dar și la DN1 București-Ploiești și la Aeroportul Otopeni. Imobilul dispune de finisaje cu materiale moderne (placare cu granit, suprafețe vitrate), centrală termică proprie, aparate de aer condiționat, sistem de control acces, precum și cu circuite de senzori de fum și gaz în spațiile tehnice și garaje.
Chiria propusă pentru acest spațiu este de 10-12 Euro/mp pe luna, in functie de suprafata inchiriata (fara TVA, imobilul fiind proprietate persoana fizica) pentru spatiul de birouri si 200 Euro/luna pentru garaj.
Administrarea imobilului este asigurată de către o societate specializata cu care se va incheia contract separat. Curentul electric și gazele se achită separat, în funcție de consum și cotă parte indiviză.
Avans: 2 chirii (chirie prima lună + o luna garanție).
Pentru mai multe detalii si pentru a stabili o vizionare va asteptam sa ne contactati telefonic.
Vizionarea se face doar în baza semnarii unui acord de vizionare conform codului civil, art 2.096-2.102. Va multumim pentru intelegere.
Sediul central - Timișoara
Bulevardul Victor Babeș nr. 2, 300230, Timișoara, România
Tel: +40.374.40.44.98 / Fax: +40.256.401.179
Email: suport@imobiliare.ro
Luni - Vineri 08:00 - 20:00
Punct de lucru - București: Iride Business Park, Bld. Dimitrie
Pompeiu 9-9A, Clădirea B2B,
020335, Sector 2, București, România
CONTACT
Sediul central - Timișoara
Bulevardul Victor Babeș nr. 2, 300230, Timișoara, România
Tel: +40.374.40.44.98 / Fax: +40.256.401.179
Email: suport@imobiliare.ro
Luni - Vineri 08:00 - 20:00
Punct de lucru - București: Iride Business Park, Bld. Dimitrie
Pompeiu 9-9A, Clădirea B2B,
020335, Sector 2, București, România
Scoala Nationala de Studii Politice si Administrative (SNSPA)
aprox.
675 m
Liceul Greco-Catolic Timotei Cipariu
aprox.
799 m
Scoala Nr. 180
aprox.
802 m
Liceul Greco-Catolic "Timotei Cipariu"
aprox.
802 m
Gradinita nr. 43
aprox.
408 m
Gradinita de copii nr.281 Steaua
aprox.
433 m
Gradinita nr. 281
aprox.
459 m
Gradinita Karin's Kids Academy
aprox.
548 m
Gradinita Nr. 43
aprox.
572 m
Gradinita Casuta Piticilor
aprox.
891 m
Gradinita nr. 222
aprox.
1091 m
Gradinita 97
aprox.
1216 m
Gradinita Happy Tweety
aprox.
1362 m
Gradinita nr 40
aprox.
1379 m
Gradinita Ciupercuta
aprox.
1426 m
Gradinita cu program prelungit Winnie
aprox.
1635 m
Gradinita Winnie
aprox.
1635 m
Gradinita 97
aprox.
1771 m
Facultatea de Biotehnologii
aprox.
533 m
Facultatea de Viticultura
aprox.
625 m
Universitatea de Stiinte Agronomice si Medicina veterinara
aprox.
855 m
Campus Universitatea de Stiinte Agronomice si Medicina Veterinara Bucuresti
aprox.
870 m
Universitatea Romano-Americana
aprox.
936 m
ICPA Bucuresti
aprox.
1210 m
Universitatea De Stiinte Agronomice Si Medical Veterinare
aprox.
1217 m
Institutul de Cercetări Metalurgice
aprox.
1826 m
Magazin Alimentar
aprox.
184 m
Mega Image
aprox.
537 m
Mega Image
aprox.
630 m
Mega Image
aprox.
715 m
Annabella
aprox.
724 m
Rom Sep
aprox.
740 m
Branza Sibiu
aprox.
921 m
Mega Image Domenii Non-Stop
aprox.
993 m
Mega Image Giulesti-Prunaru
aprox.
1196 m
Carrefour market
aprox.
1253 m
Mega Image
aprox.
1449 m
Mega Image Crangasi
aprox.
1459 m
Pronto Expres
aprox.
1510 m
Profi City Pajura
aprox.
1530 m
Express
aprox.
1578 m
Parcare
aprox.
403 m
Parcare
aprox.
496 m
Parcare
aprox.
562 m
Parcare
aprox.
596 m
Parcare
aprox.
635 m
Parcare
aprox.
662 m
Parcare privata
aprox.
853 m
Parcare privata
aprox.
860 m
Parcare privata
aprox.
867 m
Parcare
aprox.
888 m
Parcare privata
aprox.
892 m
Parcare
aprox.
976 m
Parcare
aprox.
1088 m
Parcare
aprox.
1135 m
Parcare
aprox.
1180 m
Parc leagane (en)
aprox.
151 m
Parc
aprox.
174 m
Parc
aprox.
248 m
parculet de joaca pentru copii
aprox.
262 m
Parc
aprox.
268 m
Parc
aprox.
275 m
Parc
aprox.
379 m
Serele de FLORI - catedra de Floricultura - Facultatea Horticultura
aprox.
490 m
Parc
aprox.
493 m
Clubul Copiilor nr. 1, Ciresarii
aprox.
539 m
Rozariu
aprox.
767 m
Codrii Romexpoului (en)
aprox.
794 m
Rozariu
aprox.
826 m
Loc de joaca
aprox.
874 m
Parc Dendrologic
aprox.
900 m
Teren sportiv
aprox.
316 m
Teren sportiv
aprox.
338 m
Teren sportiv
aprox.
669 m
Teren sportiv
aprox.
685 m
Teren sportiv
aprox.
717 m
Teren sportiv
aprox.
729 m
Teren sportiv
aprox.
802 m
Teren sportiv
aprox.
812 m
Teren sportiv
aprox.
825 m
Teren sportiv
aprox.
1072 m
Teren fotbal acoperit
aprox.
1133 m
Teren sportiv
aprox.
1141 m
Teren sportiv
aprox.
1296 m
Teren sportiv
aprox.
1378 m
Teren sportiv
aprox.
1385 m
Piata Montreal
aprox.
1390 m
Clinica
aprox.
347 m
Bucharest: MedLife and Memorial Hospital (en)
aprox.
413 m
Medlife Grivita
aprox.
456 m
Spitalul de Chirurgie Plastica, Reparatorie si Arsi
aprox.
518 m
Spitalul Clinic de Urgenta Chirurgie Plastica
aprox.
518 m
Policlinica CFR (en)
aprox.
519 m
Spitalul de Copii Caraiman
aprox.
905 m
Genesys Fertility Center
aprox.
1156 m
Centrul Medireflex
aprox.
1265 m
Spitalul Cfr 2
aprox.
1275 m
Spitalul 2 CFR
aprox.
1282 m
Anemona Med
aprox.
1355 m
Synevo Analize medicale
aprox.
1430 m
Pediatrie
aprox.
1479 m
Lotus-Med Clinica de nutritie
aprox.
1606 m
Catena
aprox.
383 m
M. C. Serv Tour
aprox.
386 m
Belladonna
aprox.
440 m
Help Net Farma
aprox.
952 m
Catena Farmacie
aprox.
1009 m
Homeofarm
aprox.
1124 m
Farmacia Belladonna 40
aprox.
1185 m
Farmacia Belladonna 39
aprox.
1229 m
Belladonna 18
aprox.
1244 m
Cantena Farmacie
aprox.
1268 m
HelpNet
aprox.
1310 m
Farmacia World Trade Pharma
aprox.
1329 m
Flamingo Invest Trading LTD
aprox.
1335 m
Farmacie
aprox.
1365 m
Farmacie
aprox.
1379 m
Food Mania
aprox.
316 m
Vechea Napoli
aprox.
317 m
Forneti
aprox.
328 m
Gerard
aprox.
413 m
Restaurant Gerrard
aprox.
416 m
Terasa La Turcu
aprox.
427 m
La Hussein
aprox.
476 m
Terasa TASTE
aprox.
647 m
cantina agronomie
aprox.
731 m
Cantina Agronomie
aprox.
737 m
Mica Elvetie (en)
aprox.
1033 m
Coin Vert (en)
aprox.
1035 m
Jerry's Pizza - 1 Mai
aprox.
1253 m
PERU
aprox.
1263 m
Tezal (en)
aprox.
1265 m
Zodiac
aprox.
460 m
Bar Adesim
aprox.
1583 m
Bar
aprox.
1627 m
Bar de cartier
aprox.
1650 m
French Bakery
aprox.
936 m
The King
aprox.
1366 m
Bordo Caffe1
aprox.
1423 m
Casa Mara
aprox.
1405 m
Raiffaisen Bank
aprox.
435 m
Garanti Bank
aprox.
450 m
Piraeus Bank
aprox.
462 m
ING Chibrit
aprox.
473 m
Banca Transilvania - Ag. Piata Chibrit
aprox.
490 m
OTP Bank
aprox.
528 m
Alpha Bank
aprox.
533 m
Bancpost - Piata Chibrit
aprox.
557 m
BRD
aprox.
951 m
ATM - Raiffeisen Bank - Agentia Grant
aprox.
970 m
Raiffeisen Bank
aprox.
1051 m
Piraeus Bank
aprox.
1070 m
Volksbank
aprox.
1131 m
CEC Bank
aprox.
1146 m
UniCredit Bank
aprox.
1149 m
Zona 1 Mai dispune nu doar de o poziție privilegiată față de centrul Capitalei, dar este și conectată cu alte cartiere ale orașului prin diverse mijloace de transport în comun. Poți să iei metroul de la stațiile aflate de-a lungul Căii Grivița, mai exact 1 Mai, Grivița și Basarab. Toate acestea se află pe Magistrala M4 care leagă Gara de Nord de zona Străulești. Astfel, vei ajunge de la stația Basarab la Piața Victoriei chiar și în 5 minute. Iar în zona Eroilor în circa 10 minute. Alte mijloace de transport în comun la care ai putea să apelezi dacă te muți în zona 1 Mai sunt tramvaiul 42, care leagă Piața Presei de Gara de Nord și tramvaiul 41, care ajunge în Drumul Taberei și în Ghencea. Consultă harta pentru a vedea care sunt cele mai apropiate stații de locuința de care ești interesat.
Una dintre principalele unități de învățământ din zona 1 Mai este Colegiul Național "Ion Neculce". Acesta este amplasat în apropierea Cimitirului evreiesc Filantropia. Colegiul poate fi potrivit dacă îți dorești ca încă din clasa a V-a copilul tău să învețe intensiv o limbă străină, având în vedere că acesta dispune de clase cu program intensiv în limba germană și italiană. Găsești pe hartă și alte unități de învățământ aflate în zona 1 Mai și în vecinătatea acesteia.
Ești interesat de o locuință în zona 1 Mai și te gândești unde ai putea să-ți faci cumpărăturile odată ce te muți acolo? Vei avea în zonă Piața Ion Mihalache și în apropiere Piața Domenii. Poți să ajungi destul de ușor la magazinele Kaufland sau Penny de pe Bulevardul Bucureștii Noi, iar cu mașina ajungi în câteva minute la complexul comercial Colosseum Retail Park de pe Șoseaua Chitilei. Cele mai apropiate mall-uri vor fi AFI Cotroceni, Băneasa Shopping City sau Promenada. Distanța pe care va trebui să o parcurgi pentru a ajunge la acestea va fi destul de mare, motiv pentru care vei merge la ele doar cu mașina. Află unde îți vei putea face cumpărăturile dacă te muți în zona 1 Mai consultând harta.
Dacă ai mașină sau te gândești să îți iei carnetul în curând și să nu mai circuli cu mijloacele de transport în comun, atunci trebuie să știi că traficul rutier în zona 1 Mai este concentrat pe marile artere de circulație, precum bulevardele Ion Mihalache și Banu Manta, Calea Grivița și Șoseaua Nicolae Titulescu. La marginea acestei zone se află, totodată, Pasajul Basarab care unește Sectorul 1 de Sectorul 6 și face parte din inelul interior de circulație al Bucureștiului, dar și Podul Grant care leagă Bulevardul Ion Mihalache de cartierul Crângași. La orele de vârf, traficul este de multe ori îngreunat. Îți recomandăm, totodată, să verifici dacă poți închiria un loc de parcare pentru mașina ta în apropierea locuinței de care ești interesat. Pentru a face acest lucru trebuie să te adresezi Serviciului Parcaje din cadrul ADP Sector 1. Consultă harta și află unde sunt localizate principalele parcări din zonă.
Dacă alegi să te muți în zona 1 Mai vei avea relativ aproape Parcul Regele Mihai I al României (fostul Herăstrău). Aici te vei putea plimba alături de familie în weekend-uri sau vei putea petrece câteva ore la terasă cu prietenii. Un alt parc aflat în vecinătatea acestei zone este Kiseleff, iar lângă el găsești trei muzee importante din Capitală - Antipa, Muzeul Țăranului Român și Muzeul de Geologie. Poți face aici o vizită educativă alături de copilul tău. Și Parcul Bazilescu se află în apropiere. Poți să ajungi rapid la el cu troleibuzul 97. Nici Centrul Expozițional Romexpo, unde sunt organizate periodic diferite concerte, expoziții și târguri, nu se va afla departe de noua ta locuință. O plimbare cu bicicleta în zona Parcului Regele Mihai I al României poate fi o altă variantă bună de relaxare în timpul liber. Ajungi destul de repede și pe Calea Victoriei. Și aici ai o pistă specială pentru bicicliști, dar poți să faci un popas și la una dintre cafenelele din zonă. Dacă preferi să-ți petreci ziua la cumpărături, atunci vei ajunge cu mașina în câteva minute la mall-ul Băneasa Shopping City. Consultă harta și află ce alte opțiuni de petrecere a timpului liber vei avea la dispoziție, dacă te muți în zona 1 Mai.
În zona 1 Mai și în apropierea acesteia ai la dispoziție mai multe unități sanitare la care poți apela. Amintim în acest sens Spitalul Clinic Sfânta Maria, de pe Bulevardul Ion Mihalache, spitalele Elias și CF 2 din zona Domenii și MedLife Life Memorial Hospital de pe Calea Griviței. Găsești pe hartă și alte clinici private la care ai acces în împrejurimi.
Găsești câteva restaurante pe Bulevardul Ion Mihalache și în apropierea Parcului Regele Mihai I, în special în Piața Charles de Gaulle. Ajungi destul de repede și în Piața Victoriei unde ai la dispoziție câteva restaurante de tip fast food - McDonald"™s, Subway, Springtime - și două cafenele Starbucks. Dacă pornești apoi pe Calea Victoriei ai la dispoziție numeroase localuri, inclusiv terase. Cu mașina poți să ajungi rapid și la mall-ul Băneasa Shopping CIty unde ai la dispoziție numeroase restaurante, fast food-uri, cafenele și cofetării. Aruncă o privire pe hartă și vezi unde poți lua masa în oraș, dacă te muți în zona 1 Mai.
În zona intersecției dintre Bulevardul Ion Mihalache și Calea Griviței găsești mai multe bancomate - OTP Ban, BRD, BCR. Alte sucursale bancare și ATM-uri sunt disponibile pe Bulevardul Ion Mihalache și în zona Piața Victoriei. Consultă harta. Află ce alte opțiuni ai în apropierea casei.
Înainte să pleci...
Ești sigur că ai văzut și aceste proprietăți?
2.400 € / lună
București, 1 Mai
240 mp utili
Clădire de birouri
2000 (Există)
2.400 € / lună
București, Domenii
240 mp utili
Clădire de birouri
2011 (Există)
2.386 - 55.308 € / lună
București, DN 1
9.520 mp utili
Clădire de birouri
P+10E
3.950 - 222.453 € / lună
București, Domenii
29.459 mp utili
Clădire de birouri
9E
4.950 € / lună
București, P-ta Presei Libere
300 mp utili
Clădire de birouri
P+5E
3.240 - 39.000 € / lună
București, Pipera
10.000 mp utili
Clădire de birouri
13E
Creează alertă
Salvează căutarea ca să primești pe email ultimele anunțuri publicate
Birouri cu 4+ camere de închiriat în zona 1 Mai, Sector 1
Cere detalii prin email
*
*
*
*
Detaliile tale de contact vor fi partajate cu Top Home Advisors Srl