2

Spațiu de birouri de 301mp | vedere panoramica | Charles de Gaulle

9.105 € / lună
30.25 € / mp / lună

Aviatorilor, București

Sup. utilă / mp. utili:
301 mp
Tip prop.:
Clădire de birouri
Niv.:
5
An constr.:
2012 (Există)
  • • Locație aproximativă
  • • Vizionare prin apel video

Descriere spațiu comercial

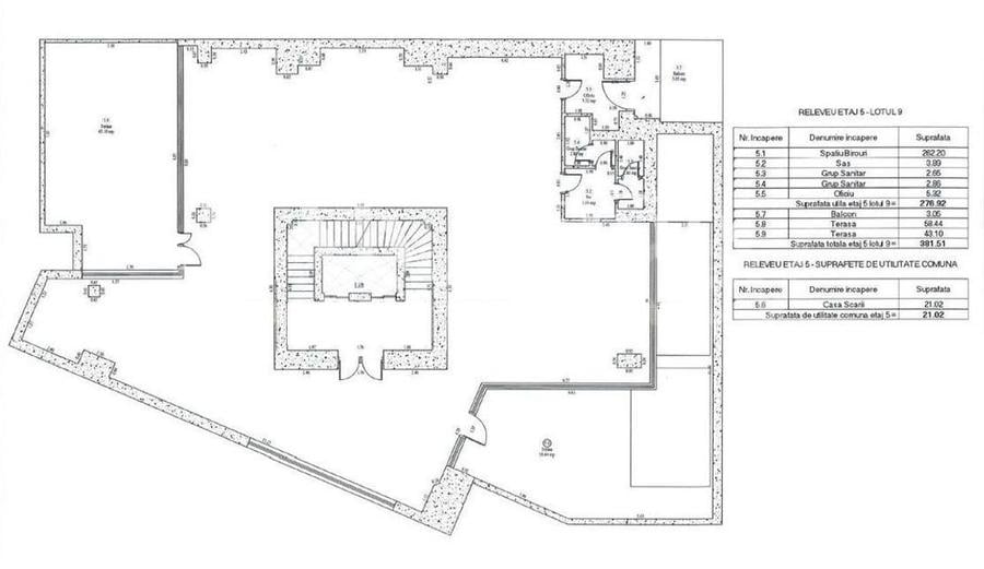
Cu o vizibilitate ridicata, aceasta cladire este un punct de reper in P-ta Aviatorilor, fiind amplasata in apropiere de zone rezidentiale premium (Primaverii, Aviatorilor, Herastrau, Kiseleff), la 150m de Metroul Aviatorilor, restaurante si cafenele in apropiere si cel mai mare parc din Bucuresti, Parcul Herastrau. Sunt in total 2162mp GLA pe 6 nivele (P- et. 5) si 20 de locuri de parcare. Etajul curent are o suprafata inchiriabila de 301mp, din care 276,92mp utili si 3.05mp balcon. Beneficiaza si de 2 terase de 58,44mp și 43,10mp pentru care nu se percepe chirie. Dispune de 3 locuri de parcare in garajul subteran care se inchiriaza separat pentru 200euro/loc+TVA. Mentenanta este de 3.5Euro/mp aplicata la 301mp. Imobilul are receptie moderna, finisaje de cea mai buna calitate, toalete pe fiecare nivel, HVAC, aer conditionat si 2 lifturi moderne de 7 persoane fiecare. Fiecare nivel are podea flotanta acoperita cu mocheta, corpuri de iluminat la cele mai inalte standarde de 500 lux/birou. Are sistem de supraveghere, paza 24/7, sistem de alarma modern si detectoare de fum.
Citește mai mult Citește mai puțin
3 Parcări

Detalii spațiu comercial

ID anunț: X1UR1404N Copiat! 275351896 Copiat!
Actualizat în: 01 Aprilie 2026
Tip tranzacție: De închiriat prin agent
Suprafață utilă: 301 mp
Etaj: Etaj 5 / 5
Clasă birouri: A
Regim înălțime: S+P+5E
Structură rezistență: Beton
Stadiu construcție: Există

Utilități

Utilități
Curent Apă Canalizare
Comision
standard

Vecinătăți:

P-ta Charles de Gaulle
Parcul Herastrau

Disponibilitate proprietate:

Imediat

Puncte de interes

Mijloace transport
metro-station
Statie metrou Aviatorilor
Stații metrou aprox. 114 m
metro-station
Piata Aviatorilor (M2)
Stații metrou aprox. 242 m
bus-station
Statia Piata Charlles de Gaulle linii : 131,282,301,330,331,335.
Stații autobuz aprox. 329 m
tram-station
Statie Tramvai 41 - Casin
Stații tramvai aprox. 849 m
Școală
school
Scoala ambasadei Federatiei Ruse
Școli aprox. 416 m
kindergarten
Gradinita cu program normal ""Ge Ce Pic Englishkinder"
Gradinițe aprox. 473 m
school
Gradinita de copii nr.52
Școli aprox. 499 m
university
Universitatea De Stiinte Agronomice Si Medical Veterinare
Universități aprox. 1196 m
Recreere
park
Intrarea in parcul Herastrau
Parcuri aprox. 39 m
sports-ground
Skatepark 1
Terenuri sport aprox. 93 m
supermarket
Mega Image
Supermarket aprox. 405 m
mall
"METROPLIS CENTER"
Mall aprox. 1914 m

Proprietăți similare

Birou, 372 mp în Floreasca
6.976 € / lună
București, Floreasca
372 mp utili
Clădire de birouri
P+13E
Birou, 5250 mp în Floreasca
6.800 - 37.400 € / lună
București, Floreasca
20.000 mp utili
Clădire de birouri
8E
Birou, 400 mp în Băneasa
6.776 € / lună
București, Băneasa
2.800 mp utili
Clădire de birouri
4E

Detalii de contact

GOLDENKEY

Violeta Anghel Department Manager

4.83(8 review-uri)

GOLDENKEY
PRO

Abonează-te la newsletter să fii primul care primește cele mai noi recomandări de proprietăți și sfaturi de la experți.

CONTACT

Creează alertă

Salvează căutarea ca să primești pe email ultimele anunțuri publicate

Birouri cu 3 camere de închiriat în zona Aviatorilor, Sector 1