Birouri de inchiriat in Trotusului 60, comision 0% Reprezentam Proprietarul

3.300 € / lună
10.61 € / mp / lună

Domenii, București

Sup. utilă / mp. utili:
260 mp
Tip prop.:
Casă/Vilă
Niv.:
2
  • • Comision 0%
  • • Locație exactă

Descriere spațiu comercial

Inchiriere birouri in sector 1, intr-o vila amplasata langa Parcul Copilului (150 metri distanta), intre Bulevardul Ion Mihalache / Piata Domenii (300 metri) si Calea Grivitei (600 metri). Cladirea este situata in cartierul Domenii, o zona linistita cu vile, blocuri de inaltime mica si noul ansamblu rezidential Arcadia, functiuni de birouri si zone verzi / sportive (Parcul Copilului, Baza Sportiva Ciresarii). Accesul cu automobilul se face usor din principalele sosele ale zonei (Ion Mihalache, Calea Grivitei), zona fiind foarte bine conectata de centrul, nordul si vestul capitalei. Transportul public include statia de metrou Grivita la 10 minute de mers, respectiv statii de tramvai, autobuz si troleibuz amplasate la 5-10 minute de cladire. Vila Trotusului 60 a fost finalizata in 1998 si este construita pe un teren de 115 m2. Cladirea are o suprafata utila de 260 m2 (exclusiv mansarda), desfasurata pe mai multe niveluri: - subsol: zona depozitare si zona tehnica - parter: zona deschisa de lucru, bucatarie, grup sanitar - etaj 1: 3 camere, baie - etaj 2: 3 camere, baie - mansarda: potential depozitare Cladirea beneficiaza de incalzire cu 2 centrale amplasate in subsol si racire prin unitati split de aer conditionat, urmand sa intre in luna aprilie intr-un amplu proces de iginizare si imbunatatiri in vederea reinchirierii pentru o destinatie de birouri. Cladirea nu are parcare dedicata, dar strada este amenajata cu locuri de parcare pe ambele laturi, existand o disponibilitate optima de astfel de optiuni.
Citește mai mult Citește mai puțin

Detalii spațiu comercial

ID anunț: X5F8041D7 Copiat! 199950437 Copiat!
Actualizat în: 04 Februarie 2026
Nume proprietate: Trotusului 60
Regim înălțime: D+P+2E+M

Utilități

Comision
0%

Alte detalii:

Inchiriere birouri in sector 1, intr-o vila amplasata langa Parcul Copilului (150 metri distanta), intre Bulevardul Ion Mihalache / Piata Domenii (300 metri) si Calea Grivitei (600 metri).

Cladirea este situata in cartierul Domenii, o zona linistita cu vile, blocuri de inaltime mica si noul ansamblu rezidential Arcadia, functiuni de birouri si zone verzi / sportive (Parcul Copilului, Baza Sportiva Ciresarii).

Accesul cu automobilul se face usor din principalele sosele ale zonei (Ion Mihalache, Calea Grivitei), zona fiind foarte bine conectata de centrul, nordul si vestul capitalei.

Transportul public include statia de metrou Grivita la 10 minute de mers, respectiv statii de tramvai, autobuz si troleibuz amplasate la 5-10 minute de cladire.

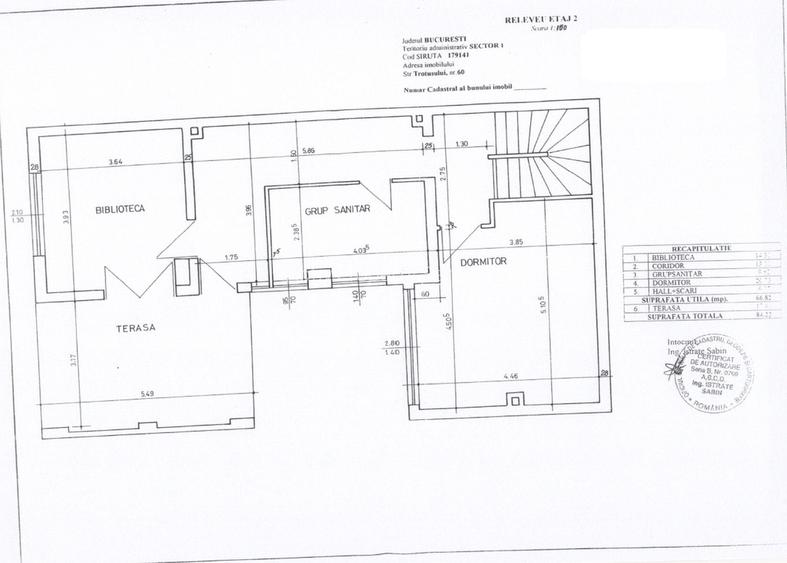
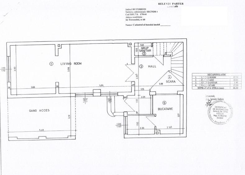
Vila Trotusului 60 a fost finalizata in 1998 si este construita pe un teren de 115 m2. Cladirea are o suprafata utila de 260 m2 (exclusiv mansarda), desfasurata pe mai multe niveluri:

- subsol: zona depozitare si zona tehnica

- parter: zona deschisa de lucru, bucatarie, grup sanitar

- etaj 1: 3 camere, baie

- etaj 2: 3 camere, baie

- mansarda: potential depozitare

Cladirea beneficiaza de incalzire cu 2 centrale amplasate in subsol si racire prin unitati split de aer conditionat, urmand sa intre in luna aprilie intr-un amplu proces de iginizare si imbunatatiri in vederea reinchirierii pentru o destinatie de birouri.

Cladirea nu are parcare dedicata, dar strada este amenajata cu locuri de parcare pe ambele laturi, existand o disponibilitate optima de astfel de optiuni.

Subspații disponibile

Cladire de inchiriat integral

Mai multe informatii despre cladire pe site-ul nostru : https://www.spatii-de-birouri.ro/inchiriere-vanzare/bucuresti-trotusului-60

Chirie / u.m. / lună:
10.61093 EUR/mp (total: 3300 EUR/lună) + alte cheltuieli, Comision 0% cumpărător
Suprafață disponibilă:
311
Disponibilitate spațiu:
30.04.2024
Etaj:
Parter / 2
Posibilitate parcare:
Da

Puncte de interes

Mijloace transport
tram-station
Piata Domenii
Stații tramvai aprox. 330 m
bus-station
Statia Piata Domenii, linia 205, 300, 282, N118, 20, 24, 42, 45
Stații autobuz aprox. 355 m
metro-station
Metrorex. Stația Grivița (M4)(2000)
Stații metrou aprox. 498 m
trolleybus-station
Statie Caraiman 65, 97, 86
Stații troleibuz aprox. 541 m
Școală
kindergarten
Gradinita Casuta Piticilor
Gradinițe aprox. 70 m
school
Gradinita de copii nr.222
Școli aprox. 328 m
kindergarten
Gradinita nr. 222
Gradinițe aprox. 335 m
university
Facultatea de Biotehnologii
Universități aprox. 599 m
Recreere
supermarket
Annabella
Supermarket aprox. 99 m
sports-ground
Teren sportiv
Terenuri sport aprox. 173 m
park
Clubul Copiilor nr. 1, Ciresarii
Parcuri aprox. 301 m
public-square
Piata Montreal
Piețe publice aprox. 1424 m

Proprietăți recomandate

Detalii de contact

Activ Property Services

Departament Birouri

5.00(3 review-uri)

Activ Property Services
PRO

Abonează-te la newsletter să fii primul care primește cele mai noi recomandări de proprietăți și sfaturi de la experți.

CONTACT

Creează alertă

Salvează căutarea ca să primești pe email ultimele anunțuri publicate

Birouri de închiriat în zona Domenii, Sector 1