8

Eliade Tower, Bdul. Mircea Eliade 18 - comision 0%, reprezentam proprietarul!

7.436 € / lună
16.94 € / mp / lună

Floreasca, București

Sup. utilă / mp. utili:
8.300 mp
Tip prop.:
Clădire de birouri
Niv.:
10
An constr.:
2006 (Există)
  • • Comision 0%
  • • Locație exactă

Descriere spațiu comercial

Eliade Tower este amplasat in zona de nord a Bucurestiului, zona Floreasca, la ****************** Calea Floreasca, Strada Ceaikovski si Bulevardul Mircea Eliade. Cladirea beneficiaza de un amplasament proeminent de colt, in fata Parcului Floreasca si a Lacului Floreasca, la o distanta de 500 de metri de Bulevardul Barbu Vacarescu, 500 de metri de cartierul exclusivist Primaverii, 1 km de noul centru de afaceri din jurul statiei de metrou Aurel Vlaicu, respectiv 1,3 km de zona centrala (Sos. Stefan cel Mare). Cladirea este situata adiacent noului proiect mixt in constructie One Mircea Eliade – One Tower, care urmeaza sa includa facilitati de retail, birouri si rezidential de top, respectiv la 5 minute de mers pe jos de Piata Floreasca si restaurantele concentrate acolo. Accesul cu automobilul se face usor din bulevardele majore ale zonei de nord (Calea Floreasca, Barbu Vacarescu, Aviatorilor), cat si din inelul median care inconjoara zona centrala. Transportul public include statii de autobuz (135, 182, 282) amplasate chiar in fata cladirii. Eliade Tower este o cladire de birouri modernizata la standarde de clasa B, desfasurata pe subsol, parter si 10 etaje. Cladirea are o suprafata inchiriabila totala de 8.300 m2, cu 791 m2 pe etaj.
Citește mai mult Citește mai puțin
90 Parcări

Detalii spațiu comercial

ID anunț: X5F8040N5 Copiat! 1136487 Copiat!
Actualizat în: 07 Aprilie 2026
Tip tranzacție: De închiriat prin agent
Nume proprietate: Eliade Tower
Regim înălțime: 1S+P+10E
Stadiu construcție: Există

Utilități

Comision
0%

Vecinătăți:

Calea Floreasca
Parcul Floreasca
Bulevardul Barbu Vacarescu

Subspații disponibile

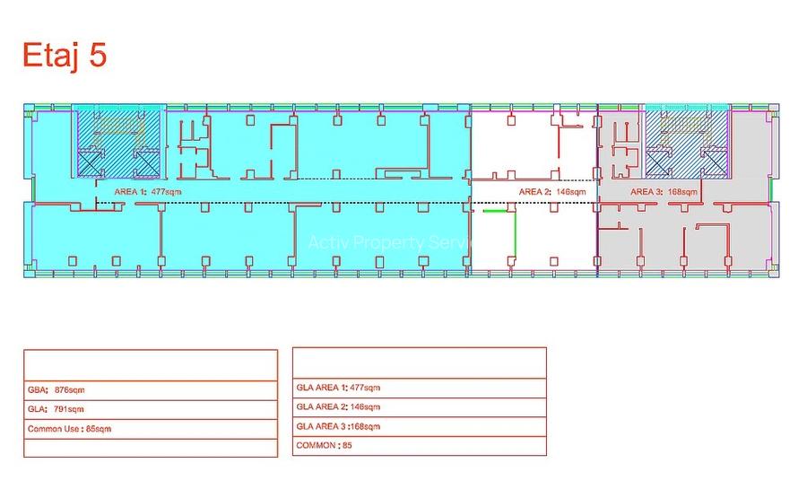
Spatiu de inchiriat - et. 6

Mai multe detalii despre aceasta oferta in link-ul de mai jos: spatii-de-birouri.ro/inchiriere-vanzare/bucuresti-eliade-tower Pe platforma SPATII-DE-BIROURI.RO gasiti peste 400 de cladiri de birouri din Bucuresti, cu toate informatiile actualizate si comision 0% (reprezentam proprietarii).

Chirie / u.m. / lună:
16.94 EUR/mp (total: 7437 EUR/lună) + alte cheltuieli, Comision 0% cumpărător
Suprafață disponibilă:
439
Disponibilitate spațiu:
imediat
Etaj:
Etaj 6 / 10
Posibilitate parcare:
Da

Puncte de interes

Mijloace transport
bus-station
Statia Calea Floreasca / Ceaikovski / Mircea Eliade, linia 135, 182, 282, N119, N123
Stații autobuz aprox. 41 m
bus-station
Statia Ancuta Baneasa, linia 135, N119
Stații autobuz aprox. 452 m
tram-station
Ceaikovski
Stații tramvai aprox. 533 m
metro-station
Piata Aviatorilor (M2)
Stații metrou aprox. 1209 m
Școală
school
Gradinita Floreasca Rahmaninov
Școli aprox. 301 m
kindergarten
Paradisul Copiilor
Gradinițe aprox. 305 m
school
ȘCOALA CU CLASELE I-VIII NR. 10
Școli aprox. 310 m
university
Universitatea Atenaeum
Universități aprox. 562 m
Recreere
park
Parcul Floreasca(1963)
Parcuri aprox. 217 m
sports-ground
Teren sportiv
Terenuri sport aprox. 523 m
supermarket
BILLA - B. Vacarescu
Supermarket aprox. 678 m
mall
"METROPLIS CENTER"
Mall aprox. 1547 m

Istoricul prețurilor

Acces la informații premium după autentificare
Login Gratuit

Proprietăți similare

Birou, 317 mp în Floreasca
5.753 € / lună
București, Floreasca
3.800 mp utili
Clădire de birouri
6E
Birou, de 190 mp, în Floreasca
6.000 € / lună
București, Floreasca
190 mp utili
Clădire de birouri
P+5E
Birou, 890 mp în Floreasca
5.781 - 8.013 € / lună
București, Floreasca
890 mp utili
Birouri
P+13E

Detalii de contact

Activ Property Services

Departament Birouri

5.00(4 review-uri)

Activ Property Services
PRO

Abonează-te la newsletter să fii primul care primește cele mai noi recomandări de proprietăți și sfaturi de la experți.

CONTACT

Creează alertă

Salvează căutarea ca să primești pe email ultimele anunțuri publicate

Birouri de închiriat în zona Floreasca, Sector 1