Imobil cu functiune birouri amplasat in zona Aviatiei - Promenada, ofera conditii optime de acomodare companiilor ce vizeaza zona de nord a orasului, o buna vizibilitate si conexiune facila cu mijloacele de transport in comun.
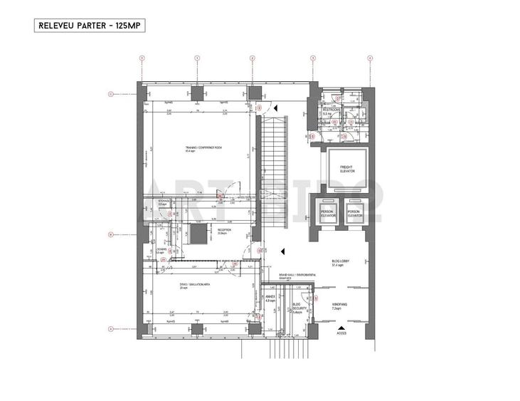
Spatiul disponibil se afla la parterul cladirii, are potential atat pentru activitate cu public sau birou si o suprafata de 125mp: 2 partitii, o zona de oficiu si depozitare, receptie si toaleta exclusiva (releveu anexat).
Suplimentar: etaj 5 - modul 16, 68 sau 125mp.
Mobilierul se ofera gratuit, in limita disponibilitatii. Nu se adaugă cotă de spații comune.
Pretul chiriei pentru parter este de 20 eur/mp (15.5 eur/mp pentru spatiile de la etaj), se adauga consumul utilităților si servicii administrative/ salubrizare, toate in medie de 3 - 3.5 eur/mp + TVA. Parcare supraterana disponibila: 100 eur/ unitate (in fata cladirii) sau 80 eur/ unitate (la 200m de cladire). Chiria poate fi oferita fara TVA.
Cladirea dispune de autorizatie ISU, serviciu administrație, paza si receptie, 2 lifturi, generator sisteme vitale, performanta energetica ridicată, climatizare prin ventiloconvectoare, parcare supraterana (60 locuri).
Accesul catre servicii transport se face rapid (distanta de mers statie STB/Metrou: 1/4 min - [M] Aurel Vlaicu).
Consultanta oferita pe intregul parcurs al procesului de relocare/ acomodare birou (analiza comparativa oferte, vizionari, clauze contractuale, servicii suport) este gratuita.
Sediul central - Timișoara
Bulevardul Victor Babeș nr. 2, 300230, Timișoara, România
Tel: +40.374.40.44.98 / Fax: +40.256.401.179
Email: suport@imobiliare.ro
Luni - Vineri 08:00 - 20:00
Punct de lucru - București: Iride Business Park, Bld. Dimitrie
Pompeiu 9-9A, Clădirea B2B,
020335, Sector 2, București, România
CONTACT
Sediul central - Timișoara
Bulevardul Victor Babeș nr. 2, 300230, Timișoara, România
Tel: +40.374.40.44.98 / Fax: +40.256.401.179
Email: suport@imobiliare.ro
Luni - Vineri 08:00 - 20:00
Punct de lucru - București: Iride Business Park, Bld. Dimitrie
Pompeiu 9-9A, Clădirea B2B,
020335, Sector 2, București, România
Parc avioane Grup Scolar de Aeronautica "H. Coanda"
aprox.
1906 m
Universitatea Atenaeum
aprox.
1855 m
Athenaeum University (en)
aprox.
1856 m
Promenada
aprox.
127 m
Mega Image Concept Store
aprox.
167 m
Carrefour Market
aprox.
299 m
Carrefour Market
aprox.
821 m
Carrefour Market
aprox.
907 m
ART Business Center 5
aprox.
940 m
Carrefour
aprox.
1203 m
Mega Image
aprox.
1275 m
Lidl
aprox.
1289 m
BILLA - B. Vacarescu
aprox.
1641 m
Kaufland Barbu Vacarescu
aprox.
1708 m
Mega Image
aprox.
1822 m
Nic Dorobanti Non-Stop
aprox.
1950 m
Parcare
aprox.
21 m
Parcare
aprox.
62 m
Parcare
aprox.
120 m
Parcare
aprox.
124 m
Parcare
aprox.
134 m
Parcare
aprox.
182 m
Parcare
aprox.
193 m
Parcare
aprox.
197 m
Parcare
aprox.
200 m
Parcare
aprox.
242 m
Parcare
aprox.
244 m
Parcare
aprox.
247 m
Parcare
aprox.
344 m
Parcare
aprox.
428 m
Parcare
aprox.
498 m
Cimitirul Eroilor Rusi
aprox.
355 m
Parc
aprox.
355 m
Parc
aprox.
548 m
Parc
aprox.
743 m
Parc
aprox.
749 m
Parc
aprox.
875 m
Parcul Verdi
aprox.
973 m
Parcul Verdi
aprox.
987 m
Parcul Scoala Herastrau
aprox.
994 m
Parcul Scoala Herastrau
aprox.
994 m
Parc
aprox.
1050 m
Parcul Bordei
aprox.
1052 m
Ecluza Herastrau - Floreasca
aprox.
1059 m
Parcul Bordei
aprox.
1084 m
Parc
aprox.
1097 m
Teren sportiv
aprox.
431 m
Teren sportiv
aprox.
668 m
Teren sportiv
aprox.
868 m
Teren sportiv
aprox.
943 m
Teren sportiv
aprox.
952 m
Teren sportiv
aprox.
1083 m
Teren sportiv
aprox.
1119 m
Teren sportiv
aprox.
1164 m
Teren sportiv
aprox.
1171 m
Teren sportiv
aprox.
1174 m
Teren de Tenis
aprox.
1254 m
Teren de Tenis
aprox.
1257 m
Teren sportiv
aprox.
1272 m
Teren de Tenis
aprox.
1291 m
Teren de Fotbal
aprox.
1293 m
HelpNet Promenada
aprox.
137 m
Belladonna
aprox.
237 m
Farmacie Help Net
aprox.
250 m
Afina
aprox.
342 m
Farmacia Carmen
aprox.
356 m
Santafarm
aprox.
585 m
Sensiblu
aprox.
586 m
Farmacia Laborator Orizont
aprox.
734 m
Farmacia Centrofarm 43
aprox.
741 m
Homeopatafarm
aprox.
761 m
Help Net Farma
aprox.
781 m
Afina Farmacie
aprox.
790 m
Help Net
aprox.
1011 m
HelpNet 101
aprox.
1154 m
Help Net
aprox.
1229 m
Anima
aprox.
284 m
Mikomed
aprox.
787 m
Ponderas Regina Maria
aprox.
1015 m
Medicover Pipera
aprox.
1065 m
Medicover Pipera
aprox.
1149 m
BIOS Diagnostic Medical Services
aprox.
1406 m
Regina Maria - Retea privata de sanatate
aprox.
1427 m
ALIA Medical Center
aprox.
1493 m
Dispensar floreasca
aprox.
1531 m
Medicover Hospital Pipera
aprox.
1569 m
Zirconium dental center
aprox.
1577 m
Policlinica Regina Maria
aprox.
1759 m
Centrul Medical Academica
aprox.
1946 m
VegUp
aprox.
9 m
Cuptorul cu Lemne Promenada
aprox.
130 m
Deliciul Cartofilor Promenada
aprox.
131 m
Be Nat. Promenada
aprox.
132 m
KFC Promenada
aprox.
134 m
Chopshx Promenada
aprox.
139 m
McDonald's Promenada
aprox.
139 m
Vacamuuu
aprox.
155 m
Armony
aprox.
164 m
Restaurant "La Nova".
aprox.
185 m
Cantina Express
aprox.
208 m
Terasa "La Radu"
aprox.
228 m
Turabo Grand Ballroom
aprox.
379 m
Cleopatra
aprox.
470 m
Domino's Pizza
aprox.
487 m
On-Off Coffee Shop
aprox.
59 m
Starbucks Coffee
aprox.
100 m
Spazi Caffe Promenada
aprox.
125 m
Filicori Promenada
aprox.
140 m
City Grill
aprox.
155 m
Starbucks
aprox.
1036 m
Five2Go Pipera
aprox.
1218 m
Isoletta
aprox.
1337 m
Ambiance Caffe
aprox.
1598 m
Golf&Coffee
aprox.
1633 m
Cafe Centro
aprox.
1805 m
The Eatery
aprox.
1819 m
Nuba Cafe
aprox.
1871 m
High Heels
aprox.
1985 m
Simbi's
aprox.
531 m
Barletto
aprox.
1293 m
Bancpost (en)
aprox.
5 m
Bancpost - Ag. Floreasca
aprox.
25 m
CEC Bank
aprox.
69 m
Credit Europe Bank Promenada
aprox.
159 m
ING Bank - Aviatiei (en)
aprox.
237 m
UniCredit Bank - Ag. Aviatiei
aprox.
240 m
ING Aviatiei
aprox.
244 m
Credit Europe Bank - Ag. Aviatiei
aprox.
269 m
Raiffeisen Bank
aprox.
288 m
Volksbank
aprox.
300 m
Raiffeisen Bank - Ag. Aviatiei
aprox.
364 m
Banca Italo Romena (en)
aprox.
376 m
Millenium - Ag. Aviatiei
aprox.
378 m
Banca Italo Romena
aprox.
384 m
RBS Romania (en)
aprox.
401 m
Printre mijloacele de transport în comun pe care le vei avea la dispoziție în cazul în care te vei muta în zona Floreasca se numără autobuzele 182 și 135. Primul dintre acestea îți oferă o legătură directă cu zona Gării de Nord și cu cartierul Colentina. Cel de-al doilea oferă o conexiune cu zona Pipera, unul dintre principalii poli de business din nordul orașului. Stația de metrou Ștefan cel Mare, aflată pe magistrala M1 Dristor-Pantelimon, la care ai acces în apropierea Stadionului Dinamo, îți va fi și ea de ajutor dacă vrei să eviți aglomerația din trafic. Astfel, vei avea doar o stație de mers până la Piața Victoriei, iar de aici poți schimba metroul pentru a ajunge în cel mult 10 minute în Pipera. Verifică harta pentru a afla unde sunt poziționate stațiile mijloacelor de transport în comun.
Dacă te vei muta în zona Floreasca, atunci vei avea în apropierea casei tale Liceul Teoretic "CA Rosetti" și Școala Gimnazială "Maria Rosetti". În cartier găsești, totodată, câteva grădinițe private și de stat. Consultă harta pentru a vedea care sunt unitățile de învățământ din Floreasca și din vecinătatea acestei zone.
Pe Strada Barbu Văcărescu vei găsi un magazin Kaufland și un Carrefour Market, iar la limita nordică a cartierului vei avea la dispoziție mall-ul Promenada. Din zona Floreasca ajungi destul de rapid la magazinele de lângă Pasajul Băneasa și la Piața Băneasa, iar cu mașina faci doar câteva minute până la Băneasa Shopping City, unul dintre cele mai mari centre comerciale din oraș. Vis-a-vis de acesta găsești și magazine Mega Image, Selgros și Decathlon. Află de pe hartă unde îți vei face cumpărăturile dacă te muți în acest cartier.
Dacă preferi să te deplasezi cu mașina prin oraș, este bine să știi că vei întâlni aglomerație în trafic, în special la orele de vârf, la intersecțiile dintre Șoseaua Ștefan cel Mare, Strada Barbu Văcărescu și Calea Floreasca. Circulația este îngreunată de multe ori și pe Strada Barbu Văcărescu, pe segmentul dinspre Șoseaua Pipera, din cauza numărului mare de angajați care lucrează în clădirile de birouri din jurul stației de metrou Aurel Vlaicu. Încearcă să te adresezi Biroului Parcări din cadrul ADP Sector 2 pentru a vedea dacă poți închiria un loc de parcare pentru mașina ta în apropierea casei. Consultă harta pentru a afla unde sunt poziționate principalele parcări.
Dacă te muți în zona Floreasca, vei avea mereu în apropiere unele dintre cele mai apreciate restaurante, terase și cluburi din București. Iar dacă vrei să încerci ceva nou atunci la doi pași de casă, în Dorobanți, vei găsi și alte localuri de care te poți bucura în timpul liber. Mai multe săli de fitness s-au deschis în cartier. În apropiere de viitoarea ta casă vei avea Parcul Verdi și Parcul Floreasca. Poți merge la terasă sau la piscină în zona acestuia din urmă. Tot în apropiere vei avea și Circul Metropolitan București (fostul Circ Globus) și parcul acestuia. Complexul Sportiv Floreasca și Stadionul Dinamo, unde sunt amenajate mai multe terenuri de sport și unde poți merge la înot, merită și ele menționate. În partea de nord a cartierului vei găsi, totodată, Clubul Sportiv de Fotbal Athletico Floreasca și Academia de Tenis Ilie Năstase. Consultă harta și vezi ce alte puncte de interes vei avea în apropierea casei tale.
În apropierea Stadionului Dinamo găsești Spitalul Clinic de Urgență București (cunoscut și sub numele de Spitalul Floreasca) și Spitalul Euroclinic care face parte din rețeaua privată de sănătate Regina Maria. În cartier există și câteva clinici private la care poți apela la nevoie, iar în zona Parcului Circului alte două spitale - Spitalul Sf. Ștefan și Spitalul Clinic Colentina. Consultă harta pentru a afla poziționarea exactă a unităților sanitare din cartier și din împrejurimi.
Găsești numeroase restaurante și terase de-a lungul arteri de circulație care traversează această zonă, Calea Floreasca. Ai, totodată, la doi pași de casă, mall-ul Promenada, unde găsești atât un food court cu destul de multe opțiuni, cât și câteva terase unde îți poți savura cafeaua în aer liber, dar și localurile din Dorobanți. Ajungi foarte rapid și în Piața Victoriei, unde găsești mai multe cafenele. De acolo, poți lua la pas Calea Victoriei, una dintre cele mai frumoase zone din oraș. Te vei plimba și vei găsi, cu siguranță, un restaurant pe gustul tău. Aruncă o privire pe hartă și vezi ce alte opțiuni ai în apropierea viitoarei tale locuințe.
Mai multe bănci și ATM-uri pot fi găsite în zona mall-ului Promenada și la intersecția dintre Calea Floreasca și Șoseaua Ștefan cel Mare. Pentru mai multe detalii, consultă harta.
Înainte să pleci...
Ești sigur că ai văzut și aceste proprietăți?
2.500 € / lună
București, Aviatorilor
200 mp utili
Clădire de birouri
3E
5.329 € / lună
București, Floreasca
325 mp utili
Clădire de birouri
8E
2.000 € / lună
București, Aviatorilor
100 mp utili
Clădire de birouri
4E
2.499 € / lună
București, Herăstrău
300 mp utili
Clădire de birouri
P+4E
5.040 € / lună
București, Floreasca
288 mp utili
Clădire de birouri
P+8E
2.150 € / lună
București, Aviației
155 mp utili
Clădire de birouri
2008
Creează alertă
Salvează căutarea ca să primești pe email ultimele anunțuri publicate
Birouri cu 2 camere de închiriat în zona Floreasca, Sector 1
Cere detalii prin email
*
*
*
*
Detaliile tale de contact vor fi partajate cu Art Biro