Disponibil imediat spațiu de birouri potrivit pentru echipe mici sau medii, cu program hibrid în domenii precum IT, consultanță, contabilitate, marketing digital, arhitectură, proiectare sau design interior. Situat ultracentral, zona Polonă – Dacia, la etajul 7/7 al unui imobil construit în 2000, cu destinație mixtă (birouri și rezidențial).
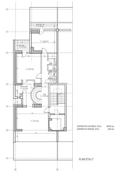
Suprafață utilă: 99,65 mp + 9,60 mp balcoane. Spațiu luminos, renovat recent, potrivit pentru activități de birou fără trafic intens de clienți.
Compartimentare: open space 35 mp, două birouri (15 mp și 20 mp), bucătărie mobilată 10 mp, grup sanitar, baie cu duș walk-in, spațiu tehnic. Suprafețe vitrate mari, două balcoane (unul pentru fiecare birou).
Dotări: aer condiționat, calorifere, contorizare separată utilități, centrală de bloc, sistem de încălzire cu control automatizat la distanță.
Transport & parcare:
– STB: autobuz 135 (stație în fața clădirii); troleibuze 79/86/97 la 4 minute distanță
– Metrou: Piața Romană și Ștefan cel Mare la 10 minute pe jos
– Parcare publică cu plată pe str. Polonă (zona 1); parcare privată „Dorobanți Parking” la 350 m.
Condiții contractare:
– perioadă contractuală minimă: 2 ani
– garanție: 2 chirii.
Sediul central - Timișoara
Bulevardul Victor Babeș nr. 2, 300230, Timișoara, România
Tel: +40.374.40.44.98 / Fax: +40.256.401.179
Email: suport@imobiliare.ro
Luni - Vineri 08:00 - 20:00
Punct de lucru - București: Iride Business Park, Bld. Dimitrie
Pompeiu 9-9A, Clădirea B2B,
020335, Sector 2, București, România
CONTACT
Sediul central - Timișoara
Bulevardul Victor Babeș nr. 2, 300230, Timișoara, România
Tel: +40.374.40.44.98 / Fax: +40.256.401.179
Email: suport@imobiliare.ro
Luni - Vineri 08:00 - 20:00
Punct de lucru - București: Iride Business Park, Bld. Dimitrie
Pompeiu 9-9A, Clădirea B2B,
020335, Sector 2, București, România
Scoala Nationala de Studii Politice si Administrative (SNSPA)
aprox.
709 m
Scoala Nationala de Studii Politice si Administrative
aprox.
709 m
SNSPA
aprox.
738 m
Rectoratul UMF "Carol Davila"
aprox.
777 m
University of Bucharest - Faculty of Foreign Languages and Literatures (en)
aprox.
836 m
Centrul de Limbi Straine Ariel
aprox.
837 m
Scoala de teatru
aprox.
105 m
Scoala Americana
aprox.
212 m
Cambridge School
aprox.
292 m
Cambridge School Of Bucharest (en)
aprox.
332 m
Lexis scoli de limbi straine
aprox.
334 m
Colegiul Economic Virgil Madgearu
aprox.
340 m
Cladirea Virgil Madgearu
aprox.
349 m
Scoala nr. 24
aprox.
368 m
Scoala generala nr. 24
aprox.
381 m
Scoala Generala Elena Vacarescu
aprox.
435 m
Scoala 186
aprox.
436 m
Clubul Sportiv Dinamo Bucuresti
aprox.
473 m
Scoala Centrala
aprox.
621 m
Școala Centrală din Bucuresti
aprox.
634 m
French School of Bucharest (en)
aprox.
726 m
Gradinita nr. 85
aprox.
255 m
Gradinita nr. 138 cu program prelungit
aprox.
357 m
Gradinita nr. 252 cu program prelungit
aprox.
358 m
Ioanid
aprox.
388 m
Gradinita Ioanid
aprox.
402 m
Gradinita numarul 133
aprox.
493 m
Gradinita nr. 116
aprox.
705 m
Gradinita numarul 257
aprox.
816 m
Gradinita nr. 203 program prelungit
aprox.
871 m
Gradinita nr.203 (fosta Clementa)
aprox.
894 m
Gradinita cu program normal si prelungit Happy Kids
aprox.
1042 m
Gradinita nr.4 "Lizuca"
aprox.
1201 m
Gradinita numarul 8
aprox.
1213 m
Gradinita de copii nr.251
aprox.
1448 m
Grădinița nr. 252
aprox.
1462 m
BILLA - Dorobanti
aprox.
334 m
Bila Supermarket
aprox.
364 m
Bacania Coco
aprox.
547 m
Mega Image - IANCU DE HUNEDOARA
aprox.
561 m
Mega Image - Icoanei
aprox.
700 m
Mega Image Magheru
aprox.
769 m
Nik Non-Stop
aprox.
787 m
OK Non-stop Supermarket (en)
aprox.
828 m
OK Non-Stop
aprox.
828 m
Mega Image Concept Store
aprox.
838 m
Mega Image Amzei Non-Stop
aprox.
855 m
ilanplant
aprox.
856 m
Mega Image Rosetti Non-Stop
aprox.
949 m
Pravalia Maestrului
aprox.
1233 m
Mega Image
aprox.
1237 m
"METROPLIS CENTER"
aprox.
578 m
Parcare cu plata
aprox.
311 m
Parcare
aprox.
409 m
Parcare
aprox.
455 m
Parcare
aprox.
463 m
Parcare
aprox.
497 m
Parcare
aprox.
568 m
Parcare Subterana Metropolis Center
aprox.
575 m
Parcare
aprox.
648 m
Parcare spital
aprox.
658 m
Parcare
aprox.
658 m
Parcare
aprox.
659 m
Parcare
aprox.
687 m
Parcare
aprox.
793 m
Parcare
aprox.
793 m
Parcare
aprox.
800 m
Parcul "Ioanid"
aprox.
416 m
Parcul Ion Voicu
aprox.
419 m
Parc
aprox.
429 m
Parcul Piata Romana
aprox.
511 m
Parc
aprox.
548 m
Perla park
aprox.
548 m
Small park (en)
aprox.
592 m
Parc
aprox.
592 m
Parcul "Grădina Icoanei"
aprox.
630 m
Gradina Icoanei
aprox.
631 m
60 Minutes
aprox.
820 m
Parc
aprox.
856 m
Parcul Ion C. Bratianu
aprox.
877 m
Statuia lui Ion (Ionel) I.C. Bratianu
aprox.
886 m
Parcul Ion I. C. Bratianu
aprox.
891 m
Piața Romană
aprox.
545 m
Piata Revolutiei
aprox.
1192 m
Piata Universitatii
aprox.
1461 m
Piata Rosetti
aprox.
1467 m
Piata Latina
aprox.
1549 m
Piața Drapelului (Tricolorului)
aprox.
1623 m
Piața Aviatorilor
aprox.
1783 m
Piata Bucur Obor
aprox.
1812 m
Piata Roma
aprox.
1939 m
Piata Emil Cioran (Vergilius) (en)
aprox.
1953 m
Stadionul Dinamo
aprox.
653 m
Teren sportiv
aprox.
830 m
Teren sportiv
aprox.
844 m
Teren sportiv
aprox.
900 m
Teren sportiv
aprox.
920 m
Teren sportiv
aprox.
1032 m
Teren sportiv
aprox.
1101 m
Teren sportiv
aprox.
1482 m
Teren sportiv
aprox.
1601 m
Respawn B
aprox.
1610 m
Teren sportiv
aprox.
1623 m
Gradinita
aprox.
1676 m
Teren sportiv
aprox.
1681 m
Etaj 1 - Hala CQB
aprox.
1686 m
Parter - Hala mare
aprox.
1694 m
policlinica centrul de diagnostic si tratament (CDT)
aprox.
202 m
Centrul de diagnostic si tratament
aprox.
210 m
Laurus Medical
aprox.
256 m
Bioderm Eminescu (en)
aprox.
275 m
Puls
aprox.
288 m
INFOSAN Clinica Oftalmologica
aprox.
306 m
Doctor Carmen Sturza
aprox.
312 m
policlinica de copii Grigore Alexandrescu
aprox.
319 m
Ambulatoriul de specialitate al Spitalului de copii Grigore Alexandrescu
aprox.
384 m
Spitalul de Oftalmologie
aprox.
420 m
Spitalul Clinic de Urgente Oftalmologice
aprox.
427 m
Camera de Garda - Spitalul de Urgenta Floreasca
aprox.
529 m
Spitalul de Urgență Floreasca
aprox.
541 m
Spitalul de Urgenta Floreasca
aprox.
550 m
Dacia Medical Center
aprox.
554 m
Farmaplus
aprox.
269 m
Farmacia Terapia
aprox.
303 m
Farmaciamerk 2 Pharma
aprox.
322 m
Farmacie Dorobanti
aprox.
327 m
Farmacie
aprox.
328 m
Farmaciile Polisano
aprox.
420 m
Farmacia Arta
aprox.
424 m
Farmacia Punkt
aprox.
432 m
Produse naturale SECOM
aprox.
432 m
SC. Farmed SRL
aprox.
452 m
Sensiblu
aprox.
459 m
Catena Farmacie
aprox.
463 m
Sensiblu
aprox.
472 m
Farmacia Dona 152
aprox.
479 m
Farmacia Centrofarm 85
aprox.
495 m
Acuarela
aprox.
28 m
Beca's Kitchen
aprox.
173 m
Osteria Ciao Niki
aprox.
219 m
Torna Fratre
aprox.
305 m
Trattoria Roma
aprox.
333 m
Crazy Kitchen
aprox.
339 m
Restaurant Cery-Lu
aprox.
344 m
Gyros Sotos
aprox.
351 m
cofetaria Nicola
aprox.
353 m
El Puerto Iberico
aprox.
360 m
La Puicute
aprox.
366 m
Casa Select
aprox.
379 m
Restaurant Heritage
aprox.
383 m
Centro
aprox.
406 m
Pizza Hut
aprox.
416 m
ACAB Pub
aprox.
141 m
Lokal
aprox.
168 m
Alan Dala
aprox.
302 m
Zappa Rock & More
aprox.
310 m
Happy Pub
aprox.
501 m
Frame
aprox.
538 m
Piua Book Bar
aprox.
545 m
MIM Bistro
aprox.
853 m
Cup & Cake
aprox.
905 m
Trei Betivi
aprox.
980 m
A1
aprox.
992 m
Fratelli Espresso Bar
aprox.
994 m
Sky Bar
aprox.
1063 m
Que Pasa
aprox.
1064 m
El Bistro
aprox.
1141 m
Smart Change
aprox.
210 m
Shiva
aprox.
288 m
Tucano Coffee - Dorobanti
aprox.
292 m
Tucano Coffee
aprox.
294 m
Mon Amour
aprox.
345 m
Music Rooms Cafe
aprox.
365 m
5 To Go Lahovari
aprox.
473 m
Hathor Cafe
aprox.
528 m
Cafe Boheme
aprox.
530 m
Reader's Cafe
aprox.
585 m
Cafe 3
aprox.
601 m
Nescafe Milano
aprox.
613 m
Gradina Verona
aprox.
704 m
Gradina OAR
aprox.
734 m
Camera din Fata
aprox.
741 m
Panik & Pub
aprox.
230 m
Open Pub
aprox.
332 m
Waldo's
aprox.
396 m
OLD NICK PUB
aprox.
478 m
Studio Martin
aprox.
595 m
Smart's Pub & Bistro
aprox.
893 m
Have a Cigar
aprox.
1265 m
Restaurant-pizzerie BONA DA ELENA
aprox.
1316 m
Doncafe Brasserie
aprox.
1394 m
Coloseum
aprox.
1435 m
Question Mark Social Club
aprox.
1449 m
Le Cafe Inmedio
aprox.
1475 m
James Joyce's Pub & Restaurant
aprox.
1520 m
Edgar`s Pub
aprox.
1521 m
Bluzz
aprox.
1574 m
BCR
aprox.
408 m
Banca Transilvania
aprox.
408 m
Alpha Bank
aprox.
410 m
ING Stefan cel Mare - Polona
aprox.
412 m
Banca Transilvania - Ag. Stefan cel Mare
aprox.
415 m
Banca Romaneasca
aprox.
439 m
BRD Dacia
aprox.
455 m
CEC Bank
aprox.
456 m
Piraeus Bank Romania - Agentia Stefan cel Mare
aprox.
461 m
Raiffeisen Bank
aprox.
468 m
Volksbank
aprox.
471 m
Alpha Bank
aprox.
510 m
Banca Romana de Credite si Investitii
aprox.
523 m
Raiffeisen Bank - Agentia Piata Romana
aprox.
531 m
ING Romana
aprox.
537 m
Zona Ștefan cel Mare - Dacia - Eminescu - Armenească este destul de bine conectată cu alte cartiere din București prin intermediul mijloacelor de transport în comun. Printre acestea amintim autobuzul 605 pe care îl poți lua pentru a ajunge la mall-ul Băneasa Shopping City, tramvaiul 16 care te poate ajuta să ajungi la Piața Sf. Vineri și troleibuzul 86 care oferă o legătură directă cu Gara de Nord. Mai multe stații de metrou sunt și ele disponibile în apropiere. Este vorba despre Ștefan cel Mare și Obor, aflate pe magistrala 1 Dristor - Pantelimon, și despre Piața Romană și Universitate situate pe traseul magistralei 2 Berceni-Pipera. Consultă harta pentru a afla poziționarea exactă a stațiilor mijloacelor de transport în comun.
În zona Ștefan cel Mare - Dacia - Eminescu - Armenească vei găsi mai multe unități de învățământ, de stat și private. Amintim astfel Colegiul Național Școala Centrală de lângă Parcul Grădina Icoanei, Colegiul Național "Spiru Haret" de pe Strada Italiană, Colegiul Național "Cantemir Vodă" și Liceul Economic "Virgil Madgearu", ambele situate pe Bulevardul Dacia. Școala Sanitară Postliceală "Carol Davila" se află și ea în această zonă, iar Academia de Studii Economice din București poate fi găsită în apropiere, la Piața Romană. Consultă harta pentru a vedea care vor fi cele mai apropiate grădinițe, școli și licee de viitoarea ta locuință.
În această zonă vei găsi, în principal, magazine mici și câteva supermarketuri. La intersecția dintre Bulevardul Dacia și Strada Vasile Lascăr vei avea la dispoziție Piața Gemeni și un concept store Mega Image. Cel mai apropiat mall este situat în zona Obor. Este vorba despre Veranda Mall, unul dintre cele mai noi astfel de centre comerciale din București. Tot aici găsești magazinul Bucur Obor și o piață. Cu mașina poți ajunge destul de rapid și la mall-ul Promenada sau la complexul comercial cu magazin Kaufland și Carrefour Market de pe Strada Barbu Văcărescu. Consultă harta și află ce alte opțiuni mai ai aproape de viitoarea ta casă, dar și în împrejurimi.
Îți recomandăm să verifici dacă există posibilitatea închirierii unui loc de parcare în apropierea locuinței de care ești interesat. Poți face acest lucru apelând la Serviciul Parcări din cadrul ADP Sector 2. Atunci îți aducem în atenție faptul că Bulevardul Dacia, Strada Mihai Eminescu și Strada Polonă sunt unele dintre cele mai circulate din această zonă. Trafic intens vei întâlni, totodată, la intersecția dintre Calea Dorobanți, Bulevardul Dacia și Strada Mihai Eminescu. Aglomerație vei găsi și pe Bulevardul Ștefan cel Mare, mai ales la orele de vârf și în zilele în care se organizează evenimente sportive în cadrul stadionului Dinamo. Consultă harta și vezi unde se găsesc principalele parcări din această zonă.
În zona Ștefan cel Mare - Dacia - Eminescu - Armenească se organizează periodic diferite evenimente, de la ateliere, la festivaluri și demonstrații de artă stradală. Dacă te vei muta în această parte a orașului, vei avea la doi pași de casă mai multe ceainării, restaurante, spații unde se organizează jocuri de tip escape room și trei teatre - Țăndărică, Metropolis și Bulandra. Pentru evenimente culturale și seri de film vei putea merge pe Bulevardul Dacia, la Institutul Francez din București. Ajungi repede și în centru, unde poți fi spectatorul unei piese puse în scenă de actorii Teatrului Național București. Parcurile Grădina Icoanei și Ioanid, deși sunt destul de restrânse ca suprafață, sunt unele dintre cele mai frumoase din această parte a orașului. Totodată, în nordul acestei zone, în imediata apropiere a Șoselei Ștefan cel Mare, vei găsi Circul Metropolitan București și parcul acestuia, iar în vecinătatea lor Stadionul Dinamo și complexul său sportiv. Nu uita, totodată, că din această zonă vei ajunge destul de rapid în Centrul Vechi, unde pe lângă terase și restaurante găsești și câteva obiective turistice care merită vizitate măcar o dată. Află ce alte puncte de interes găsești în zona Ștefan cel Mare - Dacia - Eminescu - Armenească și din vecinătatea acesteia. Consultă harta.
Dacă te vei muta în această zonă, vei avea la dispoziție mai multe spitale și clinici private. Printre acestea se numără Spitalul Clinic Dr. Ion Cantacuzino din zona Pieței Gemeni și Spitalul Ion Stroia . Alte unități sanitare din vecinătate sunt Spitalul Clinic Colentina, Spitalul Sf. Ștefan, Spitalul Clinic de Urgență București (cunoscut și ca Floreasca) și Spitalul Euroclinic din rețeaua privată de sănătate Regina Maria. Toate acestea sunt concentrate în nordul zonei Ștefan cel Mare - Dacia - Eminescu - Armenească, în vecinătatea Stadionului Dinamo și a Parcului Circului. Vezi pe hartă localizarea exactă a unităților medicale de mai sus.
Presărate pe străzile din această zonă găsești mai multe terase și restaurante mici. Câteva dintre cele mai cochete se află în vechiul cartier Armenesc. De aici ajungi extrem de repede și în Centrul Vechi al orașului, pentru mai multă diversitate. Fiind atât de aproape de centrul orașului, vei avea la dispoziție extrem de multe opțiuni. Restaurantele și cafenelele din Dorobanți sau de pe Calea Floreasca pot fi cu siguranță pe gustul tău. Dacă vrei să faci și o plimbare, să admiri arhitectura frumoasă a vechilor clădiri din București și să te oprești la o cafea sau la o prăjitură, atunci Calea Victoriei poate fi ideală. Pentru o mică gustare sau un meniu fast food ai mai multe variante în zona Obor, iar dacă te grăbești atunci poți încerca drive through-ul McDonald"™s de pe Strada Barbu Văcărescu. Aruncă o privire pe hartă și vezi ce alte restaurante, terase sau cafenele ai în zonă.
Găsești mai multe sucursale bancare și ATM-uri în special pe Șoseaua Ștefan cel Mare. Aruncă o privire pe hartă și vezi ce alte opțiuni găsești în apropierea viitoarei tale locuințe.
Înainte să pleci...
Ești sigur că ai văzut și aceste proprietăți?
1.501 € / lună
București, Ferdinand
90 mp utili
Clădire de birouri
P+3E
1.300 € / lună
București, Barbu Văcărescu
75 mp utili
Casă/Vilă
2E
1.440 € / lună
București, Obor
778 mp utili
Clădire de birouri
3E
Creează alertă
Salvează căutarea ca să primești pe email ultimele anunțuri publicate
Birouri de închiriat în zona Dacia, Sector 2
Cere detalii prin email
*
*
*
*
Detaliile tale de contact vor fi partajate cu Starlight Space Connect